TOWER CONCIERGE

未ログイン

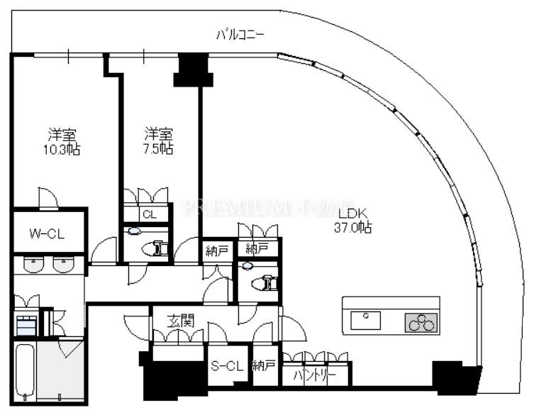
BRILLIA TOWER 堂岛