なんばセントラルプラザ リバーガーデンは、リバー産業が大阪市浪速区湊町2丁目に新設した高さ76.6m、総戸数553戸(ABC棟)の分譲マンションです
目次
なんばセントラルプラザ リバーガーデンA棟B棟の物件写真
タワーマンションを「借りたい方・買いたい方」、「売却査定・賃料査定」など何でもお気軽にお問い合わせください。
なんばセントラルプラザ リバーガーデンA棟B棟の概要・物件情報
基本情報
- 所在地
- 📍大阪市浪速区湊町2丁目 [地図表示]
- 交通
- 🚉関西本線 JR難波駅まで徒歩1分
🚉大阪メトロ四つ橋線 なんば駅まで徒歩4分 - 築年月
- 🎂2014年8月
- 構造等
- 鉄筋コン/地上25階建地下1階
- 総戸数
- 553戸
- 管理方式
- 常駐
- 用途地域
- 商業地域
- 建ぺい率
- 80%
- 建ぺい率
- 600%
- 土地権利
- 所有権
- 地勢
- 平坦
- 国土法届出
- 不要
なんばセントラルプラザ リバーガーデンA棟B棟
「なんばセントラルプラザ リバーガーデンA棟B棟」に住みたいお客様(購入・賃貸)、住替え等にて売却を検討や賃料条件から部屋付け家賃管理等ご検討の所有者(オーナー様)の方、大阪市内の中古タワーマンション専門のプレミアム不動産へお気軽にご相談ください。
なんばセントラルプラザ リバーガーデンは大阪府大阪市浪速区湊町に建設した大規模マンションで、
A棟からC棟までの3棟建て、22階建てから25階建て、高さ74.60m、総戸数は553戸となっています。
毎日のお買い物は、24時間営業のスーパー「マックスバリュ難波湊町店」が徒歩1分。
「ライフなんば店」が徒歩3分。医療では、脳神経外科など9つの診療科がそろう「富永病院(労災指定病院)」が徒歩3分。
20の診療科がそろう「大野記念病院」が徒歩8分です。また、現地東側に隣接する「JR難波」駅前中央広場があり、その先には浪速公園があります。
公立小中学校も徒歩9分圏内と近く、子育てファミリーにも安心の生活環境です。
◆共用施設◆
○ヒーリングラウンジ
○キッズコーナー
○エグゼクティブルーム(ゲストルーム)
◆駐車場◆
タワーパーキング(332台)月/16,000〜25,000円
普通車、ハイルーフ車
◆バイク置場◆
バイク(14台)月/1,000円
ミニバイク(97台)月/700円
◆自転車置場◆
(1116台)月/100〜300円
※管理組合に最新空車確認ならびに実際に駐車してご確認ください。
共用設備
- 主要
免震構造 タワー型 オートロック エレベータ 宅配ボックス キッズルーム ゲストルーム コミュニティルーム
駐車場・駐輪場
この物件のメリット・デメリット
メリット
- ルネッサなんば地区(湊町再開発)にて住環境良好です
デメリット
- 外廊下の構造となっております
なんばセントラルプラザ リバーガーデンA棟B棟のよくある質問
タワーマンションを「借りたい方・買いたい方」、「売却査定・賃料査定」など何でもお気軽にお問い合わせください。
分譲・中古・売り物件一覧
TODAY
本日更新
NEW
新着(7日以内)
| 売買 |
売出中 |
売買ペット | 価格 | 階層 | 間取 | 面積 | 向 | お問い合せ |
| 10,000万円 | 22階 | 3SLDK | 82.27㎡ | 東 | |||
| ペット お問い合せ お気に入り 詳細表示 | |||||||
このお部屋の詳細情報
管理費 7,390円
修繕積立金 8,230円
その他月額費 0円
月額合計金額 15,620円
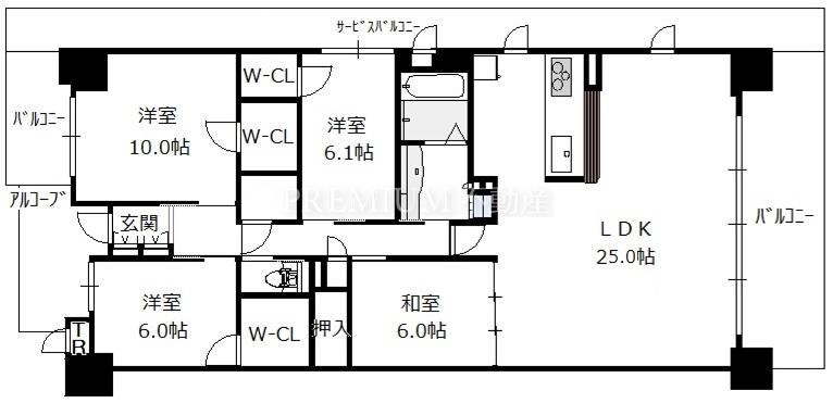
間取り 3SLDK(洋7.5 洋6.0 洋5.0 S0.5 LDK17.9)
現況 空室
引き渡し 募集中
設備 眺望良好/バリアフリー/対面式キッチン/バス・トイレ別/追い炊き機能/浴室乾燥機/床暖房/室内洗濯機/ウォークインクローゼット/シューズ・ボックス/ディスポーザー/食洗機
参考売買相場価格
価格 7,900万円~10,000万円(平均価格9,050万円)
平米単価 100万円/㎡~122万円/㎡(平均単価110万円/㎡)
なんばセントラルプラザ リバーガーデンA棟B棟の掲載中の物件情報を元にした参考情報です
お手軽簡単売却価格査定
プレミアム不動産のAI売却価格査定では約20秒程度の入力で瞬時にご指定のタワーマンションの売却価格相場を調べることが出来ます。登録や個人情報の入力も不要ですので個人情報やしつこい営業の心配もなく安心してお使い頂けます。
空室・賃貸物件一覧
TODAY
本日更新
NEW
新着(7日以内)
現在、なんばセントラルプラザ リバーガーデンA棟B棟の募集中空室がございません。
この建物の短縮URL:https://www.tower.ne.jp/bl/115/





