2006年に竣工された地上41階建て総戸数369戸の大規模タワーマンションです
共用施設にはさまざ様々な共有ルームがございます
❤️19名の方がこの物件を気に入っています
目次
キングスクエア ザ・タワーランドレックス C棟の物件写真
タワーマンションを「借りたい方・買いたい方」、「売却査定・賃料査定」など何でもお気軽にお問い合わせください。
キングスクエア ザ・タワーランドレックス C棟の概要・物件情報
基本情報
- 所在地
- 📍大阪市港区南市岡3丁目 [地図表示]
- 交通
- 🚉大阪環状線 弁天町駅まで徒歩9分
🚉大阪メトロ長堀鶴見緑地 ドーム前千代崎駅まで徒歩18分 - 築年月
- 🎂2006年8月
- 構造等
- 鉄筋コン/地上41階建地下1階
- 総戸数
- 369戸
- 管理方式
- 通勤(日勤)
- 用途地域
- 準工業地域
- 建ぺい率
- 60%
- 建ぺい率
- 300%
- 土地権利
- 所有権
- 地勢
- 平坦
- 国土法届出
- 不要
キングスクエア ザ・タワーランドレックス C棟
「キングスクエア ザ・タワーランドレックス C棟」に住みたいお客様(購入・賃貸)、住替え等にて売却を検討や賃料条件から部屋付け家賃管理等ご検討の所有者(オーナー様)の方、大阪市内の中古タワーマンション専門のプレミアム不動産へお気軽にご相談ください。
◆共用施設◆
〇屋内プール
〇スパゾーン
〇フィットネスルーム
〇シアタールーム
〇スカイラウンジ
〇スタジオルーム
〇ゲストルーム
〇スポーツジム
〇スタディルーム
※キャンピングカーレンタル ・ジェットスキーレンタル ・白浜リゾートマンションの会員価格利用
が入居者には利用可能です。 (但し別途施設使用料金が必要です)
◆駐車場◆
月/0〜10,000円
※1住戸1台無料
◆バイク置場◆
月/1,000円
◆自転車置場◆
月/200円〜300円
※管理組合に最新空車確認ならびに実際に駐車してご確認ください。
共用設備
- 主要
タワー型 オートロック エレベータ 宅配ボックス ゲストルーム ジム シアタールーム スカイラウンジ コミュニティルーム
駐車場・駐輪場
この物件のメリット・デメリット
メリット
- 自走式駐車場が1戸に1台が無料で付いている
デメリット
- 弁天町駅から距離があり準工業地域のエリアとなっております
キングスクエア ザ・タワーランドレックス C棟のよくある質問
タワーマンションを「借りたい方・買いたい方」、「売却査定・賃料査定」など何でもお気軽にお問い合わせください。
分譲・中古・売り物件一覧
TODAY
本日更新
NEW
新着(7日以内)
売出中 |
売買ペット | 価格 | 階層 | 間取 | 面積 | 向 | お問い合せ |
| 7,980万円 | 38階 | 3LDK | 94.88㎡ | 南西 | |||
| ペット お問い合せ お気に入り 詳細表示 | |||||||
このお部屋の詳細情報
管理費 22,900円
修繕積立金 17,080円
その他月額費 200円
月額合計金額 40,180円
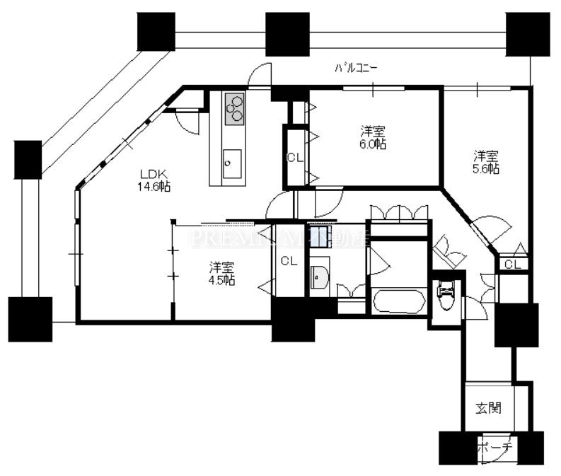
間取り 3LDK(洋9.0 洋6.0 洋6.0 LDK17.3)
現況 空室
引き渡し 募集中
設備 眺望良好/対面式キッチン/バス・トイレ別/追い炊き機能/浴室乾燥機/床暖房/室内洗濯機/クローゼット/ウォークインクローゼット/シューズ・ボックス/角部屋
売出中 |
売買ペット | 価格 | 階層 | 間取 | 面積 | 向 | お問い合せ |
| 6,998万円 | 39階 | 3LDK | 87.74㎡ | 南西 | |||
| ペット お問い合せ お気に入り 詳細表示 | |||||||
このお部屋の詳細情報
管理費 21,300円
修繕積立金 15,790円
その他月額費 200円
月額合計金額 37,290円
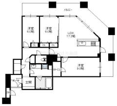
間取り 3LDK(洋8.1 洋7.2 洋4.6 LDK)
現況 空室
引き渡し 募集中
設備 眺望良好/ガスコンロ/バス・トイレ別/追い炊き機能/浴室乾燥機/床暖房/室内洗濯機/クローゼット/シューズインクローゼット/食洗機
売出中 |
売買ペット | 価格 | 階層 | 間取 | 面積 | 向 | お問い合せ |
| 6,280万円 | 10階 | 3LDK | 75.56㎡ | 北西 | |||
| ペット お問い合せ お気に入り 詳細表示 | |||||||
このお部屋の詳細情報
管理費 18,300円
修繕積立金 13,600円
その他月額費 0円
月額合計金額 31,900円
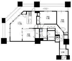
間取り 3LDK(洋6 洋4.5 洋4.5 LDK15.0)
現況 空室
引き渡し 募集中
設備 L字型キッチン/IHクッキングヒーター/バス・トイレ別/追い炊き機能/浴室乾燥機/床暖房/室内洗濯機/クローゼット/シューズ・ボックス/食洗機/角部屋
売出中 |
売買ペット | 価格 | 階層 | 間取 | 面積 | 向 | お問い合せ |
| 7,380万円 | 36階 | 3LDK | 91.15㎡ | 南東 | |||
| ペット お問い合せ お気に入り 詳細表示 | |||||||
このお部屋の詳細情報
管理費 22,100円
修繕積立金 16,410円
その他月額費 200円
月額合計金額 38,710円
間取り 3LDK(洋9.4 洋6.4 洋4.5 LDK17.5)
現況 空室
引き渡し 募集中
設備 眺望良好/L字型キッチン/バス・トイレ別/追い炊き機能/浴室乾燥機/床暖房/室内洗濯機/クローゼット/ウォークインクローゼット/シューズ・ボックス/角部屋
売出中 |
売買ペット | 価格 | 階層 | 間取 | 面積 | 向 | お問い合せ |
| 4,280万円 | 25階 | 2LDK | 64.25㎡ | 南西 | |||
| ペット お問い合せ お気に入り 詳細表示 | |||||||
このお部屋の詳細情報
管理費 15,500円
修繕積立金 11,570円
その他月額費 200円
月額合計金額 27,270円
間取り 2LDK(洋7.0 洋7.0 LDK13.2)
現況 居住中
引き渡し 募集中
設備 眺望良好/対面式キッチン/ガスコンロ/バス・トイレ別/追い炊き機能/浴室乾燥機/床暖房/室内洗濯機/ウォークインクローゼット/シューズ・ボックス/食洗機
売出中 |
売買ペット | 価格 | 階層 | 間取 | 面積 | 向 | お問い合せ |
| 4,700万円 | 28階 | 3LDK | 71.84㎡ | 南東 | |||
| ペット お問い合せ お気に入り 詳細表示 | |||||||
このお部屋の詳細情報
管理費 15,780円
修繕積立金 10,780円
その他月額費 0円
月額合計金額 26,560円
間取り 3LDK(洋6.2 洋4.7 和4.5 LDK14.9)
現況 空室
引き渡し 募集中
設備 眺望良好/バリアフリー/独立型キッチン/ガスコンロ/バス・トイレ別/追い炊き機能/浴室乾燥機/床暖房/室内洗濯機/クローゼット/ウォークインクローゼット/シューズ・ボックス/ディスポーザー/食洗機
参考売買相場価格
価格 4,280万円~7,980万円(平均価格6,214万円)
平米単価 65万円/㎡~84万円/㎡(平均単価75万円/㎡)
キングスクエア ザ・タワーランドレックス C棟の掲載中の物件情報を元にした参考情報です
お手軽簡単売却価格査定
プレミアム不動産のAI売却価格査定では約20秒程度の入力で瞬時にご指定のタワーマンションの売却価格相場を調べることが出来ます。登録や個人情報の入力も不要ですので個人情報やしつこい営業の心配もなく安心してお使い頂けます。
空室・賃貸物件一覧
TODAY
本日更新
NEW
新着(7日以内)
現在、キングスクエア ザ・タワーランドレックス C棟の募集中空室がございません。
この建物の短縮URL:https://www.tower.ne.jp/bl/40/





















