グラングリーン大阪 THE NORTH RESIDENCE(大阪市北区大深町)にある2SLDK(洋10.4 洋10.4 S4.8 L17.4 D14.9 K5.9)のお部屋です。 専有面積:161.42㎡、10階、方角:北東。 賃料:2800000円、管理費:0円。 最寄駅:大阪駅(東海道本線)徒歩7分、大阪梅田駅(阪急電鉄神戸線)徒歩9分。 建物設備:オートロック・宅配ボックス・スカイラウンジ・コンシェルジュ・パーティールーム。 部屋設備:ウォークインクローゼット・ディスポーザー・食洗機・バス・トイレ別・追い炊き機能・浴室乾燥機・床暖房・室内洗濯機・クローゼット・エアコン。 特徴:角部屋・LDK20帖以上。 建物概要:うめきた2期、大阪最後の一等地にある最高級グラングリーン大阪(北棟)
目次
グラングリーン大阪 THE NORTH RESIDENCEの物件写真
お部屋情報
このお部屋は定期借家契約となります
🅿このお部屋は駐車場が確保されています⬇
2026/04/30/ 200,000円値下いたしました!
お気に入り お問い合わせ
募集中 |
賃貸未入居 | 家賃 | 所在階 | 間取り | 専有面積 | 方位 |
| 280万円 | 10階 | 2SLDK | 161.42㎡ | 北東 |
管理費 0円
その他月額費 0円
月額合計金額 2,800,000円
水道料金 実費
敷金 1ヶ月
礼金 2ヶ月
間取り 2SLDK(洋10.4 洋10.4 S4.8 L17.4 D14.9 K5.9)
現況 空室
引き渡し 即時
定期借家 3年
設備
ペット 不可
楽器 不可
※専用EV直結カーギャラリー付き(平面1台)
グラングリーン大阪 THE NORTH RESIDENCEの概要・物件情報
基本情報
- 所在地
- 📍大阪市北区大深町 [地図表示]
- 交通
- 🚉東海道本線 大阪駅まで徒歩7分
🚉阪急電鉄神戸線 大阪梅田駅まで徒歩9分 - 築年月
- 🎂2025年12月
- 構造等
- 鉄筋コン/地上46階建
- 総戸数
- 484戸
- 管理方式
- 常駐
- 用途地域
- 商業地域
- 建ぺい率
- 100%
- 建ぺい率
- 650%
- 土地権利
- 所有権
- 地勢
- 平坦
- 国土法届出
- 不要
グラングリーン大阪 THE NORTH RESIDENCEは著名人や芸能人の方にも安心のおすすめの物件です。
グラングリーン大阪 THE NORTH RESIDENCE
「グラングリーン大阪 THE NORTH RESIDENCE(ザ・ノースレジデンス)」に住みたいお客様(購入・賃貸)、住替え等にて売却を検討や賃料条件から部屋付け家賃管理等ご検討の所有者(オーナー様)の方、大阪市内の中古タワーマンション専門のプレミアム不動産へお気軽にご相談ください。
大阪駅前の貨物ヤード跡地にて大規模複合開発を進めている、うめきたプロジェクト。 2013年にグランフロント大阪を開業した先行開発区域に続き、 うめきた2期地区開発プロジェクトとして、 オフィス、ホテル、中核機能、商業施設、都市公園、住宅を有し、 うめきたから大阪、関西、そして世界をリードするまちづくりに取り組んでまいります。 暮らしからビジネスまで、さまざまな人々の幅広いシーンでの活用を目指し、 2024年夏に先行まちびらきをむかえます。
◆共用施設◆
1階:ウエイティングラウンジ・グランドホール・プライベートラウンジ
4階:ルーフトップガーデン・レセプションガーデンラウンジ・オーナーズラウンジ
39階:スカイラウンジ
◆駐車場◆
256台(平面46台(来客用平面2台、来客用平面1台(福祉対応)含む)、
エレベーターパーキング180台、カーギャラリー28台)
(月額使用料:60,000円、75,000円、95,000円、100,000円)
◆バイク置場◆
バイク置場17台、ミニバイク置場27台
(月額使用料:2,000円、6,000円、7,000円)
◆自転車置場◆
457台(平面132台、上段2段ラック式140台、下段スライドラック式185台)
(月額使用料:100円、200円、400円、700円)
※管理組合に最新空車確認ならびに実際に駐車してご確認ください。
共用設備
- 主要
免震構造 タワー型 オートロック エレベータ 宅配ボックス スカイラウンジ コンシェルジュ パーティールーム
駐車場・駐輪場
この物件のメリット・デメリット
メリット
- 資産のひとつとして所有できれば
デメリット
- なし
分譲・中古・売り物件一覧
TODAY
本日更新
NEW
新着(7日以内)
売出中 |
売買未入居ペット | 価格 | 階層 | 間取 | 面積 | 向 | お問い合せ |
| 19,800万円 | 5階 | 0LDK | 45.61㎡ | 南 | |||
| 未入居ペット お問い合せ お気に入り 詳細表示 | |||||||
このお部屋の詳細情報
管理費 15,960円
修繕積立金 9,120円
その他月額費 12,177円
月額合計金額 37,257円
間取り 0LDK(LD11.5 K3.1)
現況 空室
引き渡し 募集中
設備 バリアフリー/独立型キッチン/ガスコンロ/バス・トイレ別/追い炊き機能/浴室乾燥機/床暖房/室内洗濯機/クローゼット/エアコン/シューズ・ボックス/ディスポーザー/食洗機
売出中 |
売買未入居ペット | 価格 | 階層 | 間取 | 面積 | 向 | お問い合せ |
| 35,000万円 | 21階 | 1LDK | 73.18㎡ | 西 | |||
| 未入居ペット お問い合せ お気に入り 詳細表示 | |||||||
このお部屋の詳細情報
管理費 25,610円
修繕積立金 14,630円
その他月額費 12,177円
月額合計金額 52,417円
間取り 1LDK(洋9.0 LD12.0 K4.8)
現況 空室
引き渡し 募集中
設備 花火大会観賞/眺望良好/バリアフリー/独立型キッチン/ガスコンロ/バス・トイレ別/追い炊き機能/浴室乾燥機/床暖房/室内洗濯機/クローゼット/エアコン/シューズ・ボックス/ディスポーザー/食洗機
| 売買NEW |
売出中 |
売買未入居ペット | 価格 | 階層 | 間取 | 面積 | 向 | お問い合せ |
| 35,400万円 | 33階 | 1LDK | 70.8㎡ | 東 | |||
| 未入居ペット お問い合せ お気に入り 詳細表示 | |||||||
このお部屋の詳細情報
管理費 24,780円
修繕積立金 14,160円
その他月額費 12,617円
月額合計金額 51,557円
間取り 1LDK(洋10.4 LD12.0 K4.7)
現況 空室
引き渡し 募集中
設備 眺望良好/バリアフリー/独立型キッチン/ガスコンロ/バス・トイレ別/追い炊き機能/浴室乾燥機/床暖房/室内洗濯機/ウォークインクローゼット/エアコン/シューズインクローゼット/ディスポーザー/食洗機
| 売買TODAY |
| 売買NEW |
売出中 |
売買未入居ペット | 価格 | 階層 | 間取 | 面積 | 向 | お問い合せ |
| 29,600万円 | 34階 | 1LDK | 55.93㎡ | 南 | |||
| 未入居ペット お問い合せ お気に入り 詳細表示 | |||||||
このお部屋の詳細情報
管理費 19,570円
修繕積立金 11,180円
その他月額費 11,572円
月額合計金額 42,322円
間取り 1LDK(洋7.1 LD10.6 K3.0)
現況 空室
引き渡し 募集中
設備 眺望良好/バリアフリー/独立型キッチン/ガスコンロ/バス・トイレ別/追い炊き機能/浴室乾燥機/床暖房/室内洗濯機/クローゼット/エアコン/シューズ・ボックス/ディスポーザー/食洗機
| 売買 |
| 売買 |
売出中 |
売買未入居ペット | 価格 | 階層 | 間取 | 面積 | 向 | お問い合せ |
| 59,800万円 | 19階 | 2LDK | 118.1㎡ | 南西 | |||
| 未入居ペット お問い合せ お気に入り 詳細表示 | |||||||
このお部屋の詳細情報
管理費 41,330円
修繕積立金 23,620円
その他月額費 14,157円
月額合計金額 79,107円
間取り 2LDK(洋11.1 洋8.7 LD23.4 K5.2)
現況 空室
引き渡し 募集中
設備 バリアフリー/独立型キッチン/ガスコンロ/バス・トイレ別/追い炊き機能/浴室乾燥機/床暖房/室内洗濯機/ウォークインクローゼット/エアコン/シューズインクローゼット/2面以上バルコニー/ディスポーザー/食洗機/角部屋/LDK20帖以上
売出中 |
売買未入居ペット | 価格 | 階層 | 間取 | 面積 | 向 | お問い合せ |
| 68,800万円 | 28階 | 2LDK | 111.93㎡ | 南西 | |||
| 未入居ペット お問い合せ お気に入り 詳細表示 | |||||||
このお部屋の詳細情報
管理費 39,170円
修繕積立金 22,380円
その他月額費 14,157円
月額合計金額 75,707円
間取り 2LDK(洋10.5 洋8.6 LD23.3 K4.5)
現況 空室
引き渡し 募集中
設備 眺望良好/バリアフリー/独立型キッチン/ガスコンロ/バス・トイレ別/追い炊き機能/浴室乾燥機/床暖房/室内洗濯機/クローゼット/ウォークインクローゼット/エアコン/シューズ・ボックス/2面以上バルコニー/ディスポーザー/食洗機/角部屋/LDK20帖以上
売出中 |
売買NEW未入居ペット | 価格 | 階層 | 間取 | 面積 | 向 | お問い合せ |
| 138,800万円 | 41階 | 2LDK | 158.75㎡ | 南東 | |||
| 未入居ペット お問い合せ お気に入り 詳細表示 | |||||||
このお部屋の詳細情報
管理費 55,560円
修繕積立金 31,750円
その他月額費 14,157円
月額合計金額 101,467円
間取り 2LDK(洋15.9 洋8.1 LD37.7 K5.5)
現況 空室
引き渡し 募集中
設備 眺望良好/バリアフリー/独立型キッチン/ガスコンロ/バス・トイレ別/追い炊き機能/浴室乾燥機/床暖房/室内洗濯機/クローゼット/ウォークインクローゼット/エアコン/シューズインクローゼット/ディスポーザー/食洗機/角部屋/LDK20帖以上
| 売買 |
| 売買 |
| 売買 |
売出中 |
売買未入居ペット | 価格 | 階層 | 間取 | 面積 | 向 | お問い合せ |
| 34,900万円 | 31階 | 2LDK | 79.66㎡ | 西 | |||
| 未入居ペット お問い合せ お気に入り 詳細表示 | |||||||
このお部屋の詳細情報
管理費 27,880円
修繕積立金 15,930円
その他月額費 12,617円
月額合計金額 56,427円
間取り 2LDK(洋8.9 洋5.8 LD12.0 K3.8)
現況 空室
引き渡し 募集中
設備 眺望良好/バリアフリー/独立型キッチン/ガスコンロ/バス・トイレ別/追い炊き機能/浴室乾燥機/床暖房/室内洗濯機/クローゼット/ウォークインクローゼット/エアコン/シューズ・ボックス/ディスポーザー/食洗機
| 売買 |
売出中 |
売買未入居ペット | 価格 | 階層 | 間取 | 面積 | 向 | お問い合せ |
| 41,800万円 | 25階 | 1LDK | 83.13㎡ | 西 | |||
| 未入居ペット お問い合せ お気に入り 詳細表示 | |||||||
このお部屋の詳細情報
管理費 29,090円
修繕積立金 16,620円
その他月額費 12,617円
月額合計金額 58,327円
間取り 1LDK(洋10.2 LD17.4 K4.9)
現況 空室
引き渡し 募集中
設備 眺望良好/バリアフリー/独立型キッチン/ガスコンロ/バス・トイレ別/追い炊き機能/浴室乾燥機/床暖房/室内洗濯機/ウォークインクローゼット/エアコン/シューズ・ボックス/ディスポーザー/食洗機/LDK20帖以上
| 売買 |
売出中 |
売買未入居ペット | 価格 | 階層 | 間取 | 面積 | 向 | お問い合せ |
| 58,800万円 | 14階 | 2LDK | 103.29㎡ | 南西 | |||
| 未入居ペット お問い合せ お気に入り 詳細表示 | |||||||
このお部屋の詳細情報
管理費 36,150円
修繕積立金 20,650円
その他月額費 13,937円
月額合計金額 70,737円
間取り 2LDK(洋9.8 洋6.4 LD22.3 K4.4)
現況 空室
引き渡し 募集中
設備 バリアフリー/独立型キッチン/ガスコンロ/バス・トイレ別/追い炊き機能/浴室乾燥機/床暖房/室内洗濯機/クローゼット/ウォークインクローゼット/エアコン/シューズ・ボックス/2面以上バルコニー/ディスポーザー/食洗機/角部屋/LDK20帖以上
| 売買 |
売出中 |
売買未入居ペット | 価格 | 階層 | 間取 | 面積 | 向 | お問い合せ |
| 150,000万円 | 43階 | 2LDK | 158.75㎡ | 南東 | |||
| 未入居ペット お問い合せ お気に入り 詳細表示 | |||||||
このお部屋の詳細情報
管理費 55,560円
修繕積立金 31,750円
その他月額費 14,157円
月額合計金額 101,467円
間取り 2LDK(洋15.9 洋8.1 LD37.7 K5.5)
現況 空室
引き渡し 募集中
設備 眺望良好/バリアフリー/独立型キッチン/ガスコンロ/バス・トイレ別/追い炊き機能/浴室乾燥機/床暖房/室内洗濯機/クローゼット/ウォークインクローゼット/エアコン/シューズインクローゼット/ディスポーザー/食洗機/角部屋/LDK20帖以上
売出中 |
売買未入居ペット | 価格 | 階層 | 間取 | 面積 | 向 | お問い合せ |
| 21,500万円 | 10階 | 0LDK | 45.61㎡ | 南 | |||
| 未入居ペット お問い合せ お気に入り 詳細表示 | |||||||
このお部屋の詳細情報
管理費 15,960円
修繕積立金 9,120円
その他月額費 12,177円
月額合計金額 37,257円
間取り 0LDK(LD11.5 K3.1)
現況 空室
引き渡し 募集中
設備 バリアフリー/独立型キッチン/ガスコンロ/バス・トイレ別/追い炊き機能/浴室乾燥機/床暖房/室内洗濯機/クローゼット/エアコン/シューズ・ボックス/ディスポーザー/食洗機
| 売買NEW |
売出中 |
売買未入居ペット | 価格 | 階層 | 間取 | 面積 | 向 | お問い合せ |
| 34,800万円 | 28階 | 2LDK | 79.66㎡ | 西 | |||
| 未入居ペット お問い合せ お気に入り 詳細表示 | |||||||
このお部屋の詳細情報
管理費 27,880円
修繕積立金 15,930円
その他月額費 12,617円
月額合計金額 56,427円
間取り 2LDK(洋8.9 洋5.8 LD12.0 K3.8)
現況 空室
引き渡し 募集中
設備 眺望良好/バリアフリー/独立型キッチン/ガスコンロ/バス・トイレ別/追い炊き機能/浴室乾燥機/床暖房/室内洗濯機/クローゼット/ウォークインクローゼット/エアコン/シューズ・ボックス/ディスポーザー/食洗機
売出中 |
売買未入居ペット | 価格 | 階層 | 間取 | 面積 | 向 | お問い合せ |
| 21,500万円 | 12階 | 1LDK | 52.36㎡ | 西 | |||
| 未入居ペット お問い合せ お気に入り 詳細表示 | |||||||
このお部屋の詳細情報
管理費 18,320円
修繕積立金 10,470円
その他月額費 12,177円
月額合計金額 40,967円
間取り 1LDK(洋6.7 LD8.5 K2.9)
現況 空室
引き渡し 募集中
設備 バリアフリー/独立型キッチン/ガスコンロ/バス・トイレ別/追い炊き機能/浴室乾燥機/床暖房/室内洗濯機/クローゼット/エアコン/シューズ・ボックス/ディスポーザー/食洗機
売出中 |
売買未入居ペット | 価格 | 階層 | 間取 | 面積 | 向 | お問い合せ |
| 26,200万円 | 27階 | 1LDK | 55.93㎡ | 南 | |||
| 未入居ペット お問い合せ お気に入り 詳細表示 | |||||||
このお部屋の詳細情報
管理費 19,570円
修繕積立金 11,180円
その他月額費 11,572円
月額合計金額 42,322円
間取り 1LDK(洋7.1 LD10.6 K3.0)
現況 空室
引き渡し 募集中
設備 眺望良好/バリアフリー/独立型キッチン/ガスコンロ/バス・トイレ別/追い炊き機能/浴室乾燥機/床暖房/室内洗濯機/クローゼット/エアコン/シューズ・ボックス/ディスポーザー/食洗機
売出中 |
売買NEW未入居ペット | 価格 | 階層 | 間取 | 面積 | 向 | お問い合せ |
| 28,600万円 | 35階 | 1LDK | 55.93㎡ | 南 | |||
| 未入居ペット お問い合せ お気に入り 詳細表示 | |||||||
このお部屋の詳細情報
管理費 19,570円
修繕積立金 11,180円
その他月額費 11,572円
月額合計金額 42,322円
間取り 1LDK(洋7.1 LD10.6 K3.0)
現況 空室
引き渡し 募集中
設備 眺望良好/バリアフリー/独立型キッチン/ガスコンロ/バス・トイレ別/追い炊き機能/浴室乾燥機/床暖房/室内洗濯機/クローゼット/エアコン/シューズ・ボックス/ディスポーザー/食洗機
売出中 |
売買未入居ペット | 価格 | 階層 | 間取 | 面積 | 向 | お問い合せ |
| 39,800万円 | 34階 | 1SLDK | 83.03㎡ | 北 | |||
| 未入居ペット お問い合せ お気に入り 詳細表示 | |||||||
このお部屋の詳細情報
管理費 29,060円
修繕積立金 16,600円
その他月額費 12,727円
月額合計金額 58,387円
間取り 1SLDK(洋14.5 S1.4 LD14.6 K)
現況 空室
引き渡し 募集中
設備 眺望良好/バリアフリー/独立型キッチン/ガスコンロ/バス・トイレ別/追い炊き機能/浴室乾燥機/床暖房/室内洗濯機/クローゼット/エアコン/シューズ・ボックス/ディスポーザー/食洗機
売出中 |
売買未入居ペット | 価格 | 階層 | 間取 | 面積 | 向 | お問い合せ |
| 70,000万円 | 32階 | 2LDK | 110.05㎡ | 北西 | |||
| 未入居ペット お問い合せ お気に入り 詳細表示 | |||||||
このお部屋の詳細情報
管理費 38,510円
修繕積立金 22,010円
その他月額費 14,157円
月額合計金額 74,677円
間取り 2LDK(洋10.9 洋8.0 LD23.2 K4.2)
現況 空室
引き渡し 募集中
設備 眺望良好/バリアフリー/独立型キッチン/ガスコンロ/バス・トイレ別/追い炊き機能/浴室乾燥機/床暖房/室内洗濯機/クローゼット/エアコン/シューズインクローゼット/2面以上バルコニー/ディスポーザー/食洗機/角部屋/LDK20帖以上
売出中 |
売買未入居ペット | 価格 | 階層 | 間取 | 面積 | 向 | お問い合せ |
| 21,800万円 | 6階 | 1LDK | 57.83㎡ | 西 | |||
| 未入居ペット お問い合せ お気に入り 詳細表示 | |||||||
このお部屋の詳細情報
管理費 20,240円
修繕積立金 11,560円
その他月額費 12,177円
月額合計金額 43,977円
間取り 1LDK(洋7.0 LD10.9 K3.7)
現況 空室
引き渡し 募集中
設備 バリアフリー/独立型キッチン/ガスコンロ/バス・トイレ別/追い炊き機能/浴室乾燥機/床暖房/室内洗濯機/クローゼット/エアコン/シューズ・ボックス/ディスポーザー/食洗機
| 売買 |
| 売買 |
売出中 |
売買未入居ペット | 価格 | 階層 | 間取 | 面積 | 向 | お問い合せ |
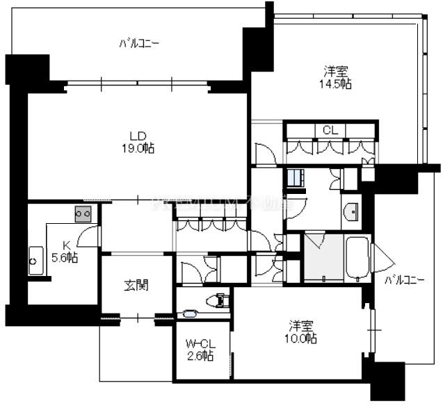
| 60,800万円 | 22階 | 2LDK | 118.95㎡ | 北東 | |||
| 未入居ペット お問い合せ お気に入り 詳細表示 | |||||||
このお部屋の詳細情報
管理費 41,630円
修繕積立金 23,790円
その他月額費 14,157円
月額合計金額 79,577円
間取り 2LDK(洋10.0 洋14.5 LD19.0 K5.6)
現況 空室
引き渡し 募集中
設備 眺望良好/バリアフリー/独立型キッチン/L字型キッチン/ガスコンロ/バス・トイレ別/追い炊き機能/浴室乾燥機/床暖房/室内洗濯機/クローゼット/ウォークインクローゼット/エアコン/シューズ・ボックス/2面以上バルコニー/ディスポーザー/食洗機/角部屋/LDK20帖以上
売出中 |
売買未入居ペット | 価格 | 階層 | 間取 | 面積 | 向 | お問い合せ |
| 62,000万円 | 30階 | 2LDK | 90.94㎡ | 南東 | |||
| 未入居ペット お問い合せ お気に入り 詳細表示 | |||||||
このお部屋の詳細情報
管理費 31,820円
修繕積立金 18,180円
その他月額費 14,157円
月額合計金額 64,157円
間取り 2LDK(洋12.3 洋6.6 LD14.0 K4.2)
現況 空室
引き渡し 募集中
設備 眺望良好/バリアフリー/独立型キッチン/ガスコンロ/バス・トイレ別/追い炊き機能/浴室乾燥機/床暖房/室内洗濯機/クローゼット/エアコン/シューズ・ボックス/2面以上バルコニー/ディスポーザー/食洗機/角部屋
売出中 |
売買未入居ペット | 価格 | 階層 | 間取 | 面積 | 向 | お問い合せ |
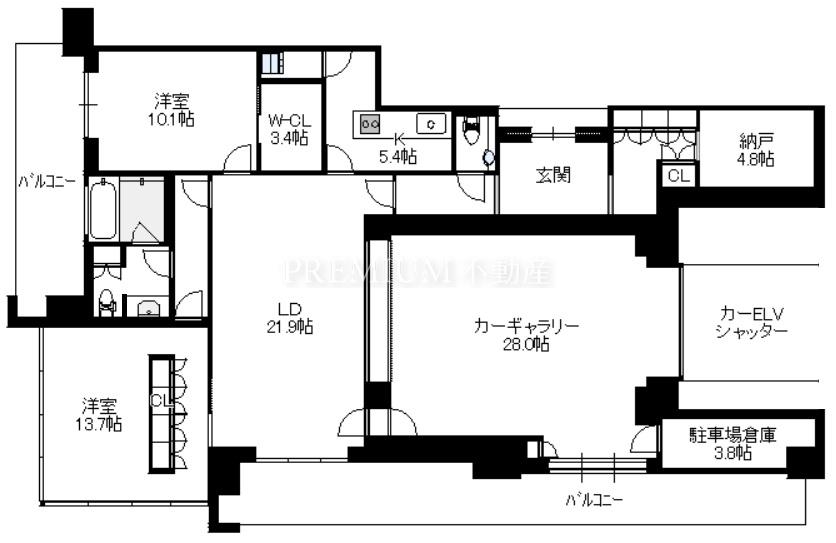
| 100,000万円 | 11階 | 2SLDK | 132.62㎡ | 南東 | |||
| 未入居ペット お問い合せ お気に入り 詳細表示 | |||||||
このお部屋の詳細情報
管理費 46,410円
修繕積立金 26,520円
その他月額費 110,537円
月額合計金額 183,467円
間取り 2SLDK(洋13.7 洋10.1 S4.8 LD21.9 K5.4)
現況 空室
引き渡し 募集中
設備 バリアフリー/独立型キッチン/ガスコンロ/バス・トイレ別/追い炊き機能/浴室乾燥機/床暖房/室内洗濯機/クローゼット/エアコン/シューズ・ボックス/2面以上バルコニー/ディスポーザー/食洗機/角部屋/LDK20帖以上
| 売買 |
| 売買 |
| 売買 |
| 売買 |
売出中 |
売買未入居ペット | 価格 | 階層 | 間取 | 面積 | 向 | お問い合せ |
| 36,800万円 | 17階 | 2LDK | 70.31㎡ | 西 | |||
| 未入居ペット お問い合せ お気に入り 詳細表示 | |||||||
このお部屋の詳細情報
管理費 24,600円
修繕積立金 14,060円
その他月額費 12,117円
月額合計金額 50,777円
間取り 2LDK(洋7.9 洋6.0 LD9.0 K3.3)
現況 空室
引き渡し 募集中
設備 バリアフリー/独立型キッチン/ガスコンロ/バス・トイレ別/追い炊き機能/浴室乾燥機/床暖房/室内洗濯機/クローゼット/エアコン/シューズ・ボックス/ディスポーザー/食洗機
| 売買 |
| 売買 |
| 売買 |
| 売買 |
| 売買 |
売出中 |
売買未入居ペット | 価格 | 階層 | 間取 | 面積 | 向 | お問い合せ |
| 23,990万円 | 17階 | 1LDK | 52.12㎡ | 北 | |||
| 未入居ペット お問い合せ お気に入り 詳細表示 | |||||||
このお部屋の詳細情報
管理費 18,240円
修繕積立金 10,420円
その他月額費 12,177円
月額合計金額 40,837円
間取り 1LDK(洋6.6 LD7.3 K3.8)
現況 空室
引き渡し 募集中
設備 バリアフリー/独立型キッチン/ガスコンロ/バス・トイレ別/追い炊き機能/浴室乾燥機/床暖房/室内洗濯機/クローゼット/エアコン/シューズ・ボックス/ディスポーザー/食洗機
| 売買 |
売出中 |
売買未入居ペット | 価格 | 階層 | 間取 | 面積 | 向 | お問い合せ |
| 24,000万円 | 10階 | 1LDK | 52.36㎡ | 南 | |||
| 未入居ペット お問い合せ お気に入り 詳細表示 | |||||||
このお部屋の詳細情報
管理費 18,320円
修繕積立金 10,470円
その他月額費 12,177円
月額合計金額 40,967円
間取り 1LDK(洋6.7 LD8.5 K2.9)
現況 空室
引き渡し 募集中
設備 バリアフリー/独立型キッチン/ガスコンロ/バス・トイレ別/追い炊き機能/浴室乾燥機/床暖房/室内洗濯機/クローゼット/エアコン/シューズ・ボックス/ディスポーザー/食洗機
| 売買 |
| 売買 |
売出中 |
売買未入居ペット | 価格 | 階層 | 間取 | 面積 | 向 | お問い合せ |
| 29,000万円 | 18階 | 1LDK | 67.92㎡ | 南 | |||
| 未入居ペット お問い合せ お気に入り 詳細表示 | |||||||
このお部屋の詳細情報
管理費 23,770円
修繕積立金 13,580円
その他月額費 12,177円
月額合計金額 49,527円
間取り 1LDK(洋9.7 LD11.5 K4.7)
現況 空室
引き渡し 募集中
設備 バリアフリー/独立型キッチン/ガスコンロ/バス・トイレ別/追い炊き機能/浴室乾燥機/床暖房/室内洗濯機/クローゼット/エアコン/シューズ・ボックス/ディスポーザー/食洗機
| 売買 |
| 売買 |
| 売買 |
| 売買 |
売出中 |
売買未入居ペット | 価格 | 階層 | 間取 | 面積 | 向 | お問い合せ |
| 34,500万円 | 19階 | 2LDK | 70.63㎡ | 西 | |||
| 未入居ペット お問い合せ お気に入り 詳細表示 | |||||||
このお部屋の詳細情報
管理費 24,720円
修繕積立金 14,120円
その他月額費 12,837円
月額合計金額 51,677円
間取り 2LDK(洋8.1 洋5.7 LD9.0 K4.7)
現況 空室
引き渡し 募集中
設備 バリアフリー/独立型キッチン/ガスコンロ/バス・トイレ別/追い炊き機能/浴室乾燥機/床暖房/室内洗濯機/クローゼット/エアコン/シューズ・ボックス/ディスポーザー/食洗機
| 売買 |
| 売買 |
売出中 |
売買未入居ペット | 価格 | 階層 | 間取 | 面積 | 向 | お問い合せ |
| 36,800万円 | 35階 | 1SLDK | 83.03㎡ | 北 | |||
| 未入居ペット お問い合せ お気に入り 詳細表示 | |||||||
このお部屋の詳細情報
管理費 29,060円
修繕積立金 16,600円
その他月額費 12,727円
月額合計金額 58,387円
間取り 1SLDK(洋14.5 S1.4 LD14.6 K)
現況 空室
引き渡し 募集中
設備 眺望良好/バリアフリー/独立型キッチン/ガスコンロ/バス・トイレ別/追い炊き機能/浴室乾燥機/床暖房/室内洗濯機/クローゼット/エアコン/シューズ・ボックス/ディスポーザー/食洗機
売出中 |
売買未入居ペット | 価格 | 階層 | 間取 | 面積 | 向 | お問い合せ |
| 37,900万円 | 32階 | 2LDK | 79.66㎡ | 西 | |||
| 未入居ペット お問い合せ お気に入り 詳細表示 | |||||||
このお部屋の詳細情報
管理費 27,880円
修繕積立金 15,930円
その他月額費 12,617円
月額合計金額 56,427円
間取り 2LDK(洋8.9 洋5.8 LD12.0 K3.8)
現況 空室
引き渡し 募集中
設備 眺望良好/バリアフリー/独立型キッチン/ガスコンロ/バス・トイレ別/追い炊き機能/浴室乾燥機/床暖房/室内洗濯機/クローゼット/ウォークインクローゼット/エアコン/シューズ・ボックス/ディスポーザー/食洗機
売出中 |
売買未入居ペット | 価格 | 階層 | 間取 | 面積 | 向 | お問い合せ |
| 42,900万円 | 37階 | 1SLDK | 83.03㎡ | 北 | |||
| 未入居ペット お問い合せ お気に入り 詳細表示 | |||||||
このお部屋の詳細情報
管理費 29,060円
修繕積立金 16,600円
その他月額費 12,727円
月額合計金額 58,387円
間取り 1SLDK(洋14.5 S1.4 LD14.6 K)
現況 空室
引き渡し 募集中
設備 眺望良好/バリアフリー/独立型キッチン/ガスコンロ/バス・トイレ別/追い炊き機能/浴室乾燥機/床暖房/室内洗濯機/クローゼット/エアコン/シューズ・ボックス/ディスポーザー/食洗機
| 売買 |
| 売買 |
売出中 |
売買未入居ペット | 価格 | 階層 | 間取 | 面積 | 向 | お問い合せ |
| 56,900万円 | 37階 | 2LDK | 96.36㎡ | 北東 | |||
| 未入居ペット お問い合せ お気に入り 詳細表示 | |||||||
このお部屋の詳細情報
管理費 33,720円
修繕積立金 19,270円
その他月額費 14,157円
月額合計金額 67,147円
間取り 2LDK(洋12.3 洋6.6 LD15.0 K4.2)
現況 空室
引き渡し 募集中
設備 眺望良好/バリアフリー/独立型キッチン/ガスコンロ/バス・トイレ別/追い炊き機能/浴室乾燥機/床暖房/室内洗濯機/クローゼット/エアコン/シューズインクローゼット/2面以上バルコニー/ディスポーザー/食洗機/角部屋
| 売買 |
売出中 |
売買未入居ペット | 価格 | 階層 | 間取 | 面積 | 向 | お問い合せ |
| 81,500万円 | 31階 | 3LDK | 162.79㎡ | 西 | |||
| 未入居ペット お問い合せ お気に入り 詳細表示 | |||||||
このお部屋の詳細情報
管理費 56,970円
修繕積立金 32,550円
その他月額費 25,234円
月額合計金額 114,754円
間取り 3LDK(洋10.2 LD17.4 K4.9 洋8.9 洋5.8 LD12.0 K3.8)
現況 空室
引き渡し 募集中
設備 眺望良好/バリアフリー/独立型キッチン/ガスコンロ/バス・トイレ別/追い炊き機能/浴室乾燥機/床暖房/室内洗濯機/クローゼット/ウォークインクローゼット/エアコン/シューズ・ボックス/ディスポーザー/食洗機
| 売買 |
| 売買 |
| 売買 |
参考売買相場価格
価格 19,800万円~222,000万円(平均価格47,363万円)
平米単価 377万円/㎡~951万円/㎡(平均単価522万円/㎡)
グラングリーン大阪 THE NORTH RESIDENCEの掲載中の物件情報を元にした参考情報です
空室・賃貸物件一覧
TODAY
本日更新
NEW
新着(7日以内)
募集中 | 賃貸NEW未入居 | 家賃 | 階層 | 間取 | 面積 | 向 | お問い合せ |
| 52万円 | 17階 | 1LDK | 52.36㎡ | 西 | |||
| 未入居 お問い合せ お気に入り 詳細表示 | |||||||
このお部屋の詳細情報
管理費 50,000円
その他月額費 0円
月額合計金額 570,000円
敷金 1ヶ月
礼金 2ヶ月
間取り 1LDK(洋6.7 LD8.5 K2.9)
現況 空室
引き渡し 即時
普通借家 2年
設備 バリアフリー/分譲賃貸/独立型キッチン/ガスコンロ/バス・トイレ別/追い炊き機能/浴室乾燥機/床暖房/室内洗濯機/クローゼット/エアコン/シューズ・ボックス/ディスポーザー/食洗機/禁煙
※間取り反転タイプ
募集中 | 賃貸未入居 | 家賃 | 階層 | 間取 | 面積 | 向 | お問い合せ |
| 65万円 | 24階 | 1LDK | 61.32㎡ | 東 | |||
| 未入居 お問い合せ お気に入り 詳細表示 | |||||||
このお部屋の詳細情報
管理費 0円
その他月額費 0円
月額合計金額 650,000円
敷金 1ヶ月
礼金 2ヶ月
間取り 1LDK(洋7.1 LD12.1 K3.4)
現況 空室
引き渡し 即時
設備 眺望良好/バリアフリー/分譲賃貸/独立型キッチン/IHクッキングヒーター/バス・トイレ別/追い炊き機能/浴室乾燥機/床暖房/室内洗濯機/クローゼット/エアコン/シューズ・ボックス/ディスポーザー/食洗機
募集中 | 賃貸未入居 | 家賃 | 階層 | 間取 | 面積 | 向 | お問い合せ |
| 45万円 | 23階 | 1LDK | 49.72㎡ | 東 | |||
| 未入居 お問い合せ お気に入り 詳細表示 | |||||||
このお部屋の詳細情報
管理費 30,000円
その他月額費 0円
月額合計金額 480,000円
敷金 480,000円
礼金 960,000円
間取り 1LDK(洋6.2 LD6.6 K3.6)
現況 空室
引き渡し 即時
定期借家 3年
設備 眺望良好/バリアフリー/分譲賃貸/独立型キッチン/ガスコンロ/バス・トイレ別/追い炊き機能/浴室乾燥機/床暖房/室内洗濯機/クローゼット/エアコン/シューズ・ボックス/ディスポーザー/食洗機/禁煙
募集中 | 賃貸未入居ペット | 家賃 | 階層 | 間取 | 面積 | 向 | お問い合せ |
| 72万円 | 37階 | 1LDK | 70.8㎡ | 東 | |||
| 未入居ペット お問い合せ お気に入り 詳細表示 | |||||||
このお部屋の詳細情報
管理費 60,000円
その他月額費 0円
月額合計金額 780,000円
敷金 1ヶ月
礼金 2ヶ月
間取り 1LDK(洋10.4 LD12.0 K4.7)
現況 空室
引き渡し 即時
普通借家 2年
設備 眺望良好/バリアフリー/分譲賃貸/独立型キッチン/ガスコンロ/バス・トイレ別/追い炊き機能/浴室乾燥機/床暖房/室内洗濯機/ウォークインクローゼット/エアコン/シューズインクローゼット/ディスポーザー/食洗機/禁煙
募集中 | 賃貸未入居ペット | 家賃 | 階層 | 間取 | 面積 | 向 | お問い合せ |
| 80万円 | 22階 | 1LDK | 68.93㎡ | 東 | |||
| 未入居ペット お問い合せ お気に入り 詳細表示 | |||||||
このお部屋の詳細情報
管理費 30,000円
その他月額費 0円
月額合計金額 830,000円
敷金 1ヶ月
礼金 2ヶ月
間取り 1LDK(洋8.6 LD14.0 K4.5)
現況 空室
引き渡し 即時
定期借家 3年
設備 眺望良好/バリアフリー/分譲賃貸/独立型キッチン/ガスコンロ/バス・トイレ別/追い炊き機能/浴室乾燥機/床暖房/室内洗濯機/クローゼット/エアコン/シューズ・ボックス/ディスポーザー/食洗機
募集中 | 賃貸未入居 | 家賃 | 階層 | 間取 | 面積 | 向 | お問い合せ |
| 45.5万円 | 32階 | 1LDK | 49.72㎡ | 東 | |||
| 未入居 お問い合せ お気に入り 詳細表示 | |||||||
このお部屋の詳細情報
管理費 50,000円
その他月額費 0円
月額合計金額 505,000円
敷金 505,000円
礼金 1,010,000円
間取り 1LDK(洋6.2 LD6.6 K3.6)
現況 空室
引き渡し 即時
定期借家 3年
設備 眺望良好/バリアフリー/分譲賃貸/独立型キッチン/ガスコンロ/バス・トイレ別/追い炊き機能/浴室乾燥機/床暖房/室内洗濯機/クローゼット/エアコン/シューズ・ボックス/ディスポーザー/食洗機
募集中 | 賃貸未入居 | 家賃 | 階層 | 間取 | 面積 | 向 | お問い合せ |
| 85万円 | 19階 | 2LDK | 74.88㎡ | 南 | |||
| 未入居 お問い合せ お気に入り 詳細表示 | |||||||
このお部屋の詳細情報
管理費 50,000円
その他月額費 0円
月額合計金額 900,000円
敷金 900,000円
礼金 1,800,000円
間取り 2LDK(洋8.3 洋6.1 LD10.0 K5.1)
現況 空室
引き渡し 即時
定期借家 2年
設備 バリアフリー/分譲賃貸/独立型キッチン/ガスコンロ/バス・トイレ別/追い炊き機能/浴室乾燥機/床暖房/室内洗濯機/クローゼット/ウォークインクローゼット/エアコン/シューズ・ボックス/ディスポーザー/食洗機
募集中 | 賃貸未入居ペット | 家賃 | 階層 | 間取 | 面積 | 向 | お問い合せ |
| 92万円 | 28階 | 1LDK | 83.13㎡ | 西 | |||
| 未入居ペット お問い合せ お気に入り 詳細表示 | |||||||
このお部屋の詳細情報
管理費 50,000円
その他月額費 70,000円
月額合計金額 1,040,000円
敷金 1ヶ月
礼金 2ヶ月
間取り 1LDK(洋10.2 LD17.4 K4.9)
現況 空室
引き渡し 即時
定期借家 5年
設備 眺望良好/バリアフリー/分譲賃貸/独立型キッチン/ガスコンロ/バス・トイレ別/追い炊き機能/浴室乾燥機/床暖房/室内洗濯機/ウォークインクローゼット/エアコン/シューズ・ボックス/ディスポーザー/食洗機/禁煙/LDK20帖以上
募集中 | 賃貸未入居 | 家賃 | 階層 | 間取 | 面積 | 向 | お問い合せ |
| 80万円 | 36階 | 1LDK | 70.8㎡ | 東 | |||
| 未入居 お問い合せ お気に入り 詳細表示 | |||||||
このお部屋の詳細情報
管理費 100,000円
その他月額費 0円
月額合計金額 900,000円
敷金 1ヶ月
礼金 2ヶ月
間取り 1LDK(洋10.4 LD12.0 K4.7)
現況 空室
引き渡し 即時
普通借家 2年
設備 眺望良好/バリアフリー/分譲賃貸/独立型キッチン/ガスコンロ/バス・トイレ別/追い炊き機能/浴室乾燥機/床暖房/室内洗濯機/ウォークインクローゼット/エアコン/シューズインクローゼット/ディスポーザー/食洗機/禁煙
募集中 | 賃貸未入居 | 家賃 | 階層 | 間取 | 面積 | 向 | お問い合せ |
| 90万円 | 34階 | 1LDK | 73.25㎡ | 北 | |||
| 未入居 お問い合せ お気に入り 詳細表示 | |||||||
このお部屋の詳細情報
管理費 100,000円
その他月額費 0円
月額合計金額 1,000,000円
敷金 1ヶ月
礼金 2ヶ月
間取り 1LDK(洋9.0 LD14.4 K4.6)
現況 空室
引き渡し 即時
定期借家 5年
設備 眺望良好/バリアフリー/分譲賃貸/独立型キッチン/ガスコンロ/バス・トイレ別/追い炊き機能/浴室乾燥機/床暖房/室内洗濯機/ウォークインクローゼット/エアコン/シューズ・ボックス/ディスポーザー/食洗機/禁煙
募集中 | 賃貸未入居 | 家賃 | 階層 | 間取 | 面積 | 向 | お問い合せ |
| 105万円 | 35階 | 1LDK | 83.13㎡ | 西 | |||
| 未入居 お問い合せ お気に入り 詳細表示 | |||||||
このお部屋の詳細情報
管理費 100,000円
その他月額費 0円
月額合計金額 1,150,000円
敷金 1ヶ月
礼金 2ヶ月
間取り 1LDK(洋10.2 LD17.4 K4.9)
現況 空室
引き渡し 即時
定期借家 3年
設備 眺望良好/バリアフリー/分譲賃貸/独立型キッチン/ガスコンロ/バス・トイレ別/追い炊き機能/浴室乾燥機/床暖房/室内洗濯機/ウォークインクローゼット/エアコン/シューズ・ボックス/ディスポーザー/食洗機/禁煙/LDK20帖以上
募集中 | 賃貸未入居 | 家賃 | 階層 | 間取 | 面積 | 向 | お問い合せ |
| 118万円 | 32階 | 1SLDK | 83.03㎡ | 北 | |||
| 未入居 お問い合せ お気に入り 詳細表示 | |||||||
このお部屋の詳細情報
管理費 0円
その他月額費 0円
月額合計金額 1,180,000円
敷金 2ヶ月
礼金 2ヶ月
間取り 1SLDK(洋14.5 S1.4 LD14.6 K)
現況 空室
引き渡し 即時
定期借家 3年
設備 眺望良好/バリアフリー/分譲賃貸/独立型キッチン/ガスコンロ/バス・トイレ別/追い炊き機能/浴室乾燥機/床暖房/室内洗濯機/クローゼット/エアコン/シューズ・ボックス/ディスポーザー/食洗機/禁煙
募集中 | 賃貸未入居 | 家賃 | 階層 | 間取 | 面積 | 向 | お問い合せ |
| 47万円 | 28階 | 1LDK | 49.72㎡ | 東 | |||
| 未入居 お問い合せ お気に入り 詳細表示 | |||||||
このお部屋の詳細情報
管理費 30,000円
その他月額費 0円
月額合計金額 500,000円
敷金 500,000円
礼金 1,000,000円
間取り 1LDK(洋6.2 LD6.6 K3.6)
現況 空室
引き渡し 即時
定期借家 3年
設備 眺望良好/バリアフリー/分譲賃貸/独立型キッチン/ガスコンロ/バス・トイレ別/追い炊き機能/浴室乾燥機/床暖房/室内洗濯機/クローゼット/エアコン/シューズ・ボックス/ディスポーザー/食洗機/禁煙
募集中 | 賃貸未入居 | 家賃 | 階層 | 間取 | 面積 | 向 | お問い合せ |
| 43万円 | 12階 | 1LDK | 52.36㎡ | 西 | |||
| 未入居 お問い合せ お気に入り 詳細表示 | |||||||
このお部屋の詳細情報
管理費 30,000円
その他月額費 0円
月額合計金額 460,000円
敷金 1ヶ月
礼金 1ヶ月
間取り 1LDK(洋6.7 LD8.5 K2.9)
現況 空室
引き渡し 即時
定期借家 1年
設備 バリアフリー/分譲賃貸/独立型キッチン/ガスコンロ/バス・トイレ別/追い炊き機能/浴室乾燥機/床暖房/室内洗濯機/クローゼット/エアコン/シューズ・ボックス/ディスポーザー/食洗機/禁煙
募集中 | 賃貸未入居 | 家賃 | 階層 | 間取 | 面積 | 向 | お問い合せ |
| 48万円 | 10階 | 1LDK | 56.38㎡ | 北 | |||
| 未入居 お問い合せ お気に入り 詳細表示 | |||||||
このお部屋の詳細情報
管理費 70,000円
その他月額費 0円
月額合計金額 550,000円
敷金 550,000円
礼金 1,100,000円
間取り 1LDK(洋7.6 LD9.0 K3.1)
現況 空室
引き渡し 即時
定期借家 3年
設備 バリアフリー/分譲賃貸/独立型キッチン/ガスコンロ/バス・トイレ別/追い炊き機能/浴室乾燥機/床暖房/室内洗濯機/クローゼット/エアコン/シューズ・ボックス/ディスポーザー/食洗機/禁煙
募集中 | 賃貸未入居ペット | 家賃 | 階層 | 間取 | 面積 | 向 | お問い合せ |
| 48万円 | 10階 | 1LDK | 53.26㎡ | 北 | |||
| 未入居ペット お問い合せ お気に入り 詳細表示 | |||||||
このお部屋の詳細情報
管理費 60,000円
その他月額費 0円
月額合計金額 540,000円
敷金 540,000円
礼金 1,080,000円
間取り 1LDK(洋7.2 LD8.2 K3.0)
現況 空室
引き渡し 即時
定期借家 5年
設備 バリアフリー/分譲賃貸/独立型キッチン/ガスコンロ/バス・トイレ別/追い炊き機能/浴室乾燥機/床暖房/室内洗濯機/クローゼット/エアコン/シューズ・ボックス/ディスポーザー/食洗機/禁煙
募集中 | 賃貸未入居ペット | 家賃 | 階層 | 間取 | 面積 | 向 | お問い合せ |
| 34.8万円 | 10階 | 1LDK | 52.36㎡ | 西 | |||
| 未入居ペット お問い合せ お気に入り 詳細表示 | |||||||
このお部屋の詳細情報
管理費 50,000円
その他月額費 0円
月額合計金額 398,000円
礼金 796,000円
間取り 1LDK(洋6.7 LD8.5 K2.9)
現況 空室
引き渡し 即時
定期借家 3年
設備 バリアフリー/分譲賃貸/独立型キッチン/ガスコンロ/バス・トイレ別/追い炊き機能/浴室乾燥機/床暖房/室内洗濯機/クローゼット/エアコン/シューズ・ボックス/ディスポーザー/食洗機/禁煙
※間取り反転タイプ
募集中 | 賃貸未入居 | 家賃 | 階層 | 間取 | 面積 | 向 | お問い合せ |
| 47万円 | 10階 | 1LDK | 57.83㎡ | 西 | |||
| 未入居 お問い合せ お気に入り 詳細表示 | |||||||
このお部屋の詳細情報
管理費 50,000円
その他月額費 0円
月額合計金額 520,000円
敷金 300,000円
礼金 1,040,000円
間取り 1LDK(洋7.0 LD10.9 K3.7)
現況 空室
引き渡し 即時
定期借家 3年
設備 バリアフリー/分譲賃貸/独立型キッチン/ガスコンロ/バス・トイレ別/追い炊き機能/浴室乾燥機/床暖房/室内洗濯機/クローゼット/エアコン/シューズ・ボックス/ディスポーザー/食洗機/禁煙
募集中 | 賃貸NEW未入居ペット | 家賃 | 階層 | 間取 | 面積 | 向 | お問い合せ |
| 35万円 | 8階 | 1LDK | 52.36㎡ | 西 | |||
| 未入居ペット お問い合せ お気に入り 詳細表示 | |||||||
このお部屋の詳細情報
管理費 50,000円
その他月額費 0円
月額合計金額 400,000円
敷金 400,000円
礼金 800,000円
間取り 1LDK(洋6.7 LD8.5 K2.9)
現況 空室
引き渡し 即時
定期借家 3年
設備 バリアフリー/分譲賃貸/独立型キッチン/ガスコンロ/バス・トイレ別/追い炊き機能/浴室乾燥機/床暖房/室内洗濯機/クローゼット/エアコン/シューズ・ボックス/ディスポーザー/食洗機/禁煙
募集中 | 賃貸未入居 | 家賃 | 階層 | 間取 | 面積 | 向 | お問い合せ |
| 43万円 | 6階 | 0LDK | 45.61㎡ | 南 | |||
| 未入居 お問い合せ お気に入り 詳細表示 | |||||||
このお部屋の詳細情報
管理費 50,000円
その他月額費 0円
月額合計金額 480,000円
礼金 960,000円
間取り 0LDK(LD11.5 K3.1)
現況 空室
引き渡し 即時
定期借家 3年
設備 バリアフリー/分譲賃貸/独立型キッチン/ガスコンロ/バス・トイレ別/追い炊き機能/浴室乾燥機/床暖房/室内洗濯機/クローゼット/エアコン/シューズ・ボックス/ディスポーザー/食洗機/禁煙
募集中 | 賃貸未入居 | 家賃 | 階層 | 間取 | 面積 | 向 | お問い合せ |
| 57万円 | 9階 | 1LDK | 57.83㎡ | 西 | |||
| 未入居 お問い合せ お気に入り 詳細表示 | |||||||
このお部屋の詳細情報
管理費 60,000円
その他月額費 0円
月額合計金額 630,000円
礼金 1,260,000円
間取り 1LDK(洋7.0 LD10.9 K3.7)
現況 空室
引き渡し 即時
定期借家 5年
設備 バリアフリー/分譲賃貸/独立型キッチン/ガスコンロ/バス・トイレ別/追い炊き機能/浴室乾燥機/床暖房/室内洗濯機/クローゼット/エアコン/シューズ・ボックス/ディスポーザー/食洗機/禁煙
募集中 | 賃貸未入居ペット | 家賃 | 階層 | 間取 | 面積 | 向 | お問い合せ |
| 74万円 | 22階 | 1LDK | 73.18㎡ | 西 | |||
| 未入居ペット お問い合せ お気に入り 詳細表示 | |||||||
このお部屋の詳細情報
管理費 80,000円
その他月額費 0円
月額合計金額 820,000円
敷金 200,000円
礼金 2ヶ月
間取り 1LDK(洋9.0 LD12.0 K4.8)
現況 空室
引き渡し 即時
定期借家 5年
設備 眺望良好/バリアフリー/分譲賃貸/独立型キッチン/ガスコンロ/バス・トイレ別/追い炊き機能/浴室乾燥機/床暖房/室内洗濯機/クローゼット/エアコン/シューズ・ボックス/ディスポーザー/食洗機/禁煙
募集中 | 賃貸未入居ペット | 家賃 | 階層 | 間取 | 面積 | 向 | お問い合せ |
| 125万円 | 8階 | 2LDK | 103.29㎡ | 南西 | |||
| 未入居ペット お問い合せ お気に入り 詳細表示 | |||||||
このお部屋の詳細情報
管理費 100,000円
その他月額費 0円
月額合計金額 1,350,000円
敷金 1,350,000円
礼金 2,700,000円
間取り 2LDK(洋9.8 洋6.4 LD22.3 K4.4)
現況 空室
引き渡し 即時
定期借家 5年
設備 バリアフリー/分譲賃貸/独立型キッチン/ガスコンロ/バス・トイレ別/追い炊き機能/浴室乾燥機/床暖房/室内洗濯機/クローゼット/ウォークインクローゼット/エアコン/シューズ・ボックス/2面以上バルコニー/ディスポーザー/食洗機/角部屋/禁煙/LDK20帖以上
募集中 | 賃貸未入居ペット | 家賃 | 階層 | 間取 | 面積 | 向 | お問い合せ |
| 129.5万円 | 26階 | 2LDK | 96.36㎡ | 北東 | |||
| 未入居ペット お問い合せ お気に入り 詳細表示 | |||||||
このお部屋の詳細情報
管理費 145,000円
その他月額費 0円
月額合計金額 1,440,000円
敷金 1,440,000円
礼金 2,880,000円
間取り 2LDK(洋12.3 洋6.6 LD15.0 K4.2)
現況 空室
引き渡し 即時
普通借家 2年
設備 眺望良好/バリアフリー/分譲賃貸/独立型キッチン/ガスコンロ/バス・トイレ別/追い炊き機能/浴室乾燥機/床暖房/室内洗濯機/クローゼット/エアコン/シューズインクローゼット/2面以上バルコニー/ディスポーザー/食洗機/角部屋/禁煙
募集中 | 賃貸未入居ペット | 家賃 | 階層 | 間取 | 面積 | 向 | お問い合せ |
| 35万円 | 5階 | 1LDK | 52.36㎡ | 西 | |||
| 未入居ペット お問い合せ お気に入り 詳細表示 | |||||||
このお部屋の詳細情報
管理費 50,000円
その他月額費 0円
月額合計金額 400,000円
礼金 2ヶ月
間取り 1LDK(洋6.7 LD8.5 K2.9)
現況 空室
引き渡し 即時
普通借家 3年
設備 バリアフリー/分譲賃貸/独立型キッチン/ガスコンロ/バス・トイレ別/追い炊き機能/浴室乾燥機/床暖房/室内洗濯機/クローゼット/エアコン/シューズ・ボックス/ディスポーザー/食洗機/禁煙
募集中 | 賃貸未入居 | 家賃 | 階層 | 間取 | 面積 | 向 | お問い合せ |
| 70万円 | 20階 | 2LDK | 70.63㎡ | 北 | |||
| 未入居 お問い合せ お気に入り 詳細表示 | |||||||
このお部屋の詳細情報
管理費 50,000円
その他月額費 0円
月額合計金額 750,000円
礼金 2ヶ月
間取り 2LDK(洋8.1 洋5.7 LD9.0 K4.7)
現況 空室
引き渡し 即時
定期借家 3年
設備 眺望良好/バリアフリー/分譲賃貸/独立型キッチン/ガスコンロ/バス・トイレ別/追い炊き機能/浴室乾燥機/床暖房/室内洗濯機/クローゼット/シューズ・ボックス/ディスポーザー/食洗機
募集中 | 賃貸未入居 | 家賃 | 階層 | 間取 | 面積 | 向 | お問い合せ |
| 145万円 | 36階 | 2LDK | 110.05㎡ | 北西 | |||
| 未入居 お問い合せ お気に入り 詳細表示 | |||||||
このお部屋の詳細情報
管理費 50,000円
その他月額費 0円
月額合計金額 1,500,000円
礼金 2ヶ月
間取り 2LDK(洋10.9 洋8.0 LD23.2 K4.2)
現況 空室
引き渡し 即時
定期借家 3年
設備 眺望良好/バリアフリー/分譲賃貸/独立型キッチン/ガスコンロ/バス・トイレ別/追い炊き機能/浴室乾燥機/床暖房/室内洗濯機/クローゼット/エアコン/シューズインクローゼット/2面以上バルコニー/ディスポーザー/食洗機/角部屋/LDK20帖以上
募集中 | 賃貸未入居ペット | 家賃 | 階層 | 間取 | 面積 | 向 | お問い合せ |
| 48万円 | 27階 | 1LDK | 49.72㎡ | 東 | |||
| 未入居ペット お問い合せ お気に入り 詳細表示 | |||||||
このお部屋の詳細情報
管理費 20,000円
その他月額費 0円
月額合計金額 500,000円
敷金 1
礼金 1ヶ月
間取り 1LDK(洋6.2 LD6.6 K3.6)
現況 空室
引き渡し 即時
定期借家 3年
設備 眺望良好/バリアフリー/分譲賃貸/独立型キッチン/ガスコンロ/バス・トイレ別/追い炊き機能/浴室乾燥機/床暖房/室内洗濯機/クローゼット/エアコン/シューズ・ボックス/ディスポーザー/食洗機/禁煙
募集中 | 賃貸未入居 | 家賃 | 階層 | 間取 | 面積 | 向 | お問い合せ |
| 95万円 | 33階 | 1SLDK | 83.03㎡ | 北 | |||
| 未入居 お問い合せ お気に入り 詳細表示 | |||||||
このお部屋の詳細情報
管理費 40,000円
その他月額費 0円
月額合計金額 990,000円
敷金 1ヶ月
礼金 2ヶ月
間取り 1SLDK(洋14.5 S1.4 LD14.6 K)
現況 空室
引き渡し 即時
定期借家 4年
設備 眺望良好/バリアフリー/分譲賃貸/独立型キッチン/ガスコンロ/バス・トイレ別/追い炊き機能/浴室乾燥機/床暖房/室内洗濯機/クローゼット/エアコン/シューズ・ボックス/ディスポーザー/食洗機/禁煙
募集中 | 賃貸未入居ペット | 家賃 | 階層 | 間取 | 面積 | 向 | お問い合せ |
| 106万円 | 28階 | 2LDK | 96.36㎡ | 北東 | |||
| 未入居ペット お問い合せ お気に入り 詳細表示 | |||||||
このお部屋の詳細情報
管理費 80,000円
その他月額費 0円
月額合計金額 1,140,000円
敷金 150,000円
礼金 2ヶ月
間取り 2LDK(洋12.3 洋6.6 LD15.0 K4.2)
現況 空室
引き渡し 即時
普通借家 2年
設備 眺望良好/バリアフリー/分譲賃貸/独立型キッチン/ガスコンロ/バス・トイレ別/追い炊き機能/浴室乾燥機/床暖房/室内洗濯機/クローゼット/エアコン/シューズインクローゼット/2面以上バルコニー/ディスポーザー/食洗機/角部屋
募集中 | 賃貸未入居 | 家賃 | 階層 | 間取 | 面積 | 向 | お問い合せ |
| 50万円 | 14階 | 1LDK | 56.38㎡ | 北 | |||
| 未入居 お問い合せ お気に入り 詳細表示 | |||||||
このお部屋の詳細情報
管理費 50,000円
その他月額費 0円
月額合計金額 550,000円
敷金 1ヶ月
礼金 2ヶ月
間取り 1LDK(洋7.6 LD9.0 K3.1)
現況 空室
引き渡し 即時
定期借家 4年
設備 バリアフリー/分譲賃貸/独立型キッチン/ガスコンロ/バス・トイレ別/追い炊き機能/浴室乾燥機/床暖房/室内洗濯機/クローゼット/エアコン/シューズ・ボックス/ディスポーザー/食洗機/禁煙
募集中 | 賃貸未入居 | 家賃 | 階層 | 間取 | 面積 | 向 | お問い合せ |
| 50万円 | 8階 | 1LDK | 57.83㎡ | 西 | |||
| 未入居 お問い合せ お気に入り 詳細表示 | |||||||
このお部屋の詳細情報
管理費 30,000円
その他月額費 0円
月額合計金額 530,000円
敷金 1ヶ月
礼金 2ヶ月
間取り 1LDK(洋7.0 LD10.9 K3.7)
現況 空室
引き渡し 即時
定期借家 4年
設備 バリアフリー/分譲賃貸/独立型キッチン/ガスコンロ/バス・トイレ別/追い炊き機能/浴室乾燥機/床暖房/室内洗濯機/クローゼット/エアコン/シューズ・ボックス/ディスポーザー/食洗機/禁煙
募集中 | 賃貸未入居 | 家賃 | 階層 | 間取 | 面積 | 向 | お問い合せ |
| 55万円 | 14階 | 1LDK | 52.36㎡ | 西 | |||
| 未入居 お問い合せ お気に入り 詳細表示 | |||||||
このお部屋の詳細情報
管理費 0円
その他月額費 0円
月額合計金額 550,000円
敷金 1ヶ月
礼金 2ヶ月
間取り 1LDK(洋6.7 LD8.5 K2.9)
現況 空室
引き渡し 即時
定期借家 5年
設備 バリアフリー/分譲賃貸/独立型キッチン/ガスコンロ/バス・トイレ別/追い炊き機能/浴室乾燥機/床暖房/室内洗濯機/クローゼット/エアコン/シューズ・ボックス/ディスポーザー/食洗機/禁煙
※間取り反転タイプ
募集中 | 賃貸NEW未入居 | 家賃 | 階層 | 間取 | 面積 | 向 | お問い合せ |
| 88万円 | 23階 | 2LDK | 90.94㎡ | 南東 | |||
| 未入居 お問い合せ お気に入り 詳細表示 | |||||||
このお部屋の詳細情報
管理費 100,000円
その他月額費 0円
月額合計金額 980,000円
敷金 1ヶ月
礼金 2ヶ月
間取り 2LDK(洋12.3 洋6.6 LD14.0 K4.2)
現況 空室
引き渡し 即時
普通借家 2年
設備 眺望良好/バリアフリー/分譲賃貸/独立型キッチン/ガスコンロ/バス・トイレ別/追い炊き機能/浴室乾燥機/床暖房/室内洗濯機/クローゼット/エアコン/シューズ・ボックス/2面以上バルコニー/ディスポーザー/食洗機/角部屋/禁煙
募集中 | 賃貸未入居 | 家賃 | 階層 | 間取 | 面積 | 向 | お問い合せ |
| 87万円 | 24階 | 2LDK | 90.94㎡ | 南東 | |||
| 未入居 お問い合せ お気に入り 詳細表示 | |||||||
このお部屋の詳細情報
管理費 30,000円
その他月額費 0円
月額合計金額 900,000円
敷金 1ヶ月
礼金 2ヶ月
間取り 2LDK(洋12.3 洋6.6 LD14.0 K4.2)
現況 空室
引き渡し 即時
普通借家 2年
設備 眺望良好/バリアフリー/分譲賃貸/独立型キッチン/ガスコンロ/バス・トイレ別/追い炊き機能/浴室乾燥機/床暖房/室内洗濯機/クローゼット/エアコン/シューズ・ボックス/2面以上バルコニー/ディスポーザー/食洗機/角部屋/禁煙
募集中 | 賃貸NEW未入居 | 家賃 | 階層 | 間取 | 面積 | 向 | お問い合せ |
| 107.5万円 | 31階 | 1LDK | 79.66㎡ | 南 | |||
| 未入居 お問い合せ お気に入り 詳細表示 | |||||||
このお部屋の詳細情報
管理費 0円
その他月額費 0円
月額合計金額 1,075,000円
敷金 1ヶ月
礼金 2ヶ月
間取り 1LDK(洋8.9 LD17.3 K3.8)
現況 空室
引き渡し 即時
定期借家 5年
設備 眺望良好/バリアフリー/分譲賃貸/独立型キッチン/ガスコンロ/バス・トイレ別/追い炊き機能/浴室乾燥機/床暖房/室内洗濯機/クローゼット/エアコン/シューズ・ボックス/ディスポーザー/食洗機/禁煙/LDK20帖以上
募集中 | 賃貸未入居 | 家賃 | 階層 | 間取 | 面積 | 向 | お問い合せ |
| 280万円 | 10階 | 2SLDK | 161.42㎡ | 北東 | |||
| 未入居 お問い合せ お気に入り 詳細表示 | |||||||
このお部屋の詳細情報
管理費 0円
その他月額費 0円
月額合計金額 2,800,000円
敷金 1ヶ月
礼金 2ヶ月
間取り 2SLDK(洋10.4 洋10.4 S4.8 L17.4 D14.9 K5.9)
現況 空室
引き渡し 即時
定期借家 3年
設備 バリアフリー/分譲賃貸/独立型キッチン/ガスコンロ/バス・トイレ別/追い炊き機能/浴室乾燥機/床暖房/室内洗濯機/クローゼット/ウォークインクローゼット/エアコン/シューズ・ボックス/2面以上バルコニー/ディスポーザー/食洗機/角部屋/禁煙/LDK20帖以上
募集中 | 賃貸未入居ペット | 家賃 | 階層 | 間取 | 面積 | 向 | お問い合せ |
| 45万円 | 12階 | 1LDK | 52.12㎡ | 北 | |||
| 未入居ペット お問い合せ お気に入り 詳細表示 | |||||||
このお部屋の詳細情報
管理費 50,000円
その他月額費 0円
月額合計金額 500,000円
礼金 1,000,000円
間取り 1LDK(洋6.6 LD7.3 K3.8)
現況 空室
引き渡し 即時
普通借家 1年
設備 バリアフリー/分譲賃貸/独立型キッチン/ガスコンロ/バス・トイレ別/追い炊き機能/浴室乾燥機/床暖房/室内洗濯機/クローゼット/エアコン/シューズ・ボックス/ディスポーザー/食洗機
募集中 | 賃貸未入居ペット | 家賃 | 階層 | 間取 | 面積 | 向 | お問い合せ |
| 45万円 | 15階 | 0LDK | 45.61㎡ | 南 | |||
| 未入居ペット お問い合せ お気に入り 詳細表示 | |||||||
このお部屋の詳細情報
管理費 50,000円
その他月額費 0円
月額合計金額 500,000円
礼金 1,000,000円
間取り 0LDK(LD11.5 K3.1)
現況 空室
引き渡し 即時
普通借家 2年
設備 バリアフリー/分譲賃貸/独立型キッチン/ガスコンロ/バス・トイレ別/追い炊き機能/浴室乾燥機/床暖房/室内洗濯機/クローゼット/エアコン/シューズ・ボックス/ディスポーザー/食洗機/禁煙
募集中 | 賃貸未入居 | 家賃 | 階層 | 間取 | 面積 | 向 | お問い合せ |
| 45万円 | 9階 | 0LDK | 45.61㎡ | 南 | |||
| 未入居 お問い合せ お気に入り 詳細表示 | |||||||
このお部屋の詳細情報
管理費 50,000円
その他月額費 0円
月額合計金額 500,000円
敷金 1ヶ月
間取り 0LDK(LD11.5 K3.1)
現況 空室
引き渡し 即時
定期借家 2年
設備 バリアフリー/分譲賃貸/独立型キッチン/ガスコンロ/バス・トイレ別/追い炊き機能/浴室乾燥機/床暖房/室内洗濯機/クローゼット/エアコン/シューズ・ボックス/ディスポーザー/食洗機/禁煙
募集中 | 賃貸未入居 | 家賃 | 階層 | 間取 | 面積 | 向 | お問い合せ |
| 45万円 | 12階 | 1LDK | 57.83㎡ | 西 | |||
| 未入居 お問い合せ お気に入り 詳細表示 | |||||||
このお部屋の詳細情報
管理費 15,000円
その他月額費 0円
月額合計金額 465,000円
礼金 800,000円
間取り 1LDK(洋7.0 LD10.9 K3.7)
現況 空室
引き渡し 即時
設備 バリアフリー/分譲賃貸/独立型キッチン/ガスコンロ/バス・トイレ別/追い炊き機能/浴室乾燥機/床暖房/室内洗濯機/クローゼット/エアコン/シューズ・ボックス/ディスポーザー/食洗機
募集中 | 賃貸未入居 | 家賃 | 階層 | 間取 | 面積 | 向 | お問い合せ |
| 45万円 | 34階 | 1LDK | 49㎡ | 南 | |||
| 未入居 お問い合せ お気に入り 詳細表示 | |||||||
このお部屋の詳細情報
管理費 50,000円
その他月額費 0円
月額合計金額 500,000円
敷金 1ヶ月
間取り 1LDK(洋6.4 LD7.0 K4.0)
現況 空室
引き渡し 即時
定期借家 2年
設備 眺望良好/バリアフリー/分譲賃貸/独立型キッチン/ガスコンロ/バス・トイレ別/追い炊き機能/浴室乾燥機/床暖房/室内洗濯機/クローゼット/エアコン/シューズ・ボックス/ディスポーザー/食洗機/禁煙
募集中 | 賃貸未入居 | 家賃 | 階層 | 間取 | 面積 | 向 | お問い合せ |
| 50万円 | 34階 | 1LDK | 49.72㎡ | 東 | |||
| 未入居 お問い合せ お気に入り 詳細表示 | |||||||
このお部屋の詳細情報
管理費 20,000円
その他月額費 0円
月額合計金額 520,000円
敷金 1ヶ月
礼金 2ヶ月
間取り 1LDK(洋6.2 LD6.6 K3.6)
現況 空室
引き渡し 即時
定期借家 2年
設備 眺望良好/バリアフリー/分譲賃貸/独立型キッチン/ガスコンロ/バス・トイレ別/追い炊き機能/浴室乾燥機/床暖房/室内洗濯機/クローゼット/エアコン/シューズ・ボックス/ディスポーザー/食洗機/禁煙
募集中 | 賃貸未入居 | 家賃 | 階層 | 間取 | 面積 | 向 | お問い合せ |
| 50万円 | 8階 | 1LDK | 52.12㎡ | 北 | |||
| 未入居 お問い合せ お気に入り 詳細表示 | |||||||
このお部屋の詳細情報
管理費 55,000円
その他月額費 0円
月額合計金額 555,000円
敷金 1ヶ月
礼金 1ヶ月
間取り 1LDK(洋6.6 LD7.3 K3.8)
現況 空室
引き渡し 即時
定期借家 3年
設備 バリアフリー/分譲賃貸/独立型キッチン/ガスコンロ/バス・トイレ別/追い炊き機能/浴室乾燥機/床暖房/室内洗濯機/クローゼット/エアコン/シューズ・ボックス/ディスポーザー/食洗機
募集中 | 賃貸未入居 | 家賃 | 階層 | 間取 | 面積 | 向 | お問い合せ |
| 50万円 | 16階 | 1LDK | 56.38㎡ | 北 | |||
| 未入居 お問い合せ お気に入り 詳細表示 | |||||||
このお部屋の詳細情報
管理費 50,000円
その他月額費 0円
月額合計金額 550,000円
間取り 1LDK(洋7.6 LD9.0 K3.1)
現況 空室
引き渡し 即時
定期借家 4年
設備 バリアフリー/分譲賃貸/独立型キッチン/ガスコンロ/バス・トイレ別/追い炊き機能/浴室乾燥機/床暖房/室内洗濯機/クローゼット/エアコン/シューズ・ボックス/ディスポーザー/食洗機
募集中 | 賃貸未入居 | 家賃 | 階層 | 間取 | 面積 | 向 | お問い合せ |
| 50万円 | 7階 | 1LDK | 52.36㎡ | 西 | |||
| 未入居 お問い合せ お気に入り 詳細表示 | |||||||
このお部屋の詳細情報
管理費 20,000円
その他月額費 0円
月額合計金額 520,000円
敷金 1ヶ月
礼金 2ヶ月
間取り 1LDK(洋6.7 LD8.5 K2.9)
現況 空室
引き渡し 即時
普通借家 2年
設備 バリアフリー/分譲賃貸/独立型キッチン/ガスコンロ/バス・トイレ別/追い炊き機能/浴室乾燥機/床暖房/室内洗濯機/クローゼット/エアコン/シューズ・ボックス/ディスポーザー/食洗機
募集中 | 賃貸未入居ペット | 家賃 | 階層 | 間取 | 面積 | 向 | お問い合せ |
| 57万円 | 5階 | 2LDK | 70.31㎡ | 西 | |||
| 未入居ペット お問い合せ お気に入り 詳細表示 | |||||||
このお部屋の詳細情報
管理費 50,000円
その他月額費 0円
月額合計金額 620,000円
礼金 3ヶ月
間取り 2LDK(洋7.9 洋6.0 LD9.0 K3.3)
現況 空室
引き渡し 即時
普通借家 2年
設備 バリアフリー/分譲賃貸/独立型キッチン/ガスコンロ/バス・トイレ別/追い炊き機能/浴室乾燥機/床暖房/室内洗濯機/クローゼット/エアコン/シューズ・ボックス/ディスポーザー/食洗機
募集中 | 賃貸未入居ペット | 家賃 | 階層 | 間取 | 面積 | 向 | お問い合せ |
| 60万円 | 35階 | 1LDK | 49.72㎡ | 東 | |||
| 未入居ペット お問い合せ お気に入り 詳細表示 | |||||||
このお部屋の詳細情報
管理費 20,000円
その他月額費 0円
月額合計金額 620,000円
敷金 1ヶ月
礼金 1ヶ月
間取り 1LDK(洋6.2 LD6.6 K3.6)
現況 空室
引き渡し 即時
普通借家 2年
設備 眺望良好/バリアフリー/分譲賃貸/独立型キッチン/ガスコンロ/バス・トイレ別/追い炊き機能/浴室乾燥機/床暖房/室内洗濯機/クローゼット/エアコン/シューズ・ボックス/ディスポーザー/食洗機/禁煙
募集中 | 賃貸未入居 | 家賃 | 階層 | 間取 | 面積 | 向 | お問い合せ |
| 75万円 | 35階 | 1LDK | 70.8㎡ | 東 | |||
| 未入居 お問い合せ お気に入り 詳細表示 | |||||||
このお部屋の詳細情報
管理費 0円
その他月額費 0円
月額合計金額 750,000円
敷金 1ヶ月
礼金 2ヶ月
間取り 1LDK(洋10.4 LD12.0 K4.7)
現況 空室
引き渡し 即時
普通借家 2年
設備 眺望良好/バリアフリー/分譲賃貸/独立型キッチン/ガスコンロ/バス・トイレ別/追い炊き機能/浴室乾燥機/床暖房/室内洗濯機/ウォークインクローゼット/エアコン/シューズインクローゼット/ディスポーザー/食洗機
募集中 | 賃貸未入居 | 家賃 | 階層 | 間取 | 面積 | 向 | お問い合せ |
| 77万円 | 24階 | 2LDK | 79.66㎡ | 西 | |||
| 未入居 お問い合せ お気に入り 詳細表示 | |||||||
このお部屋の詳細情報
管理費 0円
その他月額費 0円
月額合計金額 770,000円
敷金 1ヶ月
礼金 2ヶ月
間取り 2LDK(洋8.9 洋5.8 LD12.0 K3.8)
現況 空室
引き渡し 即時
普通借家 2年
設備 眺望良好/バリアフリー/分譲賃貸/独立型キッチン/ガスコンロ/バス・トイレ別/追い炊き機能/浴室乾燥機/床暖房/室内洗濯機/クローゼット/ウォークインクローゼット/エアコン/シューズ・ボックス/ディスポーザー/食洗機
募集中 | 賃貸未入居ペット | 家賃 | 階層 | 間取 | 面積 | 向 | お問い合せ |
| 80万円 | 36階 | 1SLDK | 83.03㎡ | 北 | |||
| 未入居ペット お問い合せ お気に入り 詳細表示 | |||||||
このお部屋の詳細情報
管理費 50,000円
その他月額費 0円
月額合計金額 850,000円
敷金 1ヶ月
礼金 2ヶ月
間取り 1SLDK(洋14.5 S1.4 LD14.6 K)
現況 空室
引き渡し 即時
定期借家 5年
設備 眺望良好/バリアフリー/分譲賃貸/独立型キッチン/ガスコンロ/バス・トイレ別/追い炊き機能/浴室乾燥機/床暖房/室内洗濯機/クローゼット/エアコン/シューズ・ボックス/ディスポーザー/食洗機
募集中 | 賃貸未入居 | 家賃 | 階層 | 間取 | 面積 | 向 | お問い合せ |
| 90万円 | 27階 | 1LDK | 73.25㎡ | 北 | |||
| 未入居 お問い合せ お気に入り 詳細表示 | |||||||
このお部屋の詳細情報
管理費 0円
その他月額費 0円
月額合計金額 900,000円
敷金 1ヶ月
礼金 2ヶ月
間取り 1LDK(洋9.0 LD14.4 K4.6)
現況 空室
引き渡し 即時
普通借家 2年
設備 眺望良好/バリアフリー/分譲賃貸/独立型キッチン/ガスコンロ/バス・トイレ別/追い炊き機能/浴室乾燥機/床暖房/室内洗濯機/ウォークインクローゼット/エアコン/シューズ・ボックス/ディスポーザー/食洗機/禁煙
募集中 | 賃貸未入居ペット | 家賃 | 階層 | 間取 | 面積 | 向 | お問い合せ |
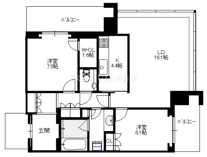
| 120万円 | 16階 | 2LDK | 80.03㎡ | 北西 | |||
| 未入居ペット お問い合せ お気に入り 詳細表示 | |||||||
このお部屋の詳細情報
管理費 100,000円
その他月額費 0円
月額合計金額 1,300,000円
敷金 1ヶ月
礼金 2ヶ月
間取り 2LDK(洋7.5 洋6.1 LD16.1 K4.4)
現況 空室
引き渡し 即時
普通借家 2年
設備 バリアフリー/分譲賃貸/独立型キッチン/ガスコンロ/バス・トイレ別/追い炊き機能/浴室乾燥機/床暖房/室内洗濯機/クローゼット/ウォークインクローゼット/エアコン/シューズ・ボックス/2面以上バルコニー/ディスポーザー/食洗機/角部屋/LDK20帖以上
参考賃貸家賃相場
家賃(月額) 348,000円~2,800,000円(平均家賃755,791円)
平米単価 6,646円/㎡~18,097円/㎡(平均単価10,362円/㎡)
グラングリーン大阪 THE NORTH RESIDENCEの掲載中の物件情報を元にした参考情報です
このお部屋の短縮URL:https://www.tower.ne.jp/rm/29959/
























































































































































































































































































































































































