2023年に西松建設施工する地上25階建て総戸数179戸、免震構造タワーレジデンス
目次
シティタワー天王寺の物件写真
お部屋情報
このお部屋の情報は会員限定で公開させていただいております。
シティタワー天王寺の概要・物件情報
基本情報
- 所在地
- 📍大阪市天王寺区茶臼山町 [地図表示]
- 交通
- 🚉大阪メトロ御堂筋線 天王寺駅まで徒歩3分
🚉大阪環状線 天王寺駅まで徒歩4分 - 築年月
- 🎂2023年4月
- 構造等
- 鉄筋コン/地上25階建
- 総戸数
- 179戸
- 管理方式
- 通勤(日勤)
- 用途地域
- 商業地域
- 建ぺい率
- 100%
- 建ぺい率
- 600%
- 土地権利
- 所有権
- 地勢
- 平坦
- 国土法届出
- 不要
シティタワー天王寺
「シティタワー天王寺」に住みたいお客様(購入・賃貸)、住替え等にて売却を検討や賃料条件から部屋付け家賃管理等ご検討の所有者(オーナー様)の方、大阪市内の中古タワーマンション専門のプレミアム不動産へお気軽にご相談ください。
天王寺公園、 慶沢園、 大阪市立美術館、 天王寺動物園のある、
住友家縁の地に 179邸の25階建て タワーマンションが誕生。
純日本風の庭園として知られる慶沢園は、京都から住友家がこの地に移った際、約10年をかけて本邸(茶臼山邸)とともに造園した庭です。
この庭園の設計・施工を担当したのは、当時の高名な庭師であった「植治」こと小川治兵衛。 治兵衛は山縣有朋の無鄰菴を手掛けて以来、京都を中心に活躍し、日本の近代造園史に大きな足跡を残しました。 その作品の多くは、国や京都市の名勝などに指定されています。 1925年(大正14年)に住友家本邸が神戸に移転したことで、慶沢園に隣接する旧本邸敷地(現・大阪市美術館)は、茶臼山邸とともに大阪市へ寄贈されました。 その後約100年の年月を経て、住友家縁の地に、住友不動産によって 25階建てタワー(総戸数179戸)が誕生します。 天王寺の都市と自然の最前列に位置する「シティタワー天王寺」。 Osaka Metro御堂筋線「天王寺」駅徒歩5分圏物件としては、実に10年ぶりとなります。
◆共用施設◆
2階:パーティルーム(集会室)
3階:テレワークラウンジ
◆駐車場◆
71台(外部横行昇降縦列式:61台、内部横行昇降縦列式:10台)
月額/20,000円~30,000円
◆バイク置場◆
バイク4台
月額/5,000円
ミニバイク32台
月額/4,000円
◆自転車置場◆
358台(平置き:108台、2段式:245台(下段スライド:156台、上段スライド89台)スライド式:5台)
月額/300円~3,500円
※管理組合に最新空車確認ならびに実際に駐車してご確認ください。
共用設備
- 主要
免震構造 タワー型 オートロック エレベータ 宅配ボックス パーティールーム
駐車場・駐輪場
この物件のメリット・デメリット
メリット
- ダイナミックパノラマウインドウ、天井高2,580㎜~2,600㎜となっており、室内空間はとても広く開放的です
デメリット
- 谷町筋に面する立地にて、東側は騒音が気になるかもしれません
分譲・中古・売り物件一覧
TODAY
本日更新
NEW
新着(7日以内)
| 売買 |
売出中 |
売買ペット | 価格 | 階層 | 間取 | 面積 | 向 | お問い合せ |
| 9,980万円 | 18階 | 2LDK | 57.28㎡ | 南 | |||
| ペット お問い合せ お気に入り 詳細表示 | |||||||
このお部屋の詳細情報
管理費 17,495円
修繕積立金 8,720円
月額合計金額 26,215円
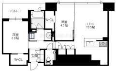
間取り 2LDK(洋6.1 洋4.5 LDK13.1)
現況 居住中
引き渡し 募集中
設備 バリアフリー/対面式キッチン/ガスコンロ/バス・トイレ別/追い炊き機能/浴室乾燥機/床暖房/室内洗濯機/クローゼット/ウォークインクローゼット/エアコン/シューズインクローゼット/ディスポーザー/食洗機
| 売買 |
| 売買 |
参考売買相場価格
価格 7,780万円~25,800万円(平均価格14,268万円)
平米単価 141万円/㎡~270万円/㎡(平均単価196万円/㎡)
シティタワー天王寺の掲載中の物件情報を元にした参考情報です
空室・賃貸物件一覧
TODAY
本日更新
NEW
新着(7日以内)
現在、シティタワー天王寺の募集中空室がございません。
このお部屋の短縮URL:https://www.tower.ne.jp/rm/28763/






