竹中工務店施工の2023年11月竣工する地上43階建て総戸数302戸、超高層タワーマンション
❤️4名の方がこの物件を気に入っています
目次
ブランズタワー大阪本町の物件写真
借りたい・買いたい
タワーマンションを「借りたい方・買いたい方」、「売却査定・賃料査定」など何でもお気軽にお問い合わせください。
ブランズタワー大阪本町の概要・物件情報
基本情報
- 所在地
- 📍大阪市中央区南本町2丁目 [地図表示]
- 交通
- 🚉大阪メトロ堺筋線 堺筋本町駅まで徒歩3分
🚉大阪メトロ御堂筋線 本町駅まで徒歩4分 - 築年月
- 🎂2023年11月
- 構造等
- 鉄筋コン/地上43階建
- 総戸数
- 302戸
- 管理方式
- 通勤(日勤)
- 用途地域
- 商業地域
- 建ぺい率
- 80%
- 建ぺい率
- 800%
- 土地権利
- 所有権
- 地勢
- 平坦
- 国土法届出
- 不要
ブランズタワー大阪本町
「ブランズタワー大阪本町」に住みたいお客様(購入・賃貸)、住替え等にて売却を検討や賃料条件から部屋付け家賃管理等ご検討の所有者(オーナー様)の方、大阪市内の中古タワーマンション専門のプレミアム不動産へお気軽にご相談ください。
大阪都心「本町」に地上43階建てタワーマンションが誕生
東急不動産・大和ハウス工業・住友商事・コスモスイニシアが英知を結集、竹中工務店が施工
大阪を照らす天空のテラス"AMA TERRACE" 42階(最上階)にCOMMON SPACE(スカイラウンジなど)をはじめとする数々の共用空間を演出します
◆共用施設◆
5階:フィットネスルーム
42階:コミュニティフロア(カフェ&バーカウンター・スカイラウンジ・フォーカスルーム&ミーティングルーム・ゲストルーム・スカイテラス)
◆駐車場◆
124台(タワーパーキング)
月額使用料:30,000円~35,000円
◆バイク置場◆
バイク(7台)
月額使用料:2,000円
ミニバイク(54台)
月額使用料:1,500円
◆自転車置場◆
604台
月額使用料:200円~600円
※管理組合に最新空車確認ならびに実際に駐車してご確認ください。
共用設備
- 主要
制震構造 タワー型 オートロック エレベータ 宅配ボックス ゲストルーム ジム スカイラウンジ コミュニティルーム パーティールーム
駐車場・駐輪場
この物件のメリット・デメリット
メリット
- 中央大通と本町通の中間にて、騒音は大丈夫そう
デメリット
- 南側にはサンマリオンNBFタワー(地上21階建て)があり、30階以上なら眺望が望めそう
ブランズタワー大阪本町のよくある質問
借りたい・買いたい
タワーマンションを「借りたい方・買いたい方」、「売却査定・賃料査定」など何でもお気軽にお問い合わせください。
分譲・中古・売り物件一覧
TODAY
本日更新
NEW
新着(7日以内)
売出中 |
売買ペット | 価格 | 階層 | 間取 | 面積 | 向 | お問い合せ |
| 13,980万円 | 13階 | 3LDK | 77.9㎡ | 南東 | |||
| ペット お問い合せ お気に入り 詳細表示 | |||||||
このお部屋の詳細情報
管理費 21,400円
修繕積立金 12,460円
その他月額費 1,628円
月額合計金額 35,488円
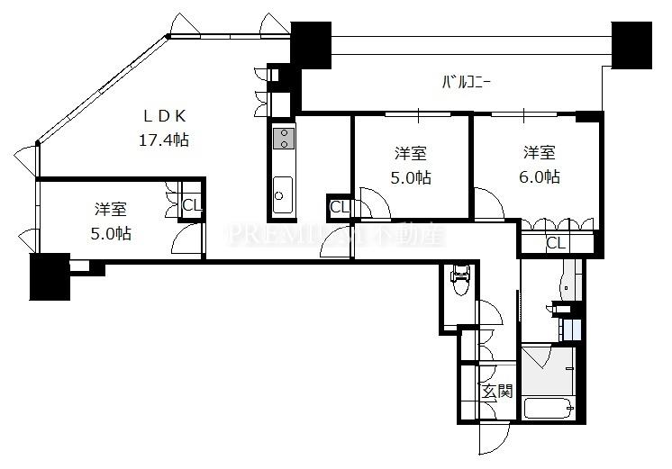
間取り 3LDK(洋6.0 洋5.0 洋5.0 LDK17.4)
現況 空室
引き渡し 募集中
設備 バリアフリー/バス・トイレ別/追い炊き機能/浴室乾燥機/床暖房/室内洗濯機/クローゼット/シューズ・ボックス/ディスポーザー/食洗機/角部屋
売出中 |
売買ペット | 価格 | 階層 | 間取 | 面積 | 向 | お問い合せ |
| 63,800万円 | 40階 | 3LDK | 155.83㎡ | 南東 | |||
| ペット お問い合せ お気に入り 詳細表示 | |||||||
このお部屋の詳細情報
管理費 42,900円
修繕積立金 24,930円
その他月額費 1,628円
月額合計金額 69,458円
間取り 3LDK(洋11.1 洋8.0 洋7.4 LDK34.7)
現況 空室
引き渡し 募集中
設備 眺望良好/バリアフリー/L字型キッチン/ガスコンロ/バス・トイレ別/追い炊き機能/浴室乾燥機/床暖房/室内洗濯機/クローゼット/ウォークインクローゼット/エアコン/シューズインクローゼット/ディスポーザー/食洗機/角部屋/LDK20帖以上
| 売買 |
| 売買 |
| 売買 |
| 売買 |
売出中 |
売買ペット | 価格 | 階層 | 間取 | 面積 | 向 | お問い合せ |
| 9,380万円 | 9階 | 2LDK | 57.22㎡ | 北東 | |||
| ペット お問い合せ お気に入り 詳細表示 | |||||||
このお部屋の詳細情報
管理費 15,700円
修繕積立金 9,160円
その他月額費 1,628円
月額合計金額 26,488円
間取り 2LDK(洋6.2 洋4.0 LDK13.4)
現況 空室
引き渡し 募集中
設備 バリアフリー/対面式キッチン/ガスコンロ/バス・トイレ別/追い炊き機能/浴室乾燥機/床暖房/室内洗濯機/クローゼット/シューズ・ボックス/シューズインクローゼット/2面以上バルコニー/ディスポーザー/食洗機/角部屋
売出中 |
売買ペット | 価格 | 階層 | 間取 | 面積 | 向 | お問い合せ |
| 12,200万円 | 6階 | 2LDK | 66.77㎡ | 北西 | |||
| ペット お問い合せ お気に入り 詳細表示 | |||||||
このお部屋の詳細情報
管理費 18,400円
修繕積立金 10,680円
その他月額費 1,628円
月額合計金額 30,708円
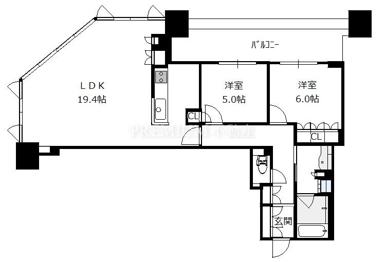
間取り 2LDK(洋6.0 洋5.0 LDK17.4)
現況 居住中
引き渡し 募集中
設備 バリアフリー/対面式キッチン/ガスコンロ/バス・トイレ別/追い炊き機能/浴室乾燥機/床暖房/室内洗濯機/クローゼット/ウォークインクローゼット/シューズ・ボックス/2面以上バルコニー/ディスポーザー/食洗機/角部屋
売出中 |
売買ペット | 価格 | 階層 | 間取 | 面積 | 向 | お問い合せ |
| 13,800万円 | 19階 | 1LDK | 77.61㎡ | 西 | |||
| ペット お問い合せ お気に入り 詳細表示 | |||||||
このお部屋の詳細情報
管理費 21,300円
修繕積立金 12,420円
その他月額費 1,628円
月額合計金額 35,348円
間取り 1LDK(洋4.9 LDK27.0)
現況 居住中
引き渡し 募集中
設備 眺望良好/バリアフリー/対面式キッチン/ガスコンロ/バス・トイレ別/追い炊き機能/浴室乾燥機/床暖房/室内洗濯機/クローゼット/シューズ・ボックス/ディスポーザー/食洗機/LDK20帖以上
売出中 |
売買ペット | 価格 | 階層 | 間取 | 面積 | 向 | お問い合せ |
| 13,900万円 | 25階 | 3LDK | 77.61㎡ | 西 | |||
| ペット お問い合せ お気に入り 詳細表示 | |||||||
このお部屋の詳細情報
管理費 21,300円
修繕積立金 12,420円
その他月額費 1,628円
月額合計金額 35,348円
間取り 3LDK(洋6.2 洋4.9 洋4.8 LDK16.0)
現況 空室
引き渡し 募集中
設備 眺望良好/バリアフリー/対面式キッチン/ガスコンロ/バス・トイレ別/追い炊き機能/浴室乾燥機/床暖房/室内洗濯機/クローゼット/ウォークインクローゼット/シューズ・ボックス/ディスポーザー/食洗機
| 売買 |
売出中 |
オーナーチェンジ | 価格 | 階層 | 間取 | 面積 | 向 | お問い合せ |
| 12,500万円 利回り 3.45% | 6階 | 2LDK | 77.9㎡ | 南東 | |||
| お問い合せ お気に入り 詳細表示 | |||||||
このお部屋の詳細情報
管理費 21,400円
修繕積立金 12,460円
その他月額費 1,628円
月額合計金額 35,488円
間取り 2LDK(洋6.0 洋5.0 LDK22.8)
現況 賃貸中
引き渡し 募集中
設備 バリアフリー/独立型キッチン/ガスコンロ/バス・トイレ別/追い炊き機能/浴室乾燥機/床暖房/室内洗濯機/クローゼット/シューズ・ボックス/ディスポーザー/食洗機/角部屋/LDK20帖以上
現行利回り 3.45%
参考売買相場価格
価格 6,680万円~69,800万円(平均価格22,401万円)
平米単価 158万円/㎡~448万円/㎡(平均単価227万円/㎡)
ブランズタワー大阪本町の掲載中の物件情報を元にした参考情報です
お手軽簡単売却価格査定
プレミアム不動産のAI売却価格査定では約20秒程度の入力で瞬時にご指定のタワーマンションの売却価格相場を調べることが出来ます。登録や個人情報の入力も不要ですので個人情報やしつこい営業の心配もなく安心してお使い頂けます。
空室・賃貸物件一覧
TODAY
本日更新
NEW
新着(7日以内)
参考賃貸家賃相場
家賃(月額) 320,000円~320,000円(平均家賃320,000円)
平米単価 4,416円/㎡~4,416円/㎡(平均単価4,415円/㎡)
ブランズタワー大阪本町の掲載中の物件情報を元にした参考情報です
この建物の短縮URL:https://www.tower.ne.jp/bl/230/
























