長谷工コーポレーションが施工した1994年に竣工した地上21階建てタワーレジデンス
目次
ベイシティ大阪センタープラザの物件写真
お部屋情報
2026/04/25 180万円値下いたしました!
このお部屋の情報は会員限定で公開させていただいております。
ベイシティ大阪センタープラザの概要・物件情報
基本情報
- 所在地
- 📍大阪市港区池島3丁目 [地図表示]
- 交通
- 🚉大阪メトロ中央線 朝潮橋駅まで徒歩12分
🚉大阪メトロ中央線 大阪港駅まで徒歩20分 - 築年月
- 🎂1994年2月
- 構造等
- 鉄骨鉄筋/地上21階建
- 総戸数
- 227戸
- 管理方式
- 通勤(日勤)
- 用途地域
- 第二種中高層住居専用地域
- 建ぺい率
- 60%
- 建ぺい率
- 200%
- 土地権利
- 所有権
- 地勢
- 平坦
- 国土法届出
- 不要
ベイシティ大阪センタープラザ
「ベイシティ大阪センタープラザ」に住みたいお客様(購入・賃貸)、住替え等にて売却を検討や賃料条件から部屋付け家賃管理等ご検討の所有者(オーナー様)の方、大阪市内の中古タワーマンション専門のプレミアム不動産へお気軽にご相談ください。
総戸数227戸の大型タワーマンション「ベイシティ大阪センタープラザ」。
建物自体がカーブを描いたような外観で、特徴的なのが「ベイシティ大阪センタープラザ」。
海遊館の観覧車が見渡せるお部屋もあり、とても開放的な眺望です。
地下鉄中央線「朝潮橋」駅より徒歩8分の立地で、駅の周りにはコンビニや飲食店も多くあります。
駅を降りてすぐの場所には、広大な敷地の「八幡屋公園」や各スポーツの試合が行われる「大阪市中央体育館」や「大阪プール」があり、大阪プールは、冬になるとアイススケートを楽しむことができます。その他、さまざまなイベントも開催されています。
マンションの周りは、生活に欠かせないスーパーや賑わいのある商店街、小学校などの教育施設、飲食店などがあり、日常生活は便利です。
また、徒歩圏内には大阪の観光名所とも言える水族館「海遊館」が近くにあるのも、魅力の一つです。
マンション近くから、阪神高速に直ぐに乗ることができ、神戸や、大阪府内へも気軽に移動することができます。
間取り帯も幅広く、一般的な3LDKからメゾネットタイプの180?越えまでさまざまです。
◆駐車場◆
350台(立体式)
月/15,000円〜24,000円
◆バイク置場◆
73台(平面式)
月/1,000円〜1,500円
◆駐輪場◆
1015台(ラック式)
月/50円〜300円
※管理組合に最新空車確認ならびに実際に駐車してご確認ください。
共用設備
- 主要
タワー型 オートロック エレベータ
駐車場・駐輪場
この物件のメリット・デメリット
メリット
- ベイシティ大阪ウエストアベニュー・ベイシティ大阪センタープラザ・ベイシティ大阪イーストアベニューと総住戸数435戸の大規模マンションです
デメリット
- 港区の住宅街にあり市内中心部へのアクセスが遠い
分譲・中古・売り物件一覧
TODAY
本日更新
NEW
新着(7日以内)
| 売買 |
売出中 |
売買ペット | 価格 | 階層 | 間取 | 面積 | 向 | お問い合せ |
| 3,200万円 | 6階 | 3LDK | 93.82㎡ | 南西 | |||
| ペット お問い合せ お気に入り 詳細表示 | |||||||
このお部屋の詳細情報
管理費 19,700円
修繕積立金 17,730円
その他月額費 300円
月額合計金額 37,730円
間取り 3LDK(洋9.7 洋7.5 洋6.0 LDK17.8)
現況 居住中
引き渡し 募集中
設備 対面式キッチン/ガスコンロ/バス・トイレ別/追い炊き機能/浴室乾燥機/室内洗濯機/クローゼット/ウォークインクローゼット/シューズ・ボックス/角部屋
売出中 |
売買ペット | 価格 | 階層 | 間取 | 面積 | 向 | お問い合せ |
| 2,480万円 | 5階 | 3LDK | 76.06㎡ | 南東 | |||
| ペット お問い合せ お気に入り 詳細表示 | |||||||
このお部屋の詳細情報
管理費 15,970円
修繕積立金 15,970円
その他月額費 300円
月額合計金額 32,240円
間取り 3LDK(洋6.7 洋5.2 和6.0 LDK15.3)
現況 空室
引き渡し 募集中
設備 対面式キッチン/IHクッキングヒーター/バス・トイレ別/追い炊き機能/浴室乾燥機/室内洗濯機/クローゼット/ウォークインクローゼット/エアコン
売出中 |
売買ペット | 価格 | 階層 | 間取 | 面積 | 向 | お問い合せ |
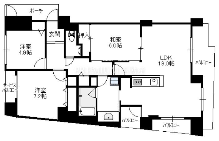
| 2,980万円 | 8階 | 3LDK | 89.33㎡ | 北西 | |||
| ペット お問い合せ お気に入り 詳細表示 | |||||||
このお部屋の詳細情報
管理費 18,760円
修繕積立金 18,760円
その他月額費 300円
月額合計金額 37,820円
間取り 3LDK(洋7.2 洋4.9 和6.0 LDK19.0)
現況 空室
引き渡し 募集中
設備 対面式キッチン/バス・トイレ別/追い炊き機能/浴室乾燥機/室内洗濯機/クローゼット/2面以上バルコニー/角部屋
売出中 |
売買ペット | 価格 | 階層 | 間取 | 面積 | 向 | お問い合せ |
| 3,150万円 | 17階 | 3LDK | 93.82㎡ | 南西 | |||
| ペット お問い合せ お気に入り 詳細表示 | |||||||
このお部屋の詳細情報
管理費 19,700円
修繕積立金 19,700円
その他月額費 300円
月額合計金額 39,700円
間取り 3LDK(洋7.5 洋6.0 和6.0 LDK17.8)
現況 居住中
引き渡し 募集中
設備 対面式キッチン/IHクッキングヒーター/バス・トイレ別/追い炊き機能/浴室乾燥機/室内洗濯機/クローゼット/ウォークインクローゼット/シューズ・ボックス
売出中 |
売買ペット | 価格 | 階層 | 間取 | 面積 | 向 | お問い合せ |
| 3,390万円 | 8階 | 3LDK | 92.67㎡ | 南西 | |||
| ペット お問い合せ お気に入り 詳細表示 | |||||||
このお部屋の詳細情報
管理費 19,460円
修繕積立金 19,460円
その他月額費 300円
月額合計金額 39,220円
間取り 3LDK(洋6.5 洋6.0 洋5.0 LDK21.1)
現況 空室
引き渡し 募集中
設備 独立型キッチン/ガスコンロ/バス・トイレ別/追い炊き機能/浴室乾燥機/室内洗濯機/クローゼット/ウォークインクローゼット/シューズ・ボックス/LDK20帖以上
※間取り反転タイプ
| オーナーチェンジ |
参考売買相場価格
価格 1,990万円~3,390万円(平均価格2,811万円)
平米単価 25万円/㎡~37万円/㎡(平均単価31万円/㎡)
ベイシティ大阪センタープラザの掲載中の物件情報を元にした参考情報です
空室・賃貸物件一覧
TODAY
本日更新
NEW
新着(7日以内)
現在、ベイシティ大阪センタープラザの募集中空室がございません。
このお部屋の短縮URL:https://www.tower.ne.jp/rm/23026/











