2023年にリバー建設が施工する地上35階建て総戸数194戸タワーマンション
目次
リバーガーデンタワー 上町台筆ヶ崎の物件写真
借りたい・買いたい
タワーマンションを「借りたい方・買いたい方」、「売却査定・賃料査定」など何でもお気軽にお問い合わせください。
リバーガーデンタワー 上町台筆ヶ崎の概要・物件情報
基本情報
- 所在地
- 📍大阪市天王寺区筆ケ崎町 [地図表示]
- 交通
- 🚉大阪メトロ千日前線 鶴橋駅まで徒歩3分
🚉近鉄大阪線 大阪上本町駅まで徒歩11分 - 築年月
- 🎂2023年8月
- 構造等
- 鉄筋コン/地上35階建地下1階
- 総戸数
- 194戸
- 管理方式
- 通勤(日勤)
- 用途地域
- 第二種住居地域
- 建ぺい率
- 80%
- 建ぺい率
- 400%
- 土地権利
- 所有権
- 地勢
- 平坦
- 国土法届出
- 不要
リバーガーデンタワー 上町台筆ヶ崎
「リバーガーデンタワー上町台筆ヶ崎」に住みたいお客様(購入・賃貸)、住替え等にて売却を検討や賃料条件から部屋付け家賃管理等ご検討の所有者(オーナー様)の方、大阪市内の中古タワーマンション専門のプレミアム不動産へお気軽にご相談ください。
天王寺区上本町エリア13年ぶりの超高層タワーレジデンス
悠久の歴史を受け継ぎ、古の時代より護られ続ける街の姿はここに住まうことの価値を物語る。
暮らす都心にふさわしいこの街に圧倒的な緑景に抱かれた地上35階、超高層ガーデンタワー。
躍動する都市と、潤い溢れる緑と水。次代を歩むタワーレジデンスが誕生する。
平均専有面積は80㎡超、全体の約19%を100㎡超住戸に設定し、都心のゆとりある暮らしを実現します。
◆共用施設◆
2階:オーナーズラウンジ・ミーティングルーム・ワークスペース・グリーンテラス
◆駐車場◆
112台
月額使用料:25,000円~38,000円
◆バイク置場◆
バイク(5台)
月額使用料:3,000円
ミニバイク(34台)
月額使用料:2,000円
◆自転車置場◆
388台
月額使用料:100円~500円
※管理組合に最新空車確認ならびに実際に駐車してご確認ください。
共用設備
- 主要
制震構造 タワー型 オートロック エレベータ 宅配ボックス
駐車場・駐輪場
この物件のメリット・デメリット
メリット
- 1階の集合宅配BOXに加え各階に個別宅配BOXを全戸数分を設置
デメリット
- 実需を好むエリアにて不動産投資向けでないところ
リバーガーデンタワー 上町台筆ヶ崎のよくある質問
借りたい・買いたい
タワーマンションを「借りたい方・買いたい方」、「売却査定・賃料査定」など何でもお気軽にお問い合わせください。
分譲・中古・売り物件一覧
TODAY
本日更新
NEW
新着(7日以内)
売出中 |
売買ペット | 価格 | 階層 | 間取 | 面積 | 向 | お問い合せ |
| 12,500万円 | 18階 | 2LDK | 85.01㎡ | 南東 | |||
| ペット お問い合せ お気に入り 詳細表示 | |||||||
このお部屋の詳細情報
管理費 8,400円
修繕積立金 9,350円
月額合計金額 17,750円
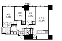
間取り 2LDK(洋7.0 洋5.0 LDK28.8)
現況 居住中
引き渡し 募集中
設備 バリアフリー/対面式キッチン/バス・トイレ別/追い炊き機能/浴室乾燥機/床暖房/室内洗濯機/クローゼット/ウォークインクローゼット/シューズインクローゼット/2面以上バルコニー/ディスポーザー/食洗機/角部屋/LDK20帖以上
| 売買 |
売出中 |
売買ペット | 価格 | 階層 | 間取 | 面積 | 向 | お問い合せ |
| 9,580万円 | 27階 | 3LDK | 72.92㎡ | 東 | |||
| ペット お問い合せ お気に入り 詳細表示 | |||||||
このお部屋の詳細情報
管理費 7,260円
修繕積立金 8,020円
月額合計金額 15,280円
間取り 3LDK(洋7.0 洋5.0 洋5.0 LDK16.1)
現況 空室
引き渡し 募集中
設備 眺望良好/バリアフリー/対面式キッチン/ガスコンロ/バス・トイレ別/追い炊き機能/浴室乾燥機/床暖房/室内洗濯機/クローゼット/シューズ・ボックス/ディスポーザー/食洗機
売出中 |
売買ペット | 価格 | 階層 | 間取 | 面積 | 向 | お問い合せ |
| 9,280万円 | 17階 | 3LDK | 67.47㎡ | 南 | |||
| ペット お問い合せ お気に入り 詳細表示 | |||||||
このお部屋の詳細情報
管理費 6,750円
修繕積立金 7,420円
月額合計金額 14,170円
間取り 3LDK(洋6.0 洋5.0 洋4.0 LDK18.1)
現況 居住中
引き渡し 募集中
設備 バリアフリー/独立型キッチン/バス・トイレ別/追い炊き機能/浴室乾燥機/床暖房/室内洗濯機/クローゼット/シューズ・ボックス/ディスポーザー/食洗機
売出中 |
売買ペット | 価格 | 階層 | 間取 | 面積 | 向 | お問い合せ |
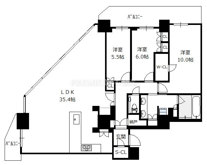
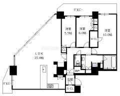
| 22,000万円 | 33階 | 3LDK | 115.5㎡ | 南西 | |||
| ペット お問い合せ お気に入り 詳細表示 | |||||||
このお部屋の詳細情報
管理費 11,260円
修繕積立金 12,710円
月額合計金額 23,970円
間取り 3LDK(洋10.0 洋6.0 洋5.5 LDK35.4)
現況 空室
引き渡し 募集中
設備 眺望良好/バリアフリー/L字型キッチン/ガスコンロ/バス・トイレ別/追い炊き機能/浴室乾燥機/床暖房/室内洗濯機/クローゼット/ウォークインクローゼット/シューズインクローゼット/ディスポーザー/食洗機/角部屋/LDK20帖以上
売出中 |
売買ペット | 価格 | 階層 | 間取 | 面積 | 向 | お問い合せ |
| 9,580万円 | 26階 | 3LDK | 72.92㎡ | 東 | |||
| ペット お問い合せ お気に入り 詳細表示 | |||||||
このお部屋の詳細情報
管理費 7,260円
修繕積立金 7,960円
月額合計金額 15,220円
間取り 3LDK(洋7.0 洋5.0 洋5.0 LDK16.1)
現況 居住中
引き渡し 募集中
設備 眺望良好/バリアフリー/対面式キッチン/ガスコンロ/バス・トイレ別/追い炊き機能/浴室乾燥機/床暖房/室内洗濯機/クローゼット/シューズ・ボックス/ディスポーザー/食洗機
売出中 |
売買ペット | 価格 | 階層 | 間取 | 面積 | 向 | お問い合せ |
| 12,000万円 | 32階 | 3LDK | 74.09㎡ | 北西 | |||
| ペット お問い合せ お気に入り 詳細表示 | |||||||
このお部屋の詳細情報
管理費 7,370円
修繕積立金 8,150円
月額合計金額 15,520円
間取り 3LDK(洋6.0 洋5.0 洋5.0 LDK17.5)
現況 空室
引き渡し 募集中
設備 眺望良好/バリアフリー/ガスコンロ/バス・トイレ別/追い炊き機能/浴室乾燥機/床暖房/室内洗濯機/クローゼット/ウォークインクローゼット/エアコン/シューズインクローゼット/ディスポーザー/食洗機/角部屋
売出中 |
売買ペット | 価格 | 階層 | 間取 | 面積 | 向 | お問い合せ |
| 12,000万円 | 28階 | 3LDK | 74.09㎡ | 北西 | |||
| ペット お問い合せ お気に入り 詳細表示 | |||||||
このお部屋の詳細情報
管理費 7,370円
修繕積立金 8,150円
月額合計金額 15,520円
間取り 3LDK(洋6.0 洋5.0 洋5.0 LDK17.5)
現況 空室
引き渡し 募集中
設備 眺望良好/バリアフリー/ガスコンロ/バス・トイレ別/追い炊き機能/浴室乾燥機/床暖房/室内洗濯機/クローゼット/ウォークインクローゼット/シューズインクローゼット/ディスポーザー/食洗機/角部屋
売出中 |
オーナーチェンジ | 価格 | 階層 | 間取 | 面積 | 向 | お問い合せ |
| 11,800万円 利回り 3.71% | 14階 | 3LDK | 87.29㎡ | 南西 | |||
| お問い合せ お気に入り 詳細表示 | |||||||
このお部屋の詳細情報
管理費 8,610円
修繕積立金 9,600円
月額合計金額 18,210円
間取り 3LDK(洋7.0 洋5.0 洋5.0 LDK24.3)
現況 賃貸中
引き渡し 募集中
設備 バリアフリー/独立型キッチン/バス・トイレ別/追い炊き機能/浴室乾燥機/床暖房/室内洗濯機/クローゼット/ウォークインクローゼット/シューズインクローゼット/ディスポーザー/食洗機/角部屋/LDK20帖以上
現行利回り 3.71%
売出中 |
オーナーチェンジ | 価格 | 階層 | 間取 | 面積 | 向 | お問い合せ |
| 12,000万円 利回り 3.75% | 19階 | 2LDK | 85.01㎡ | 南東 | |||
| お問い合せ お気に入り 詳細表示 | |||||||
このお部屋の詳細情報
管理費 8,400円
修繕積立金 9,350円
月額合計金額 17,750円
間取り 2LDK(洋7.0 洋5.0 LDK28.8)
現況 賃貸中
引き渡し 募集中
設備 バリアフリー/対面式キッチン/バス・トイレ別/追い炊き機能/浴室乾燥機/床暖房/室内洗濯機/クローゼット/ウォークインクローゼット/シューズインクローゼット/2面以上バルコニー/ディスポーザー/食洗機/角部屋/LDK20帖以上
現行利回り 3.75%
売出中 |
オーナーチェンジ | 価格 | 階層 | 間取 | 面積 | 向 | お問い合せ |
| 13,300万円 利回り 4.1% | 16階 | 3LDK | 100.77㎡ | 南東 | |||
| お問い合せ お気に入り 詳細表示 | |||||||
このお部屋の詳細情報
管理費 9,880円
修繕積立金 11,080円
月額合計金額 20,960円
間取り 3LDK(洋7.6 洋5.4 洋5.0 LDK29.7)
現況 賃貸中
引き渡し 募集中
設備 バリアフリー/対面式キッチン/バス・トイレ別/追い炊き機能/浴室乾燥機/床暖房/室内洗濯機/クローゼット/ウォークインクローゼット/シューズインクローゼット/ディスポーザー/食洗機/角部屋/LDK20帖以上
現行利回り 4.1%
売出中 |
オーナーチェンジ | 価格 | 階層 | 間取 | 面積 | 向 | お問い合せ |
| 10,800万円 利回り 2.4% | 18階 | 3LDK | 72.38㎡ | 北東 | |||
| お問い合せ お気に入り 詳細表示 | |||||||
このお部屋の詳細情報
管理費 7,210円
修繕積立金 7,960円
月額合計金額 15,170円
間取り 3LDK(洋6.0 洋5.5 洋5.5 LDK20.7)
現況 賃貸中
引き渡し 募集中
設備 バリアフリー/独立型キッチン/ガスコンロ/バス・トイレ別/追い炊き機能/浴室乾燥機/床暖房/室内洗濯機/クローゼット/シューズ・ボックス/2面以上バルコニー/ディスポーザー/食洗機/角部屋/LDK20帖以上
現行利回り 2.4%
参考売買相場価格
価格 8,580万円~22,000万円(平均価格11,951万円)
平米単価 118万円/㎡~190万円/㎡(平均単価144万円/㎡)
リバーガーデンタワー 上町台筆ヶ崎の掲載中の物件情報を元にした参考情報です
お手軽簡単売却価格査定
プレミアム不動産のAI売却価格査定では約20秒程度の入力で瞬時にご指定のタワーマンションの売却価格相場を調べることが出来ます。登録や個人情報の入力も不要ですので個人情報やしつこい営業の心配もなく安心してお使い頂けます。
空室・賃貸物件一覧
TODAY
本日更新
NEW
新着(7日以内)
現在、リバーガーデンタワー 上町台筆ヶ崎の募集中空室がございません。
この建物の短縮URL:https://www.tower.ne.jp/bl/236/





























