2019年に竣工した地上20階建て、大規模タワーレジデンス
目次
リバーガーデン福島 木漏れ日の丘 C棟D棟の物件写真
タワーマンションを「借りたい方・買いたい方」、「売却査定・賃料査定」など何でもお気軽にお問い合わせください。
リバーガーデン福島 木漏れ日の丘 C棟D棟の概要・物件情報
基本情報
- 所在地
- 📍大阪市福島区鷺洲5丁目 [地図表示]
- 交通
- 🚉阪神電鉄本線 野田駅まで徒歩7分
🚉大阪環状線 福島駅まで徒歩13分 - 築年月
- 🎂2019年9月
- 構造等
- 鉄筋コン/地上20階建
- 総戸数
- 850戸
- 管理方式
- 通勤(日勤)
- 用途地域
- 準工業地域
- 建ぺい率
- 60%
- 建ぺい率
- 300%
- 土地権利
- 所有権
- 地勢
- 平坦
- 国土法届出
- 不要
リバーガーデン福島 木漏れ日の丘 C棟D棟
「リバーガーデン福島 木漏れ日の丘 C棟D棟」に住みたいお客様(購入・賃貸)、住替え等にて売却を検討や賃料条件から部屋付け家賃管理等ご検討の所有者(オーナー様)の方、大阪市内の中古タワーマンション専門のプレミアム不動産へお気軽にご相談ください。
梅田から1.5km圏の近さで敷地面積14,998㎡、福島区最大850邸のまちづくりがいよいよ始動します。
「梅田」を生活圏に、トレンドエリアとして人気の「福島」、そして毎日のお買い物をサポートする「野田」の生活利便施設も満喫できる。
世界へ誇る大都心「大阪・梅田」へ、最寄りの阪神本線「野田」駅から1駅3分。さらにJR大阪環状線・JR東西線・地下鉄線の4線4駅が利用可能なマルチアクセス。オフィス街「本町」駅へは4分、「新大阪」駅へ6分と、ビジネスにも旅行にも、スムーズなアクセスが可能で行動半径が大きく広がります。
建物には「耐震等級2」を獲得した頑丈で安心の住まいを実現しています。
※耐震等級2は災害時の避難先に指定される一般的な学校や病院などの建物と同じくらいの強度です。
◆共用施設◆
1階:ブックラウンジ(MARUZEN & JUNKUDO)、ゲストルーム、キッズルーム兼集会室、パーティルーム兼アトリエ
◆駐車場◆
「1・2号機(北棟)」中型タワーパーキング
普通車、ハイルーフ車
「3・4号機(北棟)」タワーパーキング
普通車、ハイルーフ車
「5・6・7・8号機(南棟)」タワーパーキング
普通車、ハイルーフ車
◆バイク置場◆
バイク(35台)月/2,000円
ミニバイク(135台)月/1,000円
◆自転車置場◆
1,710台(内サイクルシェアリング用10台含む)
月/100円〜300円
※管理組合に最新空車確認ならびに実際に駐車してご確認ください。
共用設備
- 主要
タワー型 オートロック エレベータ 宅配ボックス キッズルーム コミュニティルーム コンシェルジュ パーティールーム
駐車場・駐輪場
この物件のメリット・デメリット
メリット
- 低層階でも眺望が良好なところ
デメリット
- 外廊下の構造となっております
リバーガーデン福島 木漏れ日の丘 C棟D棟のよくある質問
タワーマンションを「借りたい方・買いたい方」、「売却査定・賃料査定」など何でもお気軽にお問い合わせください。
分譲・中古・売り物件一覧
TODAY
本日更新
NEW
新着(7日以内)
売出中 |
売買ペット | 価格 | 階層 | 間取 | 面積 | 向 | お問い合せ |
| 10,000万円 | 13階 | 4SLDK | 100.98㎡ | 南西 | |||
| ペット お問い合せ お気に入り 詳細表示 | |||||||
このお部屋の詳細情報
管理費 4,890円
修繕積立金 7,474円
月額合計金額 12,364円
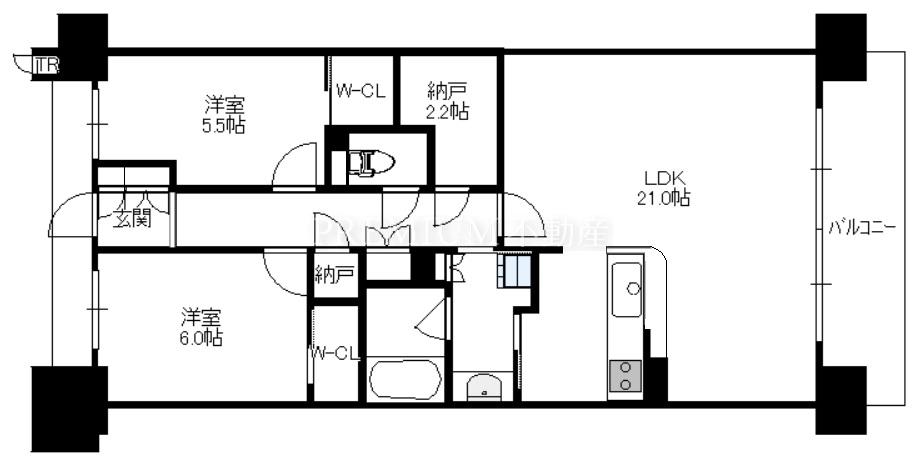
間取り 4SLDK(洋7.5 洋5.5 洋5.5 洋5.0 LDK20.0)
現況 空室
引き渡し 募集中
設備 バリアフリー/対面式キッチン/ガスコンロ/バス・トイレ別/追い炊き機能/浴室乾燥機/床暖房/室内洗濯機/クローゼット/ウォークインクローゼット/シューズインクローゼット/2面以上バルコニー/ディスポーザー/食洗機/角部屋/LDK20帖以上
| 売買 |
参考売買相場価格
価格 7,380万円~10,000万円(平均価格8,586万円)
平米単価 99万円/㎡~102万円/㎡(平均単価100万円/㎡)
リバーガーデン福島 木漏れ日の丘 C棟D棟の掲載中の物件情報を元にした参考情報です
お手軽簡単売却価格査定
プレミアム不動産のAI売却価格査定では約20秒程度の入力で瞬時にご指定のタワーマンションの売却価格相場を調べることが出来ます。登録や個人情報の入力も不要ですので個人情報やしつこい営業の心配もなく安心してお使い頂けます。
空室・賃貸物件一覧
TODAY
本日更新
NEW
新着(7日以内)
現在、リバーガーデン福島 木漏れ日の丘 C棟D棟の募集中空室がございません。
この建物の短縮URL:https://www.tower.ne.jp/bl/173/










