鹿島建設施工の2006年に竣工した地上38階建て総戸数288戸タワーマンション
❤️18名の方がこの物件を気に入っています
目次
ルネッサなんばタワーの物件写真
タワーマンションを「借りたい方・買いたい方」、「売却査定・賃料査定」など何でもお気軽にお問い合わせください。
ルネッサなんばタワーの概要・物件情報
基本情報
- 所在地
- 📍大阪市浪速区湊町2丁目 [地図表示]
- 交通
- 🚉関西本線 JR難波駅まで徒歩1分
🚉大阪メトロ四つ橋線 なんば駅まで徒歩5分 - 築年月
- 🎂2006年2月
- 構造等
- 鉄筋コン/地上38階建地下1階
- 総戸数
- 288戸
- 管理方式
- 通勤(日勤)
- 用途地域
- 商業地域
- 建ぺい率
- 80%
- 建ぺい率
- 600%
- 土地権利
- 所有権
- 地勢
- 平坦
- 国土法届出
- 不要
ルネッサなんばタワー
「ルネッサなんばタワー」に住みたいお客様(購入・賃貸)、住替え等にて売却を検討や賃料条件から部屋付け家賃管理等ご検討の所有者(オーナー様)の方、大阪市内の中古タワーマンション専門のプレミアム不動産へお気軽にご相談ください。
多彩な都市の暮らしを満喫できる魅力あふれるエリア。
「湊町リバープレイス」「OCAT」を始めとする商業施設などが充実した「ルネッサなんば」内に立地。
JR「難波」駅周辺の再開発地区「ルネッサなんば」内にそびえ立つ地上38階建の「ルネッサなんばタワー」。
パーティールーム・ゲストルーム、スカイラウンジなど充実の共用施設、各階に24時間ゴミだし可能なダストスペースを設置、不在時の荷物の受け取りに便利な宅配ボックス、エレベーターは低層階・高層階用のほかペット用のエレベータも設置。
また、天井高約8mの吹き抜けとなっているエントランスホールではキメ細かなサービスでホテルライクな暮らしをサポートするコンシェルジュサービスを受けることができ、快適な暮らしをサポートします。
物件から難波駅の地下出入口までは緑道となっており、お出かけの際は、緑と青空を眺めて清々しい気分になれます。
「なんばパークス」や「なんばシティ」「戎橋商店街」をはじめ、スーパーマーケットやコンビニなど多彩なショッピング施設が徒歩圏内に充実しています。
また、映画館や劇場など古典芸能からお笑いまで幅広いエンタテイメントが楽しめる施設も点在。
桜の名所で知られる「浪速公園」、屋上公園「パークスガーデン」など自然が楽しめるスポットもあり、都心の利便性と潤いのある暮らしが同時に得られるエリアとなっています。
◆共用施設◆
1階:コンシェルジュサービス・ロビーラウンジ
2階:パーティールーム
17階:ゲストルーム
24階:スカイラウンジ
◆駐車場◆
月/22,000円〜30,000円
普通車<低層階23,000円・高層階22,000円>
ミドルルーフ車<低層階24,000円・高層階23,000円>
ハイルーフ車<低層階25,000円・高層階:24,000円>
平面駐車場 30,000円
◆バイク置場◆
月/1,500円
◆自転車置場◆
年/1,200円、2,400円
※管理組合に最新空車確認ならびに実際に駐車してご確認ください。
共用設備
- 主要
タワー型 オートロック エレベータ 宅配ボックス ゲストルーム スカイラウンジ コミュニティルーム コンシェルジュ パーティールーム
駐車場・駐輪場
この物件のメリット・デメリット
メリット
- ルネッサなんば地区(湊町再開発)にて住環境良好です
デメリット
- 北向き、西向きは隣接建物があり眺望が高層階でないと良好でないところ
ルネッサなんばタワーのよくある質問
タワーマンションを「借りたい方・買いたい方」、「売却査定・賃料査定」など何でもお気軽にお問い合わせください。
分譲・中古・売り物件一覧
TODAY
本日更新
NEW
新着(7日以内)
売出中 |
売買ペット | 価格 | 階層 | 間取 | 面積 | 向 | お問い合せ |
| 17,500万円 | 36階 | 1SLDK | 112.65㎡ | 北西 | |||
| ペット お問い合せ お気に入り 詳細表示 | |||||||
このお部屋の詳細情報
管理費 25,270円
修繕積立金 22,430円
その他月額費 1,210円
月額合計金額 48,910円
間取り 1SLDK(和 S LDK)
現況 空室
引き渡し 募集中
設備 眺望良好/バリアフリー/対面式キッチン/IHクッキングヒーター/バス・トイレ別/追い炊き機能/浴室乾燥機/床暖房/室内洗濯機/クローゼット/エアコン/シューズ・ボックス/ディスポーザー/食洗機/角部屋/LDK20帖以上
売出中 |
売買ペット | 価格 | 階層 | 間取 | 面積 | 向 | お問い合せ |
| 9,000万円 | 11階 | 3LDK | 80.9㎡ | 北東 | |||
| ペット お問い合せ お気に入り 詳細表示 | |||||||
このお部屋の詳細情報
管理費 18,140円
修繕積立金 16,110円
その他月額費 1,210円
月額合計金額 35,460円
間取り 3LDK(洋7.3 洋5.0 和4.5 LDK16.0)
現況 空室
引き渡し 募集中
設備 バリアフリー/独立型キッチン/L字型キッチン/IHクッキングヒーター/バス・トイレ別/追い炊き機能/浴室乾燥機/床暖房/室内洗濯機/クローゼット/シューズインクローゼット/ディスポーザー/食洗機/角部屋
| 売買 |
売出中 |
売買ペット | 価格 | 階層 | 間取 | 面積 | 向 | お問い合せ |
| 19,800万円 | 38階 最上階 |
2LDK | 111.81㎡ | 東 | |||
| ペット お問い合せ お気に入り 詳細表示 | |||||||
このお部屋の詳細情報
管理費 25,090円
修繕積立金 22,240円
その他月額費 31,210円
月額合計金額 78,540円
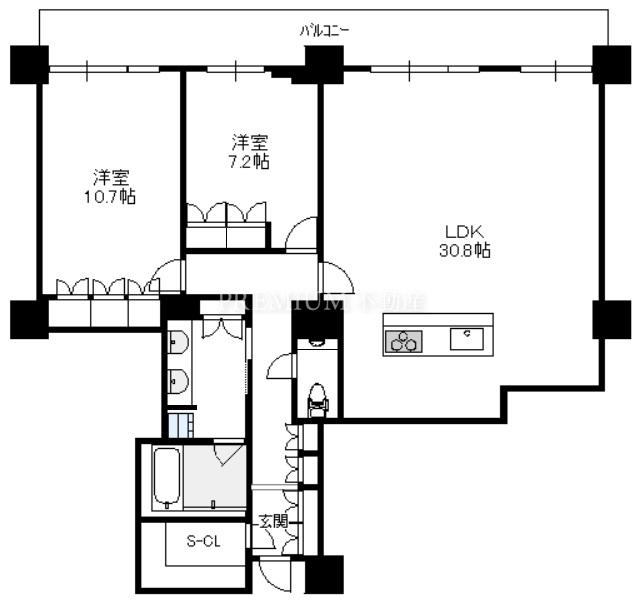
間取り 2LDK(洋10.7 洋7.2 LDK30.8)
現況 空室
引き渡し 募集中
設備 眺望良好/バリアフリー/アイランドキッチン/IHクッキングヒーター/バス・トイレ別/追い炊き機能/浴室乾燥機/床暖房/室内洗濯機/クローゼット/エアコン/シューズ・ボックス/シューズインクローゼット/ディスポーザー/食洗機/LDK20帖以上
参考売買相場価格
価格 8,080万円~19,800万円(平均価格12,836万円)
平米単価 91万円/㎡~177万円/㎡(平均単価130万円/㎡)
ルネッサなんばタワーの掲載中の物件情報を元にした参考情報です
お手軽簡単売却価格査定
プレミアム不動産のAI売却価格査定では約20秒程度の入力で瞬時にご指定のタワーマンションの売却価格相場を調べることが出来ます。登録や個人情報の入力も不要ですので個人情報やしつこい営業の心配もなく安心してお使い頂けます。
空室・賃貸物件一覧
TODAY
本日更新
NEW
新着(7日以内)
参考賃貸家賃相場
家賃(月額) 260,000円~260,000円(平均家賃260,000円)
平米単価 3,214円/㎡~3,214円/㎡(平均単価3,213円/㎡)
ルネッサなんばタワーの掲載中の物件情報を元にした参考情報です
この建物の短縮URL:https://www.tower.ne.jp/bl/180/













