長谷工コーポレーション施工の2016年に竣工した地上46階建て総戸数565戸タワーマンション
目次
阿波座ライズタワーズ フラッグ46の物件写真
借りたい・買いたい
タワーマンションを「借りたい方・買いたい方」、「売却査定・賃料査定」など何でもお気軽にお問い合わせください。
阿波座ライズタワーズ フラッグ46の概要・物件情報
基本情報
- 所在地
- 📍大阪市西区江之子島2丁目 [地図表示]
- 交通
- 🚉大阪メトロ中央線 阿波座駅まで徒歩2分
🚉大阪メトロ千日前線 阿波座駅まで徒歩2分 - 築年月
- 🎂2016年3月
- 構造等
- 鉄筋コン/地上46階建地下1階
- 総戸数
- 565戸
- 管理方式
- 通勤(日勤)
- 用途地域
- 商業地域
- 建ぺい率
- 80%
- 建ぺい率
- 400%
- 土地権利
- 所有権
- 地勢
- 平坦
- 国土法届出
- 不要
阿波座ライズタワーズ フラッグ46
「阿波座ライズタワーズ フラッグ46(OMPタワー)」に住みたいお客様(購入・賃貸)、住替え等にて売却を検討や賃料条件から部屋付け家賃管理等ご検討の所有者(オーナー様)の方、大阪市内の中古タワーマンション専門のプレミアム不動産へお気軽にご相談ください。
阿波座ライズタワーズ フラッグ46「OMPタワー」は阿波座駅近くに建つ46階建ての分譲のタワーマンションです。
共用施設として25階にはスカイラウンジ「VISTA」3階にキッチンスタジアム、集会室、ゲストルームが設置されます。
◆共用施設◆
1階:ライブラリー・ロビーラウンジ・コンシェルジュサービス
3階:ゲストルーム(和室・洋室)・キッチンスタジアム・キッズルーム
25階:スカイラウンジ
◆駐車場◆
342台:月/17,000〜25,000円
◆バイク置場◆
バイク12台
ミニバイク113台
月/800円〜1,800円
◆自転車置場◆
1,136台:月/50〜300円
※管理組合に最新空車確認ならびに実際に駐車してご確認ください。
共用設備
- 主要
免震構造 タワー型 オートロック エレベータ 宅配ボックス オール電化 キッズルーム ゲストルーム スカイラウンジ コンシェルジュ パーティールーム ペット用設備
駐車場・駐輪場
この物件のメリット・デメリット
メリット
- 地震時の安全性を高める免震構造が採用されているほか、飲料水や非常食・救急用具など非常時に役立つものを備える防災倉庫を完備
デメリット
- 阪神高速16号大阪港線・中央大通りが南側にあり騒音が気になるところ
阿波座ライズタワーズ フラッグ46のよくある質問
借りたい・買いたい
タワーマンションを「借りたい方・買いたい方」、「売却査定・賃料査定」など何でもお気軽にお問い合わせください。
分譲・中古・売り物件一覧
TODAY
本日更新
NEW
新着(7日以内)
売出中 |
売買ペット | 価格 | 階層 | 間取 | 面積 | 向 | お問い合せ |
| 7,800万円 | 41階 | 2LDK | 56.07㎡ | 東 | |||
| ペット お問い合せ お気に入り 詳細表示 | |||||||
このお部屋の詳細情報
管理費 11,040円
修繕積立金 8,130円
その他月額費 0円
月額合計金額 19,170円
間取り 2LDK(洋6.0 洋4.7 LDK12.8 )
現況 居住中
引き渡し 募集中
設備 眺望良好/バリアフリー/対面式キッチン/IHクッキングヒーター/バス・トイレ別/追い炊き機能/浴室乾燥機/床暖房/室内洗濯機/クローゼット/シューズ・ボックス/ディスポーザー/食洗機
| 売買 |
売出中 |
売買ペット | 価格 | 階層 | 間取 | 面積 | 向 | お問い合せ |
| 6,980万円 | 39階 | 1LDK | 56.07㎡ | 東 | |||
| ペット お問い合せ お気に入り 詳細表示 | |||||||
このお部屋の詳細情報
管理費 11,040円
修繕積立金 8,130円
その他月額費 0円
月額合計金額 19,170円
間取り 1LDK(洋7.3 LDK12.8)
現況 居住中
引き渡し 募集中
設備 眺望良好/バリアフリー/対面式キッチン/IHクッキングヒーター/バス・トイレ別/追い炊き機能/浴室乾燥機/床暖房/室内洗濯機/ウォークインクローゼット/シューズ・ボックス/ディスポーザー/食洗機
売出中 |
売買 | 価格 | 階層 | 間取 | 面積 | 向 | お問い合せ |
| 8,680万円 | 45階 | 2LDK | 56.07㎡ | 東 | |||
| お問い合せ お気に入り 詳細表示 | |||||||
このお部屋の詳細情報
管理費 11,040円
修繕積立金 8,130円
その他月額費 0円
月額合計金額 19,170円
間取り 2LDK(洋6.0 洋4.7 LDK12.8 )
現況 空室
引き渡し 募集中
設備 眺望良好/バリアフリー/対面式キッチン/IHクッキングヒーター/バス・トイレ別/追い炊き機能/浴室乾燥機/床暖房/室内洗濯機/クローゼット/シューズ・ボックス/ディスポーザー/食洗機
現行利回り 3.4%
| 売買 |
売出中 |
売買ペット | 価格 | 階層 | 間取 | 面積 | 向 | お問い合せ |
| 8,980万円 | 20階 | 3LDK | 70㎡ | 東 | |||
| ペット お問い合せ お気に入り 詳細表示 | |||||||
このお部屋の詳細情報
管理費 13,790円
修繕積立金 10,150円
その他月額費 0円
月額合計金額 23,940円
間取り 3LDK(洋6.5 洋6.3 洋5.0 LDK12.8)
現況 空室
引き渡し 募集中
設備 眺望良好/バリアフリー/IHクッキングヒーター/バス・トイレ別/追い炊き機能/浴室乾燥機/床暖房/室内洗濯機/クローゼット/ウォークインクローゼット/シューズインクローゼット/ディスポーザー/食洗機
| 売買 |
| 売買 |
売出中 |
売買ペット | 価格 | 階層 | 間取 | 面積 | 向 | お問い合せ |
| 10,490万円 | 45階 | 2LDK | 70㎡ | 東 | |||
| ペット お問い合せ お気に入り 詳細表示 | |||||||
このお部屋の詳細情報
管理費 13,790円
修繕積立金 10,150円
その他月額費 0円
月額合計金額 23,940円
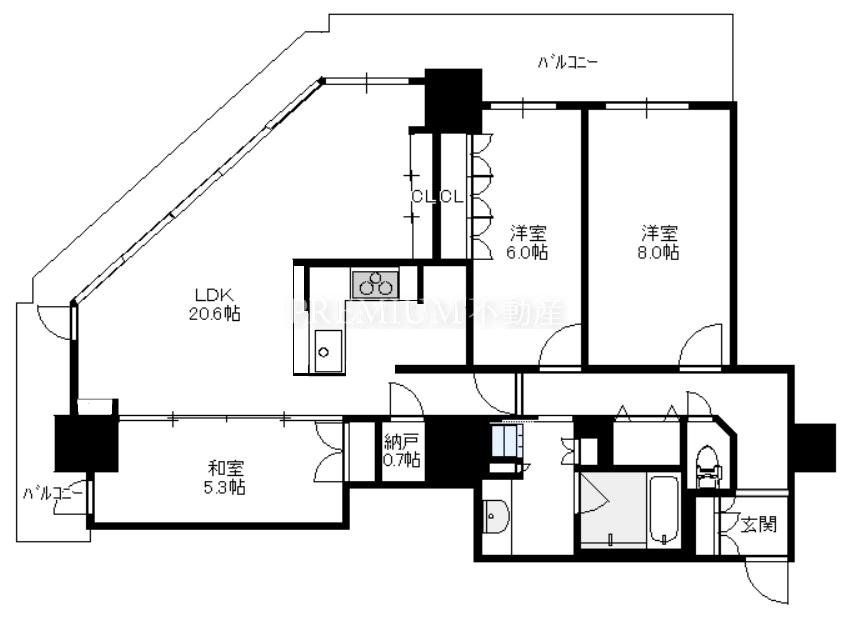
間取り 2LDK(洋6.4 洋5.0 LDK20.6)
現況 空室
引き渡し 募集中
設備 眺望良好/バリアフリー/対面式キッチン/IHクッキングヒーター/バス・トイレ別/追い炊き機能/浴室乾燥機/室内洗濯機/クローゼット/ウォークインクローゼット/シューズインクローゼット/ディスポーザー/食洗機/LDK20帖以上
| 売買 |
売出中 |
売買ペット | 価格 | 階層 | 間取 | 面積 | 向 | お問い合せ |
| 11,600万円 | 28階 | 2LDK | 90.14㎡ | 南東 | |||
| ペット お問い合せ お気に入り 詳細表示 | |||||||
このお部屋の詳細情報
管理費 17,750円
修繕積立金 13,070円
その他月額費 0円
月額合計金額 30,820円
間取り 2LDK(洋7.0 洋6.0 LDK24.7)
現況 空室
引き渡し 募集中
設備 眺望良好/バリアフリー/L字型キッチン/IHクッキングヒーター/バス・トイレ別/追い炊き機能/浴室乾燥機/床暖房/室内洗濯機/クローゼット/ウォークインクローゼット/エアコン/シューズ・ボックス/ディスポーザー/食洗機/角部屋/LDK20帖以上
売出中 |
売買ペット | 価格 | 階層 | 間取 | 面積 | 向 | お問い合せ |
| 9,980万円 | 36階 | 3LDK | 75.88㎡ | 西 | |||
| ペット お問い合せ お気に入り 詳細表示 | |||||||
このお部屋の詳細情報
管理費 14,960円
修繕積立金 7,210円
その他月額費 0円
月額合計金額 22,170円
間取り 3LDK(洋7.0 洋5.8 洋5.0 LDK14.3)
現況 空室
引き渡し 募集中
設備 眺望良好/バリアフリー/独立型キッチン/IHクッキングヒーター/バス・トイレ別/追い炊き機能/浴室乾燥機/床暖房/室内洗濯機/クローゼット/ウォークインクローゼット/シューズインクローゼット/ディスポーザー/食洗機
売出中 |
売買ペット | 価格 | 階層 | 間取 | 面積 | 向 | お問い合せ |
| 12,800万円 | 36階 | 1LDK | 87.1㎡ | 南西 | |||
| ペット お問い合せ お気に入り 詳細表示 | |||||||
このお部屋の詳細情報
管理費 17,160円
修繕積立金 8,280円
その他月額費 0円
月額合計金額 25,440円
間取り 1LDK(洋 LDK)
現況 空室
引き渡し 募集中
設備 眺望良好/バリアフリー/アイランドキッチン/IHクッキングヒーター/バス・トイレ別/追い炊き機能/浴室乾燥機/床暖房/室内洗濯機/ウォークインクローゼット/エアコン/シューズ・ボックス/食洗機/角部屋/LDK20帖以上
売出中 |
売買ペット | 価格 | 階層 | 間取 | 面積 | 向 | お問い合せ |
| 14,800万円 | 41階 | 1SLDK | 90.14㎡ | 南東 | |||
| ペット お問い合せ お気に入り 詳細表示 | |||||||
このお部屋の詳細情報
管理費 17,750円
修繕積立金 8,560円
その他月額費 0円
月額合計金額 26,310円
間取り 1SLDK(洋 S LDK)
現況 空室
引き渡し 募集中
設備 眺望良好/バリアフリー/アイランドキッチン/IHクッキングヒーター/バス・トイレ別/追い炊き機能/浴室乾燥機/床暖房/室内洗濯機/クローゼット/シューズ・ボックス/ディスポーザー/食洗機/角部屋/LDK20帖以上
売出中 |
売買ペット | 価格 | 階層 | 間取 | 面積 | 向 | お問い合せ |
| 7,000万円 | 13階 | 2LDK | 60.06㎡ | 東 | |||
| ペット お問い合せ お気に入り 詳細表示 | |||||||
このお部屋の詳細情報
管理費 11,830円
修繕積立金 5,700円
その他月額費 0円
月額合計金額 17,530円
間取り 2LDK(洋6.0 洋5.0 LDK13.4 )
現況 空室
引き渡し 募集中
設備 バリアフリー/独立型キッチン/IHクッキングヒーター/バス・トイレ別/追い炊き機能/浴室乾燥機/床暖房/室内洗濯機/クローゼット/シューズ・ボックス/ディスポーザー/食洗機
売出中 |
売買ペット | 価格 | 階層 | 間取 | 面積 | 向 | お問い合せ |
| 9,800万円 | 43階 | 3LDK | 75.88㎡ | 西 | |||
| ペット お問い合せ お気に入り 詳細表示 | |||||||
このお部屋の詳細情報
管理費 14,960円
修繕積立金 11,000円
その他月額費 0円
月額合計金額 25,960円
間取り 3LDK(洋7.0 洋5.8 洋5.0 LDK14.3)
現況 居住中
引き渡し 募集中
設備 眺望良好/バリアフリー/独立型キッチン/IHクッキングヒーター/バス・トイレ別/追い炊き機能/浴室乾燥機/室内洗濯機/クローゼット/ウォークインクローゼット/シューズインクローゼット/食洗機/角部屋
売出中 |
売買ペット | 価格 | 階層 | 間取 | 面積 | 向 | お問い合せ |
| 11,800万円 | 32階 | 3SLDK | 90.14㎡ | 南東 | |||
| ペット お問い合せ お気に入り 詳細表示 | |||||||
このお部屋の詳細情報
管理費 17,750円
修繕積立金 8,560円
その他月額費 0円
月額合計金額 26,310円
間取り 3SLDK(洋8.0 洋6.0 和5.3 LDK20.6)
現況 居住中
引き渡し 募集中
設備 眺望良好/バリアフリー/L字型キッチン/IHクッキングヒーター/バス・トイレ別/追い炊き機能/浴室乾燥機/床暖房/室内洗濯機/クローゼット/ウォークインクローゼット/シューズ・ボックス/ディスポーザー/食洗機/角部屋/LDK20帖以上
売出中 |
オーナーチェンジNEW | 価格 | 階層 | 間取 | 面積 | 向 | お問い合せ |
| 6,450万円 利回り 4% | 7階 | 2LDK | 58.21㎡ | 西 | |||
| お問い合せ お気に入り 詳細表示 | |||||||
このお部屋の詳細情報
管理費 8,440円
修繕積立金 11,470円
その他月額費 1,760円
月額合計金額 21,670円
間取り 2LDK(洋6.2 洋4.5 LDK13.7)
現況 賃貸中
引き渡し 募集中
設備 バリアフリー/独立型キッチン/IHクッキングヒーター/バス・トイレ別/追い炊き機能/浴室乾燥機/室内洗濯機/クローゼット/シューズ・ボックス/ディスポーザー/食洗機
現行利回り 4%
売出中 |
オーナーチェンジ | 価格 | 階層 | 間取 | 面積 | 向 | お問い合せ |
| 8,500万円 利回り 4% | 40階 | 3LDK | 87.1㎡ | 南西 | |||
| お問い合せ お気に入り 詳細表示 | |||||||
このお部屋の詳細情報
管理費 17,160円
修繕積立金 12,640円
その他月額費 0円
月額合計金額 29,800円
間取り 3LDK(洋7.0 洋6.6 洋5.0 LDK20.2)
現況 賃貸中
引き渡し 募集中
設備 眺望良好/バリアフリー/L字型キッチン/バス・トイレ別/追い炊き機能/浴室乾燥機/床暖房/室内洗濯機/クローゼット/ウォークインクローゼット/シューズ・ボックス/ディスポーザー/食洗機/角部屋/LDK20帖以上
現行利回り 4%
| オーナーチェンジ |
売出中 |
オーナーチェンジ | 価格 | 階層 | 間取 | 面積 | 向 | お問い合せ |
| 11,000万円 利回り 3.59% | 34階 | 3LDK | 80.37㎡ | 西 | |||
| お問い合せ お気に入り 詳細表示 | |||||||
このお部屋の詳細情報
管理費 15,830円
修繕積立金 11,650円
その他月額費 0円
月額合計金額 27,480円
間取り 3LDK(洋7.0 洋5.6 洋5.0 LDK17.6)
現況 賃貸中
引き渡し 募集中
設備 眺望良好/バリアフリー/独立型キッチン/IHクッキングヒーター/バス・トイレ別/追い炊き機能/浴室乾燥機/床暖房/室内洗濯機/クローゼット/ウォークインクローゼット/シューズ・ボックス/ディスポーザー/食洗機
現行利回り 3.59%
| オーナーチェンジ |
参考売買相場価格
価格 6,450万円~21,800万円(平均価格10,159万円)
平米単価 72万円/㎡~224万円/㎡(平均単価136万円/㎡)
阿波座ライズタワーズ フラッグ46の掲載中の物件情報を元にした参考情報です
お手軽簡単売却価格査定
プレミアム不動産のAI売却価格査定では約20秒程度の入力で瞬時にご指定のタワーマンションの売却価格相場を調べることが出来ます。登録や個人情報の入力も不要ですので個人情報やしつこい営業の心配もなく安心してお使い頂けます。
空室・賃貸物件一覧
TODAY
本日更新
NEW
新着(7日以内)
募集中 | 賃貸ペット | 家賃 | 階層 | 間取 | 面積 | 向 | お問い合せ |
| 23万円 | 4階 | 2LDK | 60.06㎡ | 南東 | |||
| ペット お問い合せ お気に入り 詳細表示 | |||||||
このお部屋の詳細情報
管理費 20,000円
その他月額費 0円
月額合計金額 250,000円
敷金 1ヶ月
礼金 1ヶ月
間取り 2LDK(洋6.0 洋5.3 LDK13.4)
現況 空室
引き渡し 即時
定期借家 3年
設備 バリアフリー/分譲賃貸/独立型キッチン/IHクッキングヒーター/バス・トイレ別/追い炊き機能/浴室乾燥機/床暖房/室内洗濯機/クローゼット/シューズ・ボックス/ディスポーザー/食洗機
募集中 | 賃貸ペット | 家賃 | 階層 | 間取 | 面積 | 向 | お問い合せ |
| 24.5万円 | 23階 | 2LDK | 76.98㎡ | 東 | |||
| ペット お問い合せ お気に入り 詳細表示 | |||||||
このお部屋の詳細情報
管理費 25,000円
その他月額費 0円
月額合計金額 270,000円
礼金 3ヶ月
間取り 2LDK(洋7.0 洋6.0 LDK21.3)
現況 空室
引き渡し 相談
普通借家 2年
設備 眺望良好/バリアフリー/分譲賃貸/L字型キッチン/IHクッキングヒーター/バス・トイレ別/追い炊き機能/浴室乾燥機/室内洗濯機/クローゼット/ウォークインクローゼット/シューズ・ボックス/LDK20帖以上
募集中 | 賃貸ペット | 家賃 | 階層 | 間取 | 面積 | 向 | お問い合せ |
| 25万円 | 15階 | 3LDK | 71.49㎡ | ||||
| ペット お問い合せ お気に入り 詳細表示 | |||||||
このお部屋の詳細情報
管理費 30,000円
その他月額費 0円
月額合計金額 280,000円
敷金 1ヶ月
礼金 2ヶ月
間取り 3LDK(洋6.2 洋5.6 洋5.3 LDK15.5)
現況 空室
引き渡し 相談
普通借家 2年
設備 バリアフリー/分譲賃貸/対面式キッチン/IHクッキングヒーター/バス・トイレ別/追い炊き機能/浴室乾燥機/室内洗濯機/クローゼット/シューズ・ボックス/ディスポーザー/食洗機/角部屋
募集中 | 賃貸 | 家賃 | 階層 | 間取 | 面積 | 向 | お問い合せ |
| 27万円 | 29階 | 2LDK | 57.64㎡ | 東 | |||
| お問い合せ お気に入り 詳細表示 | |||||||
このお部屋の詳細情報
管理費 0円
その他月額費 0円
月額合計金額 270,000円
敷金 1ヶ月
礼金 1ヶ月
間取り 2LDK(洋6.0 洋5.3 LDK13.4)
現況 空室
引き渡し 相談
普通借家 2年
設備 眺望良好/バリアフリー/分譲賃貸/独立型キッチン/IHクッキングヒーター/バス・トイレ別/追い炊き機能/浴室乾燥機/床暖房/室内洗濯機/クローゼット/シューズ・ボックス/ディスポーザー/食洗機
募集中 | 賃貸ペット | 家賃 | 階層 | 間取 | 面積 | 向 | お問い合せ |
| 27万円 | 24階 | 2LDK | 60.06㎡ | 東 | |||
| ペット お問い合せ お気に入り 詳細表示 | |||||||
このお部屋の詳細情報
管理費 20,000円
その他月額費 0円
月額合計金額 290,000円
敷金 1ヶ月
礼金 1ヶ月
間取り 2LDK(洋6.0 洋5.3 LDK13.4)
現況 空室
引き渡し 即時
普通借家 2年
設備 眺望良好/バリアフリー/分譲賃貸/独立型キッチン/IHクッキングヒーター/バス・トイレ別/追い炊き機能/浴室乾燥機/床暖房/室内洗濯機/クローゼット/シューズ・ボックス/ディスポーザー/食洗機
参考賃貸家賃相場
家賃(月額) 190,000円~275,000円(平均家賃247,142円)
平米単価 2,714円/㎡~4,684円/㎡(平均単価3,744円/㎡)
阿波座ライズタワーズ フラッグ46の掲載中の物件情報を元にした参考情報です
この建物の短縮URL:https://www.tower.ne.jp/bl/9/

















































