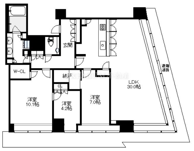
Brillia Tower 堂島(大阪市北区堂島2丁目)にある2SLDK(洋10.1 洋7.0 S4.2 LD30.0 K4.3)のお部屋です。 専有面積:117.97㎡、41階 / 地上49階建、方角:南東。 価格:7億円、管理費:42770円、修繕積立金:19940円。 最寄駅:西梅田駅(大阪メトロ四つ橋線)徒歩6分、北新地駅(JR東西線)徒歩7分。 建物設備:オートロック・宅配ボックス・オール電化・ジム・スカイラウンジ・コミュニティルーム・コンシェルジュ。 部屋設備:ウォークインクローゼット・ディスポーザー・食洗機・バス・トイレ別・追い炊き機能・浴室乾燥機・床暖房・室内洗濯機・クローゼット・エアコン。 特徴:眺望良好・角部屋・LDK20帖以上。 建物概要:日本初「Four Seasons Hotel」とプライベートレジデンス「Brillia」の超高層複合タワーが誕生
目次
Brillia Tower 堂島の物件写真
お部屋情報
お気に入り お問い合わせ
募集中 |
売買 | 価格 | 所在階 | 間取り | 専有面積 | 方位 |
| 70,000万円 | 41階 | 2SLDK | 117.97㎡ | 南東 |
管理費 42,770円
修繕積立金 19,940円
その他月額費 1,760円
月額合計金額 64,470円
水道料金 実費
間取り 2SLDK(洋10.1 洋7.0 S4.2 LD30.0 K4.3)
現況 居住中
引き渡し 相談
設備
ペット 相談
楽器 相談
インターネット使用料:月/1,760円
ローン返済額
毎月の返済額の目安 : 1,958,108円
借入金額70,000万円、金利0.945%、返済期間35年での計算です。
※元利均等返済方式での計算になります。あくまでもご返済の目安にするものになりますので、詳細は各銀行でご確認下さい(三菱UFJ銀行 新規借り入れシミュレーション)。
タワーマンションを「借りたい方・買いたい方」、「売却査定・賃料査定」など何でもお気軽にお問い合わせください。
Brillia Tower 堂島の概要・物件情報
基本情報
- 所在地
- 📍大阪市北区堂島2丁目 [地図表示]
- 交通
- 🚉大阪メトロ四つ橋線 西梅田駅まで徒歩6分
🚉JR東西線 北新地駅まで徒歩7分 - 築年月
- 🎂2024年1月
- 構造等
- 鉄筋コン/地上49階建地下1階
- 総戸数
- 457戸
- 管理方式
- 通勤(日勤)
- 用途地域
- 商業地域
- 建ぺい率
- 100%
- 建ぺい率
- 1200%
- 土地権利
- 所有権
- 地勢
- 平坦
- 国土法届出
- 不要
Brillia Tower 堂島
「Brillia Tower 堂島(ブリリアタワー堂島)」に住みたいお客様(購入・賃貸)、住替え等にて売却を検討や賃料条件から部屋付け家賃管理等ご検討の所有者(オーナー様)の方、大阪市内の中古タワーマンション専門のプレミアム不動産へお気軽にご相談ください。
堂島に大阪初「Four Seasons Hotel(フォーシーズンズホテル)」とプライベートレジデンス「Brillia」が 2024年開業へ、竹中工務店が施工するマンションとの複合タワーレジデンスが誕生。
フォーシーズンズホテルとレジデンスの超高層タワー開発プロジェクト「ONE DOJIMA PROJECT」(大阪市北区堂島2)、 住宅フロア:4階~27階、38階~49階、ホテルフロア:28階~37階と外観上はホテルとマンションの見分けが付きにくいようデザインされ、「帆」をモチーフにした優美な外観となる。
◆共用施設◆
B1階:ウェイティングラウンジ・ランドリールーム
1階:グランドエントランス
2階:コンジェルジュ・ギャラリーラウンジ・ギャラリーコリドー・ライブラリー・ワーキングブース
27階:ラウンジ27・ボードルーム・フィットネスルーム
28~37階:Four Seasons Hotel
42階&43階:スカイコンジェルジュ・43バー&ラウンジ・ビューライブラリー
49階:ザ・ペントハウス・ルーフトップデッキ
塔屋階:スカイデッキ
◆駐車場◆
202台(機械式:188台(※電気自動車対応20台)、平置き:14台)
月額/45,000円~98,000円
◆バイク置場◆
バイク(12台)月額/5,300円~6,000円
ミニバイク(25台)月額/2,600円
◆自転車置場◆
591台(2段ラック式、スライドラック式、傾斜ラック式:513台、レンタルサイクル用(20台)、平置(子供用含む)58台)
月額/500円~2,000円
※管理組合に最新空車確認ならびに実際に駐車してご確認ください。
共用設備
- 主要
制震構造 タワー型 オートロック エレベータ 宅配ボックス オール電化 ジム スカイラウンジ コミュニティルーム コンシェルジュ
駐車場・駐輪場
この物件のメリット・デメリット
メリット
- 超高級外資系ホテル「Four Seasons Hotel」との複合ですので、期待大ではないでしょうか
デメリット
- 駅からすこし離れた立地ぐらいでしょうか
分譲・中古・売り物件一覧
TODAY
本日更新
NEW
新着(7日以内)
売出中 |
売買TODAYペット | 価格 | 階層 | 間取 | 面積 | 向 | お問い合せ |
| 70,000万円 | 41階 | 2SLDK | 117.97㎡ | 南東 | |||
| ペット お問い合せ お気に入り 詳細表示 | |||||||
このお部屋の詳細情報
管理費 42,770円
修繕積立金 19,940円
その他月額費 1,760円
月額合計金額 64,470円
間取り 2SLDK(洋10.1 洋7.0 S4.2 LD30.0 K4.3)
現況 居住中
引き渡し 募集中
設備 眺望良好/バリアフリー/対面式キッチン/IHクッキングヒーター/バス・トイレ別/追い炊き機能/浴室乾燥機/床暖房/室内洗濯機/クローゼット/ウォークインクローゼット/エアコン/シューズ・ボックス/ディスポーザー/食洗機/角部屋/LDK20帖以上
売出中 |
売買未入居ペット | 価格 | 階層 | 間取 | 面積 | 向 | お問い合せ |
| 9,980万円 | 15階 | 1LDK | 47.31㎡ | 南 | |||
| 未入居ペット お問い合せ お気に入り 詳細表示 | |||||||
このお部屋の詳細情報
管理費 16,960円
修繕積立金 8,010円
その他月額費 1,760円
月額合計金額 26,730円
間取り 1LDK(洋6.0 LDK13.9)
現況 空室
引き渡し 募集中
設備 眺望良好/バリアフリー/対面式キッチン/IHクッキングヒーター/バス・トイレ別/追い炊き機能/浴室乾燥機/床暖房/室内洗濯機/クローゼット/シューズ・ボックス/ディスポーザー/食洗機
売出中 |
売買ペット | 価格 | 階層 | 間取 | 面積 | 向 | お問い合せ |
| 14,980万円 | 13階 | 2LDK | 62.94㎡ | 東 | |||
| ペット お問い合せ お気に入り 詳細表示 | |||||||
このお部屋の詳細情報
管理費 22,560円
修繕積立金 10,650円
その他月額費 1,760円
月額合計金額 34,970円
間取り 2LDK(洋7.4 洋5.0 LDK14.1)
現況 居住中
引き渡し 募集中
設備 バリアフリー/対面式キッチン/IHクッキングヒーター/バス・トイレ別/追い炊き機能/浴室乾燥機/床暖房/室内洗濯機/クローゼット/エアコン/シューズインクローゼット/ディスポーザー/食洗機
売出中 |
売買未入居ペット | 価格 | 階層 | 間取 | 面積 | 向 | お問い合せ |
| 15,000万円 | 11階 | 2LDK | 65.71㎡ | 南 | |||
| 未入居ペット お問い合せ お気に入り 詳細表示 | |||||||
このお部屋の詳細情報
管理費 23,550円
修繕積立金 11,110円
その他月額費 1,760円
月額合計金額 36,420円
間取り 2LDK(洋7.2 洋4.5 LDK16.9)
現況 空室
引き渡し 募集中
設備 バリアフリー/対面式キッチン/IHクッキングヒーター/バス・トイレ別/追い炊き機能/浴室乾燥機/床暖房/室内洗濯機/クローゼット/エアコン/シューズインクローゼット/ディスポーザー/食洗機
売出中 |
売買ペット | 価格 | 階層 | 間取 | 面積 | 向 | お問い合せ |
| 17,280万円 | 18階 | 1LDK | 69.91㎡ | 東 | |||
| ペット お問い合せ お気に入り 詳細表示 | |||||||
このお部屋の詳細情報
管理費 25,060円
修繕積立金 11,830円
その他月額費 1,760円
月額合計金額 38,650円
間取り 1LDK(洋6.5 LDK24.2)
現況 居住中
引き渡し 募集中
設備 バリアフリー/対面式キッチン/IHクッキングヒーター/バス・トイレ別/追い炊き機能/浴室乾燥機/床暖房/室内洗濯機/ウォークインクローゼット/シューズインクローゼット/ディスポーザー/食洗機/LDK20帖以上
| 売買 |
売出中 |
売買NEWペット | 価格 | 階層 | 間取 | 面積 | 向 | お問い合せ |
| 17,800万円 | 19階 | 2LDK | 66.6㎡ | 東 | |||
| ペット お問い合せ お気に入り 詳細表示 | |||||||
このお部屋の詳細情報
管理費 23,870円
修繕積立金 11,260円
その他月額費 1,760円
月額合計金額 36,890円
間取り 2LDK(洋8.1 洋4.5 LDK16.3)
現況 空室
引き渡し 募集中
設備 バリアフリー/対面式キッチン/IHクッキングヒーター/バス・トイレ別/追い炊き機能/浴室乾燥機/床暖房/室内洗濯機/クローゼット/ウォークインクローゼット/シューズインクローゼット/ディスポーザー/食洗機
| 売買 |
売出中 |
売買ペット | 価格 | 階層 | 間取 | 面積 | 向 | お問い合せ |
| 50,000万円 | 45階 | 1SLDK | 74.25㎡ | 東 | |||
| ペット お問い合せ お気に入り 詳細表示 | |||||||
このお部屋の詳細情報
管理費 26,610円
修繕積立金 12,550円
その他月額費 8,350円
月額合計金額 47,510円
間取り 1SLDK(洋8.5 S1.0 LDK24.3)
現況 空室
引き渡し 募集中
設備 眺望良好/バリアフリー/対面式キッチン/IHクッキングヒーター/バス・トイレ別/追い炊き機能/浴室乾燥機/床暖房/室内洗濯機/クローゼット/ウォークインクローゼット/エアコン/シューズ・ボックス/ディスポーザー/食洗機/LDK20帖以上
売出中 |
売買ペット | 価格 | 階層 | 間取 | 面積 | 向 | お問い合せ |
| 8,380万円 | 10階 | 1LDK | 38.71㎡ | 東 | |||
| ペット お問い合せ お気に入り 詳細表示 | |||||||
このお部屋の詳細情報
管理費 13,880円
修繕積立金 6,550円
その他月額費 1,760円
月額合計金額 22,190円
間取り 1LDK(洋3.5 LDK10.7)
現況 空室
引き渡し 募集中
設備 バリアフリー/独立型キッチン/IHクッキングヒーター/バス・トイレ別/追い炊き機能/浴室乾燥機/床暖房/室内洗濯機/クローゼット/ウォークインクローゼット/エアコン/シューズ・ボックス/ディスポーザー/食洗機
| 売買 |
売出中 |
売買ペット | 価格 | 階層 | 間取 | 面積 | 向 | お問い合せ |
| 24,900万円 | 39階 | 2LDK | 62.57㎡ | 西 | |||
| ペット お問い合せ お気に入り 詳細表示 | |||||||
このお部屋の詳細情報
管理費 22,420円
修繕積立金 10,580円
その他月額費 7,310円
月額合計金額 40,310円
間取り 2LDK(洋6.1 洋5.0 LDK15.3)
現況 居住中
引き渡し 募集中
設備 眺望良好/バリアフリー/対面式キッチン/IHクッキングヒーター/バス・トイレ別/追い炊き機能/浴室乾燥機/床暖房/室内洗濯機/クローゼット/シューズインクローゼット/ディスポーザー/食洗機
売出中 |
売買未入居ペット | 価格 | 階層 | 間取 | 面積 | 向 | お問い合せ |
| 13,480万円 | 10階 | 1LDK | 53.54㎡ | 北 | |||
| 未入居ペット お問い合せ お気に入り 詳細表示 | |||||||
このお部屋の詳細情報
管理費 19,190円
修繕積立金 9,060円
その他月額費 1,760円
月額合計金額 30,010円
間取り 1LDK(洋7.3 LDK17.7)
現況 空室
引き渡し 募集中
設備 バリアフリー/対面式キッチン/IHクッキングヒーター/バス・トイレ別/追い炊き機能/浴室乾燥機/床暖房/室内洗濯機/クローゼット/エアコン/シューズインクローゼット/ディスポーザー/食洗機
売出中 |
売買ペット | 価格 | 階層 | 間取 | 面積 | 向 | お問い合せ |
| 56,800万円 | 46階 | 1LDK | 110.7㎡ | 西 | |||
| ペット お問い合せ お気に入り 詳細表示 | |||||||
このお部屋の詳細情報
管理費 39,670円
修繕積立金 18,720円
その他月額費 12,665円
月額合計金額 71,055円
間取り 1LDK(洋9.2 LDK38.9)
現況 居住中
引き渡し 募集中
設備 眺望良好/バリアフリー/L字型キッチン/IHクッキングヒーター/バス・トイレ別/追い炊き機能/浴室乾燥機/床暖房/室内洗濯機/ウォークインクローゼット/エアコン/シューズインクローゼット/ディスポーザー/食洗機/LDK20帖以上
売出中 |
売買ペット | 価格 | 階層 | 間取 | 面積 | 向 | お問い合せ |
| 78,000万円 | 40階 | 2LDK | 125.89㎡ | 南東 | |||
| ペット お問い合せ お気に入り 詳細表示 | |||||||
このお部屋の詳細情報
管理費 19,300円
修繕積立金 11,210円
その他月額費 7,310円
月額合計金額 37,820円
間取り 2LDK(洋10.3 洋7.5 LDK37.0)
現況 居住中
引き渡し 募集中
設備 眺望良好/バリアフリー/アイランドキッチン/IHクッキングヒーター/バス・トイレ別/追い炊き機能/浴室乾燥機/床暖房/室内洗濯機/クローゼット/ウォークインクローゼット/エアコン/シューズ・ボックス/シューズインクローゼット/ディスポーザー/食洗機/角部屋/LDK20帖以上
| 売買 |
| 売買 |
| 売買 |
売出中 |
売買未入居ペット | 価格 | 階層 | 間取 | 面積 | 向 | お問い合せ |
| 8,990万円 | 19階 | 1LDK | 38.71㎡ | 東 | |||
| 未入居ペット お問い合せ お気に入り 詳細表示 | |||||||
このお部屋の詳細情報
管理費 13,880円
修繕積立金 6,550円
その他月額費 1,760円
月額合計金額 22,190円
間取り 1LDK(洋3.5 LDK10.7)
現況 空室
引き渡し 募集中
設備 バリアフリー/独立型キッチン/IHクッキングヒーター/バス・トイレ別/追い炊き機能/浴室乾燥機/床暖房/室内洗濯機/クローゼット/ウォークインクローゼット/エアコン/シューズ・ボックス/ディスポーザー/食洗機
売出中 |
売買未入居ペット | 価格 | 階層 | 間取 | 面積 | 向 | お問い合せ |
| 41,800万円 | 23階 | 2LDK | 110.44㎡ | 南東 | |||
| 未入居ペット お問い合せ お気に入り 詳細表示 | |||||||
このお部屋の詳細情報
管理費 39,580円
修繕積立金 18,670円
その他月額費 1,760円
月額合計金額 60,010円
間取り 2LDK(洋10.2 洋10.0 S0.4 LDK30.4)
現況 空室
引き渡し 募集中
設備 眺望良好/バリアフリー/対面式キッチン/IHクッキングヒーター/バス・トイレ別/追い炊き機能/浴室乾燥機/床暖房/室内洗濯機/クローゼット/ウォークインクローゼット/シューズインクローゼット/ディスポーザー/食洗機/角部屋/LDK20帖以上
売出中 |
売買ペット | 価格 | 階層 | 間取 | 面積 | 向 | お問い合せ |
| 16,990万円 | 14階 | 2LDK | 69.91㎡ | 東 | |||
| ペット お問い合せ お気に入り 詳細表示 | |||||||
このお部屋の詳細情報
管理費 10,720円
修繕積立金 6,230円
その他月額費 1,760円
月額合計金額 18,710円
間取り 2LDK(洋6.5 洋6.0 LDK17.8)
現況 空室
引き渡し 募集中
設備 バリアフリー/独立型キッチン/IHクッキングヒーター/バス・トイレ別/追い炊き機能/浴室乾燥機/床暖房/室内洗濯機/クローゼット/ウォークインクローゼット/シューズ・ボックス/シューズインクローゼット/ディスポーザー/食洗機
売出中 |
売買ペット | 価格 | 階層 | 間取 | 面積 | 向 | お問い合せ |
| 12,480万円 | 15階 | 1SLDK | 54.47㎡ | 北 | |||
| ペット お問い合せ お気に入り 詳細表示 | |||||||
このお部屋の詳細情報
管理費 19,520円
修繕積立金 9,210円
その他月額費 1,760円
月額合計金額 30,490円
間取り 1SLDK(洋6.5 S0.5 LDK17.0)
現況 空室
引き渡し 募集中
設備 バリアフリー/対面式キッチン/IHクッキングヒーター/バス・トイレ別/追い炊き機能/浴室乾燥機/床暖房/室内洗濯機/クローゼット/エアコン/シューズ・ボックス/ディスポーザー/食洗機
売出中 |
売買未入居ペット | 価格 | 階層 | 間取 | 面積 | 向 | お問い合せ |
| 8,200万円 | 4階 | 1LDK | 37.01㎡ | 東 | |||
| 未入居ペット お問い合せ お気に入り 詳細表示 | |||||||
このお部屋の詳細情報
管理費 13,270円
修繕積立金 6,270円
その他月額費 1,760円
月額合計金額 21,300円
間取り 1LDK(洋3.2 LDK10.5)
現況 空室
引き渡し 募集中
設備 バリアフリー/独立型キッチン/IHクッキングヒーター/バス・トイレ別/追い炊き機能/浴室乾燥機/床暖房/室内洗濯機/クローゼット/シューズ・ボックス/ディスポーザー/食洗機
| 売買 |
| 売買 |
| 売買 |
売出中 |
売買未入居ペット | 価格 | 階層 | 間取 | 面積 | 向 | お問い合せ |
| 13,600万円 | 7階 | 2LDK | 65.71㎡ | 南 | |||
| 未入居ペット お問い合せ お気に入り 詳細表示 | |||||||
このお部屋の詳細情報
管理費 23,550円
修繕積立金 11,110円
その他月額費 1,760円
月額合計金額 36,420円
間取り 2LDK(洋7.2 洋4.5 LDK16.9)
現況 空室
引き渡し 募集中
設備 バリアフリー/対面式キッチン/IHクッキングヒーター/バス・トイレ別/追い炊き機能/浴室乾燥機/床暖房/室内洗濯機/クローゼット/エアコン/シューズインクローゼット/ディスポーザー/食洗機
売出中 |
売買ペット | 価格 | 階層 | 間取 | 面積 | 向 | お問い合せ |
| 13,800万円 | 5階 | 1SLDK | 54.47㎡ | 北 | |||
| ペット お問い合せ お気に入り 詳細表示 | |||||||
このお部屋の詳細情報
管理費 19,520円
修繕積立金 9,210円
その他月額費 1,760円
月額合計金額 30,490円
間取り 1SLDK(洋6.5 S0.5 LDK17.0)
現況 空室
引き渡し 募集中
設備 バリアフリー/対面式キッチン/IHクッキングヒーター/バス・トイレ別/追い炊き機能/浴室乾燥機/床暖房/室内洗濯機/クローゼット/エアコン/シューズ・ボックス/ディスポーザー/食洗機
| 売買 |
| 売買 |
売出中 |
売買ペット | 価格 | 階層 | 間取 | 面積 | 向 | お問い合せ |
| 20,500万円 | 7階 | 2LDK | 87.18㎡ | 北西 | |||
| ペット お問い合せ お気に入り 詳細表示 | |||||||
このお部屋の詳細情報
管理費 31,240円
修繕積立金 14,740円
その他月額費 1,760円
月額合計金額 47,740円
間取り 2LDK(洋8.8 洋7.0 LDK23.1)
現況 空室
引き渡し 募集中
設備 花火大会観賞/バリアフリー/対面式キッチン/IHクッキングヒーター/バス・トイレ別/追い炊き機能/浴室乾燥機/床暖房/室内洗濯機/クローゼット/ウォークインクローゼット/エアコン/シューズ・ボックス/ディスポーザー/食洗機/角部屋/LDK20帖以上
売出中 |
売買未入居ペット | 価格 | 階層 | 間取 | 面積 | 向 | お問い合せ |
| 25,680万円 | 22階 | 2SLDK | 79.75㎡ | 東 | |||
| 未入居ペット お問い合せ お気に入り 詳細表示 | |||||||
このお部屋の詳細情報
管理費 28,580円
修繕積立金 13,480円
その他月額費 1,760円
月額合計金額 43,820円
間取り 2SLDK(洋10.1 洋7.2 LDK16.9)
現況 空室
引き渡し 募集中
設備 眺望良好/バリアフリー/独立型キッチン/IHクッキングヒーター/バス・トイレ別/追い炊き機能/浴室乾燥機/床暖房/室内洗濯機/クローゼット/ウォークインクローゼット/エアコン/シューズインクローゼット/ディスポーザー/食洗機
| 売買 |
| 売買 |
売出中 |
オーナーチェンジ | 価格 | 階層 | 間取 | 面積 | 向 | お問い合せ |
| 11,680万円 利回り 2.6% | 22階 | 1LDK | 44.36㎡ | 東 | |||
| お問い合せ お気に入り 詳細表示 | |||||||
このお部屋の詳細情報
管理費 15,900円
修繕積立金 7,500円
その他月額費 1,760円
月額合計金額 25,160円
間取り 1LDK(洋5.3 LDK13.4)
現況 賃貸中
引き渡し 募集中
設備 眺望良好/バリアフリー/対面式キッチン/IHクッキングヒーター/バス・トイレ別/追い炊き機能/浴室乾燥機/床暖房/室内洗濯機/クローゼット/シューズ・ボックス/ディスポーザー/食洗機
現行利回り 2.6%
※間取り反転タイプ
売出中 |
オーナーチェンジ | 価格 | 階層 | 間取 | 面積 | 向 | お問い合せ |
| 9,500万円 利回り 2.02% | 7階 | 1LDK | 38.71㎡ | 東 | |||
| お問い合せ お気に入り 詳細表示 | |||||||
このお部屋の詳細情報
管理費 13,880円
修繕積立金 6,550円
その他月額費 1,760円
月額合計金額 22,190円
間取り 1LDK(洋3.5 LDK10.7)
現況 賃貸中
引き渡し 募集中
設備 バリアフリー/独立型キッチン/IHクッキングヒーター/バス・トイレ別/追い炊き機能/浴室乾燥機/床暖房/室内洗濯機/クローゼット/ウォークインクローゼット/エアコン/シューズ・ボックス/ディスポーザー/食洗機
現行利回り 2.02%
| オーナーチェンジ |
| オーナーチェンジ |
売出中 |
オーナーチェンジ | 価格 | 階層 | 間取 | 面積 | 向 | お問い合せ |
| 21,800万円 利回り 2.8% | 21階 | 3LDK | 77.75㎡ | 南 | |||
| お問い合せ お気に入り 詳細表示 | |||||||
このお部屋の詳細情報
管理費 27,860円
修繕積立金 13,140円
その他月額費 1,760円
月額合計金額 42,760円
間取り 3LDK(洋7.8 洋5.3 洋5.0 LDK16.7)
現況 賃貸中
引き渡し 募集中
設備 眺望良好/バリアフリー/独立型キッチン/IHクッキングヒーター/バス・トイレ別/追い炊き機能/浴室乾燥機/床暖房/室内洗濯機/クローゼット/シューズインクローゼット/ディスポーザー/食洗機
現行利回り 2.8%
参考売買相場価格
価格 8,200万円~78,000万円(平均価格22,190万円)
平米単価 207万円/㎡~673万円/㎡(平均単価301万円/㎡)
Brillia Tower 堂島の掲載中の物件情報を元にした参考情報です
空室・賃貸物件一覧
TODAY
本日更新
NEW
新着(7日以内)
募集中 | 賃貸NEW | 家賃 | 階層 | 間取 | 面積 | 向 | お問い合せ |
| 23万円 | 6階 | 1SLDK | 54.47㎡ | 北 | |||
| お問い合せ お気に入り 詳細表示 | |||||||
このお部屋の詳細情報
管理費 30,000円
その他月額費 0円
月額合計金額 260,000円
敷金 220,000円
礼金 440,000円
間取り 1SLDK(洋4.7 S0.5 LDK17.0)
現況 賃貸中
引き渡し 4/末退去予定
普通借家 2年
設備 バリアフリー/分譲賃貸/対面式キッチン/IHクッキングヒーター/バス・トイレ別/追い炊き機能/浴室乾燥機/床暖房/室内洗濯機/クローゼット/ウォークインクローゼット/シューズ・ボックス/ディスポーザー/食洗機
募集中 | 賃貸 | 家賃 | 階層 | 間取 | 面積 | 向 | お問い合せ |
| 40万円 | 19階 | 2LDK | 62.94㎡ | 東 | |||
| お問い合せ お気に入り 詳細表示 | |||||||
このお部屋の詳細情報
管理費 0円
その他月額費 0円
月額合計金額 400,000円
敷金 1ヶ月
礼金 2ヶ月
間取り 2LDK(洋7.4 洋5.0 LDK14.1)
現況 空室
引き渡し 即時
定期借家 4年
設備 バリアフリー/分譲賃貸/対面式キッチン/IHクッキングヒーター/バス・トイレ別/追い炊き機能/浴室乾燥機/床暖房/室内洗濯機/クローゼット/シューズインクローゼット/ディスポーザー/食洗機/禁煙
募集中 | 賃貸未入居ペット | 家賃 | 階層 | 間取 | 面積 | 向 | お問い合せ |
| 40万円 | 10階 | 1LDK | 53.54㎡ | 北 | |||
| 未入居ペット お問い合せ お気に入り 詳細表示 | |||||||
このお部屋の詳細情報
管理費 31,000円
その他月額費 0円
月額合計金額 431,000円
礼金 2ヶ月
間取り 1LDK(洋7.3 LDK17.7)
現況 空室
引き渡し 即時
普通借家 2年
設備 バリアフリー/分譲賃貸/対面式キッチン/IHクッキングヒーター/バス・トイレ別/追い炊き機能/浴室乾燥機/床暖房/室内洗濯機/クローゼット/シューズインクローゼット/ディスポーザー/食洗機/禁煙
募集中 | 賃貸NEW | 家賃 | 階層 | 間取 | 面積 | 向 | お問い合せ |
| 48万円 | 45階 | 1SLDK | 63.91㎡ | 北 | |||
| お問い合せ お気に入り 詳細表示 | |||||||
このお部屋の詳細情報
管理費 80,000円
その他月額費 0円
月額合計金額 560,000円
敷金 1ヶ月
礼金 2ヶ月
間取り 1SLDK(洋8.4 S1.3 LDK17.5)
現況 空室
引き渡し 相談
普通借家 2年
設備 眺望良好/バリアフリー/分譲賃貸/対面式キッチン/バス・トイレ別/追い炊き機能/浴室乾燥機/床暖房/室内洗濯機/クローゼット/エアコン/シューズインクローゼット/ディスポーザー/食洗機/禁煙
募集中 | 賃貸 | 家賃 | 階層 | 間取 | 面積 | 向 | お問い合せ |
| 48.5万円 | 5階 | 2LDK | 88.4㎡ | 南西 | |||
| お問い合せ お気に入り 詳細表示 | |||||||
このお部屋の詳細情報
管理費 15,000円
その他月額費 0円
月額合計金額 500,000円
敷金 485,000円
礼金 970,000円
間取り 2LDK(洋7.4 洋6.5 LDK24.9)
現況 空室
引き渡し 相談
定期借家 3年
設備 バリアフリー/分譲賃貸/対面式キッチン/IHクッキングヒーター/バス・トイレ別/追い炊き機能/浴室乾燥機/床暖房/室内洗濯機/クローゼット/ウォークインクローゼット/エアコン/シューズインクローゼット/ディスポーザー/食洗機/角部屋/禁煙/LDK20帖以上
募集中 | 賃貸未入居ペット | 家賃 | 階層 | 間取 | 面積 | 向 | お問い合せ |
| 51万円 | 15階 | 3LDK | 88.4㎡ | 南西 | |||
| 未入居ペット お問い合せ お気に入り 詳細表示 | |||||||
このお部屋の詳細情報
管理費 55,000円
その他月額費 0円
月額合計金額 565,000円
敷金 1ヶ月
礼金 2ヶ月
間取り 3LDK(洋7.4 洋6.6 洋4.6 LDK16.4)
現況 空室
引き渡し 即時
定期借家 2年
設備 バリアフリー/分譲賃貸/対面式キッチン/IHクッキングヒーター/バス・トイレ別/追い炊き機能/浴室乾燥機/床暖房/室内洗濯機/クローゼット/ウォークインクローゼット/エアコン/シューズインクローゼット/ディスポーザー/食洗機/角部屋/禁煙
募集中 | 賃貸 | 家賃 | 階層 | 間取 | 面積 | 向 | お問い合せ |
| 52万円 | 16階 | 3LDK | 88.4㎡ | 南西 | |||
| お問い合せ お気に入り 詳細表示 | |||||||
このお部屋の詳細情報
管理費 55,000円
その他月額費 0円
月額合計金額 575,000円
敷金 1ヶ月
礼金 2ヶ月
間取り 3LDK(洋7.4 洋6.6 洋4.6 LDK16.4)
現況 空室
引き渡し 相談
定期借家 2年
設備 バリアフリー/分譲賃貸/対面式キッチン/IHクッキングヒーター/バス・トイレ別/追い炊き機能/浴室乾燥機/床暖房/室内洗濯機/クローゼット/ウォークインクローゼット/エアコン/シューズインクローゼット/ディスポーザー/食洗機/角部屋
募集中 | 賃貸未入居 | 家賃 | 階層 | 間取 | 面積 | 向 | お問い合せ |
| 69万円 | 18階 | 2LDK | 85.29㎡ | 北東 | |||
| 未入居 お問い合せ お気に入り 詳細表示 | |||||||
このお部屋の詳細情報
管理費 65,000円
その他月額費 3,300円
月額合計金額 758,300円
敷金 2ヶ月
礼金 2ヶ月
間取り 2LDK(洋8.2 洋5.8 LDK24.8)
現況 空室
引き渡し 即時
定期借家 3年
設備 バリアフリー/分譲賃貸/対面式キッチン/IHクッキングヒーター/バス・トイレ別/追い炊き機能/浴室乾燥機/床暖房/室内洗濯機/クローゼット/ウォークインクローゼット/エアコン/シューズインクローゼット/ディスポーザー/食洗機/角部屋/禁煙/LDK20帖以上
募集中 | 賃貸未入居 | 家賃 | 階層 | 間取 | 面積 | 向 | お問い合せ |
| 80万円 | 27階 | 3LDK | 77.75㎡ | 南 | |||
| 未入居 お問い合せ お気に入り 詳細表示 | |||||||
このお部屋の詳細情報
管理費 0円
その他月額費 55,000円
月額合計金額 855,000円
敷金 1ヶ月
礼金 2ヶ月
間取り 3LDK(洋7.8 洋5.3 洋5.0 LDK16.7)
現況 空室
引き渡し 即時
普通借家 2年
設備 眺望良好/バリアフリー/分譲賃貸/独立型キッチン/IHクッキングヒーター/バス・トイレ別/追い炊き機能/浴室乾燥機/床暖房/室内洗濯機/クローゼット/エアコン/シューズ・ボックス/ディスポーザー/食洗機
募集中 | 賃貸 | 家賃 | 階層 | 間取 | 面積 | 向 | お問い合せ |
| 85万円 | 45階 | 1SLDK | 74.25㎡ | 東 | |||
| お問い合せ お気に入り 詳細表示 | |||||||
このお部屋の詳細情報
管理費 0円
その他月額費 0円
月額合計金額 850,000円
敷金 1ヶ月
礼金 1ヶ月
間取り 1SLDK(洋8.5 S1.0 LDK24.3)
現況 空室
引き渡し 即時
定期借家 5年
設備 眺望良好/バリアフリー/分譲賃貸/対面式キッチン/IHクッキングヒーター/バス・トイレ別/追い炊き機能/浴室乾燥機/床暖房/室内洗濯機/クローゼット/ウォークインクローゼット/エアコン/シューズ・ボックス/ディスポーザー/食洗機/禁煙/LDK20帖以上
募集中 | 賃貸未入居 | 家賃 | 階層 | 間取 | 面積 | 向 | お問い合せ |
| 125万円 | 45階 | 1LDK | 86.38㎡ | 東 | |||
| 未入居 お問い合せ お気に入り 詳細表示 | |||||||
このお部屋の詳細情報
管理費 50,000円
その他月額費 0円
月額合計金額 1,300,000円
敷金 1ヶ月
礼金 1ヶ月
間取り 1LDK(洋10.5 LDK28.3)
現況 空室
引き渡し 即時
普通借家 2年
設備 眺望良好/バリアフリー/分譲賃貸/対面式キッチン/U字型キッチン/IHクッキングヒーター/バス・トイレ別/追い炊き機能/浴室乾燥機/床暖房/室内洗濯機/ウォークインクローゼット/エアコン/シューズ・ボックス/ディスポーザー/食洗機/禁煙/LDK20帖以上
募集中 | 賃貸未入居 | 家賃 | 階層 | 間取 | 面積 | 向 | お問い合せ |
| 128万円 | 23階 | 2LDK | 110.44㎡ | 南東 | |||
| 未入居 お問い合せ お気に入り 詳細表示 | |||||||
このお部屋の詳細情報
管理費 70,000円
その他月額費 0円
月額合計金額 1,350,000円
敷金 1ヶ月
礼金 1ヶ月
間取り 2LDK(洋10.2 洋10.0 S0.4 LDK30.4)
現況 空室
引き渡し 即時
定期借家 3年
設備 眺望良好/バリアフリー/分譲賃貸/対面式キッチン/IHクッキングヒーター/バス・トイレ別/追い炊き機能/浴室乾燥機/床暖房/室内洗濯機/クローゼット/ウォークインクローゼット/シューズインクローゼット/ディスポーザー/食洗機/角部屋/禁煙/LDK20帖以上
募集中 | 賃貸 | 家賃 | 階層 | 間取 | 面積 | 向 | お問い合せ |
| 129万円 | 38階 | 2LDK | 93.07㎡ | 西 | |||
| お問い合せ お気に入り 詳細表示 | |||||||
このお部屋の詳細情報
管理費 100,000円
その他月額費 0円
月額合計金額 1,390,000円
敷金 1,390,000円
礼金 1,390,000円
間取り 2LDK(洋6.0 洋5.0 LDK30.2)
現況 空室
引き渡し 相談
定期借家 2年
設備 眺望良好/バリアフリー/分譲賃貸/対面式キッチン/IHクッキングヒーター/バス・トイレ別/追い炊き機能/浴室乾燥機/床暖房/室内洗濯機/クローゼット/ウォークインクローゼット/シューズインクローゼット/ディスポーザー/食洗機/禁煙/LDK20帖以上
募集中 | 賃貸未入居 | 家賃 | 階層 | 間取 | 面積 | 向 | お問い合せ |
| 138万円 | 40階 | 1SLDK | 93.07㎡ | 西 | |||
| 未入居 お問い合せ お気に入り 詳細表示 | |||||||
このお部屋の詳細情報
管理費 100,000円
その他月額費 0円
月額合計金額 1,480,000円
敷金 1,480,000円
礼金 1,480,000円
間取り 1SLDK(洋8.7 S3.3 LDK27.4)
現況 空室
引き渡し 即時
定期借家 2年
設備 眺望良好/バリアフリー/分譲賃貸/対面式キッチン/IHクッキングヒーター/バス・トイレ別/追い炊き機能/浴室乾燥機/床暖房/室内洗濯機/クローゼット/ウォークインクローゼット/シューズインクローゼット/ディスポーザー/食洗機/禁煙/LDK20帖以上
参考賃貸家賃相場
家賃(月額) 230,000円~1,380,000円(平均家賃743,055円)
平米単価 4,223円/㎡~14,828円/㎡(平均単価9,090円/㎡)
Brillia Tower 堂島の掲載中の物件情報を元にした参考情報です
このお部屋の短縮URL:https://www.tower.ne.jp/rm/30119/














































































































