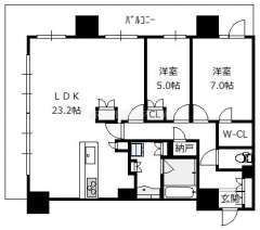
ブランズタワー御堂筋本町(大阪市中央区南本町4丁目)にある2SLDK(洋7.4 洋5.0 S.09 LDK23.2)のお部屋です。 専有面積:89.98㎡、36階 / 地上38階建、方角:東。 価格:1億6980万円、管理費:20200円、修繕積立金:17100円。 最寄駅:本町駅(大阪メトロ御堂筋線)徒歩1分、堺筋本町駅(大阪メトロ中央線)徒歩7分。 建物設備:オートロック・宅配ボックス・ゲストルーム・スカイラウンジ・コミュニティルーム・コンシェルジュ・パーティールーム。 部屋設備:ウォークインクローゼット・ディスポーザー・食洗機・バス・トイレ別・追い炊き機能・浴室乾燥機・床暖房・室内洗濯機・クローゼット・エアコン。 特徴:眺望良好・LDK20帖以上。 建物概要:竹中工務店施工の2017年に竣工した地上38階建て総戸数276戸タワーマンション
❤️2People like this property.
Table of Contents
- Property Photos
- Overview & Property Information
- Frequently Asked Questions
- Available Properties for Sale
- Available Rental Properties
BLANZ TOWER MIDOSUJI HONMACHIProperty Photos
Room Information
2026/04/14 The price dropped by 220yen
Favorites Contact Us
Available |
Sale | Price | Floor Level | Layout | Area | Orientation |
| 16,980x 10,000 yen | 36F | 2SLDK | 89.98㎡ | E |
Maintenance Fee 20,200¥
Repair Fund 17,100¥
Other Monthly Fees 0¥
Total Monthly Amount 37,300¥
Water Bill Actual cost
Layout 2SLDK(洋7.4 洋5.0 S.09 LDK23.2)
Current Condition Vacant
Handover 即時
Facilities
Pets Consultation
For those who want to "rent a tower apartment" or "buy a tower apartment", or for "sale assessments" or "rental assessments", please feel free to contact us for any inquiries.
BLANZ TOWER MIDOSUJI HONMACHIOverview & Property Information
Basic Information
- Location
- 📍4-chome, Minamihommachi, Chuo Ward, Osaka City [Map]
- Access
- Station-connected property
🚉 Osaka Metro Midosuji Line Hommachi Walk1Min
🚉 Osaka Metro Chuo Line Sakaisuji-Hommachi Walk7Min - Built in
- 🎂Sep 2017
- Structure
- Reinforced concrete/Above Ground38Floors
- Total Units
- 276units
- Management System
- Commuting (daytime)
- Zoning
- Commercial zone
- Building Coverage Ratio
- 80%
- Building Coverage Ratio
- 1000%
- Land Ownership
- Ownership
- Topography
- Flat
- Notification under National Land Use Planning Act
- Not required
BLANZ TOWER MIDOSUJI HONMACHI
Historic direct connection to Midosuji Line "Hommachi" Station.
Direct access to Midosuji Line "Hommachi" Station, Chuo Line "Hommachi" Station, and Yotsubashi Line "Hommachi" Station!
A 38-story tower with a total of 276 units, adopting the latest seismic isolation structure.
Functional facilities and specifications that pursue comfort in kitchens, bathrooms, washrooms, and storage areas.
Triple security system, color monitor with intercom, 24-hour manned management, 24-hour remote monitoring system, security cameras, and security features on each unit door ensure constant peace of mind 24/7, year-round.
◆Common Facilities◆
1st floor: Owners' Hall
2nd floor: Concierge Service, Grand Entrance
38th floor: (Top floor) Sky Lounge, Sky View Terrace, Sky Guest Room
◆24-Hour Manned Management◆
Administrator (8-17 o'clock)
Concierge (17-21 o'clock)
Security guard (21-8 o'clock)
◆Parking Space◆
Elevator Parking (113 spaces)
Regular car (monthly ¥30,000)
Middle roof car (monthly ¥33,000)
High roof car (monthly ¥35,000)
High roof car (EV charging compatible) (monthly ¥37,000)
◆Motorcycle Parking◆
Motorcycle (6 spaces) monthly ¥2,000
Mini bike (28 spaces) monthly ¥1,500
◆Bicycle Parking◆
Slide rack (lower level 193 spaces) monthly ¥300
Slide rack (upper level 193 spaces) monthly ¥200
Flat type (8 spaces) monthly ¥500
※ Please check with the management association for the latest availability and actual parking conditions.
Common Facilities
- Main
Seismic isolation structure Tower type Auto lock Elevator Delivery box Guest room Sky lounge Community room Concierge Party room
Parking & Bicycle Parking
Merits and Demerits of this Property
Merits
- An earthquake-resistant structure directly connected to Honmachi Station, which is located in the center of the business district and along three train lines.
Demerits
- The southern side faces Chuo Street and the Hanshin Expressway Route 16 Osaka Port Line, so noise can be a concern.
Available Properties for Sale
TODAY
Updated Today
NEW
New Listings (Within 7 Days)
On Sale |
For SalePets Allowed | Price | Floor | Layout | Area | Facing | Contact Us |
| 14,800 x 10,000 yen | 18F | 2LDK | 81.89㎡ | SE | |||
| Pets Allowed Contact Us Favorite Details | |||||||
Detailed Information about this Room
Management Fee: 18,400 yen
Repair Fund: 6,550 yen
Other Monthly Charges: 0 yen
Monthly Total: 24,950 yen
Layout: 2LDK(洋7.0 洋5.0 LDK23.2)
Status: Vacant
Delivery Date: Available
Facilities: Barrier-free/Counter kitchen/Gas stove/Separate bath and toilet/Reheating function/Bathroom dryer/Floor heating/Indoor washing machine/Closet/Walk-in closet/Shoe box/Garbage disposer/Dishwasher/Corner room/LDK over 20 tatami
On Sale |
For SaleNewPets Allowed | Price | Floor | Layout | Area | Facing | Contact Us |
| 12,000 x 10,000 yen | 16F | 2LDK | 70.64㎡ | NE | |||
| Pets Allowed Contact Us Favorite Details | |||||||
Detailed Information about this Room
Management Fee: 15,900 yen
Repair Fund: 13,420 yen
Other Monthly Charges: 0 yen
Monthly Total: 29,320 yen
Layout: 2LDK(洋7.1 洋5.6 LDK17.7 )
Status: Vacant
Delivery Date: Available
Facilities: Barrier-free/Counter kitchen/Separate bath and toilet/Reheating function/Bathroom dryer/Floor heating/Indoor washing machine/Closet/Walk-in closet/Air conditioner/Shoe box/Garbage disposer/Dishwasher/Corner room
| For Sale |
| For Sale |
| For Sale |
| For Sale |
On Sale |
For SalePets Allowed | Price | Floor | Layout | Area | Facing | Contact Us |
| 16,980 x 10,000 yen | 36F | 2SLDK | 89.98㎡ | E | |||
| Pets Allowed Contact Us Favorite Details | |||||||
Detailed Information about this Room
Management Fee: 20,200 yen
Repair Fund: 17,100 yen
Other Monthly Charges: 0 yen
Monthly Total: 37,300 yen
Layout: 2SLDK(洋7.4 洋5.0 S.09 LDK23.2)
Status: Vacant
Delivery Date: Available
Facilities: Good view/Barrier-free/U-shaped kitchen/Gas stove/Separate bath and toilet/Reheating function/Bathroom dryer/Floor heating/Indoor washing machine/Closet/Walk-in closet/Air conditioner/Shoe box/Garbage disposer/Dishwasher/LDK over 20 tatami
| For Sale |
On Sale |
Owner Change | Price | Floor | Layout | Area | Facing | Contact Us |
| 9,580 x 10,000 yen Yield 3.51% | 25F | 1LDK | 56.72㎡ | W | |||
| Contact Us Favorite Details | |||||||
Detailed Information about this Room
Management Fee: 12,800 yen
Repair Fund: 10,780 yen
Other Monthly Charges: 0 yen
Monthly Total: 23,580 yen
Layout: 1LDK(洋4.5 LDK19.5)
Status: Rented
Delivery Date: Available
Facilities: Good view/Barrier-free/Separate kitchen/Gas stove/Separate bath and toilet/Reheating function/Bathroom dryer/Floor heating/Indoor washing machine/Closet/Shoe box/Garbage disposer/Dishwasher
Current Yield: 3.51%
On Sale |
Owner Change | Price | Floor | Layout | Area | Facing | Contact Us |
| 7,280 x 10,000 yen Yield 3.13% | 29F | 2LDK | 55.14㎡ | S | |||
| Contact Us Favorite Details | |||||||
Detailed Information about this Room
Management Fee: 12,400 yen
Repair Fund: 4,410 yen
Other Monthly Charges: 0 yen
Monthly Total: 16,810 yen
Layout: 2LDK(洋6.0 洋4.5 LDK13.7)
Status: Rented
Delivery Date: Available
Facilities: Good view/Barrier-free/Counter kitchen/Gas stove/Separate bath and toilet/Reheating function/Bathroom dryer/Floor heating/Indoor washing machine/Closet/Shoe-in closet/Garbage disposer/Dishwasher
Current Yield: 3.13%
On Sale |
Owner Change | Price | Floor | Layout | Area | Facing | Contact Us |
| 8,000 x 10,000 yen Yield 3.3% | 34F | 1LDK | 45.06㎡ | W | |||
| Contact Us Favorite Details | |||||||
Detailed Information about this Room
Management Fee: 10,100 yen
Repair Fund: 8,560 yen
Other Monthly Charges: 0 yen
Monthly Total: 18,660 yen
Layout: 1LDK(洋5.5 LDK12.5)
Status: Rented
Delivery Date: Available
Facilities: Good view/Barrier-free/Separate kitchen/Gas stove/Separate bath and toilet/Reheating function/Bathroom dryer/Floor heating/Indoor washing machine/Walk-in closet/Shoe-in closet/Garbage disposer/Dishwasher
Current Yield: 3.3%
On Sale |
Owner Change | Price | Floor | Layout | Area | Facing | Contact Us |
| 8,750 x 10,000 yen Yield 3.55% | 6F | 2LDK | 64.9㎡ | W | |||
| Contact Us Favorite Details | |||||||
Detailed Information about this Room
Management Fee: 14,600 yen
Repair Fund: 5,200 yen
Other Monthly Charges: 0 yen
Monthly Total: 19,800 yen
Layout: 2LDK(洋6.7 洋5.8 LDK14.8 )
Status: Rented
Delivery Date: Available
Facilities: Barrier-free/Separate kitchen/Gas stove/Separate bath and toilet/Reheating function/Bathroom dryer/Floor heating/Indoor washing machine/Closet/Shoe box/Garbage disposer/Dishwasher
Current Yield: 3.55%
On Sale |
Owner Change | Price | Floor | Layout | Area | Facing | Contact Us |
| 11,000 x 10,000 yen Yield 3.27% | 32F | 2LDK | 56.72㎡ | W | |||
| Contact Us Favorite Details | |||||||
Detailed Information about this Room
Management Fee: 12,800 yen
Repair Fund: 10,780 yen
Other Monthly Charges: 0 yen
Monthly Total: 23,580 yen
Layout: 2LDK(洋6.1 洋4.5 LDK14.5)
Status: Rented
Delivery Date: Available
Facilities: Good view/Barrier-free/Separate kitchen/Gas stove/Separate bath and toilet/Reheating function/Bathroom dryer/Floor heating/Indoor washing machine/Closet/Shoe box/Garbage disposer/Dishwasher
Current Yield: 3.27%
On Sale |
Owner Change | Price | Floor | Layout | Area | Facing | Contact Us |
| 11,000 x 10,000 yen Yield 3.16% | 33F | 2LDK | 56.72㎡ | W | |||
| Contact Us Favorite Details | |||||||
Detailed Information about this Room
Management Fee: 12,800 yen
Repair Fund: 4,540 yen
Other Monthly Charges: 0 yen
Monthly Total: 17,340 yen
Layout: 2LDK(洋6.1 洋4.5 LDK14.5)
Status: Rented
Delivery Date: Available
Facilities: Good view/Barrier-free/Separate kitchen/Separate bath and toilet/Reheating function/Bathroom dryer/Floor heating/Indoor washing machine/Closet/Shoe box/Garbage disposer/Dishwasher
Current Yield: 3.16%
Reference Sales Price
Price 7,280x 10,000 yen~17,100x 10,000 yen(Average Price11,805x 10,000 yen)
Price per Square Meter 132x 10,000 yen/㎡~201x 10,000 yen/㎡(Average Unit Price172x 10,000 yen/㎡)
BLANZ TOWER MIDOSUJI HONMACHIThis is reference information based on current property listings.
Available Rental Properties
TODAY
Updated Today
NEW
New Listings (Within 7 Days)
Available | Rental | Rent | Floor | Layout | Area | Facing | Contact Us |
| 23 x 10,000 yen | 19F | 2LDK | 62㎡ | E | |||
| Contact Us Favorite Details | |||||||
Detailed Information about this Room
Management Fee: 20,000 yen
Other Monthly Charges: 0 yen
Monthly Total: 20,000 yen
Gratuity Fee: 2Months
Layout: 2LDK(洋6.5 洋5.5 LDK13.1)
Status: Vacant
Delivery Date: Consultation
Regular Lease:
Facilities: Barrier-free/For sale/rent/Separate kitchen/Gas stove/Separate bath and toilet/Reheating function/Bathroom dryer/Floor heating/Indoor washing machine/Closet/Air conditioner/Shoe-in closet/Garbage disposer/Dishwasher
Available | RentalPets Allowed | Rent | Floor | Layout | Area | Facing | Contact Us |
| 25 x 10,000 yen | 8F | 3LDK | 69㎡ | NW | |||
| Pets Allowed Contact Us Favorite Details | |||||||
Detailed Information about this Room
Management Fee: 0 yen
Other Monthly Charges: 0 yen
Monthly Total: 0 yen
Deposit: 1Months
Gratuity Fee: 2Months
Layout: 3LDK(洋6.1 洋5.0 洋4.5 LDK13.7)
Status: Vacant
Delivery Date: Consultation
Regular Lease:
Facilities: Barrier-free/For sale/rent/Counter kitchen/Gas stove/Separate bath and toilet/Reheating function/Bathroom dryer/Floor heating/Indoor washing machine/Closet/Shoe box/More than two balconies/Garbage disposer/Dishwasher/Corner room
Available | RentalPets Allowed | Rent | Floor | Layout | Area | Facing | Contact Us |
| 32 x 10,000 yen | 28F | 2LDK | 56.72㎡ | W | |||
| Pets Allowed Contact Us Favorite Details | |||||||
Detailed Information about this Room
Management Fee: 10,000 yen
Other Monthly Charges: 0 yen
Monthly Total: 10,000 yen
Deposit: 1Months
Gratuity Fee: 2Months
Layout: 2LDK(洋6.1 洋4.5 LDK14.5)
Status: Vacant
Delivery Date: Consultation
Regular Lease: 2 year(s)
Facilities: Good view/Barrier-free/For sale/rent/Separate kitchen/Gas stove/Separate bath and toilet/Reheating function/Bathroom dryer/Floor heating/Indoor washing machine/Closet/Shoe box/Garbage disposer/Dishwasher
Available | Rental | Rent | Floor | Layout | Area | Facing | Contact Us |
| 38 x 10,000 yen | 21F | 3SLDK | 81.89㎡ | SE | |||
| Contact Us Favorite Details | |||||||
Detailed Information about this Room
Management Fee: 30,000 yen
Other Monthly Charges: 0 yen
Monthly Total: 30,000 yen
Gratuity Fee: 2Months
Layout: 3SLDK(洋7.0 洋5.0 洋5.0 LDK18.2)
Status: Vacant
Delivery Date: Immediate
Regular Lease: 2 year(s)
Facilities: Good view/Barrier-free/For sale/rent/Counter kitchen/Separate bath and toilet/Reheating function/Bathroom dryer/Floor heating/Indoor washing machine/Closet/Walk-in closet/Air conditioner/Shoe box/Garbage disposer/Dishwasher/Corner room
Available | Rental | Rent | Floor | Layout | Area | Facing | Contact Us |
| 42 x 10,000 yen | 35F | 2SLDK | 89.98㎡ | E | |||
| Contact Us Favorite Details | |||||||
Detailed Information about this Room
Management Fee: 30,000 yen
Other Monthly Charges: 0 yen
Monthly Total: 30,000 yen
Deposit: 0.5Months
Gratuity Fee: 1Months
Layout: 2SLDK(洋7.4 洋5.0 S LDK19.6)
Status: Vacant
Delivery Date: Immediate
Regular Lease: 2 year(s)
Facilities: Good view/Barrier-free/For sale/rent/U-shaped kitchen/Gas stove/Separate bath and toilet/Reheating function/Bathroom dryer/Floor heating/Indoor washing machine/Closet/Walk-in closet/Air conditioner/Shoe box/Garbage disposer/Dishwasher
Reference Rental Price
Rent(Monthly Rent) 230,000¥~420,000¥(Average Rent320,000¥)
Price per Square Meter 3,623¥/㎡~5,642¥/㎡(Average Unit Price4,456¥/㎡)
BLANZ TOWER MIDOSUJI HONMACHIThis is reference information based on current property listings.
Shortened URL for this Room:https://www.tower.ne.jp/rm/27878/











































