2022年7月に竣工する地上30階建て総戸数172戸タワーマンション
❤️14名の方がこの物件を気に入っています
目次
シエリアタワー大阪天満橋の物件写真
タワーマンションを「借りたい方・買いたい方」、「売却査定・賃料査定」など何でもお気軽にお問い合わせください。
シエリアタワー大阪天満橋の概要・物件情報
基本情報
- 所在地
- 📍大阪市北区天満1丁目 [地図表示]
- 交通
- 🚉大阪メトロ谷町線 天満橋駅まで徒歩4分
🚉JR東西線 大阪天満宮駅まで徒歩11分 - 築年月
- 🎂2022年7月
- 構造等
- 鉄筋コン/地上30階建地下1階
- 総戸数
- 172戸
- 管理方式
- 通勤(日勤)
- 用途地域
- 商業地域
- 建ぺい率
- 53%
- 建ぺい率
- 898%
- 土地権利
- 所有権
- 地勢
- 平坦
- 国土法届出
- 不要
シエリアタワー大阪天満橋
「シエリアタワー大阪天満橋」に住みたいお客様(購入・賃貸)、住替え等にて売却を検討や賃料条件から部屋付け家賃管理等ご検討の所有者(オーナー様)の方、大阪市内の中古タワーマンション専門のプレミアム不動産へお気軽にご相談ください。
どこよりも潤い漂うタワーへ
ゆるやかに流れる大川のきらめき、心を潤す桜や緑、天神祭をはじめとする風物詩の数々
天神橋を渡れば、はや心は賑わいにシフト、大阪市中心部の華やぎを身近に未来へのときめきを実感 ここにしかない住の価値と贅の本質に磨きをかけて、理想の都心居宅を目指した「シエリアタワー大阪天満橋」が誕生します
◆共用施設◆
1階:ラウンジ
屋上:スカイテラス
◆駐車場◆
機械式70台
月額/28,000円~35,000円
◆バイク置場◆
バイク 4台:月額/3,000円
ミニバイク 31台:月額/2,000円
◆自転車置場◆
344台:月額/100円~500円
※管理組合に最新空車確認ならびに実際に駐車してご確認ください。
共用設備
- 主要
制震構造 タワー型 オートロック エレベータ 宅配ボックス スカイラウンジ コンシェルジュ
駐車場・駐輪場
この物件のメリット・デメリット
メリット
- 最上階は、住戸専有面積100㎡超(109.71㎡、112.64㎡、124.72㎡、134.44㎡)の4邸のみのプレミアムフロアとなっております
デメリット
- 谷町筋沿いにて西側住戸の騒音とかはどうなんでしょう
シエリアタワー大阪天満橋のよくある質問
タワーマンションを「借りたい方・買いたい方」、「売却査定・賃料査定」など何でもお気軽にお問い合わせください。
分譲・中古・売り物件一覧
TODAY
本日更新
NEW
新着(7日以内)
売出中 |
売買NEWペット | 価格 | 階層 | 間取 | 面積 | 向 | お問い合せ |
| 17,200万円 | 26階 | 3LDK | 92.74㎡ | 北東 | |||
| ペット お問い合せ お気に入り 詳細表示 | |||||||
このお部屋の詳細情報
管理費 18,700円
修繕積立金 9,300円
その他月額費 1,540円
月額合計金額 29,540円
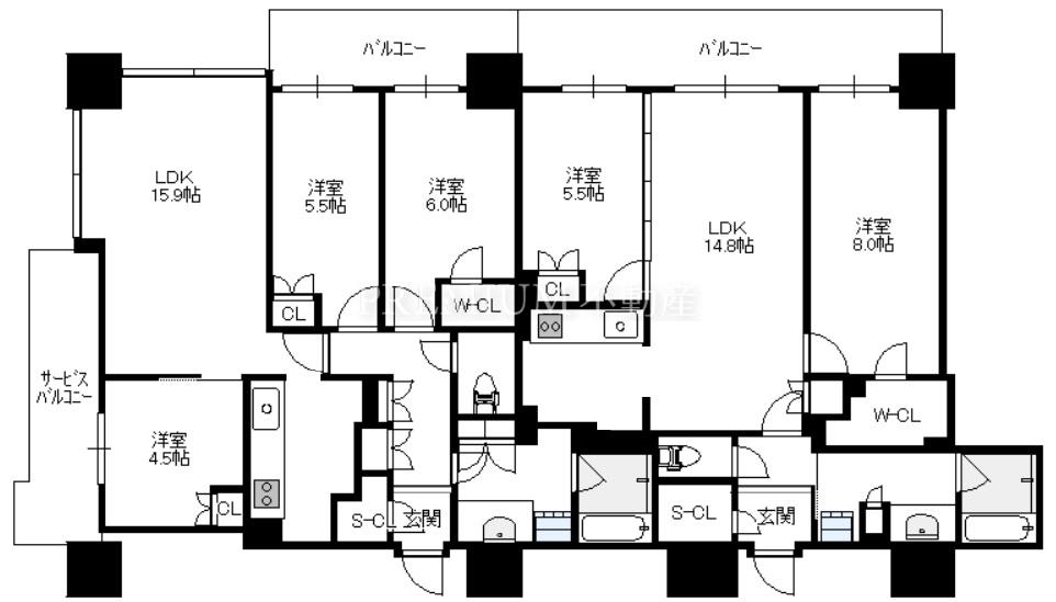
間取り 3LDK(洋6.5 洋5.5 洋4.9 LDK20.6)
現況 居住中
引き渡し 募集中
設備 オーシャン・リバービュー/花火大会観賞/眺望良好/バリアフリー/対面式キッチン/IHクッキングヒーター/バス・トイレ別/追い炊き機能/浴室乾燥機/床暖房/室内洗濯機/クローゼット/ウォークインクローゼット/シューズ・ボックス/シューズインクローゼット/ディスポーザー/食洗機/角部屋/大阪城が見える/LDK20帖以上
売出中 |
売買ペット | 価格 | 階層 | 間取 | 面積 | 向 | お問い合せ |
| 11,500万円 | 23階 | 2LDK | 73.86㎡ | 北西 | |||
| ペット お問い合せ お気に入り 詳細表示 | |||||||
このお部屋の詳細情報
管理費 14,900円
修繕積立金 7,400円
その他月額費 1,540円
月額合計金額 23,840円
間取り 2LDK(洋7.2 洋4.5 LDK21.0)
現況 居住中
引き渡し 募集中
設備 花火大会観賞/バリアフリー/独立型キッチン/IHクッキングヒーター/バス・トイレ別/追い炊き機能/浴室乾燥機/室内洗濯機/クローゼット/ウォークインクローゼット/シューズインクローゼット/ディスポーザー/食洗機/LDK20帖以上
売出中 |
売買ペット | 価格 | 階層 | 間取 | 面積 | 向 | お問い合せ |
| 12,800万円 | 29階 | 2LDK | 55.09㎡ | 南 | |||
| ペット お問い合せ お気に入り 詳細表示 | |||||||
このお部屋の詳細情報
管理費 11,100円
修繕積立金 5,600円
その他月額費 1,540円
月額合計金額 18,240円
間取り 2LDK(洋6.3 洋4.7 LDK11.3)
現況 居住中
引き渡し 募集中
設備 眺望良好/バリアフリー/対面式キッチン/IHクッキングヒーター/バス・トイレ別/追い炊き機能/浴室乾燥機/室内洗濯機/クローゼット/ウォークインクローゼット/シューズ・ボックス/ディスポーザー/食洗機
| オーナーチェンジ |
参考売買相場価格
価格 11,500万円~17,200万円(平均価格14,575万円)
平米単価 156万円/㎡~232万円/㎡(平均単価188万円/㎡)
シエリアタワー大阪天満橋の掲載中の物件情報を元にした参考情報です
お手軽簡単売却価格査定
プレミアム不動産のAI売却価格査定では約20秒程度の入力で瞬時にご指定のタワーマンションの売却価格相場を調べることが出来ます。登録や個人情報の入力も不要ですので個人情報やしつこい営業の心配もなく安心してお使い頂けます。
空室・賃貸物件一覧
TODAY
本日更新
NEW
新着(7日以内)
現在、シエリアタワー大阪天満橋の募集中空室がございません。
この建物の短縮URL:https://www.tower.ne.jp/bl/219/








