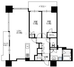
シエリアタワー大阪天満橋(大阪市北区天満1丁目)にある2LDK(洋10.5 洋4.3 LDK18.7)のお部屋です。 専有面積:74.44㎡、17階 / 地上30階建、方角:南東。 価格:1億4000万円、管理費:15000円、修繕積立金:7500円。 最寄駅:天満橋駅(大阪メトロ谷町線)徒歩4分、大阪天満宮駅(JR東西線)徒歩11分。 建物設備:オートロック・宅配ボックス・スカイラウンジ・コンシェルジュ。 部屋設備:ウォークインクローゼット・ディスポーザー・食洗機・バス・トイレ別・追い炊き機能・浴室乾燥機・室内洗濯機・クローゼット。 特徴:花火大会観賞。 建物概要:2022年7月に竣工する地上30階建て総戸数172戸タワーマンション
目次
シエリアタワー大阪天満橋の物件写真
お部屋情報
お気に入り お問い合わせ
募集中 |
売買 | 価格 | 所在階 | 間取り | 専有面積 | 方位 |
| 14,000万円 | 17階 | 2LDK | 74.44㎡ | 南東 |
管理費 15,000円
修繕積立金 7,500円
その他月額費 1,540円
月額合計金額 24,040円
水道料金 実費
間取り 2LDK(洋10.5 洋4.3 LDK18.7)
現況 居住中
引き渡し 相談
設備
ペット 相談
インターネット使用料:月/1,540円
ローン返済額
毎月の返済額の目安 : 391,622円
借入金額14,000万円、金利0.945%、返済期間35年での計算です。
※元利均等返済方式での計算になります。あくまでもご返済の目安にするものになりますので、詳細は各銀行でご確認下さい(三菱UFJ銀行 新規借り入れシミュレーション)。
タワーマンションを「借りたい方・買いたい方」、「売却査定・賃料査定」など何でもお気軽にお問い合わせください。
シエリアタワー大阪天満橋の概要・物件情報
基本情報
- 所在地
- 📍大阪市北区天満1丁目 [地図表示]
- 交通
- 🚉大阪メトロ谷町線 天満橋駅まで徒歩4分
🚉JR東西線 大阪天満宮駅まで徒歩11分 - 築年月
- 🎂2022年7月
- 構造等
- 鉄筋コン/地上30階建地下1階
- 総戸数
- 172戸
- 管理方式
- 通勤(日勤)
- 用途地域
- 商業地域
- 建ぺい率
- 53%
- 建ぺい率
- 898%
- 土地権利
- 所有権
- 地勢
- 平坦
- 国土法届出
- 不要
シエリアタワー大阪天満橋
「シエリアタワー大阪天満橋」に住みたいお客様(購入・賃貸)、住替え等にて売却を検討や賃料条件から部屋付け家賃管理等ご検討の所有者(オーナー様)の方、大阪市内の中古タワーマンション専門のプレミアム不動産へお気軽にご相談ください。
どこよりも潤い漂うタワーへ
ゆるやかに流れる大川のきらめき、心を潤す桜や緑、天神祭をはじめとする風物詩の数々
天神橋を渡れば、はや心は賑わいにシフト、大阪市中心部の華やぎを身近に未来へのときめきを実感 ここにしかない住の価値と贅の本質に磨きをかけて、理想の都心居宅を目指した「シエリアタワー大阪天満橋」が誕生します
◆共用施設◆
1階:ラウンジ
屋上:スカイテラス
◆駐車場◆
機械式70台
月額/28,000円~35,000円
◆バイク置場◆
バイク 4台:月額/3,000円
ミニバイク 31台:月額/2,000円
◆自転車置場◆
344台:月額/100円~500円
※管理組合に最新空車確認ならびに実際に駐車してご確認ください。
共用設備
- 主要
制震構造 タワー型 オートロック エレベータ 宅配ボックス スカイラウンジ コンシェルジュ
駐車場・駐輪場
この物件のメリット・デメリット
メリット
- 最上階は、住戸専有面積100㎡超(109.71㎡、112.64㎡、124.72㎡、134.44㎡)の4邸のみのプレミアムフロアとなっております
デメリット
- 谷町筋沿いにて西側住戸の騒音とかはどうなんでしょう
分譲・中古・売り物件一覧
TODAY
本日更新
NEW
新着(7日以内)
売出中 |
売買ペット | 価格 | 階層 | 間取 | 面積 | 向 | お問い合せ |
| 11,800万円 | 28階 | 2LDK | 73.86㎡ | 北西 | |||
| ペット お問い合せ お気に入り 詳細表示 | |||||||
このお部屋の詳細情報
管理費 14,900円
修繕積立金 7,400円
その他月額費 1,540円
月額合計金額 23,840円
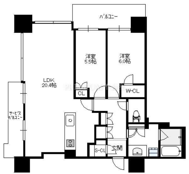
間取り 2LDK(洋6.0 洋5.5 LDK20.4)
現況 空室
引き渡し 募集中
設備 花火大会観賞/バリアフリー/独立型キッチン/IHクッキングヒーター/バス・トイレ別/追い炊き機能/浴室乾燥機/室内洗濯機/クローゼット/ウォークインクローゼット/シューズインクローゼット/ディスポーザー/食洗機/LDK20帖以上
| 売買 |
売出中 |
売買ペット | 価格 | 階層 | 間取 | 面積 | 向 | お問い合せ |
| 11,980万円 | 23階 | 2LDK | 73.86㎡ | 北西 | |||
| ペット お問い合せ お気に入り 詳細表示 | |||||||
このお部屋の詳細情報
管理費 14,900円
修繕積立金 7,400円
その他月額費 1,540円
月額合計金額 23,840円
間取り 2LDK(洋6.0 洋5.5 LDK20.4)
現況 空室
引き渡し 募集中
設備 花火大会観賞/バリアフリー/独立型キッチン/IHクッキングヒーター/バス・トイレ別/追い炊き機能/浴室乾燥機/室内洗濯機/クローゼット/ウォークインクローゼット/シューズインクローゼット/ディスポーザー/食洗機/LDK20帖以上
売出中 |
売買ペット | 価格 | 階層 | 間取 | 面積 | 向 | お問い合せ |
| 14,000万円 | 17階 | 2LDK | 74.44㎡ | 南東 | |||
| ペット お問い合せ お気に入り 詳細表示 | |||||||
このお部屋の詳細情報
管理費 15,000円
修繕積立金 7,500円
その他月額費 1,540円
月額合計金額 24,040円
間取り 2LDK(洋10.5 洋4.3 LDK18.7)
現況 居住中
引き渡し 募集中
設備 花火大会観賞/バリアフリー/対面式キッチン/IHクッキングヒーター/バス・トイレ別/追い炊き機能/浴室乾燥機/室内洗濯機/クローゼット/ウォークインクローゼット/シューズインクローゼット/ディスポーザー/食洗機
| オーナーチェンジ |
参考売買相場価格
価格 6,000万円~16,800万円(平均価格12,116万円)
平米単価 152万円/㎡~188万円/㎡(平均単価168万円/㎡)
シエリアタワー大阪天満橋の掲載中の物件情報を元にした参考情報です
空室・賃貸物件一覧
TODAY
本日更新
NEW
新着(7日以内)
現在、シエリアタワー大阪天満橋の募集中空室がございません。
このお部屋の短縮URL:https://www.tower.ne.jp/rm/29991/






