大林組施工の2010年に竣工した地上45階建て総戸数650戸の大規模タワーマンション
目次
シティタワー大阪天満ザ・リバー&パークスの物件写真
借りたい・買いたい
タワーマンションを「借りたい方・買いたい方」、「売却査定・賃料査定」など何でもお気軽にお問い合わせください。
シティタワー大阪天満ザ・リバー&パークスの概要・物件情報
基本情報
- 所在地
- 📍大阪市北区樋之口町 [地図表示]
- 交通
- 🚉大阪メトロ堺筋線 天神橋筋六丁目駅まで徒歩6分
🚉大阪環状線 天満駅まで徒歩8分 - 築年月
- 🎂2010年2月
- 構造等
- 鉄筋コン/地上45階建地下1階
- 総戸数
- 650戸
- 管理方式
- 通勤(日勤)
- 用途地域
- 商業地域
- 建ぺい率
- 80%
- 建ぺい率
- 400%
- 土地権利
- 所有権
- 地勢
- 平坦
- 国土法届出
- 不要
シティタワー大阪天満ザ・リバー&パークス
「ティタワー大阪天満ザ・リバー&パークス」に住みたいお客様(購入・賃貸)、住替え等にて売却を検討や賃料条件から部屋付け家賃管理等ご検討の所有者(オーナー様)の方、大阪市内の中古タワーマンション専門のプレミアム不動産へお気軽にご相談ください。
リバーサイドの風光明媚を都心で満喫。
梅田へわずか、約1.7km。大阪の中心を手中とする格好のポジション。
東西最大約83m、南北最大約157m、敷地面積約10,642㎡という広大なる敷地にそびえる、都市景観をリードするランドマーク「シティタワー大阪天満ザ・リバー&パークス」。
“都市の庭”と“都市の杜”をテーマとした大庭園が整備され都心にありながら、清々しい緑豊かなランドスケープ。ホテルライクなエントランスホールには日々の生活をサポートするコンシェルジュデスクがあります。
重厚な天然関や赤石タイルをあしらったコーチエントランスは、車寄せスペースを設け、荷物の積み下ろしやタワーパーキングの入庫待ちなども快適にできるホテルライクなゆとりの空間。2階には、日用品を販売するショップを併設したガーデンカフェを設置。
大川リバーサイドに位置し、梅田へ直線距離で約1.7km圏のポジション。
春には毛馬桜之宮公園の桜を、夏には船渡御が織りなす天神祭と、このエリアならではの季節の風趣をお楽しみいただけます。
現地周辺には天神橋筋商店街があり、昔ながらの雰囲気を彷彿とさせる市場の活気を満喫できます。梅田エリアに集積する大型百貨店やショッピング施設、グルメやエンターテイメントなどのスポットへも、自転車で行けるのが魅力。
大阪のメガシティにあふれる賑わいと華やぎを、毎日でも気軽に楽しめます。
フィットネスルーム(ジム)、スカイラウンジ、ゲストルームなど共用施設が充実しています。
◆共用施設◆
2階:コンシェルジュサービス・ゲストルーム・フィットネスルーム・ガーデンカフェ・ガーデンテラス
34階:スカイラウンジ・スカイゲストルーム
◆駐車場◆
月/19,000円〜36,000円
乗用車、ミドルルーフ車、ハイルーフ車
◆バイク置場◆
月/1,000円〜2,100円
◆自転車置場◆
月/100円〜200円
※管理組合に最新空車確認ならびに実際に駐車してご確認ください。
共用設備
- 主要
制震構造 タワー型 オートロック エレベータ 宅配ボックス オール電化 ゲストルーム ジム スカイラウンジ コミュニティルーム コンシェルジュ パーティールーム
駐車場・駐輪場
この物件のメリット・デメリット
メリット
- 近隣には高い建物がなく東西南北ともに眺望が望め、大川もあり住環境良好な立地です
デメリット
- 最寄駅より少し離れているため、電車利用される方は不便かもしれません
シティタワー大阪天満ザ・リバー&パークスのよくある質問
借りたい・買いたい
タワーマンションを「借りたい方・買いたい方」、「売却査定・賃料査定」など何でもお気軽にお問い合わせください。
分譲・中古・売り物件一覧
TODAY
本日更新
NEW
新着(7日以内)
売出中 |
売買ペット | 価格 | 階層 | 間取 | 面積 | 向 | お問い合せ |
| 9,998万円 | 34階 | 2LDK | 67.16㎡ | 西 | |||
| ペット お問い合せ お気に入り 詳細表示 | |||||||
このお部屋の詳細情報
管理費 14,231円
修繕積立金 14,200円
月額合計金額 28,431円
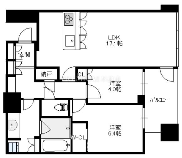
間取り 2LDK(洋6.4 洋4.0 LDK17.1)
現況 空室
引き渡し 募集中
設備 眺望良好/バリアフリー/対面式キッチン/IHクッキングヒーター/バス・トイレ別/追い炊き機能/浴室乾燥機/床暖房/室内洗濯機/クローゼット/ウォークインクローゼット/エアコン/シューズ・ボックス/ディスポーザー/食洗機
売出中 |
売買ペット | 価格 | 階層 | 間取 | 面積 | 向 | お問い合せ |
| 6,480万円 | 4階 | 2LDK | 60.79㎡ | 西 | |||
| ペット お問い合せ お気に入り 詳細表示 | |||||||
このお部屋の詳細情報
管理費 13,031円
修繕積立金 12,850円
月額合計金額 25,881円
間取り 2LDK(洋6.5 洋4.5 LDK14.2)
現況 居住中
引き渡し 募集中
設備 バリアフリー/独立型キッチン/IHクッキングヒーター/バス・トイレ別/追い炊き機能/浴室乾燥機/床暖房/室内洗濯機/クローゼット/ウォークインクローゼット/シューズ・ボックス/ディスポーザー/食洗機
| 売買 |
| 売買 |
売出中 |
売買ペット | 価格 | 階層 | 間取 | 面積 | 向 | お問い合せ |
| 9,180万円 | 11階 | 3LDK | 73.7㎡ | 東 | |||
| ペット お問い合せ お気に入り 詳細表示 | |||||||
このお部屋の詳細情報
管理費 15,431円
修繕積立金 15,580円
月額合計金額 31,011円
間取り 3LDK(洋6.0 洋5.6 洋5.0 LDK15.4)
現況 空室
引き渡し 募集中
設備 花火大会観賞/バリアフリー/独立型キッチン/IHクッキングヒーター/バス・トイレ別/追い炊き機能/浴室乾燥機/床暖房/室内洗濯機/クローゼット/ウォークインクローゼット/シューズ・ボックス/ディスポーザー/食洗機
| 売買 |
売出中 |
売買ペット | 価格 | 階層 | 間取 | 面積 | 向 | お問い合せ |
| 6,180万円 | 11階 | 1SLDK | 56.03㎡ | 西 | |||
| ペット お問い合せ お気に入り 詳細表示 | |||||||
このお部屋の詳細情報
管理費 12,231円
修繕積立金 11,850円
月額合計金額 24,081円
間取り 1SLDK(洋6.4 S1.2 LDK15.3)
現況 居住中
引き渡し 募集中
設備 バリアフリー/対面式キッチン/IHクッキングヒーター/バス・トイレ別/追い炊き機能/浴室乾燥機/床暖房/室内洗濯機/ウォークインクローゼット/エアコン/シューズ・ボックス/角部屋
売出中 |
売買ペット | 価格 | 階層 | 間取 | 面積 | 向 | お問い合せ |
| 7,380万円 | 27階 | 2LDK | 65.97㎡ | 東 | |||
| ペット お問い合せ お気に入り 詳細表示 | |||||||
このお部屋の詳細情報
管理費 14,031円
修繕積立金 13,950円
月額合計金額 27,981円
間取り 2LDK(洋6.0 洋4.6 LDK18.1)
現況 居住中
引き渡し 募集中
設備 眺望良好/バリアフリー/対面式キッチン/IHクッキングヒーター/バス・トイレ別/追い炊き機能/浴室乾燥機/床暖房/室内洗濯機/クローゼット/シューズ・ボックス/ディスポーザー/食洗機
売出中 |
売買ペット | 価格 | 階層 | 間取 | 面積 | 向 | お問い合せ |
| 8,680万円 | 8階 | 3SLDK | 78.11㎡ | 北東 | |||
| ペット お問い合せ お気に入り 詳細表示 | |||||||
このお部屋の詳細情報
管理費 16,231円
修繕積立金 16,520円
月額合計金額 32,751円
間取り 3SLDK(洋6.0 洋5.5 洋4.7 LDK15.8)
現況 空室
引き渡し 募集中
設備 花火大会観賞/独立型キッチン/IHクッキングヒーター/バス・トイレ別/追い炊き機能/浴室乾燥機/床暖房/室内洗濯機/クローゼット/ウォークインクローゼット/シューズ・ボックス/シューズインクローゼット/2面以上バルコニー/ディスポーザー/食洗機/角部屋
| 売買 |
| 売買 |
| 売買 |
| 売買 |
| 売買 |
売出中 |
売買ペット | 価格 | 階層 | 間取 | 面積 | 向 | お問い合せ |
| 12,800万円 | 35階 | 2LDK | 86.08㎡ | 南西 | |||
| ペット お問い合せ お気に入り 詳細表示 | |||||||
このお部屋の詳細情報
管理費 17,731円
修繕積立金 18,200円
月額合計金額 35,931円
間取り 2LDK(洋8.1 洋5.2 LDK26.6)
現況 居住中
引き渡し 募集中
設備 花火大会観賞/眺望良好/バリアフリー/IHクッキングヒーター/バス・トイレ別/追い炊き機能/浴室乾燥機/床暖房/室内洗濯機/クローゼット/ウォークインクローゼット/シューズインクローゼット/ディスポーザー/食洗機/角部屋/LDK20帖以上
| 売買 |
| 売買 |
| オーナーチェンジ |
| オーナーチェンジ |
売出中 |
オーナーチェンジNEW | 価格 | 階層 | 間取 | 面積 | 向 | お問い合せ |
| 12,000万円 利回り 2.8% | 35階 | 3LDK | 73㎡ | 北東 | |||
| お問い合せ お気に入り 詳細表示 | |||||||
このお部屋の詳細情報
管理費 15,431円
修繕積立金 15,560円
月額合計金額 30,991円
間取り 3LDK(洋8.0 洋6.0 洋5.6 LDK15.4)
現況 賃貸中
引き渡し 募集中
設備 眺望良好/バリアフリー/独立型キッチン/IHクッキングヒーター/バス・トイレ別/追い炊き機能/浴室乾燥機/床暖房/室内洗濯機/クローゼット/ウォークインクローゼット/シューズ・ボックス/角部屋
現行利回り 2.8%
| オーナーチェンジ |
| オーナーチェンジ |
参考売買相場価格
価格 4,380万円~15,980万円(平均価格9,479万円)
平米単価 106万円/㎡~186万円/㎡(平均単価133万円/㎡)
シティタワー大阪天満ザ・リバー&パークスの掲載中の物件情報を元にした参考情報です
お手軽簡単売却価格査定
プレミアム不動産のAI売却価格査定では約20秒程度の入力で瞬時にご指定のタワーマンションの売却価格相場を調べることが出来ます。登録や個人情報の入力も不要ですので個人情報やしつこい営業の心配もなく安心してお使い頂けます。
空室・賃貸物件一覧
TODAY
本日更新
NEW
新着(7日以内)
現在、シティタワー大阪天満ザ・リバー&パークスの募集中空室がございません。
この建物の短縮URL:https://www.tower.ne.jp/bl/91/
































