竹中工務店施工の2017年に竣工した地上38階建て総戸数276戸タワーマンション
❤️4名の方がこの物件を気に入っています
目次
ブランズタワー御堂筋本町の物件写真
借りたい・買いたい
タワーマンションを「借りたい方・買いたい方」、「売却査定・賃料査定」など何でもお気軽にお問い合わせください。
ブランズタワー御堂筋本町の概要・物件情報
基本情報
- 所在地
- 📍大阪市中央区南本町4丁目 [地図表示]
- 交通
- 駅直結
🚉大阪メトロ御堂筋線 本町駅まで徒歩1分
🚉大阪メトロ中央線 堺筋本町駅まで徒歩7分 - 築年月
- 🎂2017年9月
- 構造等
- 鉄筋コン/地上38階建
- 総戸数
- 276戸
- 管理方式
- 通勤(日勤)
- 用途地域
- 商業地域
- 建ぺい率
- 80%
- 建ぺい率
- 1000%
- 土地権利
- 所有権
- 地勢
- 平坦
- 国土法届出
- 不要
ブランズタワー御堂筋本町
「ブランズタワー御堂筋本町(BRANZタワー御堂筋本町)」に住みたいお客様(購入・賃貸)、住替え等にて売却を検討や賃料条件から部屋付け家賃管理等ご検討の所有者(オーナー様)の方、大阪市内の中古タワーマンション専門のプレミアム不動産へお気軽にご相談ください。
史上初・御堂筋線「本町」駅直結。
御堂筋線「本町」駅直結・中央線「本町」駅直結・四つ橋線「本町」駅直結!
最新の免振構造を採用した、38階建て、総戸数276戸。
キッチン、浴室、洗面、収納すべの快適性を追求した機能的な設備・仕様。
トリプルセキュリティシステムや、カラーモニター付きインターホン、24時間有人管理、24時間遠隔監視システム、防犯カメラ、各住戸扉に備えたセキュリティなど、24時間365日、絶え間ない安心を守ります。
◆共用設備◆
1階:オーナーズホール
2階:コンシェルジュサービス・グランドエントランス
38階:(最上階)スカイラウンジ・スカイビューテラス・スカイゲストルームが集約
◆24時間有人管理◆
管理員(8〜17時)
コンシェルジュ(17〜21時)
警備員(21〜8時)
◆駐車場◆
エレベーターパーキング(113台)
普通車(月/30,000円)
ミドルルーフ車(月/33,000円)
ハイルーフ車(月/35,000円)
ハイルーフ車(EV充電対応)(月/37,000円)
◆バイク置場◆
バイク(6台)月/2,000円
ミニバイク(28台)月/1,500円
◆自転車置場◆
スライドラック(下段193台)月/300円
スライドラック(上段193台)月/200円
平面式(8台)月/500円
※管理組合に最新空車確認ならびに実際に駐車してご確認ください。
共用設備
- 主要
免震構造 タワー型 オートロック エレベータ 宅配ボックス ゲストルーム スカイラウンジ コミュニティルーム コンシェルジュ パーティールーム
駐車場・駐輪場
この物件のメリット・デメリット
メリット
- ビジネス街の中心地にある各3沿線「本町」駅直結の免震構造
デメリット
- 南側は中央大通り・阪神高速16号大阪港線に面し騒音が気になるところ
ブランズタワー御堂筋本町のよくある質問
借りたい・買いたい
タワーマンションを「借りたい方・買いたい方」、「売却査定・賃料査定」など何でもお気軽にお問い合わせください。
分譲・中古・売り物件一覧
TODAY
本日更新
NEW
新着(7日以内)
売出中 |
売買ペット | 価格 | 階層 | 間取 | 面積 | 向 | お問い合せ |
| 14,800万円 | 18階 | 2LDK | 81.89㎡ | 南東 | |||
| ペット お問い合せ お気に入り 詳細表示 | |||||||
このお部屋の詳細情報
管理費 18,400円
修繕積立金 6,550円
その他月額費 0円
月額合計金額 24,950円
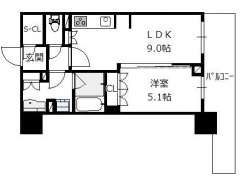
間取り 2LDK(洋7.0 洋5.0 LDK23.2)
現況 空室
引き渡し 募集中
設備 バリアフリー/対面式キッチン/ガスコンロ/バス・トイレ別/追い炊き機能/浴室乾燥機/床暖房/室内洗濯機/クローゼット/ウォークインクローゼット/シューズ・ボックス/ディスポーザー/食洗機/角部屋/LDK20帖以上
売出中 |
売買NEWペット | 価格 | 階層 | 間取 | 面積 | 向 | お問い合せ |
| 12,000万円 | 16階 | 2LDK | 70.64㎡ | 北東 | |||
| ペット お問い合せ お気に入り 詳細表示 | |||||||
このお部屋の詳細情報
管理費 15,900円
修繕積立金 13,420円
その他月額費 0円
月額合計金額 29,320円
間取り 2LDK(洋7.1 洋5.6 LDK17.7 )
現況 空室
引き渡し 募集中
設備 バリアフリー/対面式キッチン/バス・トイレ別/追い炊き機能/浴室乾燥機/床暖房/室内洗濯機/クローゼット/ウォークインクローゼット/エアコン/シューズ・ボックス/ディスポーザー/食洗機/角部屋
| 売買 |
| 売買 |
| 売買 |
| 売買 |
売出中 |
売買ペット | 価格 | 階層 | 間取 | 面積 | 向 | お問い合せ |
| 16,980万円 | 36階 | 2SLDK | 89.98㎡ | 東 | |||
| ペット お問い合せ お気に入り 詳細表示 | |||||||
このお部屋の詳細情報
管理費 20,200円
修繕積立金 17,100円
その他月額費 0円
月額合計金額 37,300円
間取り 2SLDK(洋7.4 洋5.0 S.09 LDK23.2)
現況 空室
引き渡し 募集中
設備 眺望良好/バリアフリー/U字型キッチン/ガスコンロ/バス・トイレ別/追い炊き機能/浴室乾燥機/床暖房/室内洗濯機/クローゼット/ウォークインクローゼット/エアコン/シューズ・ボックス/ディスポーザー/食洗機/LDK20帖以上
| 売買 |
売出中 |
オーナーチェンジ | 価格 | 階層 | 間取 | 面積 | 向 | お問い合せ |
| 9,580万円 利回り 3.51% | 25階 | 1LDK | 56.72㎡ | 西 | |||
| お問い合せ お気に入り 詳細表示 | |||||||
このお部屋の詳細情報
管理費 12,800円
修繕積立金 10,780円
その他月額費 0円
月額合計金額 23,580円
間取り 1LDK(洋4.5 LDK19.5)
現況 賃貸中
引き渡し 募集中
設備 眺望良好/バリアフリー/独立型キッチン/ガスコンロ/バス・トイレ別/追い炊き機能/浴室乾燥機/床暖房/室内洗濯機/クローゼット/シューズ・ボックス/ディスポーザー/食洗機
現行利回り 3.51%
売出中 |
オーナーチェンジ | 価格 | 階層 | 間取 | 面積 | 向 | お問い合せ |
| 7,280万円 利回り 3.13% | 29階 | 2LDK | 55.14㎡ | 南 | |||
| お問い合せ お気に入り 詳細表示 | |||||||
このお部屋の詳細情報
管理費 12,400円
修繕積立金 4,410円
その他月額費 0円
月額合計金額 16,810円
間取り 2LDK(洋6.0 洋4.5 LDK13.7)
現況 賃貸中
引き渡し 募集中
設備 眺望良好/バリアフリー/対面式キッチン/ガスコンロ/バス・トイレ別/追い炊き機能/浴室乾燥機/床暖房/室内洗濯機/クローゼット/シューズインクローゼット/ディスポーザー/食洗機
現行利回り 3.13%
売出中 |
オーナーチェンジ | 価格 | 階層 | 間取 | 面積 | 向 | お問い合せ |
| 8,000万円 利回り 3.3% | 34階 | 1LDK | 45.06㎡ | 西 | |||
| お問い合せ お気に入り 詳細表示 | |||||||
このお部屋の詳細情報
管理費 10,100円
修繕積立金 8,560円
その他月額費 0円
月額合計金額 18,660円
間取り 1LDK(洋5.5 LDK12.5)
現況 賃貸中
引き渡し 募集中
設備 眺望良好/バリアフリー/独立型キッチン/ガスコンロ/バス・トイレ別/追い炊き機能/浴室乾燥機/床暖房/室内洗濯機/ウォークインクローゼット/シューズインクローゼット/ディスポーザー/食洗機
現行利回り 3.3%
売出中 |
オーナーチェンジ | 価格 | 階層 | 間取 | 面積 | 向 | お問い合せ |
| 8,750万円 利回り 3.55% | 6階 | 2LDK | 64.9㎡ | 西 | |||
| お問い合せ お気に入り 詳細表示 | |||||||
このお部屋の詳細情報
管理費 14,600円
修繕積立金 5,200円
その他月額費 0円
月額合計金額 19,800円
間取り 2LDK(洋6.7 洋5.8 LDK14.8 )
現況 賃貸中
引き渡し 募集中
設備 バリアフリー/独立型キッチン/ガスコンロ/バス・トイレ別/追い炊き機能/浴室乾燥機/床暖房/室内洗濯機/クローゼット/シューズ・ボックス/ディスポーザー/食洗機
現行利回り 3.55%
売出中 |
オーナーチェンジ | 価格 | 階層 | 間取 | 面積 | 向 | お問い合せ |
| 11,000万円 利回り 3.27% | 32階 | 2LDK | 56.72㎡ | 西 | |||
| お問い合せ お気に入り 詳細表示 | |||||||
このお部屋の詳細情報
管理費 12,800円
修繕積立金 10,780円
その他月額費 0円
月額合計金額 23,580円
間取り 2LDK(洋6.1 洋4.5 LDK14.5)
現況 賃貸中
引き渡し 募集中
設備 眺望良好/バリアフリー/独立型キッチン/ガスコンロ/バス・トイレ別/追い炊き機能/浴室乾燥機/床暖房/室内洗濯機/クローゼット/シューズ・ボックス/ディスポーザー/食洗機
現行利回り 3.27%
参考売買相場価格
価格 7,280万円~17,100万円(平均価格11,805万円)
平米単価 132万円/㎡~201万円/㎡(平均単価172万円/㎡)
ブランズタワー御堂筋本町の掲載中の物件情報を元にした参考情報です
お手軽簡単売却価格査定
プレミアム不動産のAI売却価格査定では約20秒程度の入力で瞬時にご指定のタワーマンションの売却価格相場を調べることが出来ます。登録や個人情報の入力も不要ですので個人情報やしつこい営業の心配もなく安心してお使い頂けます。
空室・賃貸物件一覧
TODAY
本日更新
NEW
新着(7日以内)
募集中 | 賃貸 | 家賃 | 階層 | 間取 | 面積 | 向 | お問い合せ |
| 23万円 | 19階 | 2LDK | 62㎡ | 東 | |||
| お問い合せ お気に入り 詳細表示 | |||||||
このお部屋の詳細情報
管理費 20,000円
その他月額費 0円
月額合計金額 250,000円
礼金 2ヶ月
間取り 2LDK(洋6.5 洋5.5 LDK13.1)
現況 空室
引き渡し 相談
普通借家
設備 バリアフリー/分譲賃貸/独立型キッチン/ガスコンロ/バス・トイレ別/追い炊き機能/浴室乾燥機/床暖房/室内洗濯機/クローゼット/エアコン/シューズインクローゼット/ディスポーザー/食洗機
募集中 | 賃貸ペット | 家賃 | 階層 | 間取 | 面積 | 向 | お問い合せ |
| 25万円 | 8階 | 3LDK | 69㎡ | 北西 | |||
| ペット お問い合せ お気に入り 詳細表示 | |||||||
このお部屋の詳細情報
管理費 0円
その他月額費 0円
月額合計金額 250,000円
敷金 1ヶ月
礼金 2ヶ月
間取り 3LDK(洋6.1 洋5.0 洋4.5 LDK13.7)
現況 空室
引き渡し 相談
普通借家
設備 バリアフリー/分譲賃貸/対面式キッチン/ガスコンロ/バス・トイレ別/追い炊き機能/浴室乾燥機/床暖房/室内洗濯機/クローゼット/シューズ・ボックス/2面以上バルコニー/ディスポーザー/食洗機/角部屋
募集中 | 賃貸ペット | 家賃 | 階層 | 間取 | 面積 | 向 | お問い合せ |
| 32万円 | 28階 | 2LDK | 56.72㎡ | 西 | |||
| ペット お問い合せ お気に入り 詳細表示 | |||||||
このお部屋の詳細情報
管理費 10,000円
その他月額費 0円
月額合計金額 330,000円
敷金 1ヶ月
礼金 2ヶ月
間取り 2LDK(洋6.1 洋4.5 LDK14.5)
現況 空室
引き渡し 相談
普通借家 2年
設備 眺望良好/バリアフリー/分譲賃貸/独立型キッチン/ガスコンロ/バス・トイレ別/追い炊き機能/浴室乾燥機/床暖房/室内洗濯機/クローゼット/シューズ・ボックス/ディスポーザー/食洗機
参考賃貸家賃相場
家賃(月額) 230,000円~420,000円(平均家賃320,000円)
平米単価 3,623円/㎡~5,642円/㎡(平均単価4,456円/㎡)
ブランズタワー御堂筋本町の掲載中の物件情報を元にした参考情報です
この建物の短縮URL:https://www.tower.ne.jp/bl/141/











































