竹中工務店施工の2007年に竣工した地上44階建て総戸数257戸タワーマンション
❤️1名の方がこの物件を気に入っています
目次
ローレルタワーサンクタス梅田の物件写真
借りたい・買いたい
タワーマンションを「借りたい方・買いたい方」、「売却査定・賃料査定」など何でもお気軽にお問い合わせください。
ローレルタワーサンクタス梅田の概要・物件情報
基本情報
- 所在地
- 📍大阪市北区大淀南2丁目 [地図表示]
- 交通
- 🚉大阪環状線 福島駅まで徒歩8分
🚉JR東西線 新福島駅まで徒歩10分 - 築年月
- 🎂2007年1月
- 構造等
- 鉄筋コン/地上44階建
- 総戸数
- 257戸
- 管理方式
- 通勤(日勤)
- 用途地域
- 商業地域
- 建ぺい率
- 80%
- 建ぺい率
- 600%
- 土地権利
- 所有権
- 地勢
- 平坦
- 国土法届出
- 不要
ローレルタワーサンクタス梅田
「ローレルタワーサンクタス梅田」に住みたいお客様(購入・賃貸)、住替え等にて売却を検討や賃料条件から部屋付け家賃管理等ご検討の所有者(オーナー様)の方、大阪市内の中古タワーマンション専門のプレミアム不動産へお気軽にご相談ください。
大阪最大のターミナルシティが日常になる。
梅田地下街まで徒歩11分、百貨店をはじめアメニティ施設、エンターテインメント施設、すべてが徒歩圏内です。
地上44階建、総戸数257戸の免震タワーマンション。
高層タワーライフならではの豊かな眺望が楽しめるオーナーラウンジは、シアタールームやパーティルームとしてのご利用も可能。
最上階にはゲストルーム、居住者のコミュニケーションの場、フィットネスサロンやコミュニティサロン、和室のジャパニーズサロンもご用意。
各種取次ぎを行うコンシェルジュサービスといった大規模マンションならではの充実した施設も魅力。
エントランスから住戸玄関まで3重のセキュリティ、24時間有人管理など、安全面もそろっています。
梅田地下街まで徒歩圏内。大阪市内はもちろん神戸や京都への移動もスムーズ。
オフィスビルや百貨店などのショッピング施設だけでなく、エンターテイメントも楽しめるターミナルシティが、日常になる便利なロケーション。
福島聖天通り商店街などが周辺に点在し、毎日のお買い物にも便利。幼稚園、小中学校も徒歩10分以内と、子育て世帯にもおすすめの環境です。
◆共用施設◆
1階:コンシェルジュサービス
15階:フィットネスサロン・コミュニティサロン・ジャパニーズサロン
29階:ゲストルーム
30階:オーナーズラウンジ・シアタールーム・パーティールーム
◆駐車場◆
月/19,500円〜28,000円
乗用車、ミドルルーフ車、ハイルーフ車
◆バイク置場◆
月/1,000円〜1,500円
◆自転車置場◆
月/100円〜200円
※管理組合に最新空車確認ならびに実際に駐車してご確認ください。
共用設備
- 主要
免震構造 タワー型 オートロック エレベータ 宅配ボックス ゲストルーム ジム シアタールーム スカイラウンジ コミュニティルーム コンシェルジュ パーティールーム
駐車場・駐輪場
この物件のメリット・デメリット
メリット
- 築年数が経過している分、福島駅周辺の好立地で相場より低価格となっております
デメリット
- 南側に「グランドメゾン新梅田タワー THE CLUB RESIDENCE」「グランドメゾン新梅田タワー」が竣工して眺望が高層階でも良くないところ
ローレルタワーサンクタス梅田のよくある質問
借りたい・買いたい
タワーマンションを「借りたい方・買いたい方」、「売却査定・賃料査定」など何でもお気軽にお問い合わせください。
分譲・中古・売り物件一覧
TODAY
本日更新
NEW
新着(7日以内)
売出中 |
売買ペット | 価格 | 階層 | 間取 | 面積 | 向 | お問い合せ |
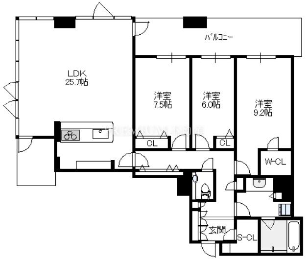
| 21,990万円 | 38階 | 3LDK | 110.44㎡ | 南東 | |||
| ペット お問い合せ お気に入り 詳細表示 | |||||||
このお部屋の詳細情報
管理費 28,710円
修繕積立金 6,070円
その他月額費 1,000円
月額合計金額 35,780円
間取り 3LDK(洋9.2 洋7.5 洋6.0 LDK25.7)
現況 空室
引き渡し 募集中
設備 眺望良好/バリアフリー/対面式キッチン/バス・トイレ別/追い炊き機能/浴室乾燥機/床暖房/室内洗濯機/クローゼット/ウォークインクローゼット/エアコン/シューズ・ボックス/シューズインクローゼット/食洗機/角部屋/LDK20帖以上
売出中 |
売買NEWペット | 価格 | 階層 | 間取 | 面積 | 向 | お問い合せ |
| 18,900万円 | 37階 | 2LDK | 98.41㎡ | 南西 | |||
| ペット お問い合せ お気に入り 詳細表示 | |||||||
このお部屋の詳細情報
管理費 25,590円
修繕積立金 5,410円
その他月額費 1,000円
月額合計金額 32,000円
間取り 2LDK(洋6.7 洋5.0 LDK30.5)
現況 居住中
引き渡し 募集中
設備 花火大会観賞/眺望良好/バリアフリー/対面式キッチン/バス・トイレ別/追い炊き機能/浴室乾燥機/床暖房/室内洗濯機/クローゼット/ウォークインクローゼット/シューズ・ボックス/2面以上バルコニー/ディスポーザー/食洗機/角部屋/LDK20帖以上
売出中 |
売買ペット | 価格 | 階層 | 間取 | 面積 | 向 | お問い合せ |
| 10,800万円 | 40階 | 2LDK | 73.89㎡ | 東 | |||
| ペット お問い合せ お気に入り 詳細表示 | |||||||
このお部屋の詳細情報
管理費 19,210円
修繕積立金 4,060円
その他月額費 1,000円
月額合計金額 24,270円
間取り 2LDK(洋7.0 洋5.1 LDK20.0)
現況 空室
引き渡し 募集中
設備 眺望良好/バリアフリー/対面式キッチン/バス・トイレ別/追い炊き機能/浴室乾燥機/床暖房/室内洗濯機/クローゼット/シューズインクローゼット/ディスポーザー/食洗機/LDK20帖以上
売出中 |
売買ペット | 価格 | 階層 | 間取 | 面積 | 向 | お問い合せ |
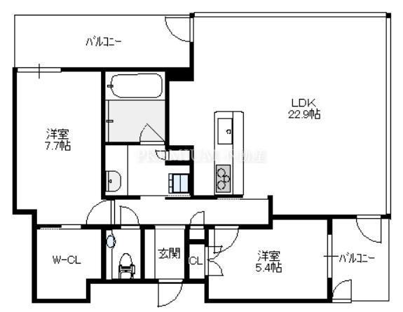
| 12,980万円 | 37階 | 2LDK | 81.04㎡ | 北西 | |||
| ペット お問い合せ お気に入り 詳細表示 | |||||||
このお部屋の詳細情報
管理費 21,070円
修繕積立金 4,460円
その他月額費 1,000円
月額合計金額 26,530円
間取り 2LDK(洋7.7 洋5.4 LDK22.9)
現況 空室
引き渡し 募集中
設備 花火大会観賞/眺望良好/バリアフリー/対面式キッチン/ガスコンロ/バス・トイレ別/追い炊き機能/浴室乾燥機/床暖房/室内洗濯機/クローゼット/ウォークインクローゼット/シューズ・ボックス/角部屋/LDK20帖以上
売出中 |
売買ペット | 価格 | 階層 | 間取 | 面積 | 向 | お問い合せ |
| 9,500万円 | 29階 | 2LDK | 67.17㎡ | 南 | |||
| ペット お問い合せ お気に入り 詳細表示 | |||||||
このお部屋の詳細情報
管理費 12,960円
修繕積立金 3,690円
その他月額費 1,000円
月額合計金額 17,650円
間取り 2LDK(洋 洋 LDK)
現況 空室
引き渡し 募集中
設備 眺望良好/バリアフリー/独立型キッチン/バス・トイレ別/追い炊き機能/浴室乾燥機/室内洗濯機/クローゼット/ウォークインクローゼット/エアコン/シューズ・ボックス/ディスポーザー/食洗機
売出中 |
売買ペット | 価格 | 階層 | 間取 | 面積 | 向 | お問い合せ |
| 16,800万円 | 34階 | 2LDK | 80.84㎡ | 北東 | |||
| ペット お問い合せ お気に入り 詳細表示 | |||||||
このお部屋の詳細情報
管理費 21,020円
修繕積立金 4,450円
その他月額費 1,000円
月額合計金額 26,470円
間取り 2LDK(洋7.4 洋4.9 LDK23.2)
現況 空室
引き渡し 募集中
設備 花火大会観賞/バリアフリー/分譲賃貸/対面式キッチン/ガスコンロ/バス・トイレ別/追い炊き機能/浴室乾燥機/床暖房/室内洗濯機/クローゼット/ウォークインクローゼット/エアコン/シューズインクローゼット/2面以上バルコニー/ディスポーザー/食洗機/角部屋/LDK20帖以上
売出中 |
売買ペット | 価格 | 階層 | 間取 | 面積 | 向 | お問い合せ |
| 7,598万円 | 19階 | 2LDK | 60.05㎡ | 西 | |||
| ペット お問い合せ お気に入り 詳細表示 | |||||||
このお部屋の詳細情報
管理費 11,590円
修繕積立金 3,300円
その他月額費 1,000円
月額合計金額 15,890円
間取り 2LDK(洋6.1 洋5.0 LDK14.0)
現況 空室
引き渡し 募集中
設備 眺望良好/バリアフリー/対面式キッチン/ガスコンロ/バス・トイレ別/追い炊き機能/浴室乾燥機/床暖房/室内洗濯機/クローゼット/ウォークインクローゼット/シューズ・ボックス/ディスポーザー/食洗機
売出中 |
売買ペット | 価格 | 階層 | 間取 | 面積 | 向 | お問い合せ |
| 7,600万円 | 29階 | 1LDK | 61.81㎡ | 東 | |||
| ペット お問い合せ お気に入り 詳細表示 | |||||||
このお部屋の詳細情報
管理費 16,070円
修繕積立金 3,400円
その他月額費 1,000円
月額合計金額 20,470円
間取り 1LDK(洋6.5 LDK18.1)
現況 居住中
引き渡し 募集中
設備 眺望良好/バリアフリー/独立型キッチン/ガスコンロ/バス・トイレ別/追い炊き機能/浴室乾燥機/床暖房/室内洗濯機/ウォークインクローゼット/シューズインクローゼット/食洗機
| 売買 |
売出中 |
オーナーチェンジ | 価格 | 階層 | 間取 | 面積 | 向 | お問い合せ |
| 8,899万円 利回り 2.66% | 21階 | 1LDK | 60.05㎡ | 西 | |||
| お問い合せ お気に入り 詳細表示 | |||||||
このお部屋の詳細情報
管理費 15,610円
修繕積立金 3,300円
その他月額費 1,000円
月額合計金額 19,910円
間取り 1LDK(洋6.1 LDK18.1)
現況 賃貸中
引き渡し 募集中
設備 眺望良好/バリアフリー/対面式キッチン/ガスコンロ/バス・トイレ別/追い炊き機能/浴室乾燥機/床暖房/室内洗濯機/ウォークインクローゼット/シューズ・ボックス/ディスポーザー/食洗機
現行利回り 2.66%
| オーナーチェンジ |
| オーナーチェンジ |
参考売買相場価格
価格 7,598万円~21,990万円(平均価格13,220万円)
平米単価 123万円/㎡~208万円/㎡(平均単価159万円/㎡)
ローレルタワーサンクタス梅田の掲載中の物件情報を元にした参考情報です
お手軽簡単売却価格査定
プレミアム不動産のAI売却価格査定では約20秒程度の入力で瞬時にご指定のタワーマンションの売却価格相場を調べることが出来ます。登録や個人情報の入力も不要ですので個人情報やしつこい営業の心配もなく安心してお使い頂けます。
空室・賃貸物件一覧
TODAY
本日更新
NEW
新着(7日以内)
現在、ローレルタワーサンクタス梅田の募集中空室がございません。
この建物の短縮URL:https://www.tower.ne.jp/bl/193/






















