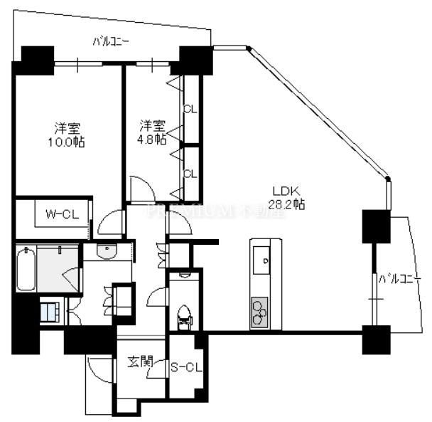
大阪ひびきの街 ザ・サンクタスタワー(大阪市西区新町1丁目)にある2LDK(洋10.0 洋4.8 LDK28.2)のお部屋です。 専有面積:102.54㎡、52階、方角:南東。 賃料:700000円、管理費:0円。 最寄駅:四ツ橋駅(大阪メトロ四つ橋線)徒歩6分、西大橋駅(大阪メトロ長堀鶴見緑地)徒歩5分。 建物設備:オートロック・宅配ボックス・キッズルーム・ゲストルーム・スカイラウンジ・コンシェルジュ・ペット用設備。 部屋設備:ウォークインクローゼット・ディスポーザー・食洗機・バス・トイレ別・追い炊き機能・浴室乾燥機・床暖房・室内洗濯機・クローゼット・エアコン。 特徴:眺望良好・角部屋・LDK20帖以上。 建物概要:大林組施工の2015年に竣工した地上53階建て総戸数874戸タワーマンション
目次
大阪ひびきの街 ザ・サンクタスタワーの物件写真
お部屋情報
このお部屋は定期借家契約となります
お気に入り お問い合わせ
募集中 |
賃貸 | 家賃 | 所在階 | 間取り | 専有面積 | 方位 |
| 70万円 | 52階 | 2LDK | 102.54㎡ | 南東 |
管理費 0円
その他月額費 0円
月額合計金額 700,000円
水道料金 実費
敷金 1ヶ月
礼金 2ヶ月
間取り 2LDK(洋10.0 洋4.8 LDK28.2)
現況 空室
引き渡し 相談
定期借家 4年
設備
ペット 相談
※ペット飼育相談可:小型犬2匹のみ
大阪ひびきの街 ザ・サンクタスタワーの概要・物件情報
基本情報
- 所在地
- 📍大阪市西区新町1丁目 [地図表示]
- 交通
- 🚉大阪メトロ四つ橋線 四ツ橋駅まで徒歩6分
🚉大阪メトロ長堀鶴見緑地 西大橋駅まで徒歩5分 - 築年月
- 🎂2015年1月
- 構造等
- 鉄筋コン/地上53階建地下1階
- 総戸数
- 874戸
- 管理方式
- 常駐
- 用途地域
- 商業地域
- 建ぺい率
- 80%
- 建ぺい率
- 600%
- 土地権利
- 所有権
- 地勢
- 平坦
- 国土法届出
- 不要
大阪ひびきの街 ザ・サンクタスタワーは著名人や芸能人の方にも安心のおすすめの物件です。
大阪ひびきの街 ザ・サンクタスタワー
「大阪ひびきの街 ザ・サンクタスタワー」に住みたいお客様(購入・賃貸)、住替え等にて売却を検討や賃料条件から部屋付け家賃管理等ご検討の所有者(オーナー様)の方、大阪市内の中古タワーマンション専門のプレミアム不動産へお気軽にご相談ください。
地上53階建、全874邸のランドマークタワー。
5路線5駅が徒歩10分圏内。
街と一体化する外観デザインと、都心にありながらも季節の移ろいを感じられる、緑豊かなランドスケープデザイン。
エントランスホールは三層吹き抜けで、ガラスウォールを使用して開放的で明るい空間となっています。
共有施設には、都心を一望できるビューラウンジのほか、ゲストルームやスタディルームが設けられ、
住まう人にもゲストにも居心地のよい設備環境が整っています。万一の備えとして、地震に伴う停電時でも人の動線が確保できる防犯対策や、2階・30階にはかまどベンチや防災倉庫を備えるなど、安心して過ごせるよう配慮されています。
防犯面でも4重のセキュリティと24時間有人管理で都市生活の安心を守ります。
都心にありながらもタワーの前には公園があるなど、静かな環境が守られています。
交通面では、大阪市営地下鉄の5駅が徒歩圏内。
5路線利用でき、市内のアクセスが縦横無尽にスムーズに行えます。
通勤・通学はもちろん、休日の家族のレジャーにも便利。大阪ミナミの中心地・心斎橋も徒歩圏内にありショッピングも楽しめます。
◆共用施設◆
1階:ペットルーム・来客駐車場(3台:30分/100円)
2階:オーナーズラウンジ・キッズルーム
4階:来客駐車場
30階:スタディルーム・ビューラウンジ・パーティルーム(有料:1時間/1,000円)・ゲストルーム(有料:1泊/3,000円・1泊/4,000円)
◆駐車場◆
月/18,000円〜25,000円
◆バイク置場◆
ミニバイク:月/2,000円
バイク:月/3,000円
◆自転車置場◆
月/100円〜300円
※管理組合に最新空車確認ならびに実際に駐車してご確認ください。
共用設備
- 主要
制震構造 タワー型 オートロック エレベータ 宅配ボックス キッズルーム ゲストルーム スカイラウンジ コンシェルジュ ペット用設備
駐車場・駐輪場
この物件のメリット・デメリット
メリット
- 連結制振デュアル・フ レーム・システム
- バリエーション豊かな間取り(92タイプ)
デメリット
- 敷地内駐車場が常に満車状態にて空き駐車場募集があっても抽選となる
分譲・中古・売り物件一覧
TODAY
本日更新
NEW
新着(7日以内)
| 売買 |
| 売買 |
売出中 |
売買ペット | 価格 | 階層 | 間取 | 面積 | 向 | お問い合せ |
| 11,980万円 | 23階 | 2LDK | 80.66㎡ | 北西 | |||
| ペット お問い合せ お気に入り 詳細表示 | |||||||
このお部屋の詳細情報
管理費 28,500円
修繕積立金 9,840円
その他月額費 0円
月額合計金額 38,340円
間取り 2LDK(洋8.0 洋5.1 LDK21.7)
現況 空室
引き渡し 募集中
設備 眺望良好/バリアフリー/対面式キッチン/ガスコンロ/バス・トイレ別/追い炊き機能/浴室乾燥機/床暖房/室内洗濯機/クローゼット/ウォークインクローゼット/シューズ・ボックス/2面以上バルコニー/ディスポーザー/食洗機/角部屋/LDK20帖以上
売出中 |
売買ペット | 価格 | 階層 | 間取 | 面積 | 向 | お問い合せ |
| 17,700万円 | 18階 | 3LDK | 93.77㎡ | 南東 | |||
| ペット お問い合せ お気に入り 詳細表示 | |||||||
このお部屋の詳細情報
管理費 33,200円
修繕積立金 11,440円
その他月額費 0円
月額合計金額 44,640円
間取り 3LDK(洋8.1 洋6.0 洋5.0 LDK24.2)
現況 居住中
引き渡し 募集中
設備 眺望良好/バリアフリー/L字型キッチン/ガスコンロ/バス・トイレ別/追い炊き機能/浴室乾燥機/床暖房/室内洗濯機/クローゼット/ウォークインクローゼット/エアコン/シューズインクローゼット/ディスポーザー/食洗機/角部屋/LDK20帖以上
| 売買 |
売出中 |
売買ペット | 価格 | 階層 | 間取 | 面積 | 向 | お問い合せ |
| 7,780万円 | 8階 | 2LDK | 56.01㎡ | 西 | |||
| ペット お問い合せ お気に入り 詳細表示 | |||||||
このお部屋の詳細情報
管理費 19,800円
修繕積立金 6,840円
その他月額費 0円
月額合計金額 26,640円
間取り 2LDK(洋6.0 洋4.5 LDK14.1)
現況 空室
引き渡し 募集中
設備 バリアフリー/独立型キッチン/ガスコンロ/バス・トイレ別/追い炊き機能/浴室乾燥機/床暖房/室内洗濯機/クローゼット/シューズ・ボックス/ディスポーザー/食洗機
売出中 |
売買NEWペット | 価格 | 階層 | 間取 | 面積 | 向 | お問い合せ |
| 8,480万円 | 12階 | 2LDK | 56.01㎡ | 西 | |||
| ペット お問い合せ お気に入り 詳細表示 | |||||||
このお部屋の詳細情報
管理費 19,800円
修繕積立金 6,840円
その他月額費 0円
月額合計金額 26,640円
間取り 2LDK(洋6.0 洋4.5 LDK14.1)
現況 居住中
引き渡し 募集中
設備 バリアフリー/独立型キッチン/ガスコンロ/バス・トイレ別/追い炊き機能/浴室乾燥機/床暖房/室内洗濯機/クローゼット/シューズ・ボックス/ディスポーザー/食洗機
売出中 |
売買ペット | 価格 | 階層 | 間取 | 面積 | 向 | お問い合せ |
| 9,500万円 | 13階 | 2SLDK | 64.51㎡ | 北 | |||
| ペット お問い合せ お気に入り 詳細表示 | |||||||
このお部屋の詳細情報
管理費 22,800円
修繕積立金 7,870円
その他月額費 0円
月額合計金額 30,670円
間取り 2SLDK(洋6.0 洋5.0 S2.6 LDK14.3)
現況 空室
引き渡し 募集中
設備 バリアフリー/独立型キッチン/ガスコンロ/バス・トイレ別/追い炊き機能/浴室乾燥機/床暖房/室内洗濯機/クローゼット/シューズインクローゼット/ディスポーザー/食洗機
| 売買 |
売出中 |
売買ペット | 価格 | 階層 | 間取 | 面積 | 向 | お問い合せ |
| 32,000万円 | 31階 | 3LDK | 156.11㎡ | 南東 | |||
| ペット お問い合せ お気に入り 詳細表示 | |||||||
このお部屋の詳細情報
管理費 55,200円
修繕積立金 19,040円
その他月額費 0円
月額合計金額 74,240円
間取り 3LDK(洋13.5 洋7.2 洋7.0 LDK35.5)
現況 居住中
引き渡し 募集中
設備 眺望良好/バリアフリー/対面式キッチン/ガスコンロ/バス・トイレ別/追い炊き機能/浴室乾燥機/床暖房/室内洗濯機/クローゼット/ウォークインクローゼット/シューズインクローゼット/2面以上バルコニー/ディスポーザー/食洗機/角部屋/LDK20帖以上
| オーナーチェンジ |
参考売買相場価格
価格 6,780万円~32,000万円(平均価格14,218万円)
平米単価 139万円/㎡~205万円/㎡(平均単価165万円/㎡)
大阪ひびきの街 ザ・サンクタスタワーの掲載中の物件情報を元にした参考情報です
空室・賃貸物件一覧
TODAY
本日更新
NEW
新着(7日以内)
募集中 | 賃貸TODAYペット | 家賃 | 階層 | 間取 | 面積 | 向 | お問い合せ |
| 70万円 | 52階 | 2LDK | 102.54㎡ | 南東 | |||
| ペット お問い合せ お気に入り 詳細表示 | |||||||
このお部屋の詳細情報
管理費 0円
その他月額費 0円
月額合計金額 700,000円
敷金 1ヶ月
礼金 2ヶ月
間取り 2LDK(洋10.0 洋4.8 LDK28.2)
現況 空室
引き渡し 相談
定期借家 4年
設備 眺望良好/バリアフリー/分譲賃貸/対面式キッチン/IHクッキングヒーター/バス・トイレ別/追い炊き機能/浴室乾燥機/床暖房/室内洗濯機/クローゼット/ウォークインクローゼット/エアコン/シューズインクローゼット/2面以上バルコニー/ディスポーザー/食洗機/角部屋/LDK20帖以上
募集中 | 賃貸 | 家賃 | 階層 | 間取 | 面積 | 向 | お問い合せ |
| 29.5万円 | 11階 | 3LDK | 73.83㎡ | 南 | |||
| お問い合せ お気に入り 詳細表示 | |||||||
このお部屋の詳細情報
管理費 15,000円
その他月額費 0円
月額合計金額 310,000円
敷金 1ヶ月
礼金 2ヶ月
間取り 3LDK(洋7.0 洋5.0 和5.0 LDK16.0)
現況 空室
引き渡し 即時
普通借家 2年
設備 バリアフリー/分譲賃貸/独立型キッチン/ガスコンロ/バス・トイレ別/追い炊き機能/浴室乾燥機/床暖房/室内洗濯機/クローゼット/ウォークインクローゼット/シューズ・ボックス/ディスポーザー/食洗機
募集中 | 賃貸 | 家賃 | 階層 | 間取 | 面積 | 向 | お問い合せ |
| 31.5万円 | 7階 | 4LDK | 86㎡ | 南 | |||
| お問い合せ お気に入り 詳細表示 | |||||||
このお部屋の詳細情報
管理費 25,000円
その他月額費 0円
月額合計金額 340,000円
敷金 1ヶ月
礼金 2ヶ月
間取り 4LDK(洋8 洋6.7 洋4.7 LDK19)
現況 空室
引き渡し 相談
普通借家 2年
設備 バリアフリー/分譲賃貸/対面式キッチン/ガスコンロ/バス・トイレ別/追い炊き機能/浴室乾燥機/床暖房/室内洗濯機/ウォークインクローゼット/エアコン/シューズ・ボックス/ディスポーザー/食洗機/禁煙
参考賃貸家賃相場
家賃(月額) 295,000円~700,000円(平均家賃440,000円)
平米単価 3,663円/㎡~6,827円/㎡(平均単価5,036円/㎡)
大阪ひびきの街 ザ・サンクタスタワーの掲載中の物件情報を元にした参考情報です
このお部屋の短縮URL:https://www.tower.ne.jp/rm/30334/



































