大林組施工の2022年に竣工した地上56階建てタワーマンション
梅田ガーデンレジデンス(分譲)は9階~39階まで、高級賃貸住宅フロア(賃貸)は40階~56階となっております。
❤️8名の方がこの物件を気に入っています
目次
梅田ガーデンレジデンスの物件写真
借りたい・買いたい
タワーマンションを「借りたい方・買いたい方」、「売却査定・賃料査定」など何でもお気軽にお問い合わせください。
梅田ガーデンレジデンスの概要・物件情報
基本情報
- 所在地
- 📍大阪市北区曾根崎2丁目 [地図表示]
- 交通
- 🚉大阪メトロ御堂筋線 梅田駅まで徒歩3分
🚉大阪環状線 大阪駅まで徒歩6分 - 築年月
- 🎂2022年3月
- 構造等
- 鉄筋コン/地上56階建地下1階
- 総戸数
- 584戸
- 管理方式
- 常駐
- 用途地域
- 商業地域
- 建ぺい率
- 80%
- 建ぺい率
- 800%
- 土地権利
- 定期地上権
- 地勢
- 平坦
- 国土法届出
- 要
梅田ガーデンレジデンスは著名人や芸能人の方にも安心のおすすめの物件です。
梅田ガーデンレジデンス
「梅田ガーデンレジデンス」に住みたいお客様(購入・賃貸)、住替え等にて売却を検討や賃料条件から部屋付け家賃管理等ご検討の所有者(オーナー様)の方、大阪市内の中古タワーマンション専門のプレミアム不動産へお気軽にご相談ください。
住宅・ホテル・商業・市管理施設などを併設した 超高層複合タワー『梅田ガーデン』9~39階を定期借地権付きの分譲マンションとなります。
本施設の住宅に最高級賃貸マンションブランド「LaTour (ラ・トゥール)」を大阪初進出させると共に一般的のマンションとは違い一部専有部の困り事も対応する24時間365日対応のホテルライクなコンシェルジュサービスサービスなどで、企業経営者、大使館員、外資系企業駐日役員、 各界著名人など、国内外のVIPに選ばれているハイクオリティな高級賃貸マンションシリーズ です。
◆共用施設◆
3階:フィットネス
9階:テレワークスペース・キッチンスタジオ・パーティルーム
32階:スカイラウンジ
※(全体図)
1階:店舗他
2階:マンションエントランス・共用施設・文化・交流施設他 3階:住宅用駐輪場
4~8階:ホテル
9~39階:分譲住宅フロア(1LDK~3LDK:40.27㎡~108.27㎡:584戸)
※梅田ガーデンレジデンス
40~56階:賃貸住宅フロア(1LDK~4LDK:100.15㎡~368.24㎡:134戸)
※ラ・トゥール大阪梅田ガーデン
◆駐車場◆
268台(タワーパーキング268台)、他に管理用6台(電気自動車充電スペース兼用1台含む)
※その他非分譲用143台 月額/31,000円~43,000円
◆バイク置場◆
バイク(8台)防盗パイプ設置
※その他非分譲用13台 :月額/7,000円~8,000円
ミニバイク(136台、非分譲用含む)
※その他非分譲用(非住宅用)4台 :月額4,000円~5,000円
◆自転車置場◆
818台〔平置208台、スライド97台、2段式(上段202台、下段311台)〕
※その他非分譲用699台(非住宅用81台含む)
月額/500円~4,000円
※管理組合に最新空車確認ならびに実際に駐車してご確認ください。
共用設備
- 主要
タワー型 オートロック エレベータ 宅配ボックス ゲストルーム ジム スカイラウンジ コミュニティルーム コンシェルジュ パーティールーム
駐車場・駐輪場
この物件のメリット・デメリット
メリット
- 大阪東梅田の一等地
デメリット
- 一般定期借地権(転借地権)となります
借地期間:75年間
梅田ガーデンレジデンスのよくある質問
借りたい・買いたい
タワーマンションを「借りたい方・買いたい方」、「売却査定・賃料査定」など何でもお気軽にお問い合わせください。
分譲・中古・売り物件一覧
TODAY
本日更新
NEW
新着(7日以内)
| 売買 |
| 売買 |
| 売買 |
| 売買 |
| 売買NEW |
売出中 |
売買ペット | 価格 | 階層 | 間取 | 面積 | 向 | お問い合せ |
| 16,000万円 | 18階 | 3LDK | 83.08㎡ | 南東 | |||
| ペット お問い合せ お気に入り 詳細表示 | |||||||
このお部屋の詳細情報
管理費 29,065円
修繕積立金 16,280円
その他月額費 15,580円
月額合計金額 60,925円
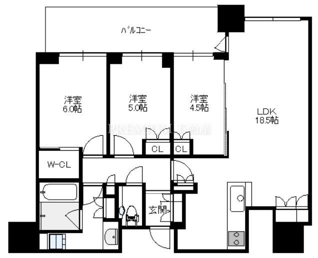
間取り 3LDK(洋7.5 洋5.5 洋5.5 LDK18.2)
現況 空室
引き渡し 募集中
設備 眺望良好/バリアフリー/対面式キッチン/バス・トイレ別/追い炊き機能/浴室乾燥機/床暖房/室内洗濯機/クローゼット/ウォークインクローゼット/シューズインクローゼット/2面以上バルコニー/ディスポーザー/食洗機/角部屋
売出中 |
売買ペット | 価格 | 階層 | 間取 | 面積 | 向 | お問い合せ |
| 14,000万円 | 32階 | 2LDK | 58.67㎡ | 北 | |||
| ペット お問い合せ お気に入り 詳細表示 | |||||||
このお部屋の詳細情報
管理費 20,905円
修繕積立金 11,490円
その他月額費 11,002円
月額合計金額 43,397円
間取り 2LDK(洋6.0 洋4.5 LDK14.1)
現況 空室
引き渡し 募集中
設備 眺望良好/バリアフリー/独立型キッチン/バス・トイレ別/追い炊き機能/浴室乾燥機/床暖房/室内洗濯機/クローゼット/ウォークインクローゼット/エアコン/シューズ・ボックス/ディスポーザー/食洗機
| 売買 |
売出中 |
売買ペット | 価格 | 階層 | 間取 | 面積 | 向 | お問い合せ |
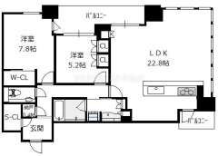
| 24,800万円 | 38階 | 2LDK | 83.83㎡ | 南西 | |||
| ペット お問い合せ お気に入り 詳細表示 | |||||||
このお部屋の詳細情報
管理費 29,315円
修繕積立金 16,430円
その他月額費 15,720円
月額合計金額 61,465円
間取り 2LDK(洋7.8 洋5.2 LDK22.8)
現況 居住中
引き渡し 募集中
設備 眺望良好/バリアフリー/対面式キッチン/ガスコンロ/バス・トイレ別/追い炊き機能/浴室乾燥機/床暖房/室内洗濯機/クローゼット/ウォークインクローゼット/エアコン/シューズインクローゼット/2面以上バルコニー/ディスポーザー/食洗機/角部屋/LDK20帖以上
| 売買NEW |
| 売買 |
売出中 |
売買ペット | 価格 | 階層 | 間取 | 面積 | 向 | お問い合せ |
| 13,990万円 | 14階 | 2LDK | 78.42㎡ | 北西 | |||
| ペット お問い合せ お気に入り 詳細表示 | |||||||
このお部屋の詳細情報
管理費 27,505円
修繕積立金 15,370円
その他月額費 14,116円
月額合計金額 56,991円
間取り 2LDK(洋6.7 洋5.0 LDK22.7)
現況 空室
引き渡し 募集中
設備 バリアフリー/対面式キッチン/バス・トイレ別/追い炊き機能/浴室乾燥機/床暖房/室内洗濯機/クローゼット/シューズ・ボックス/ディスポーザー/食洗機/角部屋/LDK20帖以上
| 売買 |
| 売買 |
| 売買 |
売出中 |
売買ペット | 価格 | 階層 | 間取 | 面積 | 向 | お問い合せ |
| 12,800万円 | 21階 | 2LDK | 60.63㎡ | 北 | |||
| ペット お問い合せ お気に入り 詳細表示 | |||||||
このお部屋の詳細情報
管理費 21,565円
修繕積立金 11,880円
その他月額費 10,913円
月額合計金額 44,358円
間取り 2LDK(洋6.1 洋4.7 LDK13.5)
現況 空室
引き渡し 募集中
設備 眺望良好/バリアフリー/独立型キッチン/ガスコンロ/バス・トイレ別/追い炊き機能/浴室乾燥機/床暖房/室内洗濯機/クローゼット/ウォークインクローゼット/シューズ・ボックス/ディスポーザー/食洗機
| 売買 |
売出中 |
売買ペット | 価格 | 階層 | 間取 | 面積 | 向 | お問い合せ |
| 13,800万円 | 35階 | 1LDK | 58.55㎡ | 北 | |||
| ペット お問い合せ お気に入り 詳細表示 | |||||||
このお部屋の詳細情報
管理費 20,865円
修繕積立金 11,470円
その他月額費 10,539円
月額合計金額 42,874円
間取り 1LDK(洋7.0 LDK16.2)
現況 居住中
引き渡し 募集中
設備 眺望良好/バリアフリー/対面式キッチン/バス・トイレ別/追い炊き機能/浴室乾燥機/床暖房/室内洗濯機/クローゼット/シューズ・ボックス/ディスポーザー/食洗機
| 売買 |
| 売買 |
売出中 |
売買未入居ペット | 価格 | 階層 | 間取 | 面積 | 向 | お問い合せ |
| 15,500万円 | 19階 | 2LDK | 82.31㎡ | 南西 | |||
| 未入居ペット お問い合せ お気に入り 詳細表示 | |||||||
このお部屋の詳細情報
管理費 28,805円
修繕積立金 16,130円
その他月額費 14,810円
月額合計金額 59,745円
間取り 2LDK(洋7.2 洋5.1 LDK22.8)
現況 空室
引き渡し 募集中
設備 バリアフリー/対面式キッチン/バス・トイレ別/追い炊き機能/浴室乾燥機/床暖房/室内洗濯機/クローゼット/ウォークインクローゼット/エアコン/シューズインクローゼット/ディスポーザー/食洗機/角部屋/LDK20帖以上
| 売買 |
| オーナーチェンジ |
| オーナーチェンジ |
| オーナーチェンジ |
売出中 |
オーナーチェンジ | 価格 | 階層 | 間取 | 面積 | 向 | お問い合せ |
| 13,800万円 利回り 3.6% | 25階 | 2LDK | 62.59㎡ | 西 | |||
| お問い合せ お気に入り 詳細表示 | |||||||
このお部屋の詳細情報
管理費 22,225円
修繕積立金 12,270円
その他月額費 11,266円
月額合計金額 45,761円
間取り 2LDK(洋6.3 洋5.0 LDK13.7)
現況 賃貸中
引き渡し 募集中
設備 眺望良好/バリアフリー/対面式キッチン/ガスコンロ/バス・トイレ別/追い炊き機能/浴室乾燥機/床暖房/室内洗濯機/クローゼット/ウォークインクローゼット/シューズ・ボックス/ディスポーザー/食洗機
現行利回り 3.6%
売出中 |
オーナーチェンジ | 価格 | 階層 | 間取 | 面積 | 向 | お問い合せ |
| 16,800万円 利回り 4.49% | 39階 | 2LDK | 61.35㎡ | 西 | |||
| お問い合せ お気に入り 詳細表示 | |||||||
このお部屋の詳細情報
管理費 21,805円
修繕積立金 12,030円
その他月額費 11,043円
月額合計金額 44,878円
間取り 2LDK(洋6.5 洋5.0 LDK13.8)
現況 賃貸中
引き渡し 募集中
設備 眺望良好/バリアフリー/対面式キッチン/ガスコンロ/バス・トイレ別/追い炊き機能/浴室乾燥機/床暖房/室内洗濯機/クローゼット/ウォークインクローゼット/シューズインクローゼット/ディスポーザー/食洗機
現行利回り 4.49%
売出中 |
オーナーチェンジ | 価格 | 階層 | 間取 | 面積 | 向 | お問い合せ |
| 12,980万円 利回り 3.32% | 30階 | 2LDK | 61.35㎡ | 西 | |||
| お問い合せ お気に入り 詳細表示 | |||||||
このお部屋の詳細情報
管理費 21,805円
修繕積立金 12,030円
その他月額費 11,505円
月額合計金額 45,340円
間取り 2LDK(洋6.5 洋5.0 LDK13.8)
現況 賃貸中
引き渡し 募集中
設備 眺望良好/バリアフリー/対面式キッチン/ガスコンロ/バス・トイレ別/追い炊き機能/浴室乾燥機/床暖房/室内洗濯機/クローゼット/ウォークインクローゼット/シューズインクローゼット/ディスポーザー/食洗機
現行利回り 3.32%
売出中 |
オーナーチェンジ | 価格 | 階層 | 間取 | 面積 | 向 | お問い合せ |
| 13,000万円 利回り 3.83% | 26階 | 2LDK | 62.59㎡ | 西 | |||
| お問い合せ お気に入り 詳細表示 | |||||||
このお部屋の詳細情報
管理費 22,225円
修繕積立金 12,270円
その他月額費 11,266円
月額合計金額 45,761円
間取り 2LDK(洋6.3 洋5.0 LDK13.7)
現況 賃貸中
引き渡し 募集中
設備 眺望良好/バリアフリー/対面式キッチン/ガスコンロ/バス・トイレ別/追い炊き機能/浴室乾燥機/床暖房/室内洗濯機/クローゼット/ウォークインクローゼット/シューズ・ボックス/ディスポーザー/食洗機
現行利回り 3.83%
| オーナーチェンジ |
| オーナーチェンジ |
| オーナーチェンジ |
| オーナーチェンジ |
売出中 |
オーナーチェンジ | 価格 | 階層 | 間取 | 面積 | 向 | お問い合せ |
| 24,000万円 利回り 3.9% | 36階 | 3LDK | 87.72㎡ | 南東 | |||
| お問い合せ お気に入り 詳細表示 | |||||||
このお部屋の詳細情報
管理費 30,605円
修繕積立金 17,190円
その他月額費 15,790円
月額合計金額 63,585円
間取り 3LDK(洋7.8 洋6.0 洋5.0 LDK17.8)
現況 賃貸中
引き渡し 募集中
設備 眺望良好/バリアフリー/対面式キッチン/バス・トイレ別/追い炊き機能/浴室乾燥機/床暖房/室内洗濯機/クローゼット/ウォークインクローゼット/シューズインクローゼット/2面以上バルコニー/ディスポーザー/食洗機/角部屋
現行利回り 3.9%
参考売買相場価格
価格 7,580万円~24,800万円(平均価格14,607万円)
平米単価 155万円/㎡~296万円/㎡(平均単価216万円/㎡)
梅田ガーデンレジデンスの掲載中の物件情報を元にした参考情報です
お手軽簡単売却価格査定
プレミアム不動産のAI売却価格査定では約20秒程度の入力で瞬時にご指定のタワーマンションの売却価格相場を調べることが出来ます。登録や個人情報の入力も不要ですので個人情報やしつこい営業の心配もなく安心してお使い頂けます。
空室・賃貸物件一覧
TODAY
本日更新
NEW
新着(7日以内)
現在、梅田ガーデンレジデンスの募集中空室がございません。
この建物の短縮URL:https://www.tower.ne.jp/bl/242/

















