Completed in 2008 by Okumura Construction, this is a 34-story tower mansion with seismic isolation structure.
Table of Contents
- Property Photos
- Overview & Property Information
- Frequently Asked Questions
- Available Properties for Sale
- Available Rental Properties
FUKUSHIMA GARDENS TOWERProperty Photos
Want to Rent or Buy
Want to Rent Out or Sell
For those who want to "rent a tower apartment" or "buy a tower apartment", or for "sale assessments" or "rental assessments", please feel free to contact us for any inquiries.
FUKUSHIMA GARDENS TOWEROverview & Property Information
Basic Information
- Location
- 📍3-chome, Sagisu, Fukushima Ward, Osaka City [Map]
- Access
- 🚉 Hanshin Railway Main Line Noda Walk3Min
🚉 Osaka Metro Sennichimae Line Nodahanshin Walk5Min - Built in
- 🎂Jan 2008
- Structure
- Reinforced concrete/Above Ground34Floors
- Total Units
- 283units
- Management System
- Commuting (daytime)
- Zoning
- Quasi-industrial zone
- Building Coverage Ratio
- 60%
- Building Coverage Ratio
- 300%
- Land Ownership
- Ownership
- Topography
- Flat
- Notification under National Land Use Planning Act
- Not required
FUKUSHIMA GARDENS TOWER
"Fukushima Gardens Tower" If you are a potential customer (buyer/renter) who wants to live in the tower, or an owner considering selling due to relocation or reviewing rental conditions and room rent management, please feel free to consult with a premium real estate agency specializing in second-hand tower mansions in Osaka city.
Experience the joy of living in the sky of the city with greenery hugging the plateau.
Securing a vast garden of about 2000 sqm on the south side, providing a living environment where you can feel light and wind even on lower floors.
There is a lush green garden of about 2000 sqm on the site's south side, offering a life filled with moisture in a rich environment.
The spacious 2-story high entrance features a concierge counter and convenient delivery boxes for when you're away.
Shared facilities such as guest suites, book stations, personal stations, party rooms, kids' play areas, meeting rooms, and owners' salons are also well equipped.
With security measures such as auto-lock, 24-hour security, surveillance cameras, and 24-hour manned management, residents are supported in their safety.
It is an earthquake-resistant structure.
You can also feel the convenience unique to the city with 4 stations and 4 train lines accessible, and various necessary facilities for daily life are within walking distance, such as large shopping centers, supermarkets, convenience stores, post offices, banks, and medical facilities like "Osaka Welfare Pension Hospital," as well as elementary and middle schools.
Various educational institutions are within a 10-minute walk, making it convenient for both commuting and attending school.
Furthermore, leisure facilities are also well-equipped, making it an area where both adults and children can enjoy.
◆Shared Facilities◆
1st Floor: Concierge Service
2nd Floor: Guest Suites, Book Stations, Personal Stations, Party Rooms, Kids' Play Areas, Meeting Rooms, Owners' Salons
◆Parking Lot◆
Monthly: 13,000 to 19,000 yen
◆Motorcycle Parking◆
Monthly: 1,000 to 2,000 yen
◆Bicycle Parking◆
Monthly: 100 to 200 yen
*Please check with the management association for the latest available parking spaces and physically park to confirm.
Common Facilities
- Main
Seismic isolation structure Tower type Auto lock Elevator Delivery box All-electric Kids' room Guest room Community room Concierge Party room
Parking & Bicycle Parking
Merits and Demerits of this Property
Merits
- A place with good views even on lower floors
Demerits
- This is the structure of the outer corridor.
FUKUSHIMA GARDENS TOWERFrequently Asked Questions
Want to Rent or Buy
Want to Rent Out or Sell
For those who want to "rent a tower apartment" or "buy a tower apartment", or for "sale assessments" or "rental assessments", please feel free to contact us for any inquiries.
Available Properties for Sale
TODAY
Updated Today
NEW
New Listings (Within 7 Days)
On Sale |
For SalePets Allowed | Price | Floor | Layout | Area | Facing | Contact Us |
| 8,190 x 10,000 yen | 28F | 2SLDK | 73.39㎡ | S | |||
| Pets Allowed Contact Us Favorite Details | |||||||
Detailed Information about this Room
Management Fee: 14,910 yen
Repair Fund: 9,800 yen
Other Monthly Charges: 0 yen
Monthly Total: 24,710 yen
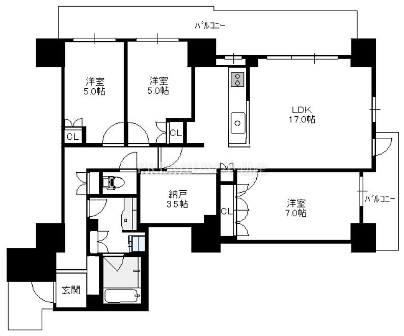
Layout: 2SLDK(洋6 洋5 S2.8 S1.0 LDK18.8)
Status: Vacant
Delivery Date: Available
Facilities: Good view/Barrier-free/Counter kitchen/IH cooking heater/Separate bath and toilet/Reheating function/Bathroom dryer/Floor heating/Indoor washing machine/Closet/Shoe box/Garbage disposer/Dishwasher
| For Sale |
| For Sale |
| For Sale |
| For Sale |
Reference Sales Price
Price 7,190x 10,000 yen~9,480x 10,000 yen(Average Price8,266x 10,000 yen)
Price per Square Meter 108x 10,000 yen/㎡~119x 10,000 yen/㎡(Average Unit Price112x 10,000 yen/㎡)
FUKUSHIMA GARDENS TOWERThis is reference information based on current property listings.
Easy and Quick Sales Price Estimation
Premium Real Estate's AI Sale Price Estimate allows you to instantly check the sale price of a specified tower apartment with about 20 seconds of input. There's no need to register or input personal information, so you can use it with peace of mind, without worrying about your personal information or persistent sales pitches.
Available Rental Properties
TODAY
Updated Today
NEW
New Listings (Within 7 Days)
Currently, FUKUSHIMA GARDENS TOWER has no available rooms for rent.
Shortened URL for this Building:https://www.tower.ne.jp/bl/131/








