奥村組施工の2008年に竣工した地上34階建て免震構造タワーマンション
目次
福島ガーデンズタワーの物件写真
タワーマンションを「借りたい方・買いたい方」、「売却査定・賃料査定」など何でもお気軽にお問い合わせください。
福島ガーデンズタワーの概要・物件情報
基本情報
- 所在地
- 📍大阪市福島区鷺洲3丁目 [地図表示]
- 交通
- 🚉阪神電鉄本線 野田駅まで徒歩3分
🚉大阪メトロ千日前線 野田阪神駅まで徒歩5分 - 築年月
- 🎂2008年1月
- 構造等
- 鉄筋コン/地上34階建
- 総戸数
- 283戸
- 管理方式
- 通勤(日勤)
- 用途地域
- 準工業地域
- 建ぺい率
- 60%
- 建ぺい率
- 300%
- 土地権利
- 所有権
- 地勢
- 平坦
- 国土法届出
- 不要
福島ガーデンズタワー
「福島ガーデンズタワー」に住みたいお客様(購入・賃貸)、住替え等にて売却を検討や賃料条件から部屋付け家賃管理等ご検討の所有者(オーナー様)の方、大阪市内の中古タワーマンション専門のプレミアム不動産へお気軽にご相談ください。
台地に緑を抱きながら、都心の天空に住まう喜び。
南面に約2000㎡もの広大な庭園を確保し、下層階まで光と風を感じられる住環境。
敷地内、建物南側に約2000㎡の庭園があり、緑豊かな環境で潤いのある暮らしが楽しめます。
2層吹き抜けの広々としたエントランスにはコンシェルジュカウンターや、不在時に便利な宅配BOXが設置されています。
ゲストスイート、ブックステーション、パーソナルステーション、パーティルーム、キッズプレイス、ミーティングルーム、オーナズサロンなど共用施設も充実。
オートロック、24時間セキュリティ、防犯カメラ、24時間有人管理など安心のセキュリティ対策居住者の安全をサポート。
免震構造のマンションです。
4駅4沿線が利用できる都心ならではの利便性を感じることもでき、大型ショッピングセンターやスーパー、コンビニ、郵便局、銀行、「大阪厚生年金病院」などの医療施設、小・中学校など、日々の暮らしに必要な諸施設が徒歩圏内に揃っています。
各種教育機関も徒歩10分圏内で通勤だけでなく通学にも便利です。
またレジャー施設も充実しており、大人から子供までが楽しめるエリアです。
◆共用施設◆
1階:コンシェルジュサービス
2階:ゲストスイート・ブックステーション・パーソナルステーション・パーティルーム・キッズプレイス・ミーティングルーム・オーナズサロン
◆駐車場◆
月/13,000円〜19,000円
◆バイク置場◆
月/1,000円〜2,000円
◆自転車置場◆
月/100円〜200円
※管理組合に最新空車確認ならびに実際に駐車してご確認ください。
共用設備
- 主要
免震構造 タワー型 オートロック エレベータ 宅配ボックス オール電化 キッズルーム ゲストルーム コミュニティルーム コンシェルジュ パーティールーム
駐車場・駐輪場
この物件のメリット・デメリット
メリット
- 低層階でも眺望が良好なところ
デメリット
- 外廊下の構造となっております
福島ガーデンズタワーのよくある質問
タワーマンションを「借りたい方・買いたい方」、「売却査定・賃料査定」など何でもお気軽にお問い合わせください。
分譲・中古・売り物件一覧
TODAY
本日更新
NEW
新着(7日以内)
売出中 |
売買ペット | 価格 | 階層 | 間取 | 面積 | 向 | お問い合せ |
| 11,000万円 | 32階 | 2LDK | 93.37㎡ | 南西 | |||
| ペット お問い合せ お気に入り 詳細表示 | |||||||
このお部屋の詳細情報
管理費 18,410円
修繕積立金 12,500円
月額合計金額 30,910円
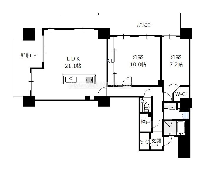
間取り 2LDK(洋10.0 洋7.2 LDK21.1)
現況 居住中
引き渡し 募集中
設備 眺望良好/バリアフリー/対面式キッチン/IHクッキングヒーター/バス・トイレ別/追い炊き機能/浴室乾燥機/床暖房/室内洗濯機/クローゼット/ウォークインクローゼット/シューズインクローゼット/2面以上バルコニー/ディスポーザー/食洗機/角部屋/LDK20帖以上
売出中 |
売買ペット | 価格 | 階層 | 間取 | 面積 | 向 | お問い合せ |
| 6,580万円 | 5階 | 3LDK | 67.78㎡ | 南 | |||
| ペット お問い合せ お気に入り 詳細表示 | |||||||
このお部屋の詳細情報
管理費 14,010円
修繕積立金 9,100円
月額合計金額 23,110円
間取り 3LDK(洋6.0 洋5.0 洋4.5 LDK13.5)
現況 空室
引き渡し 募集中
設備 眺望良好/バリアフリー/独立型キッチン/IHクッキングヒーター/バス・トイレ別/追い炊き機能/浴室乾燥機/室内洗濯機/クローゼット/シューズ・ボックス/食洗機
売出中 |
売買ペット | 価格 | 階層 | 間取 | 面積 | 向 | お問い合せ |
| 8,680万円 | 6階 | 3SLDK | 84.88㎡ | 南西 | |||
| ペット お問い合せ お気に入り 詳細表示 | |||||||
このお部屋の詳細情報
管理費 16,910円
修繕積立金 11,300円
月額合計金額 28,210円
間取り 3SLDK(洋7.0 洋5.0 洋5.0 S3.5 LDK17.0)
現況 空室
引き渡し 募集中
設備 バリアフリー/対面式キッチン/IHクッキングヒーター/バス・トイレ別/追い炊き機能/浴室乾燥機/床暖房/室内洗濯機/クローゼット/ウォークインクローゼット/シューズ・ボックス/2面以上バルコニー/ディスポーザー/食洗機/角部屋
現行利回り 4.01%
参考売買相場価格
価格 6,580万円~11,000万円(平均価格8,753万円)
平米単価 97万円/㎡~118万円/㎡(平均単価105万円/㎡)
福島ガーデンズタワーの掲載中の物件情報を元にした参考情報です
お手軽簡単売却価格査定
プレミアム不動産のAI売却価格査定では約20秒程度の入力で瞬時にご指定のタワーマンションの売却価格相場を調べることが出来ます。登録や個人情報の入力も不要ですので個人情報やしつこい営業の心配もなく安心してお使い頂けます。
空室・賃貸物件一覧
TODAY
本日更新
NEW
新着(7日以内)
現在、福島ガーデンズタワーの募集中空室がございません。
この建物の短縮URL:https://www.tower.ne.jp/bl/131/










