❤️1位用户已经喜欢这个物业
目录
GRAND MAISON 上町一丁目 TOWER的图片
如果您有关于塔楼公寓的租赁需求或购买需求,以及出售评估或租金评估等方面的任何问题,请随时联系我们。
GRAND MAISON 上町一丁目 TOWER的概述及物件信息
基本信息
- 所在地
- 📍大阪市中央区上町1街区 [地图显示]
- 交通
- 🚉Osaka Metro长堀鹤见绿地线 玉造步行到车站7分钟
🚉Osaka Metro中央线 谷町四丁目步行到车站10分钟 - 建成日期
- 🎂2022年11月
- 结构等
- 钢筋混凝土/地上36层建筑
- 总户数
- 188户
- 管理方式
- 不明
- 用途地区
- 第二类住宅区
- 建筑容积率
- 100%
- 建筑容积率
- 525%
- 土地权利
- 所有权
- 地势
- 平坦
- 国土法报告
- 不需要
GRAND MAISON 上町一丁目 TOWER
如果想要住在“Grand Maison 上町一丁目 Tower”(购买或租赁), 或者是考虑出售、根据租金条件来安排房间出租和租金管理等问题的房主(业主),欢迎咨询我们这家专门从事大阪市内二手高层公寓的高级房地产公司。
“Grand Maison 上町一丁目 Tower”所处位置南至大阪城和难波宫遗址公园。 沿线车站包括谷町四丁目站、森之宫站、谷町六丁目站、玉造站,恰好位于中间地带。 周围有城星学园、大阪女学院、明星中学等。与“Daily Yamazaki”法円坂店、唐吉柯德法円坂店、森之宫“Cues Mall”、东急体育俱乐部也毗邻。
◆共用设施◆
3楼:休息室、客房
◆停车场◆
94个车位(平面式8个,升降式86个)
月租/27,000日元至36,000日元
◆摩托车停车位◆
摩托车(4辆):月租/2,000日元
◆自行车停车位◆
376个:月租/100日元至600日元
※请联系管理协会查看最新空位情况并实际停车确认。
共用设施
- 主要
免震结构 塔楼型 自动门锁 电梯 快递柜 客房 社区室 礼宾服务
停车场・自行车停放处
本物件的优点与缺点
优点
- 在环境良好的地段,主要针对家庭需求。
缺点
- 由于总户数较少,根据长期修缮计划的内容,未来的修缮储备基金可能会比通常更快上涨
- 位于各站(森之宫站、玉造站、谷町四丁目站、谷町六丁目站)正好是中间地点
GRAND MAISON 上町一丁目 TOWER常见问题
如果您有关于塔楼公寓的租赁需求或购买需求,以及出售评估或租金评估等方面的任何问题,请随时联系我们。
出售・中古・销售物品列表
TODAY
今日更新
NEW
新到(7天内)
在售 |
买卖可带宠物 | 价格 | 楼层 | 户型 | 面积 | 朝向 | 联系我们 |
| 13,980万日元 | 11楼 | 3LDK | 82.71㎡ | 东北 | |||
| 可带宠物 联系我们 收藏 显示详情 | |||||||
此房间的详细信息
管理费 20,670日元
修缮基金 8,270日元
其他月费 2,200日元
月总费用 31,140日元
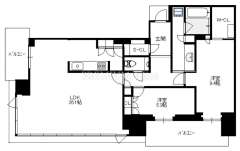
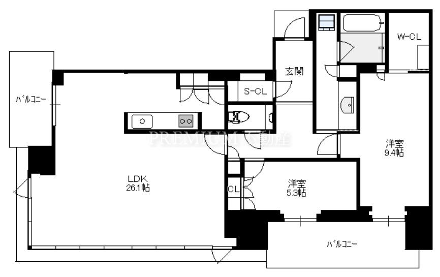
户型 3LDK(洋6.6 洋5.0 洋5.0 LDK18.6)
现状 正在居住
交付时间 正在募集中
设备 景观良好/无障碍/对面厨房/燃气灶/浴室/卫生间分离/浴缸加热功能/浴室干燥机/地暖/室内洗衣机/衣柜/步入式衣柜/鞋柜更衣室/垃圾处理器/洗碗机/角房
| 买卖 |
参考买卖行情价格
价格 13,980万日元~30,000万日元(平均价格20,260万日元)
每平方米价格 169万日元/㎡~289万日元/㎡(平均211万日元/㎡)
GRAND MAISON 上町一丁目 TOWER在售房产信息的参考资料。
简便的出售价格评估
在PREMIUM不動産的AI出售价格评估网站上,只需约20秒的输入时间,即可瞬间查询到您指定的高层公寓的出售价格行情。无需注册或输入个人信息,因此无需担心个人信息泄露或受到烦人的推销,您可以放心使用
空置・出租房产列表
TODAY
今日更新
NEW
新到(7天内)
目前,GRAND MAISON 上町一丁目 TOWER的招募中空房暂无。
此建筑的短链接: https://www.tower.ne.jp/bl/218/



