2006年由清水建筑公司建造的地上35层、总共244户单位的塔楼公寓。
❤️2位用户已经喜欢这个物业
目录
VIEQU TOWER OSAKA的图片
如果您有关于塔楼公寓的租赁需求或购买需求,以及出售评估或租金评估等方面的任何问题,请随时联系我们。
VIEQU TOWER OSAKA的概述及物件信息
基本信息
- 所在地
- 📍大阪市北区西天满1街区 [地图显示]
- 交通
- 🚉京阪电气铁道京阪线 北滨步行到车站4分钟
🚉Osaka Metro谷町线 南森町步行到车站8分钟 - 建成日期
- 🎂2006年7月
- 结构等
- 钢筋混凝土/地上35层建筑
- 总户数
- 244户
- 管理方式
- 通勤(日勤)
- 用途地区
- 商业区
- 建筑容积率
- 80%
- 建筑容积率
- 400%
- 土地权利
- 所有权
- 地势
- 平坦
- 国土法报告
- 不需要
VIEQU TOWER OSAKA
VEEK TOWER OSAKA(VEEK塔大阪)希望居住的顾客(购买、租赁)、考虑销售和租金条件进行房间分配和租金管理等的业主(业主),欢迎随时咨询大阪市中古塔楼公寓专门的高级房地产。
VEEK TOWER OSAKA于2006年7月竣工,是一座超高层塔楼公寓。
由清水建设施工的抗震设计(双管结构法)的地上35层建筑。白色和海蓝色的对比在堂岛川河畔照耀下形成美丽的地标塔楼。
VEEK TOWER OSAKA除了提供顶层拥有全景视野的观景厅外,还设有酒店式礼宾服务、大堂休息室、社交厅、客房、剧场等共用设施,令人瞩目。此外,24小时有人管理、防盗摄像头、家庭安全等安保设施也非常完善。
VEEK TOWER OSAKA的每个住户都配备了带电视监视器的对讲机、系统厨房、地暖、浴室暖风干燥机等舒适设施作为标准配置。位于步行4分钟即可抵达京阪电铁本线北滨站的交通便利地段。
顶层的全景视野观景厅“天空行者”可招待客人,也是一个聚会场所。在梅田附近的地标和日落时分,远处可以看到淡路岛、六甲山系,天气好时可以看到夕照的大阪湾,让您享受空中漫步的片刻愉悦。
◆共用设施◆
1楼:礼宾服务大堂
2楼:社交厅、客房、剧场
35楼:观景厅
◆停车场◆
月/20,000日元至24,000日元
普通车辆、高车顶
◆摩托车停车场◆
月/800日元
◆自行车停车场◆
月/200日元
※请向管理协会查询最新的空位情况,以及实际停车情况。
VEEK TOWER OSAKA于2006年7月竣工,是一座超高层塔楼公寓。
由清水建设施工的抗震设计(双管结构法)的地上35层建筑。白色和海蓝色的对比在堂岛川河畔照耀下形成美丽的地标塔楼。
VEEK TOWER OSAKA除了提供顶层拥有全景视野的观景厅外,还设有酒店式礼宾服务、大堂休息室、社交厅、客房、剧场等共用设施,令人瞩目。此外,24小时有人管理、防盗摄像头、家庭安全等安保设施也非常完善。
VEEK TOWER OSAKA的每个住户都配备了带电视监视器的对讲机、系统厨房、地暖、浴室暖风干燥机等舒适设施作为标准配置。位于步行4分钟即可抵达京阪电铁本线北滨站的交通便利地段。
顶层的全景视野观景厅“天空行者”可招待客人,也是一个聚会场所。在梅田附近的地标和日落时分,远处可以看到淡路岛、六甲山系,天气好时可以看到夕照的大阪湾,让您享受空中漫步的片刻愉悦。
◆共用设施◆
1楼:礼宾服务大堂
2楼:社交厅、客房、剧场
35楼:观景厅
◆停车场◆
月/20,000日元至24,000日元
普通车辆、高车顶
◆摩托车停车场◆
月/800日元
◆自行车停车场◆
月/200日元
※请向管理协会查询最新的空位情况,以及实际停车情况。
共用设施
- 主要
免震结构 塔楼型 自动门锁 电梯 快递柜 客房 电影院 空中休息室 礼宾服务
停车场・自行车停放处
本物件的优点与缺点
优点
- 沿着大利川(堂岛川)的地标。
缺点
- 南部有阪神高速道路12號守口線,有噪音讓人感到不安。
VIEQU TOWER OSAKA常见问题
如果您有关于塔楼公寓的租赁需求或购买需求,以及出售评估或租金评估等方面的任何问题,请随时联系我们。
出售・中古・销售物品列表
TODAY
今日更新
NEW
新到(7天内)
在售 |
买卖可带宠物 | 价格 | 楼层 | 户型 | 面积 | 朝向 | 联系我们 |
| 11,888万日元 | 25楼 | 2LDK | 76.61㎡ | 南 | |||
| 可带宠物 联系我们 收藏 显示详情 | |||||||
此房间的详细信息
管理费 12,600日元
修缮基金 19,440日元
其他月费 580日元
月总费用 32,620日元
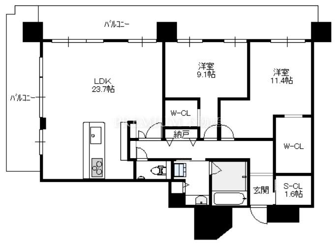
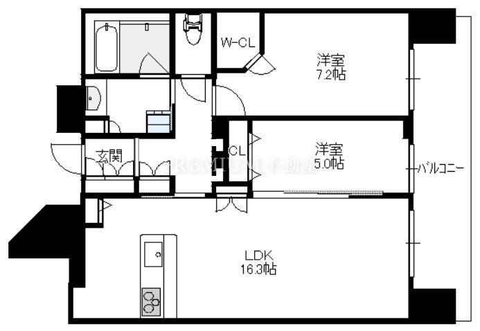
户型 2LDK(洋8.2 洋6.3 LDK19.2)
现状 空房
交付时间 正在募集中
设备 景观良好/无障碍/独立厨房/燃气灶/浴室/卫生间分离/浴缸加热功能/浴室干燥机/地暖/室内洗衣机/衣柜/步入式衣柜/空调/鞋柜/垃圾处理器/洗碗机
| 买卖 |
| 买卖 |
| 业主更换 |
参考买卖行情价格
价格 6,300万日元~11,888万日元(平均价格8,847万日元)
每平方米价格 76万日元/㎡~155万日元/㎡(平均120万日元/㎡)
VIEQU TOWER OSAKA在售房产信息的参考资料。
简便的出售价格评估
在PREMIUM不動産的AI出售价格评估网站上,只需约20秒的输入时间,即可瞬间查询到您指定的高层公寓的出售价格行情。无需注册或输入个人信息,因此无需担心个人信息泄露或受到烦人的推销,您可以放心使用
空置・出租房产列表
TODAY
今日更新
NEW
新到(7天内)
目前,VIEQU TOWER OSAKA的招募中空房暂无。
此建筑的短链接: https://www.tower.ne.jp/bl/13/
0人正在浏览中








