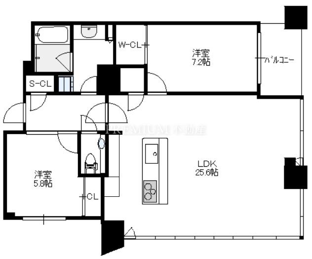
ザ・タワー大阪(大阪市福島区福島1丁目)にある2SLDK(洋7.2 洋5.8 LDK25.6)のお部屋です。 専有面積:85.59㎡、34階 / 地上50階建、方角:北西。 価格:1億6800万円、管理費:17300円、修繕積立金:5130円。 最寄駅:福島駅(大阪環状線)徒歩6分、新福島駅(JR東西線)徒歩3分。 建物設備:オートロック・宅配ボックス・オール電化・ゲストルーム・シアタールーム・スカイラウンジ・コミュニティルーム・コンシェルジュ・パーティールーム・ペット用設備。 部屋設備:ウォークインクローゼット・ディスポーザー・食洗機・バス・トイレ別・追い炊き機能・浴室乾燥機・床暖房・室内洗濯機・クローゼット・エアコン。 特徴:眺望良好・角部屋・LDK20帖以上。 建物概要:竹中工務店が施工した2008年竣工の地上50階建て総戸数560戸の大規模タワーマンション
目次
ザ・タワー大阪の物件写真
お部屋情報
お気に入り お問い合わせ
募集中 |
売買 | 価格 | 所在階 | 間取り | 専有面積 | 方位 |
| 16,800万円 | 34階 | 2SLDK | 85.59㎡ | 北西 |
管理費 17,300円
修繕積立金 5,130円
その他月額費 0円
月額合計金額 22,430円
水道料金 実費
間取り 2SLDK(洋7.2 洋5.8 LDK25.6)
現況 空室
引き渡し 即時
設備
ペット 相談
ローン返済額
毎月の返済額の目安 : 469,946円
借入金額16,800万円、金利0.945%、返済期間35年での計算です。
※元利均等返済方式での計算になります。あくまでもご返済の目安にするものになりますので、詳細は各銀行でご確認下さい(三菱UFJ銀行 新規借り入れシミュレーション)。
タワーマンションを「借りたい方・買いたい方」、「売却査定・賃料査定」など何でもお気軽にお問い合わせください。
ザ・タワー大阪の概要・物件情報
基本情報
- 所在地
- 📍大阪市福島区福島1丁目 [地図表示]
- 交通
- 🚉大阪環状線 福島駅まで徒歩6分
🚉JR東西線 新福島駅まで徒歩3分 - 築年月
- 🎂2008年4月
- 構造等
- 鉄筋コン/地上50階建
- 総戸数
- 560戸
- 管理方式
- 通勤(日勤)
- 用途地域
- 商業地域
- 建ぺい率
- 80%
- 建ぺい率
- 600%
- 土地権利
- 所有権
- 地勢
- 平坦
- 国土法届出
- 不要
ザ・タワー大阪
「ザ・タワー大阪レジデンス(The Tower Osaka)」に住みたいお客様(購入・賃貸)、住替え等にて売却を検討や賃料条件から部屋付け家賃管理等ご検討の所有者(オーナー様)の方、大阪市内の中古タワーマンション専門のプレミアム不動産へお気軽にご相談ください。
人々から特別の思い入れを寄せられるランドマークとしての存在感を主張。
「The Tower Osaka」を中心に、高品質な高級レジデンス、ショップやレストラン、カフェなどが多彩に集います。
高感度な複合都市空間の中心に佇むランドマーク低層階には商業施設としてフィットネスクラブやレストラン、都市型食品スーパーマーケットのほか、クリニックモールで構成されています。
30階バーラウンジ、30階と31階には来客時に便利なゲストルームのほか、パーティルームやスタジオもご用意。レセプションコーナーにはコンシェルジュカウンターを設置。
防犯面では24時間有人管理や4重のセキュリティで、住まう方々のライフスタイルを快適に豊かに演出してくれます。
JR東西線「新福島」駅、阪神本線「福島」駅、京阪中之島線「中之島」駅の3駅3路線が徒歩圏内。
梅田や淀屋橋へも自転車でアクセスできる、便利なロケーションです。
「ほたるまち」と堂島川の間には、遊歩道と街路樹が整備され、水辺のお散歩が楽しめます。
朝日放送の社屋や関西電力病院、大阪国際会議場グランキューブ大阪などの施設が点在し、都市ならではのエキサイティングなライフスタイルを楽しめそうです。
また、4階~7階までが賃貸専用住宅フロア「ザ・タワー大阪レジデンス」となっており、8階以上が分譲フロア「ザ・タワー大阪」となります。
◆共用施設◆
1階:コンシェルジュサービス・メインエントランス・レセプションロビー・ペット足洗い場・来場者専用駐車場
2階:サブエントランスレセプションラウンジ・レセプションサロン
30階:ゲストルーム(ノーブルスイート)・パーティールーム・スタジオ&AVルーム・ビューラウンジ・バーラウンジ・ギャラリーラウンジ
31階:ゲストルーム(グレイススイート)
46〜48階:各階ウェイティングロビー
49階:ジオアシス
◆駐車場◆
普通乗用車:月/20,000円
ミドルルーフ車:月/22,000円
ハイルーフ車:月/24,000円
◆バイク置場◆
月/4,000円
◆ミニバイク置場◆
月/2,000円
◆自転車◆
上段(月/100円)
下段(月/200円)
※管理組合に最新空車確認ならびに実際に駐車してご確認ください。
共用設備
- 主要
免震構造 オートロック エレベータ 宅配ボックス オール電化 ゲストルーム シアタールーム スカイラウンジ コミュニティルーム コンシェルジュ パーティールーム ペット用設備
駐車場・駐輪場
この物件のメリット・デメリット
メリット
- リバーサイド(堂島川)にて南向きは低層階でも眺望良好です
- ゴールドジム大阪中之島店が隣施設にあり、本格的なフィットネスを望む方におススメかも!
デメリット
- 西向きは「朝日放送テレビ」が隣接し、40階以上なら眺望良好です
- 東向きは「堂島クロスウォーク」が隣接し、25階以上なら眺望良好です
分譲・中古・売り物件一覧
TODAY
本日更新
NEW
新着(7日以内)
売出中 |
売買TODAYペット | 価格 | 階層 | 間取 | 面積 | 向 | お問い合せ |
| 7,980万円 | 8階 | 1LDK | 55.11㎡ | 東 | |||
| ペット お問い合せ お気に入り 詳細表示 | |||||||
このお部屋の詳細情報
管理費 11,200円
修繕積立金 3,310円
その他月額費 0円
月額合計金額 14,510円
間取り 1LDK(洋5.4 LDK14.0)
現況 空室
引き渡し 募集中
設備 バリアフリー/L字型キッチン/IHクッキングヒーター/バス・トイレ別/追い炊き機能/浴室乾燥機/床暖房/室内洗濯機/ウォークインクローゼット/シューズ・ボックス/ディスポーザー/食洗機
売出中 |
売買ペット | 価格 | 階層 | 間取 | 面積 | 向 | お問い合せ |
| 7,780万円 | 20階 | 1LDK | 55.11㎡ | 東 | |||
| ペット お問い合せ お気に入り 詳細表示 | |||||||
このお部屋の詳細情報
管理費 11,200円
修繕積立金 3,310円
その他月額費 0円
月額合計金額 14,510円
間取り 1LDK(洋6.0 LDK16.5)
現況 空室
引き渡し 募集中
設備 眺望良好/バリアフリー/L字型キッチン/IHクッキングヒーター/バス・トイレ別/追い炊き機能/浴室乾燥機/床暖房/室内洗濯機/ウォークインクローゼット/シューズ・ボックス/ディスポーザー/食洗機
※間取り反転タイプ
| 売買 |
| 売買 |
売出中 |
売買ペット | 価格 | 階層 | 間取 | 面積 | 向 | お問い合せ |
| 11,800万円 | 22階 | 2LDK | 73.25㎡ | 南 | |||
| ペット お問い合せ お気に入り 詳細表示 | |||||||
このお部屋の詳細情報
管理費 14,800円
修繕積立金 4,400円
その他月額費 0円
月額合計金額 19,200円
間取り 2LDK(洋8.0 洋6.4 LDK18.2)
現況 空室
引き渡し 募集中
設備 オーシャン・リバービュー/眺望良好/バリアフリー/対面式キッチン/IHクッキングヒーター/バス・トイレ別/追い炊き機能/浴室乾燥機/床暖房/室内洗濯機/クローゼット/ウォークインクローゼット/シューズインクローゼット/ディスポーザー/食洗機
※間取り反転タイプ
| 売買 |
売出中 |
売買ペット | 価格 | 階層 | 間取 | 面積 | 向 | お問い合せ |
| 12,980万円 | 40階 | 2LDK | 73.25㎡ | 南 | |||
| ペット お問い合せ お気に入り 詳細表示 | |||||||
このお部屋の詳細情報
管理費 14,800円
修繕積立金 4,400円
その他月額費 0円
月額合計金額 19,200円
間取り 2LDK(洋8.0 洋5.1 LDK17.9)
現況 空室
引き渡し 募集中
設備 オーシャン・リバービュー/眺望良好/バリアフリー/対面式キッチン/IHクッキングヒーター/バス・トイレ別/追い炊き機能/浴室乾燥機/床暖房/室内洗濯機/クローゼット/ウォークインクローゼット/エアコン/シューズインクローゼット/ディスポーザー/食洗機
| 売買 |
| 売買 |
売出中 |
売買ペット | 価格 | 階層 | 間取 | 面積 | 向 | お問い合せ |
| 15,300万円 | 47階 | 1LDK | 82.26㎡ | 東 | |||
| ペット お問い合せ お気に入り 詳細表示 | |||||||
このお部屋の詳細情報
管理費 16,600円
修繕積立金 4,940円
その他月額費 0円
月額合計金額 21,540円
間取り 1LDK(洋12.6 LDK18.2)
現況 居住中
引き渡し 募集中
設備 眺望良好/バリアフリー/独立型キッチン/IHクッキングヒーター/バス・トイレ別/追い炊き機能/浴室乾燥機/床暖房/室内洗濯機/ウォークインクローゼット/シューズインクローゼット/ディスポーザー/食洗機
売出中 |
売買ペット | 価格 | 階層 | 間取 | 面積 | 向 | お問い合せ |
| 15,800万円 | 32階 | 2SLDK | 85.59㎡ | 北西 | |||
| ペット お問い合せ お気に入り 詳細表示 | |||||||
このお部屋の詳細情報
管理費 17,300円
修繕積立金 5,130円
その他月額費 0円
月額合計金額 22,430円
間取り 2SLDK(洋7.2 洋5.8 LDK25.6)
現況 空室
引き渡し 募集中
設備 眺望良好/バリアフリー/アイランドキッチン/IHクッキングヒーター/バス・トイレ別/追い炊き機能/浴室乾燥機/床暖房/室内洗濯機/クローゼット/ウォークインクローゼット/エアコン/シューズインクローゼット/ディスポーザー/食洗機/角部屋/LDK20帖以上
売出中 |
売買ペット | 価格 | 階層 | 間取 | 面積 | 向 | お問い合せ |
| 16,800万円 | 34階 | 2SLDK | 85.59㎡ | 北西 | |||
| ペット お問い合せ お気に入り 詳細表示 | |||||||
このお部屋の詳細情報
管理費 17,300円
修繕積立金 5,130円
その他月額費 0円
月額合計金額 22,430円
間取り 2SLDK(洋7.2 洋5.8 LDK25.6)
現況 空室
引き渡し 募集中
設備 眺望良好/バリアフリー/アイランドキッチン/IHクッキングヒーター/バス・トイレ別/追い炊き機能/浴室乾燥機/床暖房/室内洗濯機/クローゼット/ウォークインクローゼット/エアコン/シューズインクローゼット/ディスポーザー/食洗機/角部屋/LDK20帖以上
| 売買 |
参考売買相場価格
価格 7,780万円~26,300万円(平均価格13,486万円)
平米単価 137万円/㎡~236万円/㎡(平均単価172万円/㎡)
ザ・タワー大阪の掲載中の物件情報を元にした参考情報です
空室・賃貸物件一覧
TODAY
本日更新
NEW
新着(7日以内)
現在、ザ・タワー大阪の募集中空室がございません。
このお部屋の短縮URL:https://www.tower.ne.jp/rm/28589/












