大林組施工の2026年に竣工する地上46階建て総戸数364戸超高層制振構造システム
目次
シエリアタワー中之島の物件写真
お部屋情報
このお部屋は定期借家契約となります
このお部屋の情報は会員限定で公開させていただいております。
シエリアタワー中之島の概要・物件情報
基本情報
- 所在地
- 📍大阪市福島区福島2丁目 [地図表示]
- 交通
- 🚉京阪電鉄中之島線 中之島駅まで徒歩5分
🚉JR東西線 新福島駅まで徒歩4分 - 築年月
- 🎂2026年2月
- 構造等
- 鉄筋コン/地上46階建
- 総戸数
- 364戸
- 管理方式
- 常駐
- 用途地域
- 商業地域
- 建ぺい率
- 80%
- 建ぺい率
- 600%
- 土地権利
- 定期地上権
- 地勢
- 平坦
- 国土法届出
- 不要
シエリアタワー中之島
「シエリアタワー中之島」に住みたいお客様(購入・賃貸)、住替え等にて売却を検討や賃料条件から部屋付け家賃管理等ご検討の所有者(オーナー様)の方、大阪市内の中古タワーマンション専門のプレミアム不動産へお気軽にご相談ください。
堂島川を南に望む、地上46階超高層タワー
新たなる水都OSAKAの象徴へ。全29タイプの多彩な住戸プランをご用意。
デザインコンセプトは「The Flow」。 緩やかに流れる川など、曲線美を感じさせる風景が広がる 中之島にふさわしい、柔らかな動きのあるファサードを創出します。
【定期借地権(地上権)】建物は区分所有、敷地は専有面積割合による一般定期借地権(地上権)、【借地期間】:引渡日より2098年2月28日まで(解体工事期間含む) ※建物の買い取り請求・契約更新及び改築等による期間延長は一切できません。※地代保証金は契約期間終了後返却します。※賃料は3年毎に改定、借地権の譲渡・転貸可(譲渡時は承諾要、転貸時は通知要、承諾料不要) ※契約期間終了迄に借地を更地に戻して返還することが条件となります。
◆共用施設◆
1階、2階(二層吹き抜け):グランドエントランス
3階:フィットネススタジオ・コワーキングルーム・ルーフガーデン・ゲストルーム
3階、4階(二層吹き抜け):リバーサイドラウンジ・リバービューテラス
38階:パーティサロン・
38階、39階:スカイラウンジ
◆駐車場◆
166台(機械式164台/平面2台(来客用))
(月額使用料:未定)
◆バイク置場◆
大型バイク置場8台、ミニバイク置場73台
(月額使用料:未定)
◆自転車置場◆
729台(機械式491台/平面238台)
(月額使用料:未定)
※管理組合に最新空車確認ならびに実際に駐車してご確認ください。
共用設備
- 主要
制震構造 タワー型 オートロック エレベータ 宅配ボックス オール電化 ゲストルーム ジム スカイラウンジ パーティールーム
駐車場・駐輪場
この物件のメリット・デメリット
メリット
- リバーサイド(堂島川)にて南向きは低層階でも眺望良好です
デメリット
- 土地の所有者が異なり一般定期借地権(転借地権)となります
分譲・中古・売り物件一覧
TODAY
本日更新
NEW
新着(7日以内)
売出中 |
売買未入居ペット | 価格 | 階層 | 間取 | 面積 | 向 | お問い合せ |
| 8,980万円 | 34階 | 2LDK | 55㎡ | 北西 | |||
| 未入居ペット お問い合せ お気に入り 詳細表示 | |||||||
このお部屋の詳細情報
管理費 16,500円
修繕積立金 6,600円
その他月額費 16,103円
月額合計金額 39,203円
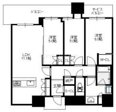
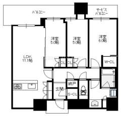
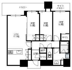
間取り 2LDK(洋6.0 洋4.8 LDK11.8)
現況 空室
引き渡し 募集中
設備 眺望良好/バリアフリー/対面式キッチン/IHクッキングヒーター/バス・トイレ別/追い炊き機能/浴室乾燥機/室内洗濯機/クローゼット/ウォークインクローゼット/シューズインクローゼット/ディスポーザー/食洗機
売出中 |
売買未入居ペット | 価格 | 階層 | 間取 | 面積 | 向 | お問い合せ |
| 12,400万円 | 6階 | 3LDK | 73.92㎡ | 南東 | |||
| 未入居ペット お問い合せ お気に入り 詳細表示 | |||||||
このお部屋の詳細情報
管理費 22,200円
修繕積立金 8,900円
その他月額費 20,094円
月額合計金額 51,194円
間取り 3LDK(洋6.0 洋4.7 洋4.7 LDK15.6)
現況 空室
引き渡し 募集中
設備 オーシャン・リバービュー/バリアフリー/対面式キッチン/IHクッキングヒーター/バス・トイレ別/追い炊き機能/浴室乾燥機/室内洗濯機/クローゼット/ウォークインクローゼット/エアコン/シューズインクローゼット/ディスポーザー/食洗機
| 売買 |
| 売買 |
| 売買 |
| 売買 |
売出中 |
売買未入居ペット | 価格 | 階層 | 間取 | 面積 | 向 | お問い合せ |
| 8,290万円 | 16階 | 2LDK | 55㎡ | 北西 | |||
| 未入居ペット お問い合せ お気に入り 詳細表示 | |||||||
このお部屋の詳細情報
管理費 16,500円
修繕積立金 6,600円
その他月額費 16,103円
月額合計金額 39,203円
間取り 2LDK(洋6.0 洋4.8 LDK11.8)
現況 空室
引き渡し 募集中
設備 バリアフリー/対面式キッチン/IHクッキングヒーター/バス・トイレ別/追い炊き機能/浴室乾燥機/室内洗濯機/クローゼット/ウォークインクローゼット/シューズインクローゼット/ディスポーザー/食洗機
売出中 |
売買未入居ペット | 価格 | 階層 | 間取 | 面積 | 向 | お問い合せ |
| 12,080万円 | 9階 | 3LDK | 77.58㎡ | 北東 | |||
| 未入居ペット お問い合せ お気に入り 詳細表示 | |||||||
このお部屋の詳細情報
管理費 23,200円
修繕積立金 9,400円
その他月額費 20,835円
月額合計金額 53,435円
間取り 3LDK(洋6.0 洋5.0 洋4.5 LDK16.9)
現況 空室
引き渡し 募集中
設備 バリアフリー/対面式キッチン/IHクッキングヒーター/バス・トイレ別/追い炊き機能/浴室乾燥機/室内洗濯機/クローゼット/ウォークインクローゼット/エアコン/シューズインクローゼット/ディスポーザー/食洗機/角部屋
売出中 |
売買未入居ペット | 価格 | 階層 | 間取 | 面積 | 向 | お問い合せ |
| 17,300万円 | 14階 | 3LDK | 86.94㎡ | 南東 | |||
| 未入居ペット お問い合せ お気に入り 詳細表示 | |||||||
このお部屋の詳細情報
管理費 26,000円
修繕積立金 10,500円
その他月額費 22,816円
月額合計金額 59,316円
間取り 3LDK(洋7.0 洋5.0 洋5.0 LDK20.8)
現況 空室
引き渡し 募集中
設備 オーシャン・リバービュー/バリアフリー/対面式キッチン/IHクッキングヒーター/バス・トイレ別/追い炊き機能/浴室乾燥機/室内洗濯機/クローゼット/ウォークインクローゼット/エアコン/シューズインクローゼット/ディスポーザー/食洗機/角部屋/LDK20帖以上
売出中 |
売買未入居ペット | 価格 | 階層 | 間取 | 面積 | 向 | お問い合せ |
| 18,000万円 | 30階 | 3LDK | 86.94㎡ | 南西 | |||
| 未入居ペット お問い合せ お気に入り 詳細表示 | |||||||
このお部屋の詳細情報
管理費 26,000円
修繕積立金 10,500円
その他月額費 22,816円
月額合計金額 59,316円
間取り 3LDK(洋7.0 洋5.0 洋5.0 LDK20.8)
現況 空室
引き渡し 募集中
設備 オーシャン・リバービュー/眺望良好/バリアフリー/対面式キッチン/IHクッキングヒーター/バス・トイレ別/追い炊き機能/浴室乾燥機/室内洗濯機/クローゼット/ウォークインクローゼット/エアコン/シューズインクローゼット/ディスポーザー/食洗機/角部屋/LDK20帖以上
| 売買 |
売出中 |
売買NEWペット | 価格 | 階層 | 間取 | 面積 | 向 | お問い合せ |
| 15,700万円 | 29階 | 3LDK | 86.94㎡ | 南西 | |||
| ペット お問い合せ お気に入り 詳細表示 | |||||||
このお部屋の詳細情報
管理費 26,000円
修繕積立金 10,500円
その他月額費 22,816円
月額合計金額 59,316円
間取り 3LDK(洋7.0 洋5.0 洋5.0 LDK20.8)
現況 居住中
引き渡し 募集中
設備 オーシャン・リバービュー/眺望良好/バリアフリー/対面式キッチン/IHクッキングヒーター/バス・トイレ別/追い炊き機能/浴室乾燥機/室内洗濯機/クローゼット/ウォークインクローゼット/エアコン/シューズインクローゼット/ディスポーザー/食洗機/角部屋/LDK20帖以上
| 売買 |
売出中 |
売買未入居ペット | 価格 | 階層 | 間取 | 面積 | 向 | お問い合せ |
| 18,500万円 | 9階 | 3LDK | 85.7㎡ | 東 | |||
| 未入居ペット お問い合せ お気に入り 詳細表示 | |||||||
このお部屋の詳細情報
管理費 25,700円
修繕積立金 10,300円
その他月額費 22,533円
月額合計金額 58,533円
間取り 3LDK(洋7.0 洋5.4 洋4.5 LDK19.1)
現況 空室
引き渡し 募集中
設備 バリアフリー/対面式キッチン/IHクッキングヒーター/バス・トイレ別/追い炊き機能/浴室乾燥機/室内洗濯機/クローゼット/ウォークインクローゼット/エアコン/シューズインクローゼット/ディスポーザー/食洗機/角部屋
売出中 |
売買未入居ペット | 価格 | 階層 | 間取 | 面積 | 向 | お問い合せ |
| 19,800万円 | 6階 | 3LDK | 85.7㎡ | 南東 | |||
| 未入居ペット お問い合せ お気に入り 詳細表示 | |||||||
このお部屋の詳細情報
管理費 25,700円
修繕積立金 10,300円
その他月額費 22,533円
月額合計金額 58,533円
間取り 3LDK(洋7.0 洋5.0 洋5.0 LDK20.8)
現況 空室
引き渡し 募集中
設備 バリアフリー/対面式キッチン/IHクッキングヒーター/バス・トイレ別/追い炊き機能/浴室乾燥機/室内洗濯機/クローゼット/ウォークインクローゼット/エアコン/シューズインクローゼット/ディスポーザー/食洗機/角部屋/LDK20帖以上
| 売買 |
売出中 |
売買未入居ペット | 価格 | 階層 | 間取 | 面積 | 向 | お問い合せ |
| 15,200万円 | 38階 | 2LDK | 68.66㎡ | 東 | |||
| 未入居ペット お問い合せ お気に入り 詳細表示 | |||||||
このお部屋の詳細情報
管理費 20,600円
修繕積立金 8,300円
その他月額費 19,019円
月額合計金額 47,919円
間取り 2LDK(洋8.0 洋6.1 LDK13.4)
現況 空室
引き渡し 募集中
設備 眺望良好/バリアフリー/対面式キッチン/IHクッキングヒーター/バス・トイレ別/追い炊き機能/浴室乾燥機/室内洗濯機/クローゼット/ウォークインクローゼット/エアコン/シューズインクローゼット/ディスポーザー/食洗機
| 売買 |
売出中 |
売買未入居ペット | 価格 | 階層 | 間取 | 面積 | 向 | お問い合せ |
| 9,200万円 | 39階 | 2LDK | 55㎡ | 北西 | |||
| 未入居ペット お問い合せ お気に入り 詳細表示 | |||||||
このお部屋の詳細情報
管理費 16,500円
修繕積立金 6,600円
その他月額費 16,103円
月額合計金額 39,203円
間取り 2LDK(洋6.0 洋4.8 LDK11.8)
現況 空室
引き渡し 募集中
設備 眺望良好/バリアフリー/対面式キッチン/IHクッキングヒーター/バス・トイレ別/追い炊き機能/浴室乾燥機/室内洗濯機/クローゼット/ウォークインクローゼット/シューズインクローゼット/ディスポーザー/食洗機
売出中 |
売買未入居ペット | 価格 | 階層 | 間取 | 面積 | 向 | お問い合せ |
| 17,500万円 | 16階 | 3LDK | 85.7㎡ | 東 | |||
| 未入居ペット お問い合せ お気に入り 詳細表示 | |||||||
このお部屋の詳細情報
管理費 25,700円
修繕積立金 10,300円
その他月額費 22,533円
月額合計金額 58,533円
間取り 3LDK(洋7.0 洋5.4 洋4.5 LDK19.1)
現況 空室
引き渡し 募集中
設備 バリアフリー/対面式キッチン/IHクッキングヒーター/バス・トイレ別/追い炊き機能/浴室乾燥機/室内洗濯機/クローゼット/ウォークインクローゼット/エアコン/シューズインクローゼット/ディスポーザー/食洗機/角部屋
売出中 |
売買未入居ペット | 価格 | 階層 | 間取 | 面積 | 向 | お問い合せ |
| 26,900万円 | 41階 | 2LDK | 88.46㎡ | 北西 | |||
| 未入居ペット お問い合せ お気に入り 詳細表示 | |||||||
このお部屋の詳細情報
管理費 26,500円
修繕積立金 10,700円
その他月額費 23,140円
月額合計金額 60,340円
間取り 2LDK(洋9.5 洋7.2 S LDK20.0)
現況 空室
引き渡し 募集中
設備 眺望良好/バリアフリー/対面式キッチン/IHクッキングヒーター/バス・トイレ別/追い炊き機能/浴室乾燥機/室内洗濯機/クローゼット/ウォークインクローゼット/エアコン/シューズインクローゼット/ディスポーザー/食洗機/角部屋/LDK20帖以上
売出中 |
売買未入居ペット | 価格 | 階層 | 間取 | 面積 | 向 | お問い合せ |
| 11,800万円 | 25階 | 3LDK | 68.66㎡ | 東 | |||
| 未入居ペット お問い合せ お気に入り 詳細表示 | |||||||
このお部屋の詳細情報
管理費 20,600円
修繕積立金 8,300円
その他月額費 19,019円
月額合計金額 47,919円
間取り 3LDK(洋6.0 洋4.6 洋4.5 LDK13.4)
現況 空室
引き渡し 募集中
設備 眺望良好/バリアフリー/対面式キッチン/IHクッキングヒーター/バス・トイレ別/追い炊き機能/浴室乾燥機/室内洗濯機/クローゼット/ウォークインクローゼット/エアコン/シューズインクローゼット/ディスポーザー/食洗機
売出中 |
売買未入居ペット | 価格 | 階層 | 間取 | 面積 | 向 | お問い合せ |
| 6,940万円 | 16階 | 1LDK | 45.98㎡ | 北西 | |||
| 未入居ペット お問い合せ お気に入り 詳細表示 | |||||||
このお部屋の詳細情報
管理費 13,800円
修繕積立金 5,600円
その他月額費 14,272円
月額合計金額 33,672円
間取り 1LDK(洋6.0 LDK11.9)
現況 空室
引き渡し 募集中
設備 バリアフリー/対面式キッチン/IHクッキングヒーター/バス・トイレ別/追い炊き機能/浴室乾燥機/室内洗濯機/ウォークインクローゼット/シューズ・ボックス/ディスポーザー/食洗機
| 売買 |
売出中 |
売買未入居ペット | 価格 | 階層 | 間取 | 面積 | 向 | お問い合せ |
| 13,800万円 | 36階 | 3LDK | 75.24㎡ | 東 | |||
| 未入居ペット お問い合せ お気に入り 詳細表示 | |||||||
このお部屋の詳細情報
管理費 22,500円
修繕積立金 9,100円
その他月額費 20,389円
月額合計金額 51,989円
間取り 3LDK(洋6.0 洋5.0 洋5.0 LDK11.1)
現況 空室
引き渡し 募集中
設備 眺望良好/バリアフリー/対面式キッチン/IHクッキングヒーター/バス・トイレ別/追い炊き機能/浴室乾燥機/室内洗濯機/クローゼット/ウォークインクローゼット/エアコン/シューズインクローゼット/ディスポーザー/食洗機
売出中 |
売買未入居ペット | 価格 | 階層 | 間取 | 面積 | 向 | お問い合せ |
| 9,880万円 | 15階 | 2LDK | 62.17㎡ | 北西 | |||
| 未入居ペット お問い合せ お気に入り 詳細表示 | |||||||
このお部屋の詳細情報
管理費 18,600円
修繕積立金 7,500円
その他月額費 17,661円
月額合計金額 43,761円
間取り 2LDK(洋6.0 洋5.0 LDK15.1)
現況 空室
引き渡し 募集中
設備 バリアフリー/対面式キッチン/IHクッキングヒーター/バス・トイレ別/追い炊き機能/浴室乾燥機/室内洗濯機/クローゼット/ウォークインクローゼット/エアコン/シューズインクローゼット/ディスポーザー/食洗機
売出中 |
売買未入居ペット | 価格 | 階層 | 間取 | 面積 | 向 | お問い合せ |
| 9,980万円 | 16階 | 2LDK | 62.17㎡ | 北西 | |||
| 未入居ペット お問い合せ お気に入り 詳細表示 | |||||||
このお部屋の詳細情報
管理費 18,600円
修繕積立金 7,500円
その他月額費 17,661円
月額合計金額 43,761円
間取り 2LDK(洋6.0 洋5.0 LDK15.1)
現況 空室
引き渡し 募集中
設備 バリアフリー/対面式キッチン/IHクッキングヒーター/バス・トイレ別/追い炊き機能/浴室乾燥機/室内洗濯機/クローゼット/ウォークインクローゼット/エアコン/シューズインクローゼット/ディスポーザー/食洗機
| 売買 |
| 売買 |
売出中 |
売買未入居ペット | 価格 | 階層 | 間取 | 面積 | 向 | お問い合せ |
| 12,300万円 | 22階 | 3LDK | 68.66㎡ | 東 | |||
| 未入居ペット お問い合せ お気に入り 詳細表示 | |||||||
このお部屋の詳細情報
管理費 20,600円
修繕積立金 8,300円
その他月額費 19,019円
月額合計金額 47,919円
間取り 3LDK(洋6.0 洋4.6 洋4.5 LDK13.4)
現況 空室
引き渡し 募集中
設備 眺望良好/バリアフリー/対面式キッチン/IHクッキングヒーター/バス・トイレ別/追い炊き機能/浴室乾燥機/室内洗濯機/クローゼット/ウォークインクローゼット/エアコン/シューズインクローゼット/ディスポーザー/食洗機
| 売買 |
| 売買 |
| 売買 |
売出中 |
売買未入居ペット | 価格 | 階層 | 間取 | 面積 | 向 | お問い合せ |
| 15,800万円 | 21階 | 2LDK | 77.58㎡ | 北東 | |||
| 未入居ペット お問い合せ お気に入り 詳細表示 | |||||||
このお部屋の詳細情報
管理費 23,200円
修繕積立金 9,400円
その他月額費 20,835円
月額合計金額 53,435円
間取り 2LDK(洋6.0 洋5.0 LDK22.2)
現況 空室
引き渡し 募集中
設備 花火大会観賞/眺望良好/バリアフリー/対面式キッチン/IHクッキングヒーター/バス・トイレ別/追い炊き機能/浴室乾燥機/室内洗濯機/クローゼット/ウォークインクローゼット/エアコン/シューズインクローゼット/ディスポーザー/食洗機/角部屋/LDK20帖以上
| 売買 |
売出中 |
売買未入居ペット | 価格 | 階層 | 間取 | 面積 | 向 | お問い合せ |
| 17,200万円 | 22階 | 3LDK | 86.71㎡ | 北西 | |||
| 未入居ペット お問い合せ お気に入り 詳細表示 | |||||||
このお部屋の詳細情報
管理費 26,000円
修繕積立金 10,500円
その他月額費 22,816円
月額合計金額 59,316円
間取り 3LDK(洋7.0 洋5.3 洋4.7 LDK21.9)
現況 空室
引き渡し 募集中
設備 眺望良好/バリアフリー/対面式キッチン/IHクッキングヒーター/バス・トイレ別/追い炊き機能/浴室乾燥機/室内洗濯機/クローゼット/ウォークインクローゼット/エアコン/シューズインクローゼット/ディスポーザー/食洗機/角部屋/LDK20帖以上
売出中 |
売買未入居ペット | 価格 | 階層 | 間取 | 面積 | 向 | お問い合せ |
| 17,800万円 | 27階 | 2LDK | 86.71㎡ | 北西 | |||
| 未入居ペット お問い合せ お気に入り 詳細表示 | |||||||
このお部屋の詳細情報
管理費 26,000円
修繕積立金 10,500円
その他月額費 22,816円
月額合計金額 59,316円
間取り 2LDK(洋7.0 洋5.3 LDK26.7)
現況 空室
引き渡し 募集中
設備 眺望良好/バリアフリー/対面式キッチン/IHクッキングヒーター/バス・トイレ別/追い炊き機能/浴室乾燥機/室内洗濯機/クローゼット/ウォークインクローゼット/エアコン/シューズインクローゼット/ディスポーザー/食洗機/角部屋/LDK20帖以上
| 売買 |
売出中 |
売買未入居ペット | 価格 | 階層 | 間取 | 面積 | 向 | お問い合せ |
| 25,500万円 | 41階 | 3LDK | 94.02㎡ | 東 | |||
| 未入居ペット お問い合せ お気に入り 詳細表示 | |||||||
このお部屋の詳細情報
管理費 28,200円
修繕積立金 11,300円
その他月額費 24,260円
月額合計金額 63,760円
間取り 3LDK(洋7.0 洋4.7 洋4.5 LDK20.0)
現況 空室
引き渡し 募集中
設備 眺望良好/バリアフリー/対面式キッチン/IHクッキングヒーター/バス・トイレ別/追い炊き機能/浴室乾燥機/室内洗濯機/クローゼット/ウォークインクローゼット/エアコン/シューズインクローゼット/ディスポーザー/食洗機/LDK20帖以上
売出中 |
売買未入居ペット | 価格 | 階層 | 間取 | 面積 | 向 | お問い合せ |
| 45,000万円 | 45階 | 3LDK | 115.76㎡ | 東 | |||
| 未入居ペット お問い合せ お気に入り 詳細表示 | |||||||
このお部屋の詳細情報
管理費 34,700円
修繕積立金 13,900円
その他月額費 28,768円
月額合計金額 77,368円
間取り 3LDK(洋10.0 洋5.3 洋5.0 S LDK26.7)
現況 空室
引き渡し 募集中
設備 眺望良好/バリアフリー/対面式キッチン/IHクッキングヒーター/バス・トイレ別/追い炊き機能/浴室乾燥機/室内洗濯機/クローゼット/ウォークインクローゼット/エアコン/シューズインクローゼット/ディスポーザー/食洗機/LDK20帖以上
参考売買相場価格
価格 6,940万円~45,000万円(平均価格16,906万円)
平米単価 151万円/㎡~389万円/㎡(平均単価210万円/㎡)
シエリアタワー中之島の掲載中の物件情報を元にした参考情報です
空室・賃貸物件一覧
TODAY
本日更新
NEW
新着(7日以内)
募集中 | 賃貸未入居ペット | 家賃 | 階層 | 間取 | 面積 | 向 | お問い合せ |
| 26万円 | 6階 | 2LDK | 55㎡ | 南西 | |||
| 未入居ペット お問い合せ お気に入り 詳細表示 | |||||||
このお部屋の詳細情報
管理費 35,000円
その他月額費 0円
月額合計金額 295,000円
礼金 590,000円
間取り 2LDK(洋6.0 洋4.8 LDK11.8)
現況 空室
引き渡し 即時
定期借家 5年
設備 バリアフリー/分譲賃貸/対面式キッチン/IHクッキングヒーター/バス・トイレ別/追い炊き機能/浴室乾燥機/室内洗濯機/クローゼット/ウォークインクローゼット/エアコン/シューズインクローゼット/ディスポーザー/食洗機/禁煙
募集中 | 賃貸未入居 | 家賃 | 階層 | 間取 | 面積 | 向 | お問い合せ |
| 45万円 | 22階 | 3LDK | 75.24㎡ | 東 | |||
| 未入居 お問い合せ お気に入り 詳細表示 | |||||||
このお部屋の詳細情報
管理費 0円
その他月額費 2,189円
月額合計金額 452,189円
敷金 1ヶ月
礼金 2ヶ月
間取り 3LDK(洋6.0 洋5.0 洋5.0 LDK11.1)
現況 空室
引き渡し 即時
普通借家
設備 眺望良好/バリアフリー/分譲賃貸/対面式キッチン/IHクッキングヒーター/バス・トイレ別/追い炊き機能/浴室乾燥機/室内洗濯機/クローゼット/ウォークインクローゼット/エアコン/シューズインクローゼット/ディスポーザー/食洗機/禁煙
募集中 | 賃貸未入居 | 家賃 | 階層 | 間取 | 面積 | 向 | お問い合せ |
| 50万円 | 35階 | 3LDK | 75.24㎡ | 東 | |||
| 未入居 お問い合せ お気に入り 詳細表示 | |||||||
このお部屋の詳細情報
管理費 50,000円
その他月額費 0円
月額合計金額 550,000円
敷金 1ヶ月
礼金 2ヶ月
間取り 3LDK(洋6.0 洋5.0 洋5.0 LDK11.1)
現況 空室
引き渡し 即時
定期借家 2年
設備 眺望良好/バリアフリー/分譲賃貸/対面式キッチン/IHクッキングヒーター/バス・トイレ別/追い炊き機能/浴室乾燥機/室内洗濯機/クローゼット/ウォークインクローゼット/エアコン/シューズインクローゼット/ディスポーザー/食洗機
募集中 | 賃貸未入居ペット | 家賃 | 階層 | 間取 | 面積 | 向 | お問い合せ |
| 53万円 | 21階 | 2LDK | 77.58㎡ | 北東 | |||
| 未入居ペット お問い合せ お気に入り 詳細表示 | |||||||
このお部屋の詳細情報
管理費 0円
その他月額費 0円
月額合計金額 530,000円
礼金 2ヶ月
間取り 2LDK(洋6.0 洋5.0 LDK22.2)
現況 空室
引き渡し 即時
定期借家 3年
設備 花火大会観賞/眺望良好/バリアフリー/分譲賃貸/対面式キッチン/IHクッキングヒーター/バス・トイレ別/追い炊き機能/浴室乾燥機/室内洗濯機/クローゼット/ウォークインクローゼット/エアコン/シューズインクローゼット/ディスポーザー/食洗機/角部屋/禁煙/LDK20帖以上
募集中 | 賃貸未入居 | 家賃 | 階層 | 間取 | 面積 | 向 | お問い合せ |
| 25万円 | 9階 | 1LDK | 45.98㎡ | 北西 | |||
| 未入居 お問い合せ お気に入り 詳細表示 | |||||||
このお部屋の詳細情報
管理費 0円
その他月額費 0円
月額合計金額 250,000円
敷金 1ヶ月
礼金 2ヶ月
間取り 1LDK(洋6.0 LDK11.9)
現況 空室
引き渡し 即時
定期借家 3年
設備 バリアフリー/分譲賃貸/対面式キッチン/IHクッキングヒーター/バス・トイレ別/追い炊き機能/浴室乾燥機/室内洗濯機/ウォークインクローゼット/シューズ・ボックス/ディスポーザー/食洗機
募集中 | 賃貸未入居ペット | 家賃 | 階層 | 間取 | 面積 | 向 | お問い合せ |
| 29.5万円 | 17階 | 2LDK | 56.5㎡ | 北西 | |||
| 未入居ペット お問い合せ お気に入り 詳細表示 | |||||||
このお部屋の詳細情報
管理費 0円
その他月額費 0円
月額合計金額 295,000円
敷金 1ヶ月
礼金 1ヶ月
間取り 2LDK(洋6.0 洋4.5 LDK13.3)
現況 空室
引き渡し 即時
定期借家 5年
設備 バリアフリー/分譲賃貸/独立型キッチン/IHクッキングヒーター/バス・トイレ別/追い炊き機能/浴室乾燥機/室内洗濯機/クローゼット/ウォークインクローゼット/エアコン/シューズ・ボックス/ディスポーザー/食洗機/禁煙
募集中 | 賃貸未入居 | 家賃 | 階層 | 間取 | 面積 | 向 | お問い合せ |
| 36万円 | 30階 | 3LDK | 68.66㎡ | 東 | |||
| 未入居 お問い合せ お気に入り 詳細表示 | |||||||
このお部屋の詳細情報
管理費 60,000円
その他月額費 2,189円
月額合計金額 422,189円
敷金 420,000円
礼金 840,000円
間取り 3LDK(洋6.0 洋4.6 洋4.5 LDK13.4)
現況 空室
引き渡し 即時
定期借家 5年
設備 眺望良好/バリアフリー/分譲賃貸/対面式キッチン/IHクッキングヒーター/バス・トイレ別/追い炊き機能/浴室乾燥機/室内洗濯機/クローゼット/ウォークインクローゼット/エアコン/シューズインクローゼット/ディスポーザー/食洗機
募集中 | 賃貸未入居 | 家賃 | 階層 | 間取 | 面積 | 向 | お問い合せ |
| 39.7万円 | 37階 | 2LDK | 68.66㎡ | 東 | |||
| 未入居 お問い合せ お気に入り 詳細表示 | |||||||
このお部屋の詳細情報
管理費 50,000円
その他月額費 0円
月額合計金額 447,000円
礼金 2ヶ月
間取り 2LDK(洋8.0 洋6.1 LDK13.4)
現況 空室
引き渡し 即時
普通借家 2年
設備 眺望良好/バリアフリー/分譲賃貸/対面式キッチン/IHクッキングヒーター/バス・トイレ別/追い炊き機能/浴室乾燥機/室内洗濯機/クローゼット/ウォークインクローゼット/エアコン/シューズインクローゼット/ディスポーザー/食洗機
募集中 | 賃貸未入居 | 家賃 | 階層 | 間取 | 面積 | 向 | お問い合せ |
| 42万円 | 36階 | 3LDK | 75.24㎡ | 東 | |||
| 未入居 お問い合せ お気に入り 詳細表示 | |||||||
このお部屋の詳細情報
管理費 50,000円
その他月額費 0円
月額合計金額 470,000円
礼金 940,000円
間取り 3LDK(洋6.0 洋5.0 洋5.0 LDK11.1)
現況 空室
引き渡し 即時
定期借家 5年
設備 眺望良好/バリアフリー/分譲賃貸/対面式キッチン/IHクッキングヒーター/バス・トイレ別/追い炊き機能/浴室乾燥機/室内洗濯機/クローゼット/ウォークインクローゼット/エアコン/シューズインクローゼット/ディスポーザー/食洗機
募集中 | 賃貸未入居 | 家賃 | 階層 | 間取 | 面積 | 向 | お問い合せ |
| 45万円 | 24階 | 3LDK | 75.24㎡ | 東 | |||
| 未入居 お問い合せ お気に入り 詳細表示 | |||||||
このお部屋の詳細情報
管理費 50,000円
その他月額費 0円
月額合計金額 500,000円
礼金 1,000,000円
間取り 3LDK(洋6.0 洋5.0 洋5.0 LDK11.1)
現況 空室
引き渡し 即時
定期借家 5年
設備 眺望良好/バリアフリー/分譲賃貸/対面式キッチン/IHクッキングヒーター/バス・トイレ別/追い炊き機能/浴室乾燥機/室内洗濯機/クローゼット/ウォークインクローゼット/エアコン/シューズインクローゼット/ディスポーザー/食洗機
募集中 | 賃貸未入居 | 家賃 | 階層 | 間取 | 面積 | 向 | お問い合せ |
| 55万円 | 22階 | 2LDK | 65.19㎡ | 北西 | |||
| 未入居 お問い合せ お気に入り 詳細表示 | |||||||
このお部屋の詳細情報
管理費 0円
その他月額費 2,189円
月額合計金額 552,189円
礼金 2ヶ月
間取り 2LDK(洋6.0 洋5.0 LDK16.8)
現況 空室
引き渡し 即時
普通借家 2年
設備 バリアフリー/分譲賃貸/対面式キッチン/IHクッキングヒーター/バス・トイレ別/追い炊き機能/浴室乾燥機/室内洗濯機/クローゼット/ウォークインクローゼット/エアコン/シューズ・ボックス/ディスポーザー/食洗機/角部屋/禁煙
募集中 | 賃貸未入居 | 家賃 | 階層 | 間取 | 面積 | 向 | お問い合せ |
| 57万円 | 37階 | 2LDK | 77.59㎡ | 西 | |||
| 未入居 お問い合せ お気に入り 詳細表示 | |||||||
このお部屋の詳細情報
管理費 0円
その他月額費 0円
月額合計金額 570,000円
敷金 1ヶ月
礼金 1ヶ月
間取り 2LDK(洋7.2 洋5.0 LDK22.6)
現況 空室
引き渡し 即時
定期借家 5年
設備 眺望良好/バリアフリー/分譲賃貸/対面式キッチン/IHクッキングヒーター/バス・トイレ別/追い炊き機能/浴室乾燥機/室内洗濯機/クローゼット/エアコン/シューズ・ボックス/ディスポーザー/食洗機/角部屋/禁煙/LDK20帖以上
募集中 | 賃貸未入居 | 家賃 | 階層 | 間取 | 面積 | 向 | お問い合せ |
| 60万円 | 26階 | 3LDK | 86.94㎡ | 南西 | |||
| 未入居 お問い合せ お気に入り 詳細表示 | |||||||
このお部屋の詳細情報
管理費 0円
その他月額費 0円
月額合計金額 600,000円
敷金 1ヶ月
礼金 2ヶ月
間取り 3LDK(洋7.0 洋5.0 洋5.0 LDK20.8)
現況 空室
引き渡し 即時
定期借家 5年
設備 オーシャン・リバービュー/眺望良好/バリアフリー/分譲賃貸/対面式キッチン/IHクッキングヒーター/バス・トイレ別/追い炊き機能/浴室乾燥機/室内洗濯機/クローゼット/ウォークインクローゼット/エアコン/シューズインクローゼット/ディスポーザー/食洗機/角部屋/禁煙/LDK20帖以上
募集中 | 賃貸未入居 | 家賃 | 階層 | 間取 | 面積 | 向 | お問い合せ |
| 65万円 | 階 | 2LDK | 86.71㎡ | 北西 | |||
| 未入居 お問い合せ お気に入り 詳細表示 | |||||||
このお部屋の詳細情報
管理費 0円
その他月額費 0円
月額合計金額 650,000円
敷金 1ヶ月
礼金 2ヶ月
間取り 2LDK(洋7.0 洋5.3 LDK26.7)
現況 空室
引き渡し 即時
定期借家 2年
設備 眺望良好/バリアフリー/分譲賃貸/対面式キッチン/IHクッキングヒーター/バス・トイレ別/追い炊き機能/浴室乾燥機/室内洗濯機/クローゼット/ウォークインクローゼット/エアコン/シューズインクローゼット/ディスポーザー/食洗機/角部屋/LDK20帖以上
募集中 | 賃貸未入居 | 家賃 | 階層 | 間取 | 面積 | 向 | お問い合せ |
| 110万円 | 41階 | 3LDK | 100.37㎡ | 南東 | |||
| 未入居 お問い合せ お気に入り 詳細表示 | |||||||
このお部屋の詳細情報
管理費 0円
その他月額費 0円
月額合計金額 1,100,000円
敷金 1ヶ月
礼金 2ヶ月
間取り 3LDK(洋9.0 洋5.0 洋4.7 LDK21.9)
現況 空室
引き渡し 即時
定期借家 3年
設備 オーシャン・リバービュー/眺望良好/バリアフリー/分譲賃貸/対面式キッチン/IHクッキングヒーター/バス・トイレ別/追い炊き機能/浴室乾燥機/室内洗濯機/クローゼット/ウォークインクローゼット/エアコン/シューズインクローゼット/ディスポーザー/食洗機/角部屋/LDK20帖以上
参考賃貸家賃相場
家賃(月額) 250,000円~1,300,000円(平均家賃479,666円)
平米単価 4,636円/㎡~11,216円/㎡(平均単価6,384円/㎡)
シエリアタワー中之島の掲載中の物件情報を元にした参考情報です
このお部屋の短縮URL:https://www.tower.ne.jp/rm/29864/





















































































































