2024年に大林組が施工する地上46階建て総戸数500戸タワーマンション
目次
シエリアタワー大阪堀江の物件写真
借りたい・買いたい
タワーマンションを「借りたい方・買いたい方」、「売却査定・賃料査定」など何でもお気軽にお問い合わせください。
シエリアタワー大阪堀江の概要・物件情報
基本情報
- 所在地
- 📍大阪市西区南堀江3丁目 [地図表示]
- 交通
- 🚉大阪メトロ千日前線 西長堀駅まで徒歩4分
🚉阪神電鉄なんば線 桜川駅まで徒歩3分 - 築年月
- 🎂2024年8月
- 構造等
- 鉄筋コン/地上46階建
- 総戸数
- 500戸
- 管理方式
- 常駐
- 用途地域
- 商業地域
- 建ぺい率
- 48%
- 建ぺい率
- 999%
- 土地権利
- 所有権
- 地勢
- 平坦
- 国土法届出
- 不要
シエリアタワー大阪堀江は著名人や芸能人の方にも安心のおすすめの物件です。
シエリアタワー大阪堀江
「シエリアタワー大阪堀江」に住みたいお客様(購入・賃貸)、住替え等にて売却を検討や賃料条件から部屋付け家賃管理等ご検討の所有者(オーナー様)の方、大阪市内の中古タワーマンション専門のプレミアム不動産へお気軽にご相談ください。
高感度な大人に響くトレンドタウン「堀江」
時代の空気をいち早くキャッチする大阪のトレンドスポット「堀江」。澄んだ感性に応えるセレクトショップやカフェが軒を連ねる高感度な街並みが、暮らしのフィールドになります。
充実の教育環境が整う 「住まうための都心」
日本最大級の蔵書数を誇る市立中央図書館をはじめ、小・中学校などの教育施設が徒歩圏に充実。また、スーパーはもちろん、区役所や郵便局といった公共施設や、瑞々しい自然に包まれる公園も身近に。多世代が心地よく暮らせる「住まうための都心」というべき住環境が広がります。
◆共用施設◆
4階:ワーク&スタディルーム・ゲストルーム
31階:パーティールーム・ビューラウンジ
◆駐車場◆
208台(タワーパーキング:208台、来客用兼EV充電用1台、EV充電用1台あり)
月額/22,000円~29,000円
◆バイク置場◆
バイク 10台
月額/3,000円
ミニバイク 90台
月額/1,000円~2,000円
◆自転車置場◆
1001台
月額/100円~500円
※管理組合に最新空車確認ならびに実際に駐車してご確認ください。
共用設備
- 主要
制震構造 タワー型 オートロック エレベータ 宅配ボックス オール電化 ゲストルーム スカイラウンジ コンシェルジュ パーティールーム
駐車場・駐輪場
この物件のメリット・デメリット
メリット
- 北堀江・南堀江エリア最高層×最大級の大規模タワーレジデンス
デメリット
- 単身よりもファミリーに人気ある地域です
シエリアタワー大阪堀江のよくある質問
借りたい・買いたい
タワーマンションを「借りたい方・買いたい方」、「売却査定・賃料査定」など何でもお気軽にお問い合わせください。
分譲・中古・売り物件一覧
TODAY
本日更新
NEW
新着(7日以内)
売出中 |
売買TODAYペット | 価格 | 階層 | 間取 | 面積 | 向 | お問い合せ |
| 6,480万円 | 11階 | 1LDK | 45.15㎡ | 東 | |||
| ペット お問い合せ お気に入り 詳細表示 | |||||||
このお部屋の詳細情報
管理費 11,100円
修繕積立金 4,600円
その他月額費 2,198円
月額合計金額 17,898円
間取り 1LDK(洋6.2 LDK13.5)
現況 居住中
引き渡し 募集中
設備 バリアフリー/対面式キッチン/IHクッキングヒーター/バス・トイレ別/追い炊き機能/浴室乾燥機/床暖房/室内洗濯機/ウォークインクローゼット/シューズ・ボックス/ディスポーザー/食洗機
売出中 |
売買ペット | 価格 | 階層 | 間取 | 面積 | 向 | お問い合せ |
| 7,980万円 | 14階 | 2LDK | 57.33㎡ | 西 | |||
| ペット お問い合せ お気に入り 詳細表示 | |||||||
このお部屋の詳細情報
管理費 14,000円
修繕積立金 5,800円
その他月額費 2,189円
月額合計金額 21,989円
間取り 2LDK(洋6.0 洋4.0 LDK13.1)
現況 居住中
引き渡し 募集中
設備 バリアフリー/対面式キッチン/IHクッキングヒーター/バス・トイレ別/追い炊き機能/浴室乾燥機/床暖房/室内洗濯機/ウォークインクローゼット/シューズインクローゼット/ディスポーザー/食洗機
売出中 |
売買未入居ペット | 価格 | 階層 | 間取 | 面積 | 向 | お問い合せ |
| 12,900万円 | 35階 | 3LDK | 72.81㎡ | 南 | |||
| 未入居ペット お問い合せ お気に入り 詳細表示 | |||||||
このお部屋の詳細情報
管理費 17,800円
修繕積立金 7,300円
その他月額費 2,189円
月額合計金額 27,289円
間取り 3LDK(洋6.2 洋5.0 洋4.5 LDK15.3)
現況 空室
引き渡し 募集中
設備 眺望良好/バリアフリー/対面式キッチン/IHクッキングヒーター/バス・トイレ別/追い炊き機能/浴室乾燥機/床暖房/室内洗濯機/クローゼット/ウォークインクローゼット/シューズインクローゼット/ディスポーザー/食洗機
売出中 |
売買未入居ペット | 価格 | 階層 | 間取 | 面積 | 向 | お問い合せ |
| 13,500万円 | 25階 | 3LDK | 75.46㎡ | 北東 | |||
| 未入居ペット お問い合せ お気に入り 詳細表示 | |||||||
このお部屋の詳細情報
管理費 18,500円
修繕積立金 7,600円
その他月額費 2,189円
月額合計金額 28,289円
間取り 3LDK(洋6.0 洋4.4 洋4.3 LDK17.5)
現況 空室
引き渡し 募集中
設備 眺望良好/バリアフリー/対面式キッチン/IHクッキングヒーター/バス・トイレ別/追い炊き機能/浴室乾燥機/床暖房/室内洗濯機/クローゼット/エアコン/シューズ・ボックス/2面以上バルコニー/ディスポーザー/食洗機/角部屋/LDK20帖以上
売出中 |
売買ペット | 価格 | 階層 | 間取 | 面積 | 向 | お問い合せ |
| 14,880万円 | 12階 | 3LDK | 80.06㎡ | 南東 | |||
| ペット お問い合せ お気に入り 詳細表示 | |||||||
このお部屋の詳細情報
管理費 19,600円
修繕積立金 8,100円
その他月額費 2,189円
月額合計金額 29,889円
間取り 3LDK(洋6.0 洋5.2 洋5.0 LDK18.0)
現況 居住中
引き渡し 募集中
設備 バリアフリー/対面式キッチン/IHクッキングヒーター/バス・トイレ別/追い炊き機能/浴室乾燥機/床暖房/室内洗濯機/クローゼット/ウォークインクローゼット/シューズインクローゼット/2面以上バルコニー/ディスポーザー/食洗機/角部屋
売出中 |
売買未入居ペット | 価格 | 階層 | 間取 | 面積 | 向 | お問い合せ |
| 19,500万円 | 44階 | 3LDK | 100.26㎡ | 南 | |||
| 未入居ペット お問い合せ お気に入り 詳細表示 | |||||||
このお部屋の詳細情報
管理費 24,500円
修繕積立金 10,100円
その他月額費 2,189円
月額合計金額 36,789円
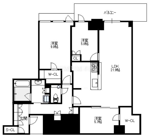
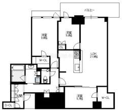
間取り 3LDK(洋9.0 洋5.7 洋5.0 LDK21.9)
現況 空室
引き渡し 募集中
設備 眺望良好/バリアフリー/対面式キッチン/IHクッキングヒーター/バス・トイレ別/追い炊き機能/浴室乾燥機/床暖房/室内洗濯機/クローゼット/ウォークインクローゼット/シューズ・ボックス/ディスポーザー/食洗機/LDK20帖以上
売出中 |
売買ペット | 価格 | 階層 | 間取 | 面積 | 向 | お問い合せ |
| 7,880万円 | 13階 | 2LDK | 55.72㎡ | 東 | |||
| ペット お問い合せ お気に入り 詳細表示 | |||||||
このお部屋の詳細情報
管理費 13,600円
修繕積立金 5,600円
その他月額費 2,189円
月額合計金額 21,389円
間取り 2LDK(洋6.2 洋4.7 LDK13.0)
現況 空室
引き渡し 募集中
設備 バリアフリー/対面式キッチン/IHクッキングヒーター/バス・トイレ別/追い炊き機能/浴室乾燥機/床暖房/室内洗濯機/クローゼット/ウォークインクローゼット/エアコン/シューズ・ボックス/ディスポーザー/食洗機
| 売買 |
売出中 |
売買未入居ペット | 価格 | 階層 | 間取 | 面積 | 向 | お問い合せ |
| 11,800万円 | 5階 | 3LDK | 76.9㎡ | 南西 | |||
| 未入居ペット お問い合せ お気に入り 詳細表示 | |||||||
このお部屋の詳細情報
管理費 18,800円
修繕積立金 7,700円
その他月額費 2,189円
月額合計金額 28,689円
間取り 3LDK(洋6.0 洋5.0 洋5.0 LDK16.8)
現況 空室
引き渡し 募集中
設備 バリアフリー/対面式キッチン/IHクッキングヒーター/バス・トイレ別/追い炊き機能/浴室乾燥機/床暖房/室内洗濯機/クローゼット/ウォークインクローゼット/エアコン/シューズ・ボックス/2面以上バルコニー/ディスポーザー/食洗機/角部屋
売出中 |
売買未入居ペット | 価格 | 階層 | 間取 | 面積 | 向 | お問い合せ |
| 12,500万円 | 30階 | 2LDK | 75.46㎡ | 北東 | |||
| 未入居ペット お問い合せ お気に入り 詳細表示 | |||||||
このお部屋の詳細情報
管理費 18,500円
修繕積立金 7,600円
その他月額費 2,189円
月額合計金額 28,289円
間取り 2LDK(洋6.0 洋4.3 LDK17.7)
現況 空室
引き渡し 募集中
設備 眺望良好/バリアフリー/対面式キッチン/IHクッキングヒーター/バス・トイレ別/追い炊き機能/浴室乾燥機/床暖房/室内洗濯機/クローゼット/シューズ・ボックス/2面以上バルコニー/ディスポーザー/食洗機/角部屋/LDK20帖以上
売出中 |
売買ペット | 価格 | 階層 | 間取 | 面積 | 向 | お問い合せ |
| 13,300万円 | 21階 | 3LDK | 76.9㎡ | 南西 | |||
| ペット お問い合せ お気に入り 詳細表示 | |||||||
このお部屋の詳細情報
管理費 18,800円
修繕積立金 7,700円
その他月額費 2,189円
月額合計金額 28,689円
間取り 3LDK(洋6.0 洋5.0 洋5.0 LDK16.8)
現況 空室
引き渡し 募集中
設備 眺望良好/バリアフリー/対面式キッチン/IHクッキングヒーター/バス・トイレ別/追い炊き機能/浴室乾燥機/床暖房/室内洗濯機/クローゼット/ウォークインクローゼット/エアコン/シューズ・ボックス/2面以上バルコニー/ディスポーザー/食洗機/角部屋
売出中 |
売買未入居ペット | 価格 | 階層 | 間取 | 面積 | 向 | お問い合せ |
| 13,980万円 | 27階 | 3LDK | 78.68㎡ | 南西 | |||
| 未入居ペット お問い合せ お気に入り 詳細表示 | |||||||
このお部屋の詳細情報
管理費 19,200円
修繕積立金 7,900円
その他月額費 2,189円
月額合計金額 29,289円
間取り 3LDK(洋7.0 洋5.1 洋4.5 LDK16.8)
現況 空室
引き渡し 募集中
設備 眺望良好/バリアフリー/対面式キッチン/IHクッキングヒーター/バス・トイレ別/追い炊き機能/浴室乾燥機/床暖房/室内洗濯機/クローゼット/ウォークインクローゼット/シューズインクローゼット/2面以上バルコニー/ディスポーザー/食洗機/角部屋
売出中 |
売買ペット | 価格 | 階層 | 間取 | 面積 | 向 | お問い合せ |
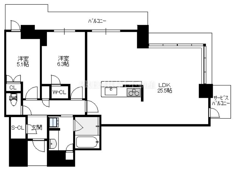
| 14,800万円 | 25階 | 2LDK | 81.23㎡ | 南東 | |||
| ペット お問い合せ お気に入り 詳細表示 | |||||||
このお部屋の詳細情報
管理費 19,900円
修繕積立金 8,200円
その他月額費 2,189円
月額合計金額 30,289円
間取り 2LDK(洋6.3 洋5.1 LDK25.5)
現況 空室
引き渡し 募集中
設備 眺望良好/バリアフリー/対面式キッチン/IHクッキングヒーター/バス・トイレ別/追い炊き機能/浴室乾燥機/床暖房/室内洗濯機/クローゼット/ウォークインクローゼット/シューズインクローゼット/ディスポーザー/食洗機/角部屋/LDK20帖以上
売出中 |
売買ペット | 価格 | 階層 | 間取 | 面積 | 向 | お問い合せ |
| 14,800万円 | 20階 | 2LDK | 80.06㎡ | 南東 | |||
| ペット お問い合せ お気に入り 詳細表示 | |||||||
このお部屋の詳細情報
管理費 19,600円
修繕積立金 8,100円
その他月額費 2,189円
月額合計金額 29,889円
間取り 2LDK(洋6.0 洋5.0 LDK23.6)
現況 空室
引き渡し 募集中
設備 眺望良好/バリアフリー/対面式キッチン/IHクッキングヒーター/バス・トイレ別/追い炊き機能/浴室乾燥機/床暖房/室内洗濯機/クローゼット/ウォークインクローゼット/エアコン/シューズインクローゼット/2面以上バルコニー/ディスポーザー/食洗機/角部屋/LDK20帖以上
売出中 |
売買未入居ペット | 価格 | 階層 | 間取 | 面積 | 向 | お問い合せ |
| 16,500万円 | 40階 | 2LDK | 88.67㎡ | 北西 | |||
| 未入居ペット お問い合せ お気に入り 詳細表示 | |||||||
このお部屋の詳細情報
管理費 21,700円
修繕積立金 8,900円
その他月額費 2,189円
月額合計金額 32,789円
間取り 2LDK(洋8.4 洋5.5 LDK24.3)
現況 空室
引き渡し 募集中
設備 眺望良好/バリアフリー/対面式キッチン/IHクッキングヒーター/バス・トイレ別/追い炊き機能/浴室乾燥機/床暖房/室内洗濯機/クローゼット/ウォークインクローゼット/シューズ・ボックス/2面以上バルコニー/ディスポーザー/食洗機/角部屋/LDK20帖以上
売出中 |
売買ペット | 価格 | 階層 | 間取 | 面積 | 向 | お問い合せ |
| 13,800万円 | 44階 | 3LDK | 73.57㎡ | 西 | |||
| ペット お問い合せ お気に入り 詳細表示 | |||||||
このお部屋の詳細情報
管理費 18,000円
修繕積立金 7,400円
その他月額費 2,189円
月額合計金額 27,589円
間取り 3LDK(洋5.9 洋5.2 洋5.0 LDK14.6)
現況 空室
引き渡し 募集中
設備 眺望良好/バリアフリー/対面式キッチン/IHクッキングヒーター/バス・トイレ別/追い炊き機能/浴室乾燥機/床暖房/室内洗濯機/クローゼット/ウォークインクローゼット/シューズインクローゼット/ディスポーザー/食洗機
売出中 |
売買未入居ペット | 価格 | 階層 | 間取 | 面積 | 向 | お問い合せ |
| 12,800万円 | 26階 | 2LDK | 75.46㎡ | 北東 | |||
| 未入居ペット お問い合せ お気に入り 詳細表示 | |||||||
このお部屋の詳細情報
管理費 18,500円
修繕積立金 7,600円
その他月額費 2,189円
月額合計金額 28,289円
間取り 2LDK(洋6.0 洋4.3 LDK17.7)
現況 空室
引き渡し 募集中
設備 眺望良好/バリアフリー/対面式キッチン/IHクッキングヒーター/バス・トイレ別/追い炊き機能/浴室乾燥機/床暖房/室内洗濯機/クローゼット/シューズ・ボックス/2面以上バルコニー/ディスポーザー/食洗機/角部屋/LDK20帖以上
売出中 |
売買ペット | 価格 | 階層 | 間取 | 面積 | 向 | お問い合せ |
| 9,280万円 | 9階 | 2LDK | 71.99㎡ | 北西 | |||
| ペット お問い合せ お気に入り 詳細表示 | |||||||
このお部屋の詳細情報
管理費 17,600円
修繕積立金 7,200円
その他月額費 2,189円
月額合計金額 26,989円
間取り 2LDK(洋6.1 洋4.9 LDK18.4)
現況 空室
引き渡し 募集中
設備 バリアフリー/対面式キッチン/IHクッキングヒーター/バス・トイレ別/追い炊き機能/浴室乾燥機/床暖房/室内洗濯機/クローゼット/ウォークインクローゼット/シューズ・ボックス/2面以上バルコニー/ディスポーザー/食洗機/角部屋
売出中 |
売買ペット | 価格 | 階層 | 間取 | 面積 | 向 | お問い合せ |
| 8,390万円 | 9階 | 2LDK | 57.05㎡ | 西 | |||
| ペット お問い合せ お気に入り 詳細表示 | |||||||
このお部屋の詳細情報
管理費 14,000円
修繕積立金 5,800円
その他月額費 2,189円
月額合計金額 21,989円
間取り 2LDK(洋5.6 洋4.5 LDK13.1)
現況 空室
引き渡し 募集中
設備 バリアフリー/対面式キッチン/IHクッキングヒーター/バス・トイレ別/追い炊き機能/浴室乾燥機/床暖房/室内洗濯機/ウォークインクローゼット/エアコン/シューズインクローゼット/ディスポーザー/食洗機
売出中 |
売買ペット | 価格 | 階層 | 間取 | 面積 | 向 | お問い合せ |
| 11,000万円 | 27階 | 2LDK | 58.52㎡ | 南 | |||
| ペット お問い合せ お気に入り 詳細表示 | |||||||
このお部屋の詳細情報
管理費 14,300円
修繕積立金 5,900円
その他月額費 2,189円
月額合計金額 22,389円
間取り 2LDK(洋6.0 洋4.5 LDK14.7)
現況 空室
引き渡し 募集中
設備 眺望良好/バリアフリー/対面式キッチン/IHクッキングヒーター/バス・トイレ別/追い炊き機能/浴室乾燥機/床暖房/室内洗濯機/クローゼット/ウォークインクローゼット/シューズインクローゼット/ディスポーザー/食洗機
※間取り反転タイプ
売出中 |
売買未入居ペット | 価格 | 階層 | 間取 | 面積 | 向 | お問い合せ |
| 19,800万円 | 35階 | 3LDK | 87.37㎡ | 南西 | |||
| 未入居ペット お問い合せ お気に入り 詳細表示 | |||||||
このお部屋の詳細情報
管理費 21,400円
修繕積立金 8,800円
その他月額費 2,189円
月額合計金額 32,389円
間取り 3LDK(洋6.8 洋5.6 洋5.0 LDK21.2)
現況 空室
引き渡し 募集中
設備 眺望良好/バリアフリー/対面式キッチン/IHクッキングヒーター/バス・トイレ別/追い炊き機能/浴室乾燥機/床暖房/室内洗濯機/クローゼット/ウォークインクローゼット/エアコン/シューズ・ボックス/ディスポーザー/食洗機/角部屋/LDK20帖以上
売出中 |
売買ペット | 価格 | 階層 | 間取 | 面積 | 向 | お問い合せ |
| 10,800万円 | 22階 | 2LDK | 60.6㎡ | 南 | |||
| ペット お問い合せ お気に入り 詳細表示 | |||||||
このお部屋の詳細情報
管理費 6,200円
修繕積立金 15,000円
その他月額費 2,189円
月額合計金額 23,389円
間取り 2LDK(洋6.0 洋4.8 LDK14.8)
現況 空室
引き渡し 募集中
設備 眺望良好/バリアフリー/対面式キッチン/IHクッキングヒーター/バス・トイレ別/追い炊き機能/浴室乾燥機/床暖房/室内洗濯機/クローゼット/ウォークインクローゼット/シューズ・ボックス/ディスポーザー/食洗機
売出中 |
売買未入居ペット | 価格 | 階層 | 間取 | 面積 | 向 | お問い合せ |
| 12,900万円 | 44階 | 2SLDK | 72.84㎡ | 東 | |||
| 未入居ペット お問い合せ お気に入り 詳細表示 | |||||||
このお部屋の詳細情報
管理費 17,800円
修繕積立金 7,300円
その他月額費 2,189円
月額合計金額 27,289円
間取り 2SLDK(洋6.9 洋5.0 S2.5 LDK16.1)
現況 空室
引き渡し 募集中
設備 眺望良好/バリアフリー/対面式キッチン/IHクッキングヒーター/バス・トイレ別/追い炊き機能/浴室乾燥機/床暖房/室内洗濯機/クローゼット/ウォークインクローゼット/シューズ・ボックス/ディスポーザー/食洗機
売出中 |
売買未入居ペット | 価格 | 階層 | 間取 | 面積 | 向 | お問い合せ |
| 13,800万円 | 31階 | 3LDK | 70.74㎡ | 南 | |||
| 未入居ペット お問い合せ お気に入り 詳細表示 | |||||||
このお部屋の詳細情報
管理費 17,300円
修繕積立金 7,100円
その他月額費 2,189円
月額合計金額 26,589円
間取り 3LDK(洋6.0 洋5.7 洋4.5 LDK14.7)
現況 空室
引き渡し 募集中
設備 眺望良好/バリアフリー/対面式キッチン/IHクッキングヒーター/バス・トイレ別/追い炊き機能/浴室乾燥機/床暖房/室内洗濯機/クローゼット/ウォークインクローゼット/エアコン/シューズインクローゼット/ディスポーザー/食洗機
売出中 |
売買ペット | 価格 | 階層 | 間取 | 面積 | 向 | お問い合せ |
| 12,600万円 | 39階 | 2LDK | 72.81㎡ | 南 | |||
| ペット お問い合せ お気に入り 詳細表示 | |||||||
このお部屋の詳細情報
管理費 17,800円
修繕積立金 7,300円
その他月額費 2,189円
月額合計金額 27,289円
間取り 2LDK(洋5.5 洋5.0 LDK20.8)
現況 居住中
引き渡し 募集中
設備 眺望良好/バリアフリー/対面式キッチン/IHクッキングヒーター/バス・トイレ別/追い炊き機能/浴室乾燥機/床暖房/室内洗濯機/クローゼット/ウォークインクローゼット/シューズインクローゼット/ディスポーザー/食洗機/LDK20帖以上
| 売買 |
| 売買 |
売出中 |
売買未入居ペット | 価格 | 階層 | 間取 | 面積 | 向 | お問い合せ |
| 21,000万円 | 41階 | 3LDK | 100.26㎡ | 南 | |||
| 未入居ペット お問い合せ お気に入り 詳細表示 | |||||||
このお部屋の詳細情報
管理費 24,500円
修繕積立金 10,100円
その他月額費 2,189円
月額合計金額 36,789円
間取り 3LDK(洋9.0 洋5.7 洋5.0 LDK21.9)
現況 空室
引き渡し 募集中
設備 眺望良好/バリアフリー/対面式キッチン/IHクッキングヒーター/バス・トイレ別/追い炊き機能/浴室乾燥機/床暖房/室内洗濯機/クローゼット/ウォークインクローゼット/シューズ・ボックス/ディスポーザー/食洗機/LDK20帖以上
売出中 |
売買未入居ペット | 価格 | 階層 | 間取 | 面積 | 向 | お問い合せ |
| 22,000万円 | 45階 | 2LDK | 91.54㎡ | 北西 | |||
| 未入居ペット お問い合せ お気に入り 詳細表示 | |||||||
このお部屋の詳細情報
管理費 22,400円
修繕積立金 9,200円
その他月額費 2,189円
月額合計金額 33,789円
間取り 2LDK(洋9.1 洋5.1 LDK24.4)
現況 空室
引き渡し 募集中
設備 眺望良好/バリアフリー/対面式キッチン/IHクッキングヒーター/バス・トイレ別/追い炊き機能/浴室乾燥機/床暖房/室内洗濯機/クローゼット/ウォークインクローゼット/エアコン/シューズ・ボックス/2面以上バルコニー/ディスポーザー/食洗機/角部屋/LDK20帖以上
売出中 |
売買ペット | 価格 | 階層 | 間取 | 面積 | 向 | お問い合せ |
| 6,280万円 | 8階 | 1LDK | 45.15㎡ | 東 | |||
| ペット お問い合せ お気に入り 詳細表示 | |||||||
このお部屋の詳細情報
管理費 11,100円
修繕積立金 4,600円
その他月額費 2,198円
月額合計金額 17,898円
間取り 1LDK(洋6.2 LDK13.5)
現況 居住中
引き渡し 募集中
設備 バリアフリー/対面式キッチン/IHクッキングヒーター/バス・トイレ別/追い炊き機能/浴室乾燥機/床暖房/室内洗濯機/ウォークインクローゼット/シューズ・ボックス/ディスポーザー/食洗機
売出中 |
売買未入居ペット | 価格 | 階層 | 間取 | 面積 | 向 | お問い合せ |
| 13,900万円 | 33階 | 3LDK | 76.12㎡ | 南 | |||
| 未入居ペット お問い合せ お気に入り 詳細表示 | |||||||
このお部屋の詳細情報
管理費 18,600円
修繕積立金 7,700円
その他月額費 2,189円
月額合計金額 28,489円
間取り 3LDK(洋6.0 洋5.5 洋5.1 LDK16.0)
現況 空室
引き渡し 募集中
設備 眺望良好/バリアフリー/対面式キッチン/IHクッキングヒーター/バス・トイレ別/追い炊き機能/浴室乾燥機/床暖房/室内洗濯機/クローゼット/ウォークインクローゼット/シューズ・ボックス/ディスポーザー/食洗機
売出中 |
売買未入居ペット | 価格 | 階層 | 間取 | 面積 | 向 | お問い合せ |
| 14,500万円 | 30階 | 3LDK | 78.68㎡ | 南西 | |||
| 未入居ペット お問い合せ お気に入り 詳細表示 | |||||||
このお部屋の詳細情報
管理費 19,200円
修繕積立金 7,900円
その他月額費 2,189円
月額合計金額 29,289円
間取り 3LDK(洋7.0 洋5.1 洋4.5 LDK16.8)
現況 空室
引き渡し 募集中
設備 眺望良好/バリアフリー/対面式キッチン/IHクッキングヒーター/バス・トイレ別/追い炊き機能/浴室乾燥機/床暖房/室内洗濯機/クローゼット/ウォークインクローゼット/シューズインクローゼット/2面以上バルコニー/ディスポーザー/食洗機/角部屋
売出中 |
売買未入居ペット | 価格 | 階層 | 間取 | 面積 | 向 | お問い合せ |
| 9,480万円 | 7階 | 2LDK | 71.99㎡ | 北西 | |||
| 未入居ペット お問い合せ お気に入り 詳細表示 | |||||||
このお部屋の詳細情報
管理費 17,600円
修繕積立金 7,200円
その他月額費 2,189円
月額合計金額 26,989円
間取り 2LDK(洋6.1 洋4.9 LDK18.4)
現況 空室
引き渡し 募集中
設備 バリアフリー/対面式キッチン/IHクッキングヒーター/バス・トイレ別/追い炊き機能/浴室乾燥機/床暖房/室内洗濯機/クローゼット/ウォークインクローゼット/シューズ・ボックス/2面以上バルコニー/ディスポーザー/食洗機/角部屋
売出中 |
売買ペット | 価格 | 階層 | 間取 | 面積 | 向 | お問い合せ |
| 12,480万円 | 27階 | 3LDK | 75.46㎡ | 北東 | |||
| ペット お問い合せ お気に入り 詳細表示 | |||||||
このお部屋の詳細情報
管理費 18,500円
修繕積立金 7,600円
その他月額費 2,189円
月額合計金額 28,289円
間取り 3LDK(洋6.0 洋4.4 洋4.3 LDK17.5)
現況 空室
引き渡し 募集中
設備 眺望良好/バリアフリー/対面式キッチン/IHクッキングヒーター/バス・トイレ別/追い炊き機能/浴室乾燥機/床暖房/室内洗濯機/クローゼット/エアコン/シューズ・ボックス/2面以上バルコニー/ディスポーザー/食洗機/角部屋/LDK20帖以上
売出中 |
売買ペット | 価格 | 階層 | 間取 | 面積 | 向 | お問い合せ |
| 9,380万円 | 32階 | 2LDK | 59.07㎡ | 東 | |||
| ペット お問い合せ お気に入り 詳細表示 | |||||||
このお部屋の詳細情報
管理費 14,500円
修繕積立金 6,000円
その他月額費 2,189円
月額合計金額 22,689円
間取り 2LDK(洋6.2 洋4.5 LDK15.6)
現況 居住中
引き渡し 募集中
設備 眺望良好/バリアフリー/対面式キッチン/IHクッキングヒーター/バス・トイレ別/追い炊き機能/浴室乾燥機/床暖房/室内洗濯機/クローゼット/ウォークインクローゼット/エアコン/シューズ・ボックス/ディスポーザー/食洗機
売出中 |
売買ペット | 価格 | 階層 | 間取 | 面積 | 向 | お問い合せ |
| 10,990万円 | 5階 | 3LDK | 76.9㎡ | 南西 | |||
| ペット お問い合せ お気に入り 詳細表示 | |||||||
このお部屋の詳細情報
管理費 18,800円
修繕積立金 7,700円
その他月額費 2,189円
月額合計金額 28,689円
間取り 3LDK(洋6.0 洋5.0 洋5.0 LDK16.8)
現況 空室
引き渡し 募集中
設備 バリアフリー/対面式キッチン/IHクッキングヒーター/バス・トイレ別/追い炊き機能/浴室乾燥機/床暖房/室内洗濯機/クローゼット/ウォークインクローゼット/エアコン/シューズ・ボックス/2面以上バルコニー/ディスポーザー/食洗機/角部屋
売出中 |
売買未入居ペット | 価格 | 階層 | 間取 | 面積 | 向 | お問い合せ |
| 16,500万円 | 34階 | 3LDK | 86.1㎡ | 北東 | |||
| 未入居ペット お問い合せ お気に入り 詳細表示 | |||||||
このお部屋の詳細情報
管理費 21,700円
修繕積立金 8,900円
その他月額費 2,189円
月額合計金額 32,789円
間取り 3LDK(洋7.7 洋5.1 洋5.0 LDK16.7)
現況 空室
引き渡し 募集中
設備 眺望良好/バリアフリー/対面式キッチン/IHクッキングヒーター/バス・トイレ別/追い炊き機能/浴室乾燥機/床暖房/室内洗濯機/クローゼット/ウォークインクローゼット/エアコン/シューズ・ボックス/2面以上バルコニー/ディスポーザー/食洗機/角部屋
売出中 |
売買未入居ペット | 価格 | 階層 | 間取 | 面積 | 向 | お問い合せ |
| 7,980万円 | 6階 | 2LDK | 57.01㎡ | 西 | |||
| 未入居ペット お問い合せ お気に入り 詳細表示 | |||||||
このお部屋の詳細情報
管理費 14,000円
修繕積立金 5,800円
その他月額費 2,189円
月額合計金額 21,989円
間取り 2LDK(洋6.1 洋4.4 LDK14.4)
現況 空室
引き渡し 募集中
設備 バリアフリー/独立型キッチン/IHクッキングヒーター/バス・トイレ別/追い炊き機能/浴室乾燥機/床暖房/室内洗濯機/クローゼット/ウォークインクローゼット/エアコン/シューズ・ボックス/ディスポーザー/食洗機
売出中 |
売買未入居ペット | 価格 | 階層 | 間取 | 面積 | 向 | お問い合せ |
| 10,890万円 | 27階 | 1LDK | 61.66㎡ | 東 | |||
| 未入居ペット お問い合せ お気に入り 詳細表示 | |||||||
このお部屋の詳細情報
管理費 15,100円
修繕積立金 6,200円
その他月額費 2,189円
月額合計金額 23,489円
間取り 1LDK(洋6.3 LDK19.2)
現況 空室
引き渡し 募集中
設備 眺望良好/バリアフリー/対面式キッチン/IHクッキングヒーター/バス・トイレ別/追い炊き機能/浴室乾燥機/床暖房/室内洗濯機/ウォークインクローゼット/エアコン/シューズ・ボックス/ディスポーザー/食洗機
売出中 |
売買未入居ペット | 価格 | 階層 | 間取 | 面積 | 向 | お問い合せ |
| 11,480万円 | 33階 | 3LDK | 72.81㎡ | 南 | |||
| 未入居ペット お問い合せ お気に入り 詳細表示 | |||||||
このお部屋の詳細情報
管理費 17,800円
修繕積立金 7,300円
その他月額費 2,189円
月額合計金額 27,289円
間取り 3LDK(洋6.2 洋5.0 洋4.5 LDK15.3)
現況 空室
引き渡し 募集中
設備 眺望良好/バリアフリー/対面式キッチン/IHクッキングヒーター/バス・トイレ別/追い炊き機能/浴室乾燥機/床暖房/室内洗濯機/クローゼット/ウォークインクローゼット/シューズインクローゼット/ディスポーザー/食洗機
売出中 |
売買未入居ペット | 価格 | 階層 | 間取 | 面積 | 向 | お問い合せ |
| 13,800万円 | 42階 | 2SLDK | 72.84㎡ | 東 | |||
| 未入居ペット お問い合せ お気に入り 詳細表示 | |||||||
このお部屋の詳細情報
管理費 17,800円
修繕積立金 7,300円
その他月額費 2,189円
月額合計金額 27,289円
間取り 2SLDK(洋6.9 洋5.0 S2.5 LDK16.1)
現況 空室
引き渡し 募集中
設備 眺望良好/バリアフリー/対面式キッチン/IHクッキングヒーター/バス・トイレ別/追い炊き機能/浴室乾燥機/床暖房/室内洗濯機/クローゼット/ウォークインクローゼット/シューズ・ボックス/ディスポーザー/食洗機
売出中 |
売買ペット | 価格 | 階層 | 間取 | 面積 | 向 | お問い合せ |
| 13,980万円 | 43階 | 2SLDK | 72.84㎡ | 東 | |||
| ペット お問い合せ お気に入り 詳細表示 | |||||||
このお部屋の詳細情報
管理費 17,800円
修繕積立金 7,300円
その他月額費 2,189円
月額合計金額 27,289円
間取り 2SLDK(洋6.9 洋5.0 S2.5 LDK16.1)
現況 空室
引き渡し 募集中
設備 眺望良好/バリアフリー/対面式キッチン/IHクッキングヒーター/バス・トイレ別/追い炊き機能/浴室乾燥機/床暖房/室内洗濯機/クローゼット/ウォークインクローゼット/シューズ・ボックス/ディスポーザー/食洗機
| 売買 |
売出中 |
売買未入居ペット | 価格 | 階層 | 間取 | 面積 | 向 | お問い合せ |
| 18,000万円 | 40階 | 2LDK | 86.1㎡ | 北東 | |||
| 未入居ペット お問い合せ お気に入り 詳細表示 | |||||||
このお部屋の詳細情報
管理費 22,000円
修繕積立金 8,700円
その他月額費 2,189円
月額合計金額 32,889円
間取り 2LDK(洋7.7 洋5.1 LDK21.7)
現況 空室
引き渡し 募集中
設備 眺望良好/バリアフリー/対面式キッチン/IHクッキングヒーター/バス・トイレ別/追い炊き機能/浴室乾燥機/床暖房/室内洗濯機/クローゼット/ウォークインクローゼット/シューズ・ボックス/2面以上バルコニー/ディスポーザー/食洗機/角部屋/LDK20帖以上
売出中 |
売買ペット | 価格 | 階層 | 間取 | 面積 | 向 | お問い合せ |
| 21,000万円 | 40階 | 3LDK | 87.37㎡ | 南西 | |||
| ペット お問い合せ お気に入り 詳細表示 | |||||||
このお部屋の詳細情報
管理費 21,400円
修繕積立金 8,800円
その他月額費 2,189円
月額合計金額 32,389円
間取り 3LDK(洋6.8 洋5.6 洋5.0 LDK21.2)
現況 居住中
引き渡し 募集中
設備 眺望良好/バリアフリー/対面式キッチン/IHクッキングヒーター/バス・トイレ別/追い炊き機能/浴室乾燥機/床暖房/室内洗濯機/クローゼット/ウォークインクローゼット/エアコン/シューズ・ボックス/ディスポーザー/食洗機/角部屋/LDK20帖以上
売出中 |
売買ペット | 価格 | 階層 | 間取 | 面積 | 向 | お問い合せ |
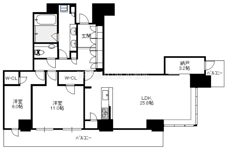
| 30,000万円 | 42階 | 2SLDK | 109.39㎡ | 南東 | |||
| ペット お問い合せ お気に入り 詳細表示 | |||||||
このお部屋の詳細情報
管理費 26,700円
修繕積立金 11,000円
その他月額費 2,189円
月額合計金額 39,889円
間取り 2SLDK(洋11.0 洋6.0 S3.2 LDK25.8)
現況 空室
引き渡し 募集中
設備 眺望良好/バリアフリー/対面式キッチン/IHクッキングヒーター/バス・トイレ別/追い炊き機能/浴室乾燥機/床暖房/室内洗濯機/ウォークインクローゼット/エアコン/シューズ・ボックス/2面以上バルコニー/ディスポーザー/食洗機/角部屋/LDK20帖以上
売出中 |
オーナーチェンジ | 価格 | 階層 | 間取 | 面積 | 向 | お問い合せ |
| 12,800万円 利回り % | 36階 | 2LDK | 61.1㎡ | 南 | |||
| お問い合せ お気に入り 詳細表示 | |||||||
このお部屋の詳細情報
管理費 15,000円
修繕積立金 6,200円
その他月額費 2,189円
月額合計金額 23,389円
間取り 2LDK(洋6.0 洋4.7 LDK14.6)
現況 賃貸中
引き渡し 募集中
設備 眺望良好/バリアフリー/対面式キッチン/IHクッキングヒーター/バス・トイレ別/追い炊き機能/浴室乾燥機/床暖房/室内洗濯機/ウォークインクローゼット/シューズ・ボックス/ディスポーザー/食洗機
| オーナーチェンジ |
売出中 |
オーナーチェンジ | 価格 | 階層 | 間取 | 面積 | 向 | お問い合せ |
| 11,280万円 利回り 2.65% | 40階 | 2LDK | 61.1㎡ | 南 | |||
| お問い合せ お気に入り 詳細表示 | |||||||
このお部屋の詳細情報
管理費 15,000円
修繕積立金 6,200円
その他月額費 2,189円
月額合計金額 23,389円
間取り 2LDK(洋6.0 洋4.7 LDK14.6)
現況 賃貸中
引き渡し 募集中
設備 眺望良好/バリアフリー/対面式キッチン/IHクッキングヒーター/バス・トイレ別/追い炊き機能/浴室乾燥機/床暖房/室内洗濯機/ウォークインクローゼット/シューズ・ボックス/ディスポーザー/食洗機
現行利回り 2.65%
売出中 |
オーナーチェンジ | 価格 | 階層 | 間取 | 面積 | 向 | お問い合せ |
| 8,700万円 利回り 4% | 19階 | 2LDK | 57.05㎡ | 西 | |||
| お問い合せ お気に入り 詳細表示 | |||||||
このお部屋の詳細情報
管理費 14,000円
修繕積立金 5,800円
その他月額費 2,189円
月額合計金額 21,989円
間取り 2LDK(洋5.6 洋4.5 LDK13.1)
現況 賃貸中
引き渡し 募集中
設備 バリアフリー/対面式キッチン/IHクッキングヒーター/バス・トイレ別/追い炊き機能/浴室乾燥機/床暖房/室内洗濯機/ウォークインクローゼット/エアコン/シューズインクローゼット/ディスポーザー/食洗機
現行利回り 4%
| オーナーチェンジ |
売出中 |
オーナーチェンジ | 価格 | 階層 | 間取 | 面積 | 向 | お問い合せ |
| 12,500万円 利回り 2.78% | 18階 | 3LDK | 76.9㎡ | 南西 | |||
| お問い合せ お気に入り 詳細表示 | |||||||
このお部屋の詳細情報
管理費 18,800円
修繕積立金 7,700円
その他月額費 2,189円
月額合計金額 28,689円
間取り 3LDK(洋6.0 洋5.0 洋5.0 LDK16.8)
現況 賃貸中
引き渡し 募集中
設備 バリアフリー/対面式キッチン/IHクッキングヒーター/バス・トイレ別/追い炊き機能/浴室乾燥機/床暖房/室内洗濯機/クローゼット/ウォークインクローゼット/エアコン/シューズ・ボックス/2面以上バルコニー/ディスポーザー/食洗機/角部屋
現行利回り 2.78%
| オーナーチェンジ |
売出中 |
オーナーチェンジ | 価格 | 階層 | 間取 | 面積 | 向 | お問い合せ |
| 10,130万円 利回り 3.79% | 21階 | 2SLDK | 66.63㎡ | 北東 | |||
| お問い合せ お気に入り 詳細表示 | |||||||
このお部屋の詳細情報
管理費 16,300円
修繕積立金 6,700円
その他月額費 2,189円
月額合計金額 25,189円
間取り 2SLDK(洋6.0 洋4.8 S1.5 LDK15.1)
現況 賃貸中
引き渡し 募集中
設備 眺望良好/バリアフリー/対面式キッチン/IHクッキングヒーター/バス・トイレ別/追い炊き機能/浴室乾燥機/床暖房/室内洗濯機/クローゼット/エアコン/シューズ・ボックス/ディスポーザー/食洗機/角部屋
現行利回り 3.79%
売出中 |
オーナーチェンジ | 価格 | 階層 | 間取 | 面積 | 向 | お問い合せ |
| 10,180万円 利回り 3.3% | 19階 | 2LDK | 62.14㎡ | 南 | |||
| お問い合せ お気に入り 詳細表示 | |||||||
このお部屋の詳細情報
管理費 15,200円
修繕積立金 6,300円
その他月額費 2,189円
月額合計金額 23,689円
間取り 2LDK(洋5.5 洋4.9 LDK17.4)
現況 空室
引き渡し 募集中
設備 バリアフリー/対面式キッチン/IHクッキングヒーター/バス・トイレ別/追い炊き機能/浴室乾燥機/床暖房/室内洗濯機/クローゼット/ウォークインクローゼット/シューズ・ボックス/ディスポーザー/食洗機
現行利回り 3.3%
売出中 |
オーナーチェンジ | 価格 | 階層 | 間取 | 面積 | 向 | お問い合せ |
| 12,800万円 利回り 2.81% | 16階 | 2LDK | 71.99㎡ | 北西 | |||
| お問い合せ お気に入り 詳細表示 | |||||||
このお部屋の詳細情報
管理費 17,600円
修繕積立金 7,200円
その他月額費 2,189円
月額合計金額 26,989円
間取り 2LDK(洋6.1 洋4.9 LDK18.4)
現況 賃貸中
引き渡し 募集中
設備 バリアフリー/対面式キッチン/IHクッキングヒーター/バス・トイレ別/追い炊き機能/浴室乾燥機/床暖房/室内洗濯機/クローゼット/ウォークインクローゼット/シューズ・ボックス/2面以上バルコニー/ディスポーザー/食洗機/角部屋
現行利回り 2.81%
売出中 |
オーナーチェンジ | 価格 | 階層 | 間取 | 面積 | 向 | お問い合せ |
| 12,980万円 利回り 3.7% | 43階 | 3LDK | 73.57㎡ | 西 | |||
| お問い合せ お気に入り 詳細表示 | |||||||
このお部屋の詳細情報
管理費 18,000円
修繕積立金 7,400円
その他月額費 2,189円
月額合計金額 27,589円
間取り 3LDK(洋5.9 洋5.2 洋5.0 LDK14.6)
現況 賃貸中
引き渡し 募集中
設備 眺望良好/バリアフリー/対面式キッチン/IHクッキングヒーター/バス・トイレ別/追い炊き機能/浴室乾燥機/床暖房/室内洗濯機/クローゼット/ウォークインクローゼット/シューズインクローゼット/ディスポーザー/食洗機
現行利回り 3.7%
売出中 |
オーナーチェンジ | 価格 | 階層 | 間取 | 面積 | 向 | お問い合せ |
| 19,800万円 利回り 3.15% | 46階 最上階 |
2LDK | 81.53㎡ | 西 | |||
| お問い合せ お気に入り 詳細表示 | |||||||
このお部屋の詳細情報
管理費 19,900円
修繕積立金 8,200円
その他月額費 2,189円
月額合計金額 30,289円
間取り 2LDK(洋6.5 洋5.2 LDK22.3)
現況 空室
引き渡し 募集中
設備 眺望良好/バリアフリー/対面式キッチン/IHクッキングヒーター/バス・トイレ別/追い炊き機能/浴室乾燥機/床暖房/室内洗濯機/ウォークインクローゼット/シューズ・ボックス/ディスポーザー/食洗機/LDK20帖以上
現行利回り 3.15%
売出中 |
オーナーチェンジ | 価格 | 階層 | 間取 | 面積 | 向 | お問い合せ |
| 28,050万円 利回り 2.57% | 46階 最上階 |
3LDK | 101.48㎡ | 北東 | |||
| お問い合せ お気に入り 詳細表示 | |||||||
このお部屋の詳細情報
管理費 24,800円
修繕積立金 10,200円
その他月額費 2,189円
月額合計金額 37,189円
間取り 3LDK(洋7.6 洋7.2 洋6.7 LDK19.6)
現況 賃貸中
引き渡し 募集中
設備 眺望良好/バリアフリー/対面式キッチン/IHクッキングヒーター/バス・トイレ別/追い炊き機能/浴室乾燥機/床暖房/室内洗濯機/ウォークインクローゼット/エアコン/シューズインクローゼット/2面以上バルコニー/ディスポーザー/食洗機/角部屋
現行利回り 2.57%
参考売買相場価格
価格 6,280万円~30,000万円(平均価格13,450万円)
平米単価 129万円/㎡~276万円/㎡(平均単価178万円/㎡)
シエリアタワー大阪堀江の掲載中の物件情報を元にした参考情報です
お手軽簡単売却価格査定
プレミアム不動産のAI売却価格査定では約20秒程度の入力で瞬時にご指定のタワーマンションの売却価格相場を調べることが出来ます。登録や個人情報の入力も不要ですので個人情報やしつこい営業の心配もなく安心してお使い頂けます。
空室・賃貸物件一覧
TODAY
本日更新
NEW
新着(7日以内)
募集中 | 賃貸 | 家賃 | 階層 | 間取 | 面積 | 向 | お問い合せ |
| 21万円 | 20階 | 1LDK | 44.11㎡ | 東 | |||
| お問い合せ お気に入り 詳細表示 | |||||||
このお部屋の詳細情報
管理費 25,000円
その他月額費 0円
月額合計金額 235,000円
礼金 1ヶ月
間取り 1LDK(洋5.0 LDK12.8)
現況 空室
引き渡し 即時
普通借家 2年
設備 眺望良好/バリアフリー/分譲賃貸/対面式キッチン/IHクッキングヒーター/バス・トイレ別/追い炊き機能/浴室乾燥機/床暖房/室内洗濯機/ウォークインクローゼット/エアコン/シューズ・ボックス/ディスポーザー/食洗機
募集中 | 賃貸ペット | 家賃 | 階層 | 間取 | 面積 | 向 | お問い合せ |
| 22.5万円 | 5階 | 2LDK | 55.72㎡ | 東 | |||
| ペット お問い合せ お気に入り 詳細表示 | |||||||
このお部屋の詳細情報
管理費 35,000円
その他月額費 0円
月額合計金額 260,000円
礼金 520,000円
間取り 2LDK(洋6.2 洋4.7 LDK13.0)
現況 空室
引き渡し 相談
普通借家 2年
設備 バリアフリー/分譲賃貸/対面式キッチン/IHクッキングヒーター/バス・トイレ別/追い炊き機能/浴室乾燥機/室内洗濯機/クローゼット/ウォークインクローゼット/シューズ・ボックス/ディスポーザー/食洗機/禁煙
募集中 | 賃貸ペット | 家賃 | 階層 | 間取 | 面積 | 向 | お問い合せ |
| 24万円 | 22階 | 2LDK | 60.6㎡ | 南 | |||
| ペット お問い合せ お気に入り 詳細表示 | |||||||
このお部屋の詳細情報
管理費 30,000円
その他月額費 0円
月額合計金額 270,000円
敷金 1ヶ月
礼金 2ヶ月
間取り 2LDK(洋6.0 洋4.8 LDK14.8)
現況 空室
引き渡し 相談
普通借家 2年
設備 眺望良好/バリアフリー/分譲賃貸/対面式キッチン/IHクッキングヒーター/バス・トイレ別/追い炊き機能/浴室乾燥機/床暖房/室内洗濯機/クローゼット/ウォークインクローゼット/シューズ・ボックス/ディスポーザー/食洗機
募集中 | 賃貸未入居 | 家賃 | 階層 | 間取 | 面積 | 向 | お問い合せ |
| 24.8万円 | 25階 | 2LDK | 56.73㎡ | 西 | |||
| 未入居 お問い合せ お気に入り 詳細表示 | |||||||
このお部屋の詳細情報
管理費 20,000円
その他月額費 0円
月額合計金額 268,000円
礼金 2ヶ月
間取り 2LDK(洋5.5 洋4.5 LDK14.2)
現況 空室
引き渡し 即時
定期借家 5年
設備 眺望良好/バリアフリー/分譲賃貸/対面式キッチン/IHクッキングヒーター/バス・トイレ別/追い炊き機能/浴室乾燥機/床暖房/室内洗濯機/クローゼット/ウォークインクローゼット/エアコン/シューズインクローゼット/ディスポーザー/食洗機
募集中 | 賃貸未入居 | 家賃 | 階層 | 間取 | 面積 | 向 | お問い合せ |
| 25万円 | 9階 | 2LDK | 57.01㎡ | 西 | |||
| 未入居 お問い合せ お気に入り 詳細表示 | |||||||
このお部屋の詳細情報
管理費 20,000円
その他月額費 0円
月額合計金額 270,000円
敷金 1ヶ月
礼金 2ヶ月
間取り 2LDK(洋6.1 洋4.4 LDK14.4)
現況 空室
引き渡し 即時
普通借家 2年
設備 バリアフリー/分譲賃貸/独立型キッチン/IHクッキングヒーター/バス・トイレ別/追い炊き機能/浴室乾燥機/床暖房/室内洗濯機/クローゼット/ウォークインクローゼット/エアコン/シューズ・ボックス/ディスポーザー/食洗機
募集中 | 賃貸未入居 | 家賃 | 階層 | 間取 | 面積 | 向 | お問い合せ |
| 25万円 | 27階 | 2LDK | 58.52㎡ | 南 | |||
| 未入居 お問い合せ お気に入り 詳細表示 | |||||||
このお部屋の詳細情報
管理費 25,000円
その他月額費 0円
月額合計金額 275,000円
敷金 1ヶ月
礼金 2ヶ月
間取り 2LDK(洋6.0 洋4.5 LDK14.7)
現況 空室
引き渡し 即時
定期借家 2年
設備 眺望良好/バリアフリー/分譲賃貸/対面式キッチン/IHクッキングヒーター/バス・トイレ別/追い炊き機能/浴室乾燥機/床暖房/室内洗濯機/クローゼット/ウォークインクローゼット/シューズインクローゼット/ディスポーザー/食洗機
募集中 | 賃貸未入居 | 家賃 | 階層 | 間取 | 面積 | 向 | お問い合せ |
| 25万円 | 29階 | 2LDK | 58.52㎡ | 南 | |||
| 未入居 お問い合せ お気に入り 詳細表示 | |||||||
このお部屋の詳細情報
管理費 25,000円
その他月額費 0円
月額合計金額 275,000円
敷金 1ヶ月
礼金 1ヶ月
間取り 2LDK(洋6.0 洋4.5 LDK14.7)
現況 空室
引き渡し 即時
定期借家 2年
設備 眺望良好/バリアフリー/分譲賃貸/対面式キッチン/IHクッキングヒーター/バス・トイレ別/追い炊き機能/浴室乾燥機/床暖房/室内洗濯機/クローゼット/ウォークインクローゼット/エアコン/シューズインクローゼット/ディスポーザー/食洗機
募集中 | 賃貸 | 家賃 | 階層 | 間取 | 面積 | 向 | お問い合せ |
| 26万円 | 13階 | 2LDK | 55.72㎡ | 東 | |||
| お問い合せ お気に入り 詳細表示 | |||||||
このお部屋の詳細情報
管理費 10,000円
その他月額費 0円
月額合計金額 270,000円
敷金 1ヶ月
礼金 2ヶ月
間取り 2LDK(洋6.2 洋4.7 LDK13.0)
現況 空室
引き渡し 即時
普通借家 2年
設備 バリアフリー/分譲賃貸/対面式キッチン/IHクッキングヒーター/バス・トイレ別/追い炊き機能/浴室乾燥機/床暖房/室内洗濯機/クローゼット/ウォークインクローゼット/エアコン/シューズ・ボックス/ディスポーザー/食洗機
募集中 | 賃貸 | 家賃 | 階層 | 間取 | 面積 | 向 | お問い合せ |
| 26万円 | 28階 | 2LDK | 57.01㎡ | 西 | |||
| お問い合せ お気に入り 詳細表示 | |||||||
このお部屋の詳細情報
管理費 30,000円
その他月額費 0円
月額合計金額 290,000円
礼金 2ヶ月
間取り 2LDK(洋6.1 洋4.4 LDK14.4)
現況 空室
引き渡し 相談
普通借家 1年
設備 眺望良好/バリアフリー/分譲賃貸/独立型キッチン/IHクッキングヒーター/バス・トイレ別/追い炊き機能/浴室乾燥機/床暖房/室内洗濯機/クローゼット/ウォークインクローゼット/エアコン/シューズ・ボックス/ディスポーザー/食洗機/禁煙
募集中 | 賃貸 | 家賃 | 階層 | 間取 | 面積 | 向 | お問い合せ |
| 26.5万円 | 13階 | 2LDK | 57.05㎡ | 南 | |||
| お問い合せ お気に入り 詳細表示 | |||||||
このお部屋の詳細情報
管理費 35,000円
その他月額費 0円
月額合計金額 300,000円
礼金 300,000円
間取り 2LDK(洋5.6 洋4.5 LDK14.3)
現況 空室
引き渡し 即時
普通借家 2年
設備 バリアフリー/分譲賃貸/対面式キッチン/IHクッキングヒーター/バス・トイレ別/追い炊き機能/浴室乾燥機/床暖房/室内洗濯機/クローゼット/ウォークインクローゼット/エアコン/シューズインクローゼット/ディスポーザー/食洗機
募集中 | 賃貸未入居 | 家賃 | 階層 | 間取 | 面積 | 向 | お問い合せ |
| 29万円 | 34階 | 2LDK | 63.88㎡ | 西 | |||
| 未入居 お問い合せ お気に入り 詳細表示 | |||||||
このお部屋の詳細情報
管理費 30,000円
その他月額費 0円
月額合計金額 320,000円
敷金 320,000円
礼金 640,000円
間取り 2LDK(洋6.0 洋4.5 LDK14.8)
現況 空室
引き渡し 即時
普通借家 2年
設備 眺望良好/バリアフリー/分譲賃貸/対面式キッチン/IHクッキングヒーター/バス・トイレ別/追い炊き機能/浴室乾燥機/床暖房/室内洗濯機/クローゼット/ウォークインクローゼット/シューズ・ボックス/ディスポーザー/食洗機/禁煙
募集中 | 賃貸ペット | 家賃 | 階層 | 間取 | 面積 | 向 | お問い合せ |
| 29.5万円 | 7階 | 2LDK | 71.99㎡ | 北西 | |||
| ペット お問い合せ お気に入り 詳細表示 | |||||||
このお部屋の詳細情報
管理費 35,000円
その他月額費 0円
月額合計金額 330,000円
礼金 660,000円
間取り 2LDK(洋6.1 洋4.9 LDK18.4)
現況 空室
引き渡し 即時
普通借家 2年
設備 バリアフリー/分譲賃貸/対面式キッチン/IHクッキングヒーター/バス・トイレ別/追い炊き機能/浴室乾燥機/床暖房/室内洗濯機/クローゼット/ウォークインクローゼット/シューズ・ボックス/ディスポーザー/食洗機/角部屋/禁煙
募集中 | 賃貸 | 家賃 | 階層 | 間取 | 面積 | 向 | お問い合せ |
| 31万円 | 5階 | 3LDK | 76.9㎡ | 南西 | |||
| お問い合せ お気に入り 詳細表示 | |||||||
このお部屋の詳細情報
管理費 30,000円
その他月額費 0円
月額合計金額 340,000円
敷金 1ヶ月
礼金 2ヶ月
間取り 3LDK(洋6.0 洋5.0 洋5.0 LDK16.8)
現況 空室
引き渡し 即時
普通借家 2年
設備 バリアフリー/分譲賃貸/対面式キッチン/IHクッキングヒーター/バス・トイレ別/追い炊き機能/浴室乾燥機/床暖房/室内洗濯機/クローゼット/ウォークインクローゼット/エアコン/シューズインクローゼット/2面以上バルコニー/ディスポーザー/食洗機/角部屋
募集中 | 賃貸 | 家賃 | 階層 | 間取 | 面積 | 向 | お問い合せ |
| 31万円 | 36階 | 2LDK | 59.07㎡ | 東 | |||
| お問い合せ お気に入り 詳細表示 | |||||||
このお部屋の詳細情報
管理費 30,000円
その他月額費 0円
月額合計金額 340,000円
礼金 680,000円
間取り 2LDK(洋6.2 洋4.5 LDK15.6)
現況 空室
引き渡し 相談
普通借家 2年
設備 眺望良好/バリアフリー/分譲賃貸/対面式キッチン/IHクッキングヒーター/バス・トイレ別/追い炊き機能/浴室乾燥機/床暖房/室内洗濯機/クローゼット/ウォークインクローゼット/シューズ・ボックス/ディスポーザー/食洗機/禁煙
募集中 | 賃貸 | 家賃 | 階層 | 間取 | 面積 | 向 | お問い合せ |
| 32万円 | 10階 | 2LDK | 71.99㎡ | 北西 | |||
| お問い合せ お気に入り 詳細表示 | |||||||
このお部屋の詳細情報
管理費 30,000円
その他月額費 0円
月額合計金額 350,000円
敷金 2ヶ月
礼金 2ヶ月
間取り 2LDK(洋6.1 洋4.9 LDK18.4)
現況 空室
引き渡し 即時
定期借家 3年
設備 バリアフリー/分譲賃貸/対面式キッチン/IHクッキングヒーター/バス・トイレ別/追い炊き機能/浴室乾燥機/床暖房/室内洗濯機/クローゼット/ウォークインクローゼット/エアコン/シューズ・ボックス/2面以上バルコニー/ディスポーザー/食洗機/角部屋/禁煙
募集中 | 賃貸未入居ペット | 家賃 | 階層 | 間取 | 面積 | 向 | お問い合せ |
| 32万円 | 27階 | 1LDK | 61.66㎡ | 東 | |||
| 未入居ペット お問い合せ お気に入り 詳細表示 | |||||||
このお部屋の詳細情報
管理費 20,000円
その他月額費 0円
月額合計金額 340,000円
敷金 1ヶ月
礼金 2ヶ月
間取り 1LDK(洋6.3 LDK19.2)
現況 空室
引き渡し 即時
普通借家 2年
設備 眺望良好/バリアフリー/対面式キッチン/IHクッキングヒーター/バス・トイレ別/追い炊き機能/浴室乾燥機/床暖房/室内洗濯機/ウォークインクローゼット/エアコン/シューズ・ボックス/ディスポーザー/食洗機
募集中 | 賃貸 | 家賃 | 階層 | 間取 | 面積 | 向 | お問い合せ |
| 34万円 | 31階 | 2LDK | 61.22㎡ | 東 | |||
| お問い合せ お気に入り 詳細表示 | |||||||
このお部屋の詳細情報
管理費 35,000円
その他月額費 0円
月額合計金額 375,000円
礼金 2ヶ月
間取り 2LDK(洋6.0 洋5.0 LDK14.3)
現況 空室
引き渡し 相談
普通借家
設備 眺望良好/バリアフリー/分譲賃貸/IHクッキングヒーター/バス・トイレ別/追い炊き機能/浴室乾燥機/床暖房/室内洗濯機/クローゼット/ウォークインクローゼット/エアコン/シューズインクローゼット/ディスポーザー/食洗機
募集中 | 賃貸 | 家賃 | 階層 | 間取 | 面積 | 向 | お問い合せ |
| 35万円 | 36階 | 3LDK | 72.81㎡ | 南 | |||
| お問い合せ お気に入り 詳細表示 | |||||||
このお部屋の詳細情報
管理費 50,000円
その他月額費 0円
月額合計金額 400,000円
礼金 2ヶ月
間取り 3LDK(洋6.2 洋5.0 洋4.5 LDK15.3)
現況 空室
引き渡し 即時
定期借家 3年
設備 眺望良好/バリアフリー/分譲賃貸/対面式キッチン/IHクッキングヒーター/バス・トイレ別/追い炊き機能/浴室乾燥機/床暖房/室内洗濯機/クローゼット/ウォークインクローゼット/エアコン/シューズインクローゼット/ディスポーザー/食洗機
募集中 | 賃貸 | 家賃 | 階層 | 間取 | 面積 | 向 | お問い合せ |
| 35万円 | 36階 | 3LDK | 72.81㎡ | 南 | |||
| お問い合せ お気に入り 詳細表示 | |||||||
このお部屋の詳細情報
管理費 50,000円
その他月額費 0円
月額合計金額 400,000円
礼金 2ヶ月
間取り 3LDK(洋6.2 洋5.0 洋4.5 LDK15.3)
現況 空室
引き渡し 即時
定期借家 3年
設備 眺望良好/バリアフリー/分譲賃貸/対面式キッチン/IHクッキングヒーター/バス・トイレ別/追い炊き機能/浴室乾燥機/床暖房/室内洗濯機/クローゼット/ウォークインクローゼット/エアコン/シューズインクローゼット/ディスポーザー/食洗機
募集中 | 賃貸未入居ペット | 家賃 | 階層 | 間取 | 面積 | 向 | お問い合せ |
| 37万円 | 33階 | 2LDK | 61.1㎡ | 南 | |||
| 未入居ペット お問い合せ お気に入り 詳細表示 | |||||||
このお部屋の詳細情報
管理費 20,000円
その他月額費 0円
月額合計金額 390,000円
敷金 1ヶ月
礼金 2ヶ月
間取り 2LDK(洋6.0 洋4.7 LDK14.6)
現況 空室
引き渡し 即時
普通借家 2年
設備 眺望良好/バリアフリー/分譲賃貸/対面式キッチン/IHクッキングヒーター/バス・トイレ別/追い炊き機能/浴室乾燥機/床暖房/室内洗濯機/ウォークインクローゼット/シューズ・ボックス/ディスポーザー/食洗機
募集中 | 賃貸ペット | 家賃 | 階層 | 間取 | 面積 | 向 | お問い合せ |
| 41万円 | 38階 | 2LDK | 63.88㎡ | 西 | |||
| ペット お問い合せ お気に入り 詳細表示 | |||||||
このお部屋の詳細情報
管理費 20,000円
その他月額費 0円
月額合計金額 430,000円
敷金 1ヶ月
礼金 2ヶ月
間取り 2LDK(洋6.0 洋4.5 LDK14.8)
現況 空室
引き渡し 即時
普通借家 2年
設備 眺望良好/バリアフリー/分譲賃貸/対面式キッチン/IHクッキングヒーター/バス・トイレ別/追い炊き機能/浴室乾燥機/床暖房/室内洗濯機/クローゼット/ウォークインクローゼット/シューズ・ボックス/ディスポーザー/食洗機
募集中 | 賃貸 | 家賃 | 階層 | 間取 | 面積 | 向 | お問い合せ |
| 42万円 | 43階 | 2SLDK | 72.84㎡ | 東 | |||
| お問い合せ お気に入り 詳細表示 | |||||||
このお部屋の詳細情報
管理費 30,000円
その他月額費 0円
月額合計金額 450,000円
礼金 2ヶ月
間取り 2SLDK(洋6.9 洋5.0 S2.5 LDK16.1)
現況 空室
引き渡し 即時
定期借家 5年
設備 眺望良好/バリアフリー/分譲賃貸/対面式キッチン/IHクッキングヒーター/バス・トイレ別/追い炊き機能/浴室乾燥機/床暖房/室内洗濯機/クローゼット/ウォークインクローゼット/エアコン/シューズ・ボックス/ディスポーザー/食洗機
募集中 | 賃貸未入居 | 家賃 | 階層 | 間取 | 面積 | 向 | お問い合せ |
| 52万円 | 42階 | 2SLDK | 72.84㎡ | 東 | |||
| 未入居 お問い合せ お気に入り 詳細表示 | |||||||
このお部屋の詳細情報
管理費 20,000円
その他月額費 0円
月額合計金額 540,000円
礼金 2ヶ月
間取り 2SLDK(洋6.9 洋5.0 S2.5 LDK16.1)
現況 空室
引き渡し 即時
普通借家 2年
設備 眺望良好/バリアフリー/分譲賃貸/対面式キッチン/IHクッキングヒーター/バス・トイレ別/追い炊き機能/浴室乾燥機/床暖房/室内洗濯機/クローゼット/ウォークインクローゼット/シューズ・ボックス/ディスポーザー/食洗機
募集中 | 賃貸ペット | 家賃 | 階層 | 間取 | 面積 | 向 | お問い合せ |
| 55万円 | 45階 | 3LDK | 84.49㎡ | 東 | |||
| ペット お問い合せ お気に入り 詳細表示 | |||||||
このお部屋の詳細情報
管理費 0円
その他月額費 0円
月額合計金額 550,000円
礼金 2ヶ月
間取り 3LDK(洋6.0 洋5.2 洋5.1 LDK19.3)
現況 空室
引き渡し 即時
普通借家 2年
設備 眺望良好/バリアフリー/分譲賃貸/対面式キッチン/IHクッキングヒーター/バス・トイレ別/追い炊き機能/浴室乾燥機/床暖房/室内洗濯機/クローゼット/ウォークインクローゼット/エアコン/シューズ・ボックス/シューズインクローゼット/ディスポーザー/食洗機
参考賃貸家賃相場
家賃(月額) 210,000円~600,000円(平均家賃335,884円)
平米単価 3,960円/㎡~7,359円/㎡(平均単価5,067円/㎡)
シエリアタワー大阪堀江の掲載中の物件情報を元にした参考情報です
この建物の短縮URL:https://www.tower.ne.jp/bl/233/





























































































































































































































































