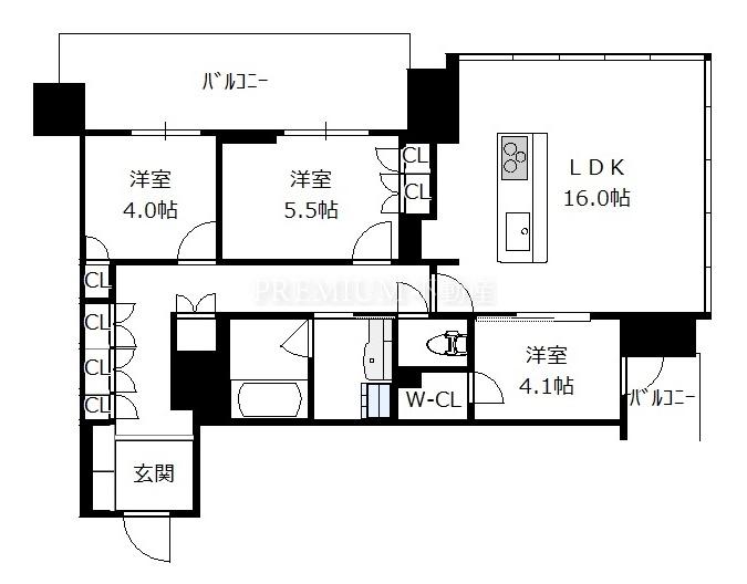
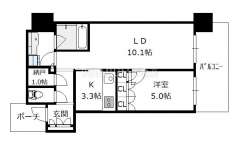
MJR堺筋本町タワー/RJR堺筋本町タワー(大阪市中央区南本町1丁目)にある2SLDK(洋4.2 洋4 LDK12.3)のお部屋です。 専有面積:53.02㎡、3階、方角:西。 賃料:186000円、管理費:25000円。 最寄駅:堺筋本町駅(大阪メトロ堺筋線)徒歩1分、本町駅(大阪メトロ御堂筋線)徒歩9分。 建物設備:オートロック・宅配ボックス・ゲストルーム・スカイラウンジ・コンシェルジュ。 部屋設備:ディスポーザー・食洗機・バス・トイレ別・追い炊き機能・浴室乾燥機・床暖房・室内洗濯機・クローゼット・エアコン。 特徴:該当情報なし。 建物概要:2021年築、堺筋本町駅直結の37階建てタワーマンションRJR堺筋本町タワー(オール賃貸)は14階まで、MJR堺筋本町タワー(分譲)15階以上となっております
目次
MJR堺筋本町タワー/RJR堺筋本町タワーの物件写真
お部屋情報
お気に入り お問い合わせ
募集中 |
賃貸 | 家賃 | 所在階 | 間取り | 専有面積 | 方位 |
| 18.6万円 | 3階 | 2SLDK | 53.02㎡ | 西 |
管理費 25,000円
その他月額費 0円
月額合計金額 211,000円
水道料金 実費
敷金 1ヶ月
礼金 2ヶ月
間取り 2SLDK(洋4.2 洋4 LDK12.3)
現況 空室
引き渡し 相談
普通借家 2年自動更新 更新料1ヶ月
設備
MJR堺筋本町タワー/RJR堺筋本町タワーの概要・物件情報
基本情報
- 所在地
- 📍大阪市中央区南本町1丁目 [地図表示]
- 交通
- 駅直結
🚉大阪メトロ堺筋線 堺筋本町駅まで徒歩1分
🚉大阪メトロ御堂筋線 本町駅まで徒歩9分 - 築年月
- 🎂2021年1月
- 構造等
- 鉄筋コン/地上37階建地下1階
- 総戸数
- 437戸
- 管理方式
- 通勤(日勤)
- 用途地域
- 商業地域
- 建ぺい率
- 80%
- 建ぺい率
- 1000%
- 土地権利
- 所有権
- 地勢
- 平坦
- 国土法届出
- 不要
MJR堺筋本町タワー/RJR堺筋本町タワー
帝人本社跡地に誕生する、「堺筋本町」駅直結の地上37階建てのタワーマンションが誕生
JR九州の分譲マンションシリーズ「MJR」が関西初登場
シリーズとしては、福岡県にある「MJR赤坂タワー」や「MJR六本松」、鹿児島県の「MJRザ・ガーデン鹿児島中央」など、平成元年より事業を開始し、89棟、6,601戸を供給しております。
このタワーマンション最大の特徴として、15階から全ての分譲住戸(総戸数296戸)が始まるという点です。
最下層住戸でも15階ということ。14階までは賃貸マンションとなりますが、1階エントランスから、共用部、エレベーターまで分譲と賃貸はすべて異なる設計になっております。
間取りは1LDK~3LDKで、専有面積は、46.42㎡〜223.61㎡ととても幅広いラインナップ
◆共用施設◆
1階:コンシェルジュサービス(24時間対応)・オーナーズラウンジ
3階〜14階:RJR堺筋本町タワー「オール賃貸住戸レジデンス(総戸数144戸)」
15階:ゲストルーム(和・洋)
29階:ザ・スカイラウンジ
◆駐車場◆
タワーパーキング
普通車(48台)月/29,000円
普通車(大型)(48台)月/30,000円
ミドルルーフ車(20台)月/32,000円
ミドルルーフ車(大型)(18台)月/33,000円
ハイルーフ車(24台)月/36,000円
ハイルーフ車(大型)(22台)月/37,000円
◆バイク置場◆
バイク(9台)月/3,000円
ミニバイク(54台)月/1,200円
◆自転車置場◆
平面(164台)月/800円
2段ラック式(上段)(225台)月/100円
2段ラック式(下段)(226台)月/300円
※管理組合に最新空車確認ならびに実際に駐車してご確認ください。
共用設備
- 主要
免震構造 タワー型 オートロック エレベータ 宅配ボックス ゲストルーム スカイラウンジ コンシェルジュ
駐車場・駐輪場
この物件のメリット・デメリット
メリット
- 大阪メトロ堺筋本町駅直結
デメリット
- 南側は中央大通りにて、上階等に対する防音性が弱いとの声があります
分譲・中古・売り物件一覧
TODAY
本日更新
NEW
新着(7日以内)
売出中 |
売買ペット | 価格 | 階層 | 間取 | 面積 | 向 | お問い合せ |
| 11,600万円 | 32階 | 2LDK | 70.18㎡ | 東 | |||
| ペット お問い合せ お気に入り 詳細表示 | |||||||
このお部屋の詳細情報
管理費 20,140円
修繕積立金 9,800円
その他月額費 0円
月額合計金額 29,940円
間取り 2LDK(洋7.1 洋5.4 LDK17.1)
現況 空室
引き渡し 募集中
設備 眺望良好/バリアフリー/独立型キッチン/ガスコンロ/バス・トイレ別/追い炊き機能/浴室乾燥機/床暖房/室内洗濯機/クローゼット/ウォークインクローゼット/エアコン/シューズインクローゼット/ディスポーザー/食洗機/大阪城が見える
売出中 |
売買ペット | 価格 | 階層 | 間取 | 面積 | 向 | お問い合せ |
| 59,000万円 | 31階 | 2LDK | 171.21㎡ | 南西 | |||
| ペット お問い合せ お気に入り 詳細表示 | |||||||
このお部屋の詳細情報
管理費 48,380円
修繕積立金 24,000円
その他月額費 0円
月額合計金額 72,380円
間取り 2LDK(洋14.2 洋10.8 LDK41.6)
現況 空室
引き渡し 募集中
設備 眺望良好/バリアフリー/対面式キッチン/バス・トイレ別/追い炊き機能/浴室乾燥機/床暖房/室内洗濯機/クローゼット/ウォークインクローゼット/シューズインクローゼット/2面以上バルコニー/ディスポーザー/食洗機/角部屋/LDK20帖以上
| 売買 |
売出中 |
売買ペット | 価格 | 階層 | 間取 | 面積 | 向 | お問い合せ |
| 13,160万円 | 20階 | 3LDK | 74.63㎡ | 南 | |||
| ペット お問い合せ お気に入り 詳細表示 | |||||||
このお部屋の詳細情報
管理費 21,240円
修繕積立金 10,400円
その他月額費 0円
月額合計金額 31,640円
間取り 3LDK(洋6.5 洋5.2 洋5.0 LDK15.7)
現況 空室
引き渡し 募集中
設備 眺望良好/バリアフリー/独立型キッチン/IHクッキングヒーター/バス・トイレ別/追い炊き機能/浴室乾燥機/床暖房/室内洗濯機/クローゼット/シューズインクローゼット/ディスポーザー/食洗機
| 売買 |
売出中 |
売買ペット | 価格 | 階層 | 間取 | 面積 | 向 | お問い合せ |
| 9,480万円 | 22階 | 2LDK | 55.93㎡ | 南 | |||
| ペット お問い合せ お気に入り 詳細表示 | |||||||
このお部屋の詳細情報
管理費 16,240円
修繕積立金 7,800円
その他月額費 0円
月額合計金額 24,040円
間取り 2LDK(洋6.0 洋4.0 LDK14.3)
現況 空室
引き渡し 募集中
設備 眺望良好/バリアフリー/対面式キッチン/IHクッキングヒーター/バス・トイレ別/追い炊き機能/浴室乾燥機/床暖房/室内洗濯機/クローゼット/シューズインクローゼット/ディスポーザー/食洗機
売出中 |
売買ペット | 価格 | 階層 | 間取 | 面積 | 向 | お問い合せ |
| 10,480万円 | 15階 | 2SLDK | 62.75㎡ | 南 | |||
| ペット お問い合せ お気に入り 詳細表示 | |||||||
このお部屋の詳細情報
管理費 18,040円
修繕積立金 8,700円
その他月額費 0円
月額合計金額 26,740円
間取り 2SLDK(洋6.3 洋5.0 S1.3 LDK15.3)
現況 居住中
引き渡し 募集中
設備 バリアフリー/対面式キッチン/ガスコンロ/バス・トイレ別/追い炊き機能/浴室乾燥機/床暖房/室内洗濯機/クローゼット/シューズ・ボックス/ディスポーザー/食洗機
| 売買 |
売出中 |
売買ペット | 価格 | 階層 | 間取 | 面積 | 向 | お問い合せ |
| 11,980万円 | 26階 | 2LDK | 74.63㎡ | 南 | |||
| ペット お問い合せ お気に入り 詳細表示 | |||||||
このお部屋の詳細情報
管理費 21,240円
修繕積立金 10,400円
その他月額費 0円
月額合計金額 31,640円
間取り 2LDK(洋5.2 洋5.0 LDK21.2)
現況 居住中
引き渡し 募集中
設備 眺望良好/バリアフリー/独立型キッチン/IHクッキングヒーター/バス・トイレ別/追い炊き機能/浴室乾燥機/床暖房/室内洗濯機/クローゼット/シューズインクローゼット/ディスポーザー/食洗機/LDK20帖以上
売出中 |
売買ペット | 価格 | 階層 | 間取 | 面積 | 向 | お問い合せ |
| 19,800万円 | 26階 | 3LDK | 90.02㎡ | 南西 | |||
| ペット お問い合せ お気に入り 詳細表示 | |||||||
このお部屋の詳細情報
管理費 25,340円
修繕積立金 12,600円
その他月額費 0円
月額合計金額 37,940円
間取り 3LDK(洋7.0 洋5.5 洋5.0 LDK18.9)
現況 居住中
引き渡し 募集中
設備 眺望良好/バリアフリー/独立型キッチン/ガスコンロ/バス・トイレ別/追い炊き機能/浴室乾燥機/床暖房/室内洗濯機/クローゼット/ウォークインクローゼット/シューズ・ボックス/2面以上バルコニー/ディスポーザー/食洗機/角部屋
売出中 |
売買ペット | 価格 | 階層 | 間取 | 面積 | 向 | お問い合せ |
| 33,000万円 | 30階 | 3SLDK | 110.07㎡ | 南西 | |||
| ペット お問い合せ お気に入り 詳細表示 | |||||||
このお部屋の詳細情報
管理費 30,640円
修繕積立金 15,400円
その他月額費 0円
月額合計金額 46,040円
間取り 3SLDK(洋9.0 洋6.3 洋6.0 S1.8 LDK24.6)
現況 居住中
引き渡し 募集中
設備 眺望良好/バリアフリー/対面式キッチン/バス・トイレ別/追い炊き機能/浴室乾燥機/床暖房/室内洗濯機/クローゼット/シューズ・ボックス/ディスポーザー/食洗機/角部屋/LDK20帖以上
売出中 |
売買ペット | 価格 | 階層 | 間取 | 面積 | 向 | お問い合せ |
| 36,500万円 | 35階 | 3SLDK | 110.07㎡ | 南西 | |||
| ペット お問い合せ お気に入り 詳細表示 | |||||||
このお部屋の詳細情報
管理費 30,640円
修繕積立金 15,400円
その他月額費 0円
月額合計金額 46,040円
間取り 3SLDK(洋8.8 洋6.0 洋5.2 S1.5 LDK24.4)
現況 居住中
引き渡し 募集中
設備 眺望良好/バリアフリー/対面式キッチン/バス・トイレ別/追い炊き機能/浴室乾燥機/床暖房/室内洗濯機/クローゼット/シューズ・ボックス/2面以上バルコニー/ディスポーザー/食洗機/角部屋/LDK20帖以上
売出中 |
売買ペット | 価格 | 階層 | 間取 | 面積 | 向 | お問い合せ |
| 48,000万円 | 35階 | 3LDK | 120.58㎡ | 北東 | |||
| ペット お問い合せ お気に入り 詳細表示 | |||||||
このお部屋の詳細情報
管理費 33,440円
修繕積立金 16,900円
その他月額費 0円
月額合計金額 50,340円
間取り 3LDK(洋10.1 洋6.6 洋6.0 LDK29.7)
現況 居住中
引き渡し 募集中
設備 眺望良好/バリアフリー/独立型キッチン/ガスコンロ/バス・トイレ別/追い炊き機能/浴室乾燥機/床暖房/室内洗濯機/クローゼット/ウォークインクローゼット/シューズインクローゼット/2面以上バルコニー/角部屋/LDK20帖以上
売出中 |
売買ペット | 価格 | 階層 | 間取 | 面積 | 向 | お問い合せ |
| 88,000万円 | 37階 最上階 |
2SLDK | 205.86㎡ | 南東 | |||
| ペット お問い合せ お気に入り 詳細表示 | |||||||
このお部屋の詳細情報
管理費 58,400円
修繕積立金 28,800円
その他月額費 0円
月額合計金額 87,200円
間取り 2SLDK(洋20.1 洋16.8 S4.8 S1.8 L34.6 DK18.5)
現況 居住中
引き渡し 募集中
設備 眺望良好/バリアフリー/アイランドキッチン/ガスコンロ/バス・トイレ別/追い炊き機能/浴室乾燥機/床暖房/室内洗濯機/ウォークインクローゼット/エアコン/シューズインクローゼット/2面以上バルコニー/ディスポーザー/食洗機/角部屋/大阪城が見える/LDK20帖以上
売出中 |
オーナーチェンジ | 価格 | 階層 | 間取 | 面積 | 向 | お問い合せ |
| 7,980万円 利回り 3% | 22階 | 1SLDK | 46.42㎡ | 北 | |||
| お問い合せ お気に入り 詳細表示 | |||||||
このお部屋の詳細情報
管理費 13,840円
修繕積立金 6,500円
その他月額費 0円
月額合計金額 20,340円
間取り 1SLDK(洋5.0 S1.0 LDK13.4)
現況 賃貸中
引き渡し 募集中
設備 眺望良好/バリアフリー/独立型キッチン/ガスコンロ/バス・トイレ別/追い炊き機能/浴室乾燥機/床暖房/室内洗濯機/クローゼット/シューズ・ボックス/ディスポーザー/食洗機
現行利回り 3%
売出中 |
オーナーチェンジ | 価格 | 階層 | 間取 | 面積 | 向 | お問い合せ |
| 10,800万円 利回り 3% | 19階 | 2SLDK | 62.75㎡ | 南 | |||
| お問い合せ お気に入り 詳細表示 | |||||||
このお部屋の詳細情報
管理費 18,040円
修繕積立金 8,700円
その他月額費 0円
月額合計金額 26,740円
間取り 2SLDK(洋6.3 洋5.0 S1.3 LDK15.3)
現況 賃貸中
引き渡し 募集中
設備 バリアフリー/対面式キッチン/ガスコンロ/バス・トイレ別/追い炊き機能/浴室乾燥機/床暖房/室内洗濯機/クローゼット/シューズ・ボックス/ディスポーザー/食洗機
現行利回り 3%
売出中 |
オーナーチェンジ | 価格 | 階層 | 間取 | 面積 | 向 | お問い合せ |
| 14,000万円 利回り 2.9% | 34階 | 2SLDK | 67.5㎡ | 西 | |||
| お問い合せ お気に入り 詳細表示 | |||||||
このお部屋の詳細情報
管理費 19,440円
修繕積立金 9,500円
その他月額費 0円
月額合計金額 28,940円
間取り 2SLDK(洋6.5 洋5.4 S1.5 LDK14.5)
現況 賃貸中
引き渡し 募集中
設備 眺望良好/バリアフリー/対面式キッチン/ガスコンロ/バス・トイレ別/追い炊き機能/浴室乾燥機/床暖房/室内洗濯機/クローゼット/ウォークインクローゼット/シューズインクローゼット/ディスポーザー/食洗機/角部屋
現行利回り 2.9%
参考売買相場価格
価格 7,980万円~88,000万円(平均価格24,357万円)
平米単価 161万円/㎡~427万円/㎡(平均単価233万円/㎡)
MJR堺筋本町タワー/RJR堺筋本町タワーの掲載中の物件情報を元にした参考情報です
空室・賃貸物件一覧
TODAY
本日更新
NEW
新着(7日以内)
募集中 | 賃貸 | 家賃 | 階層 | 間取 | 面積 | 向 | お問い合せ |
| 18.8万円 | 10階 | 1LDK | 50.28㎡ | 南 | |||
| お問い合せ お気に入り 詳細表示 | |||||||
このお部屋の詳細情報
管理費 25,000円
その他月額費 0円
月額合計金額 213,000円
敷金 1ヶ月
礼金 2ヶ月
間取り 1LDK(洋5.5 LDK14.0)
現況 空室
引き渡し 相談
普通借家 2年
設備 バリアフリー/対面式キッチン/ガスコンロ/バス・トイレ別/追い炊き機能/浴室乾燥機/床暖房/室内洗濯機/ウォークインクローゼット/エアコン/シューズインクローゼット/ディスポーザー/食洗機
募集中 | 賃貸 | 家賃 | 階層 | 間取 | 面積 | 向 | お問い合せ |
| 18.7万円 | 5階 | 2LDK | 52.98㎡ | 西 | |||
| お問い合せ お気に入り 詳細表示 | |||||||
このお部屋の詳細情報
管理費 25,000円
その他月額費 0円
月額合計金額 212,000円
敷金 1ヶ月
礼金 2ヶ月
間取り 2LDK(洋4.4 洋4 LDK13.8)
現況 空室
引き渡し 相談
普通借家 2年
設備 バリアフリー/対面式キッチン/ガスコンロ/バス・トイレ別/追い炊き機能/浴室乾燥機/床暖房/室内洗濯機/クローゼット/エアコン/シューズ・ボックス/ディスポーザー/食洗機
募集中 | 賃貸 | 家賃 | 階層 | 間取 | 面積 | 向 | お問い合せ |
| 18.6万円 | 3階 | 2SLDK | 53.02㎡ | 西 | |||
| お問い合せ お気に入り 詳細表示 | |||||||
このお部屋の詳細情報
管理費 25,000円
その他月額費 0円
月額合計金額 211,000円
敷金 1ヶ月
礼金 2ヶ月
間取り 2SLDK(洋4.2 洋4 LDK12.3)
現況 空室
引き渡し 相談
普通借家 2年
設備 バリアフリー/対面式キッチン/ガスコンロ/バス・トイレ別/追い炊き機能/浴室乾燥機/床暖房/室内洗濯機/クローゼット/エアコン/シューズ・ボックス/ディスポーザー/食洗機
募集中 | 賃貸 | 家賃 | 階層 | 間取 | 面積 | 向 | お問い合せ |
| 19万円 | 7階 | 2SLDK | 53.02㎡ | 西 | |||
| お問い合せ お気に入り 詳細表示 | |||||||
このお部屋の詳細情報
管理費 25,000円
その他月額費 0円
月額合計金額 215,000円
敷金 1ヶ月
礼金 2ヶ月
間取り 2SLDK(洋4.2 洋4 LDK12.3)
現況 空室
引き渡し 相談
普通借家 2年
設備 バリアフリー/対面式キッチン/ガスコンロ/バス・トイレ別/追い炊き機能/浴室乾燥機/床暖房/室内洗濯機/クローゼット/エアコン/シューズ・ボックス/ディスポーザー/食洗機
募集中 | 賃貸 | 家賃 | 階層 | 間取 | 面積 | 向 | お問い合せ |
| 18.8万円 | 5階 | 2SLDK | 53.02㎡ | 東 | |||
| お問い合せ お気に入り 詳細表示 | |||||||
このお部屋の詳細情報
管理費 25,000円
その他月額費 0円
月額合計金額 213,000円
敷金 1ヶ月
礼金 2ヶ月
間取り 2SLDK(洋4.2 洋4.0 S LDK12.3)
現況 賃貸中
引き渡し 5/末退去予定
普通借家 2年
設備 バリアフリー/対面式キッチン/ガスコンロ/バス・トイレ別/追い炊き機能/浴室乾燥機/床暖房/室内洗濯機/クローゼット/エアコン/シューズ・ボックス/ディスポーザー/食洗機
募集中 | 賃貸 | 家賃 | 階層 | 間取 | 面積 | 向 | お問い合せ |
| 19.5万円 | 4階 | 2SLDK | 55.65㎡ | 南 | |||
| お問い合せ お気に入り 詳細表示 | |||||||
このお部屋の詳細情報
管理費 25,000円
その他月額費 0円
月額合計金額 220,000円
敷金 1ヶ月
礼金 2ヶ月
間取り 2SLDK(洋6.0 洋4.0 LDK13.0)
現況 賃貸中
引き渡し 5/末退去予定
普通借家 2年
設備 バリアフリー/対面式キッチン/ガスコンロ/バス・トイレ別/追い炊き機能/浴室乾燥機/床暖房/室内洗濯機/クローゼット/エアコン/シューズ・ボックス/ディスポーザー/食洗機
募集中 | 賃貸 | 家賃 | 階層 | 間取 | 面積 | 向 | お問い合せ |
| 19.7万円 | 14階 | 2LDK | 52.98㎡ | 西 | |||
| お問い合せ お気に入り 詳細表示 | |||||||
このお部屋の詳細情報
管理費 25,000円
その他月額費 0円
月額合計金額 222,000円
敷金 1ヶ月
礼金 2ヶ月
間取り 2LDK(洋4.4 洋4.0 LDK13.8)
現況 賃貸中
引き渡し 5/末退去予定
普通借家 2年
設備 バリアフリー/対面式キッチン/ガスコンロ/バス・トイレ別/追い炊き機能/浴室乾燥機/床暖房/室内洗濯機/クローゼット/エアコン/シューズ・ボックス/ディスポーザー/食洗機
募集中 | 賃貸 | 家賃 | 階層 | 間取 | 面積 | 向 | お問い合せ |
| 27.4万円 | 11階 | 3LDK | 76.44㎡ | 北西 | |||
| お問い合せ お気に入り 詳細表示 | |||||||
このお部屋の詳細情報
管理費 30,000円
その他月額費 0円
月額合計金額 304,000円
敷金 1ヶ月
礼金 2ヶ月
間取り 3LDK(洋5.5 洋4.1 洋4 LDK16)
現況 空室
引き渡し 相談
普通借家 2年
設備 バリアフリー/アイランドキッチン/ガスコンロ/バス・トイレ別/追い炊き機能/浴室乾燥機/床暖房/室内洗濯機/クローゼット/ウォークインクローゼット/エアコン/シューズ・ボックス/2面以上バルコニー/ディスポーザー/食洗機/角部屋
参考賃貸家賃相場
家賃(月額) 186,000円~290,000円(平均家賃209,300円)
平米単価 3,504円/㎡~5,185円/㎡(平均単価3,816円/㎡)
MJR堺筋本町タワー/RJR堺筋本町タワーの掲載中の物件情報を元にした参考情報です
このお部屋の短縮URL:https://www.tower.ne.jp/rm/14122/



































