鴻池組が施工、2004年に竣工した地上35階建て総戸数233戸オール電化タワーマンション
目次
ライオンズマンション大阪スカイタワーの物件写真
タワーマンションを「借りたい方・買いたい方」、「売却査定・賃料査定」など何でもお気軽にお問い合わせください。
ライオンズマンション大阪スカイタワーの概要・物件情報
基本情報
- 所在地
- 📍大阪市西区新町1丁目 [地図表示]
- 交通
- 🚉大阪メトロ四つ橋線 四ツ橋駅まで徒歩4分
🚉大阪メトロ長堀鶴見緑地 西大橋駅まで徒歩3分 - 築年月
- 🎂2004年7月
- 構造等
- 鉄骨鉄筋/地上35階建
- 総戸数
- 233戸
- 管理方式
- 常駐
- 用途地域
- 商業地域
- 建ぺい率
- 80%
- 建ぺい率
- 600%
- 土地権利
- 所有権
- 地勢
- 平坦
- 国土法届出
- 不要
ライオンズマンション大阪スカイタワーは著名人や芸能人の方にも安心のおすすめの物件です。
ライオンズマンション大阪スカイタワー
「ライオンズマンション大阪スカイタワー」に住みたいお客様(購入・賃貸)、住替え等にて売却を検討や賃料条件から部屋付け家賃管理等ご検討の所有者(オーナー様)の方、大阪市内の中古タワーマンション専門のプレミアム不動産へお気軽にご相談ください。
地上約123mの高さを誇る35階建ての高層タワーマンション。
白を基調としたシャープで落ち着きのある外観デザインが、落ち着いた街並みの四ツ橋エリアと調和しながら、美しい存在感を示しています。28階にはスカイラウンジがあり、1階にはくつろぎのラウンジスペース。2階にはルーフガーデン、キッズルーム、コミュニティロビー、AVルーム、和室、会議室など共用施設が充実。
またエントランスにはフロントデスクがあり、様々なサービスで日々の暮らしをきめ細やかにサポートします。
市営地下鉄四つ橋線 「四ツ橋」駅から徒歩4分に立地し、市内各所にスムーズに移動可能なので通勤・通学に便利です。物件の周辺にはスーパーマーケットやドラッグストアなどが揃い、
日々のお買い物に便利です。有名デパートや話題のショップやレストランが建ち並ぶ心斎橋も徒歩圏内。都心に暮らす楽しさを実感させてくれます。
◆共用施設◆
1階:コンシェルジュ(月曜日から土曜日、午前7時から午前11時、午後5時から午後9時)
2階:スカイラウンジ・集会室(キッズルーム)・コミュニティロビー・AVルーム(有料)・和室・会議室・ルーフガーデン
28階:スカイラウンジ
◆駐車場◆
月/23,000円〜40,000円
◆バイク置場◆
月/1,000円〜3,000円
◆自転車置場◆
月/200円〜600円
※管理組合に最新空車確認ならびに実際に駐車してご確認ください。
共用設備
- 主要
制震構造 タワー型 オートロック エレベータ 宅配ボックス オール電化 キッズルーム スカイラウンジ コンシェルジュ ペット用設備
駐車場・駐輪場
この物件のメリット・デメリット
メリット
- 東西方向に広がる敷地形状からエレベーターシャフトを東西2カ所に分割したツインコア超高層住宅です
デメリット
- 周辺建物が高く、低層階は眺望が望めません
ライオンズマンション大阪スカイタワーのよくある質問
タワーマンションを「借りたい方・買いたい方」、「売却査定・賃料査定」など何でもお気軽にお問い合わせください。
分譲・中古・売り物件一覧
TODAY
本日更新
NEW
新着(7日以内)
売出中 |
売買ペット | 価格 | 階層 | 間取 | 面積 | 向 | お問い合せ |
| 9,380万円 | 23階 | 3LDK | 92.12㎡ | 南西 | |||
| ペット お問い合せ お気に入り 詳細表示 | |||||||
このお部屋の詳細情報
管理費 18,400円
修繕積立金 36,800円
月額合計金額 55,200円
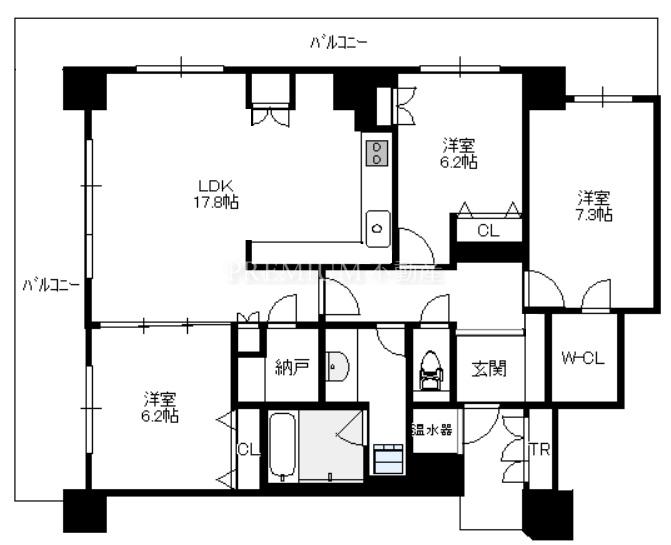
間取り 3LDK(洋7.3 洋6.2 洋6.2 LDK17.8)
現況 空室
引き渡し 募集中
設備 眺望良好/バリアフリー/L字型キッチン/IHクッキングヒーター/バス・トイレ別/追い炊き機能/浴室乾燥機/室内洗濯機/クローゼット/ウォークインクローゼット/シューズ・ボックス/角部屋
| 売買 |
参考売買相場価格
価格 6,100万円~11,980万円(平均価格9,153万円)
平米単価 86万円/㎡~115万円/㎡(平均単価101万円/㎡)
ライオンズマンション大阪スカイタワーの掲載中の物件情報を元にした参考情報です
お手軽簡単売却価格査定
プレミアム不動産のAI売却価格査定では約20秒程度の入力で瞬時にご指定のタワーマンションの売却価格相場を調べることが出来ます。登録や個人情報の入力も不要ですので個人情報やしつこい営業の心配もなく安心してお使い頂けます。
空室・賃貸物件一覧
TODAY
本日更新
NEW
新着(7日以内)
参考賃貸家賃相場
家賃(月額) 250,000円~265,000円(平均家賃257,500円)
平米単価 2,656円/㎡~3,160円/㎡(平均単価2,907円/㎡)
ライオンズマンション大阪スカイタワーの掲載中の物件情報を元にした参考情報です
この建物の短縮URL:https://www.tower.ne.jp/bl/162/





















