鹿島建設施工の2015年に竣工した地上30階建て総戸数146戸タワーマンション
❤️24名の方がこの物件を気に入っています
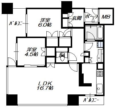
目次
クラッシィタワー南船場の物件写真
タワーマンションを「借りたい方・買いたい方」、「売却査定・賃料査定」など何でもお気軽にお問い合わせください。
クラッシィタワー南船場の概要・物件情報
基本情報
- 所在地
- 📍大阪市中央区南船場1丁目 [地図表示]
- 交通
- 🚉大阪メトロ堺筋線 長堀橋駅まで徒歩3分
🚉大阪メトロ御堂筋線 心斎橋駅まで徒歩9分 - 築年月
- 🎂2015年6月
- 構造等
- 鉄筋コン/地上30階建地下1階
- 総戸数
- 146戸
- 管理方式
- 通勤(日勤)
- 用途地域
- 商業地域
- 建ぺい率
- 80%
- 建ぺい率
- 600%
- 土地権利
- 所有権
- 地勢
- 平坦
- 国土法届出
- 不要
クラッシィタワー南船場
「クラッシィタワー南船場」に住みたいお客様(購入・賃貸)、住替え等にて売却を検討や賃料条件から部屋付け家賃管理等ご検討の所有者(オーナー様)の方、大阪市内の中古タワーマンション専門のプレミアム不動産へお気軽にご相談ください。
大阪を代表するあらゆる街の中心に位置する「南船場」。
情報や流行が行き交う心斎橋や難波、メガターミナル梅田、ビジネス拠点の北浜や本町、そして緑と水に潤う中之島公園に囲まれる、あらゆる街とつながる魅力あるエリアです。
マンションは2面接道の角地に建ち、高い開放性に恵まれています。
また、万一への備えが幾重にも考えられた構造や防犯設備、住まう方の安心を守るセキュリティなども充実しています。
周辺には商業施設や生活利便施設がそろい、平日も週末も関係なく充実した生活をお送り頂ける環境です。
◆駐車場◆
エレベーターパーキング(88台)
月/27,000円〜32,000円
※宅配レンタカーサービス専用2台含む
普通車、ミドルルーフ車、ハイルーフ車
◆バイク置場◆
大型バイク(5台)月/3,000円
ミニバイク(25台)月/2,000円
◆駐輪場◆
292台(2段ラック式180台、スライドラック式82台、平置30台)
月/100円〜300円
※レンタサイクル専用4台含む
※管理組合に最新空車確認ならびに実際に駐車してご確認ください。
共用設備
- 主要
タワー型 オートロック エレベータ 宅配ボックス
駐車場・駐輪場
この物件のメリット・デメリット
メリット
- 南船場1丁目の立地に対し、共用施設がないため、賃貸や売買の価格帯が魅力的です
デメリット
- 各階にゴミステーションがなく1階(24時間利用可)にある
クラッシィタワー南船場のよくある質問
タワーマンションを「借りたい方・買いたい方」、「売却査定・賃料査定」など何でもお気軽にお問い合わせください。
分譲・中古・売り物件一覧
TODAY
本日更新
NEW
新着(7日以内)
参考売買相場価格
価格 8,280万円~8,280万円(平均価格8,280万円)
平米単価 111万円/㎡~111万円/㎡(平均単価110万円/㎡)
クラッシィタワー南船場の掲載中の物件情報を元にした参考情報です
お手軽簡単売却価格査定
プレミアム不動産のAI売却価格査定では約20秒程度の入力で瞬時にご指定のタワーマンションの売却価格相場を調べることが出来ます。登録や個人情報の入力も不要ですので個人情報やしつこい営業の心配もなく安心してお使い頂けます。
空室・賃貸物件一覧
TODAY
本日更新
NEW
新着(7日以内)
現在、クラッシィタワー南船場の募集中空室がございません。
この建物の短縮URL:https://www.tower.ne.jp/bl/45/



