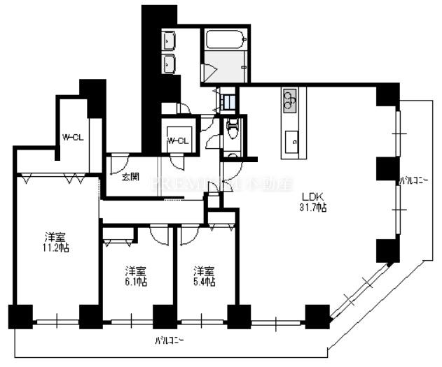
オークプリオタワー(大阪市港区弁天1丁目)にある3LDK(洋10.1 洋6.1 和6.0 LDK24.0)のお部屋です。 専有面積:125.95㎡、42階 / 地上50階建、方角:西。 価格:9300万円、管理費:28970円、修繕積立金:37790円。 最寄駅:弁天町駅(大阪環状線)徒歩2分、弁天町駅(大阪メトロ中央線)徒歩2分。 建物設備:オートロック・宅配ボックス・オール電化・コミュニティルーム。 部屋設備:ウォークインクローゼット・バス・トイレ別・追い炊き機能・浴室乾燥機・室内洗濯機・クローゼット。 特徴:眺望良好・角部屋・LDK20帖以上。 建物概要:弁天町駅一帯の再開発地区「ORC200」の一角に立地する、竹中工務店・清水建設・奥村組施工の地上50階建てタワーマンション2階~7階までの低層階は、企業のオフィスや店舗が入居しており、8階~50階までの高層階は住居となっております。
目次
オークプリオタワーの物件写真
お部屋情報
2026/02/21 300万円値下いたしました!
お気に入り お問い合わせ
募集中 |
売買 | 価格 | 所在階 | 間取り | 専有面積 | 方位 |
| 9,300万円 | 42階 | 3LDK | 125.95㎡ | 西 |
管理費 28,970円
修繕積立金 37,790円
その他月額費 8,340円
月額合計金額 75,100円
水道料金 実費
間取り 3LDK(洋10.1 洋6.1 和6.0 LDK24.0)
現況 居住中
引き渡し 相談
設備
ペット 相談
ヒーツ使用料:月/8,190円
トランクルーム使用料:月/150円
ローン返済額
毎月の返済額の目安 : 260,149円
借入金額9,300万円、金利0.945%、返済期間35年での計算です。
※元利均等返済方式での計算になります。あくまでもご返済の目安にするものになりますので、詳細は各銀行でご確認下さい(三菱UFJ銀行 新規借り入れシミュレーション)。
タワーマンションを「借りたい方・買いたい方」、「売却査定・賃料査定」など何でもお気軽にお問い合わせください。
オークプリオタワーの概要・物件情報
基本情報
- 所在地
- 📍大阪市港区弁天1丁目 [地図表示]
- 交通
- 🚉大阪環状線 弁天町駅まで徒歩2分
🚉大阪メトロ中央線 弁天町駅まで徒歩2分 - 築年月
- 🎂1993年3月
- 構造等
- 鉄骨鉄筋/地上50階建地下2階
- 総戸数
- 353戸
- 管理方式
- 通勤(日勤)
- 用途地域
- 商業地域
- 建ぺい率
- 80%
- 建ぺい率
- 800%
- 土地権利
- 所有権
- 地勢
- 平坦
- 国土法届出
- 不要
オークプリオタワー
「オークプリオタワー」に住みたいお客様(購入・賃貸)、住替え等にて売却を検討や賃料条件から部屋付け家賃管理等ご検討の所有者(オーナー様)の方、大阪市内の中古タワーマンション専門のプレミアム不動産へお気軽にご相談ください。
オークプリオタワーは、2〜7階までの低層階にはオフィスや商業施設がテナント入居し、8階より上層階が住まいになっています。
最寄りの大阪市中央線「弁天町」駅まで徒歩2分の好立地で、利便性の高さが魅力です。
弁天町一帯の高層マンション群の一角に立地します。
オーシャンビュー、シティビューが高層階から広がります。
大阪市環状線「弁天町」駅まではデッキでつながっており、雨の日も傘いらずです。
オーク200内は1番街〜4番街までが整備され、一大コミュニティを形成しています。
オーク200内にはコナミスポーツクラブや郵便局など生活利便施設が揃います。
耐震、免震、制震構造が採用されていて、地震に備えます。
きれいに整えられた植込みが、暮らしに安らぎとゆとりをもたらします。
落ち着きと気品にあふれたエントランス。
高いデザイン性と、住まいとしての機能性との両立も、大きな魅力です。
コンクリートと緑が調和したアプローチ。
◆共用施設◆
1階:ロビーラウンジ
8階:茶道室・プレイルーム・集会場・フリールーム(会議室)
◆駐車場◆
普通車(上下段パレット)月/20,000円〜33,000円
平面駐車場(地下2階)月/33,000円(税込)
◆バイク置場◆
月/2,000円〜3,000円
◆自転車置場◆
月/0円
♦ヒーツ基本料:月/5,310円♦
※管理組合に最新空車確認ならびに実際に駐車してご確認ください。
共用設備
- 主要
タワー型 オートロック エレベータ 宅配ボックス オール電化 コミュニティルーム
駐車場・駐輪場
この物件のメリット・デメリット
メリット
- ORC200の一角に立地し便利であり、オーク四番街に区分されています
デメリット
- 管理費等が高いところでしょうか
分譲・中古・売り物件一覧
TODAY
本日更新
NEW
新着(7日以内)
売出中 |
売買ペット | 価格 | 階層 | 間取 | 面積 | 向 | お問い合せ |
| 7,880万円 | 45階 | 2LDK | 93.33㎡ | 南東 | |||
| ペット お問い合せ お気に入り 詳細表示 | |||||||
このお部屋の詳細情報
管理費 21,470円
修繕積立金 28,000円
その他月額費 6,750円
月額合計金額 56,220円
間取り 2LDK(洋8.4 洋6.0 LDK22.5)
現況 空室
引き渡し 募集中
設備 眺望良好/対面式キッチン/IHクッキングヒーター/バス・トイレ別/追い炊き機能/浴室乾燥機/室内洗濯機/クローゼット/シューズ・ボックス/LDK20帖以上
| 売買 |
| 売買 |
売出中 |
売買ペット | 価格 | 階層 | 間取 | 面積 | 向 | お問い合せ |
| 5,480万円 | 41階 | 1LDK | 76.24㎡ | 南西 | |||
| ペット お問い合せ お気に入り 詳細表示 | |||||||
このお部屋の詳細情報
管理費 17,540円
修繕積立金 22,870円
その他月額費 5,310円
月額合計金額 45,720円
間取り 1LDK(洋9.3 LDK22.0)
現況 空室
引き渡し 募集中
設備 眺望良好/独立型キッチン/IHクッキングヒーター/バス・トイレ別/追い炊き機能/浴室乾燥機/室内洗濯機/クローゼット/シューズ・ボックス/LDK20帖以上
| 売買 |
参考売買相場価格
価格 4,850万円~9,350万円(平均価格6,902万円)
平米単価 68万円/㎡~84万円/㎡(平均単価74万円/㎡)
オークプリオタワーの掲載中の物件情報を元にした参考情報です
空室・賃貸物件一覧
TODAY
本日更新
NEW
新着(7日以内)
現在、オークプリオタワーの募集中空室がございません。
このお部屋の短縮URL:https://www.tower.ne.jp/rm/28815/










