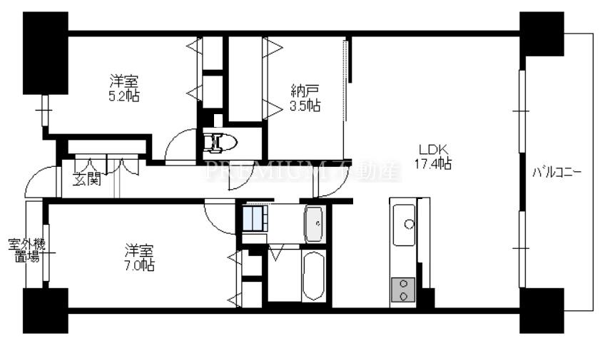
ファミール扇町アーバンステージ(大阪市北区同心2丁目)にある2SLDK(洋7.0 洋5.2 S3.5 LDK17.4)のお部屋です。 専有面積:71.95㎡、5階 / 地上20階建、方角:南。 価格:6980万円、管理費:8400円、修繕積立金:12090円。 最寄駅:天満駅(大阪環状線)徒歩5分、扇町駅(大阪メトロ堺筋線)徒歩6分。 建物設備:オートロック・宅配ボックス。 部屋設備:食洗機・バス・トイレ別・追い炊き機能・浴室乾燥機・室内洗濯機・クローゼット。 特徴:該当情報なし。 建物概要:竹中工務店施工の1998年に竣工した地上20階建て総戸数190戸タワーレジデンス
目次
ファミール扇町アーバンステージの物件写真
お部屋情報
お気に入り お問い合わせ
募集中 |
売買 | 価格 | 所在階 | 間取り | 専有面積 | 方位 |
| 6,980万円 | 5階 | 2SLDK | 71.95㎡ | 南 |
管理費 8,400円
修繕積立金 12,090円
その他月額費 1,815円
月額合計金額 22,305円
水道料金 実費
間取り 2SLDK(洋7.0 洋5.2 S3.5 LDK17.4)
現況 居住中
引き渡し 相談
設備
ペット 不可
CATV使用料:月/1,815円
ローン返済額
毎月の返済額の目安 : 195,251円
借入金額6,980万円、金利0.945%、返済期間35年での計算です。
※元利均等返済方式での計算になります。あくまでもご返済の目安にするものになりますので、詳細は各銀行でご確認下さい(三菱UFJ銀行 新規借り入れシミュレーション)。
タワーマンションを「借りたい方・買いたい方」、「売却査定・賃料査定」など何でもお気軽にお問い合わせください。
ファミール扇町アーバンステージの概要・物件情報
基本情報
- 所在地
- 📍大阪市北区同心2丁目 [地図表示]
- 交通
- 🚉大阪環状線 天満駅まで徒歩5分
🚉大阪メトロ堺筋線 扇町駅まで徒歩6分 - 築年月
- 🎂1998年11月
- 構造等
- 鉄筋コン/地上20階建
- 総戸数
- 190戸
- 管理方式
- 通勤(日勤)
- 用途地域
- 商業地域
- 建ぺい率
- 80%
- 建ぺい率
- 400%
- 土地権利
- 所有権
- 地勢
- 平坦
- 国土法届出
- 不要
ファミール扇町アーバンステージ
「ファミール扇町アーバンステージ」に住みたいお客様(購入・賃貸)、住替え等にて売却を検討や賃料条件から部屋付け家賃管理等ご検討の所有者(オーナー様)の方、大阪市内の中古タワーマンション専門のプレミアム不動産へお気軽にご相談ください。
大阪市北区同心2丁目にある「ファミール扇町アーバンステージ」。
地下鉄堺筋線「扇町駅」、JR大阪環状線「天満駅」、JR東西線「大阪天満宮駅」など、お買い物や通勤に便利な3WAY。
周辺には、生活に必要なコンビニ(主要3社)、幼稚園・保育園、スーパー(阪急オアシス)、ドラッグストア(サーバ)、郵便局も徒歩圏内。
また、天満や南森町は、梅田などの主要都市とは少し違った飲食店も多いエリアです。
便利な場所でありつつも、大川沿いを歩けば、自然も感じられてリフレッシュできそうです。
間取りは1LDK〜4LDKで、単身者でもファミリーの方にもおすすめのマンションです。
◆駐車場◆
月/22,000円〜25,000円
◆バイク置き場◆
月/500円
◆駐輪場◆
月/200円
※管理組合に最新空車確認ならびに実際に駐車してご確認ください。
共用設備
- 主要
タワー型 オートロック エレベータ 宅配ボックス
駐車場・駐輪場
この物件のメリット・デメリット
メリット
- 築年数が経過している分、JR天満駅や扇町駅エリアの好立地でも相場より低価格となっております
デメリット
- 共用施設がなくシンプルな設計となっております
分譲・中古・売り物件一覧
TODAY
本日更新
NEW
新着(7日以内)
参考売買相場価格
価格 6,980万円~6,980万円(平均価格6,980万円)
平米単価 97万円/㎡~97万円/㎡(平均単価97万円/㎡)
ファミール扇町アーバンステージの掲載中の物件情報を元にした参考情報です
空室・賃貸物件一覧
TODAY
本日更新
NEW
新着(7日以内)
現在、ファミール扇町アーバンステージの募集中空室がございません。
このお部屋の短縮URL:https://www.tower.ne.jp/rm/25967/






