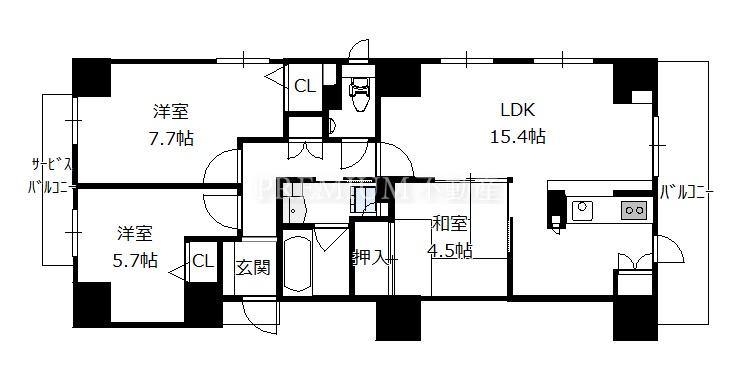
ファミールKOUZTOWER(大阪市中央区高津1丁目)にある3LDK(洋7.7 洋5.7 和4.5 LDK15.4)のお部屋です。 専有面積:73.42㎡、6階 / 地上20階建、方角:南。 価格:5580万円、管理費:13020円、修繕積立金:14680円。 最寄駅:谷町九丁目駅(大阪メトロ谷町線)徒歩4分、日本橋駅(大阪メトロ堺筋線)徒歩6分。 建物設備:オートロック・宅配ボックス・ジム・スカイラウンジ・コミュニティルーム。 部屋設備:ウォークインクローゼット・ディスポーザー・バス・トイレ別・追い炊き機能・浴室乾燥機・床暖房・室内洗濯機・クローゼット。 特徴:角部屋。 建物概要:大成建設施工の2003年に竣工した地上20階建て総戸数122戸タワーレジデンス
目次
ファミールKOUZTOWERの物件写真
お部屋情報
お気に入り お問い合わせ
募集中 |
売買 | 価格 | 所在階 | 間取り | 専有面積 | 方位 |
| 5,580万円 | 6階 | 3LDK | 73.42㎡ | 南 |
管理費 13,020円
修繕積立金 14,680円
その他月額費 0円
月額合計金額 27,700円
水道料金 実費
間取り 3LDK(洋7.7 洋5.7 和4.5 LDK15.4)
現況 居住中
引き渡し 相談
設備
ペット 相談
ローン返済額
毎月の返済額の目安 : 156,089円
借入金額5,580万円、金利0.945%、返済期間35年での計算です。
※元利均等返済方式での計算になります。あくまでもご返済の目安にするものになりますので、詳細は各銀行でご確認下さい(三菱UFJ銀行 新規借り入れシミュレーション)。
タワーマンションを「借りたい方・買いたい方」、「売却査定・賃料査定」など何でもお気軽にお問い合わせください。
ファミールKOUZTOWERの概要・物件情報
基本情報
- 所在地
- 📍大阪市中央区高津1丁目 [地図表示]
- 交通
- 🚉大阪メトロ谷町線 谷町九丁目駅まで徒歩4分
🚉大阪メトロ堺筋線 日本橋駅まで徒歩6分 - 築年月
- 🎂2003年2月
- 構造等
- 鉄筋コン/地上20階建地下1階
- 総戸数
- 122戸
- 管理方式
- 通勤(日勤)
- 用途地域
- 商業地域
- 建ぺい率
- 80%
- 建ぺい率
- 800%
- 土地権利
- 所有権
- 地勢
- 平坦
- 国土法届出
- 不要
ファミールKOUZTOWER
「ファミールKOUZTOWER(ファミール高津タワー)」に住みたいお客様(購入・賃貸)、住替え等にて売却を検討や賃料条件から部屋付け家賃管理等ご検討の所有者(オーナー様)の方、大阪市内の中古タワーマンション専門のプレミアム不動産へお気軽にご相談ください。
グレーの外観が街並みに溶け込む「ファミール高津タワー」。
最上階の20階には、街並みを見下ろしながらくつろぎのひと時をお楽しみいただける、パノラマラウンジを配置。
高津エリアは、アクティブなライフスタイルが活きる都心隣居のロケーション。足まわりの良さは大きな魅力です。最寄りの地下鉄「谷町九丁目」駅や地下鉄・近鉄「日本橋」駅は、アクセス自在なターミナル。
なんばエリアまで徒歩圏内にあり、文楽劇場の伝統文化なども、思い立ったら散歩気分で堪能できます。
◆共用施設◆
1階:フィットネススタジオ、コミュニティルーム
20階:パノラマラウンジ
◆駐車場◆
タワーパーキング
月/19,000円〜27,000円
◆バイク置場◆
月/1,000円
◆自転車置場◆
月/100円
※管理組合に最新空車確認ならびに実際に駐車してご確認ください。
共用設備
- 主要
タワー型 オートロック エレベータ 宅配ボックス ジム スカイラウンジ コミュニティルーム
駐車場・駐輪場
この物件のメリット・デメリット
メリット
- 築年数が経過している分、谷町九丁目駅前の好立地で相場より低価格となっております
デメリット
- 千日前通りに面し騒音が気になるところ
分譲・中古・売り物件一覧
TODAY
本日更新
NEW
新着(7日以内)
参考売買相場価格
価格 5,580万円~5,580万円(平均価格5,580万円)
平米単価 76万円/㎡~76万円/㎡(平均単価76万円/㎡)
ファミールKOUZTOWERの掲載中の物件情報を元にした参考情報です
空室・賃貸物件一覧
TODAY
本日更新
NEW
新着(7日以内)
現在、ファミールKOUZTOWERの募集中空室がございません。
このお部屋の短縮URL:https://www.tower.ne.jp/rm/30117/



