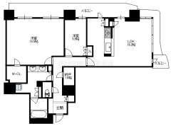
ローレルタワー堺筋本町(大阪市中央区久太郎町2丁目)にある2LDK(洋6.0 洋5.0 LDK12.1)のお部屋です。 専有面積:57.14㎡、9階 / 地上44階建、方角:東。 価格:8880万円、管理費:15850円、修繕積立金:4930円。 最寄駅:堺筋本町駅(大阪メトロ中央線)徒歩1分、堺筋本町駅(大阪メトロ堺筋線)徒歩1分。 建物設備:オートロック・宅配ボックス・ゲストルーム・ジム・ゴルフレンジ・スカイラウンジ・コミュニティルーム・コンシェルジュ・パーティールーム。 部屋設備:ディスポーザー・食洗機・バス・トイレ別・追い炊き機能・浴室乾燥機・床暖房・室内洗濯機・クローゼット。 特徴:眺望良好。 建物概要:長谷工コーポレーション施工の2024年に竣工する地上44階建て総戸数511戸タワーマンション
目次
ローレルタワー堺筋本町の物件写真
お部屋情報
2026/05/07 270万円値下いたしました!
お気に入り お問い合わせ
募集中 |
売買 | 価格 | 所在階 | 間取り | 専有面積 | 方位 |
| 8,880万円 | 9階 | 2LDK | 57.14㎡ | 東 |
管理費 15,850円
修繕積立金 4,930円
その他月額費 2,970円
月額合計金額 23,750円
水道料金 実費
間取り 2LDK(洋6.0 洋5.0 LDK12.1)
現況 居住中
引き渡し 相談
設備
ペット 相談
インターネット使用料:月/1,540円
ホームセキュリティー費:月/990円
プロバイダー使用料:月/440円
ローン返済額
毎月の返済額の目安 : 248,400円
借入金額8,880万円、金利0.945%、返済期間35年での計算です。
※元利均等返済方式での計算になります。あくまでもご返済の目安にするものになりますので、詳細は各銀行でご確認下さい(三菱UFJ銀行 新規借り入れシミュレーション)。
タワーマンションを「借りたい方・買いたい方」、「売却査定・賃料査定」など何でもお気軽にお問い合わせください。
ローレルタワー堺筋本町の概要・物件情報
基本情報
- 所在地
- 📍大阪市中央区久太郎町2丁目 [地図表示]
- 交通
- 🚉大阪メトロ中央線 堺筋本町駅まで徒歩1分
🚉大阪メトロ堺筋線 堺筋本町駅まで徒歩1分 - 築年月
- 🎂2024年1月
- 構造等
- 鉄筋コン/地上44階建地下1階
- 総戸数
- 511戸
- 管理方式
- 常駐
- 用途地域
- 商業地域
- 建ぺい率
- 80%
- 建ぺい率
- 1000%
- 土地権利
- 所有権
- 地勢
- 平坦
- 国土法届出
- 不要
ローレルタワー堺筋本町は著名人や芸能人の方にも安心のおすすめの物件です。
ローレルタワー堺筋本町
「ローレルタワー堺筋本町」に住みたいお客様(購入・賃貸)、住替え等にて売却を検討や賃料条件から部屋付け家賃管理等ご検討の所有者(オーナー様)の方、大阪市内の中古タワーマンション専門のプレミアム不動産へお気軽にご相談ください。
2024年春竣工した堺筋本町駅前にそびえ立つ地上44階建てタワーレジンデンスがついに誕生!
堺筋に面した3方角地に誕生する「ローレルタワー堺筋本町」
Osaka Metro「堺筋本町」駅徒歩1分のロケーションにありながら、格調高き塀と門で美しい別世界をつくり、その中に四季折々の植栽が彩るプライベートガーデンを内包した地上44階511邸の超高層タワー
目指したのは、これからの時代をしなやかに生きる、アーバン・ラグジュアリーの新しい象徴。大阪超高層レジデンスの新時代がここからはじまります
間取りは1LDK~4LDK(43.41㎡~210.07㎡)と不動産投資向けから居住用まで様々なプランがご用意されております
◆共用施設◆
B1階:ゴルフレンジ
1階:ゲーテッドガーデン・ラウンジ・カーウェイティング
2階:ゲストルーム・アカデミースペース・フォーカスルーム
35階:スカイラウンジ・クラブラウンジ・フィットネスルーム
◆駐車場◆
228台
月額使用料:34,000円~39,000円
◆バイク置場◆
37台
月額使用料:1,500円・3,000円
◆自転車置場◆
684台
月額使用料:100円~600円
※管理組合に最新空車確認ならびに実際に駐車してご確認ください。
共用設備
- 主要
制震構造 タワー型 オートロック エレベータ 宅配ボックス ゲストルーム ジム ゴルフレンジ スカイラウンジ コミュニティルーム コンシェルジュ パーティールーム
駐車場・駐輪場
この物件のメリット・デメリット
メリット
- ゲーテッドガーデン(庭園邸宅構想)
デメリット
- 堺筋に面し中央大通りも北側にあり騒音が気になるところ
分譲・中古・売り物件一覧
TODAY
本日更新
NEW
新着(7日以内)
売出中 |
売買ペット | 価格 | 階層 | 間取 | 面積 | 向 | お問い合せ |
| 10,700万円 | 5階 | 2LDK | 70.54㎡ | 南 | |||
| ペット お問い合せ お気に入り 詳細表示 | |||||||
このお部屋の詳細情報
管理費 19,560円
修繕積立金 6,090円
その他月額費 2,420円
月額合計金額 28,070円
間取り 2LDK(洋6.0 洋5.4 LDK19.3)
現況 空室
引き渡し 募集中
設備 バリアフリー/独立型キッチン/IHクッキングヒーター/バス・トイレ別/追い炊き機能/浴室乾燥機/床暖房/室内洗濯機/クローゼット/ウォークインクローゼット/シューズ・ボックス/ディスポーザー/食洗機
| 売買 |
売出中 |
売買ペット | 価格 | 階層 | 間取 | 面積 | 向 | お問い合せ |
| 7,130万円 | 9階 | 1LDK | 45.87㎡ | 南 | |||
| ペット お問い合せ お気に入り 詳細表示 | |||||||
このお部屋の詳細情報
管理費 12,720円
修繕積立金 3,960円
その他月額費 2,970円
月額合計金額 19,650円
間取り 1LDK(洋5.1 LDK13.7)
現況 空室
引き渡し 募集中
設備 バリアフリー/対面式キッチン/ガスコンロ/バス・トイレ別/追い炊き機能/浴室乾燥機/床暖房/室内洗濯機/クローゼット/シューズインクローゼット/ディスポーザー/食洗機
売出中 |
売買ペット | 価格 | 階層 | 間取 | 面積 | 向 | お問い合せ |
| 7,480万円 | 7階 | 1SLDK | 47.52㎡ | 西 | |||
| ペット お問い合せ お気に入り 詳細表示 | |||||||
このお部屋の詳細情報
管理費 13,180円
修繕積立金 4,100円
その他月額費 2,970円
月額合計金額 20,250円
間取り 1SLDK(洋6.0 LDK12.4)
現況 空室
引き渡し 募集中
設備 バリアフリー/対面式キッチン/ガスコンロ/バス・トイレ別/追い炊き機能/浴室乾燥機/床暖房/室内洗濯機/クローゼット/シューズ・ボックス/ディスポーザー/食洗機
売出中 |
売買ペット | 価格 | 階層 | 間取 | 面積 | 向 | お問い合せ |
| 24,100万円 | 29階 | 3LDK | 88.2㎡ | 南西 | |||
| ペット お問い合せ お気に入り 詳細表示 | |||||||
このお部屋の詳細情報
管理費 24,460円
修繕積立金 7,610円
その他月額費 2,420円
月額合計金額 34,490円
間取り 3LDK(洋7.4 洋5.5 洋4.5 LDK18.7)
現況 居住中
引き渡し 募集中
設備 眺望良好/バリアフリー/独立型キッチン/ガスコンロ/バス・トイレ別/追い炊き機能/浴室乾燥機/床暖房/室内洗濯機/クローゼット/シューズインクローゼット/ディスポーザー/食洗機/角部屋
| 売買 |
売出中 |
売買ペット | 価格 | 階層 | 間取 | 面積 | 向 | お問い合せ |
| 28,880万円 | 36階 | 2LDK | 78.22㎡ | 南 | |||
| ペット お問い合せ お気に入り 詳細表示 | |||||||
このお部屋の詳細情報
管理費 21,690円
修繕積立金 6,750円
その他月額費 2,420円
月額合計金額 30,860円
間取り 2LDK(洋6.0 洋5.0 LDK20.5)
現況 居住中
引き渡し 募集中
設備 眺望良好/バリアフリー/対面式キッチン/ガスコンロ/バス・トイレ別/追い炊き機能/浴室乾燥機/床暖房/室内洗濯機/クローゼット/ウォークインクローゼット/シューズ・ボックス/ディスポーザー/食洗機/LDK20帖以上
売出中 |
売買ペット | 価格 | 階層 | 間取 | 面積 | 向 | お問い合せ |
| 8,880万円 | 9階 | 2LDK | 57.14㎡ | 東 | |||
| ペット お問い合せ お気に入り 詳細表示 | |||||||
このお部屋の詳細情報
管理費 15,850円
修繕積立金 4,930円
その他月額費 2,970円
月額合計金額 23,750円
間取り 2LDK(洋6.0 洋5.0 LDK12.1)
現況 居住中
引き渡し 募集中
設備 眺望良好/バリアフリー/対面式キッチン/ガスコンロ/バス・トイレ別/追い炊き機能/浴室乾燥機/床暖房/室内洗濯機/クローゼット/シューズ・ボックス/ディスポーザー/食洗機
| 売買 |
売出中 |
売買未入居ペット | 価格 | 階層 | 間取 | 面積 | 向 | お問い合せ |
| 8,580万円 | 17階 | 1LDK | 44.29㎡ | 北 | |||
| 未入居ペット お問い合せ お気に入り 詳細表示 | |||||||
このお部屋の詳細情報
管理費 12,280円
修繕積立金 3,820円
その他月額費 2,420円
月額合計金額 18,520円
間取り 1LDK(洋4.0 LDK13.6)
現況 空室
引き渡し 募集中
設備 バリアフリー/独立型キッチン/ガスコンロ/バス・トイレ別/追い炊き機能/浴室乾燥機/床暖房/室内洗濯機/クローゼット/エアコン/シューズ・ボックス/ディスポーザー/食洗機
| 売買 |
売出中 |
売買ペット | 価格 | 階層 | 間取 | 面積 | 向 | お問い合せ |
| 9,800万円 | 8階 | 2LDK | 63.52㎡ | 北西 | |||
| ペット お問い合せ お気に入り 詳細表示 | |||||||
このお部屋の詳細情報
管理費 17,620円
修繕積立金 5,480円
その他月額費 2,420円
月額合計金額 25,520円
間取り 2LDK(洋6.0 洋4.5 LDK12.6)
現況 居住中
引き渡し 募集中
設備 バリアフリー/独立型キッチン/ガスコンロ/バス・トイレ別/追い炊き機能/浴室乾燥機/床暖房/室内洗濯機/ウォークインクローゼット/シューズ・ボックス/2面以上バルコニー/ディスポーザー/食洗機/角部屋
売出中 |
売買未入居ペット | 価格 | 階層 | 間取 | 面積 | 向 | お問い合せ |
| 11,380万円 | 18階 | 2LDK | 57.14㎡ | 東 | |||
| 未入居ペット お問い合せ お気に入り 詳細表示 | |||||||
このお部屋の詳細情報
管理費 15,850円
修繕積立金 4,930円
その他月額費 2,970円
月額合計金額 23,750円
間取り 2LDK(洋6.0 洋5.0 LDK12.1)
現況 空室
引き渡し 募集中
設備 眺望良好/バリアフリー/対面式キッチン/ガスコンロ/バス・トイレ別/追い炊き機能/浴室乾燥機/床暖房/室内洗濯機/クローゼット/シューズ・ボックス/ディスポーザー/食洗機
売出中 |
売買未入居ペット | 価格 | 階層 | 間取 | 面積 | 向 | お問い合せ |
| 12,600万円 | 23階 | 2SLDK | 64.97㎡ | 西 | |||
| 未入居ペット お問い合せ お気に入り 詳細表示 | |||||||
このお部屋の詳細情報
管理費 18,020円
修繕積立金 5,610円
その他月額費 2,970円
月額合計金額 26,600円
間取り 2SLDK(洋6.0 洋5.1 S1.0 S0.9 LDK15.7)
現況 空室
引き渡し 募集中
設備 眺望良好/バリアフリー/独立型キッチン/バス・トイレ別/追い炊き機能/浴室乾燥機/床暖房/室内洗濯機/クローゼット/シューズ・ボックス/ディスポーザー/食洗機
売出中 |
売買未入居ペット | 価格 | 階層 | 間取 | 面積 | 向 | お問い合せ |
| 12,800万円 | 4階 | 2LDK | 63.52㎡ | 北西 | |||
| 未入居ペット お問い合せ お気に入り 詳細表示 | |||||||
このお部屋の詳細情報
管理費 17,620円
修繕積立金 5,480円
その他月額費 2,420円
月額合計金額 25,520円
間取り 2LDK(洋6.0 洋4.5 LDK12.6)
現況 空室
引き渡し 募集中
設備 バリアフリー/独立型キッチン/ガスコンロ/バス・トイレ別/追い炊き機能/浴室乾燥機/床暖房/室内洗濯機/ウォークインクローゼット/シューズ・ボックス/2面以上バルコニー/ディスポーザー/食洗機/角部屋
売出中 |
売買ペット | 価格 | 階層 | 間取 | 面積 | 向 | お問い合せ |
| 16,800万円 | 24階 | 2SLDK | 82.79㎡ | 北西 | |||
| ペット お問い合せ お気に入り 詳細表示 | |||||||
このお部屋の詳細情報
管理費 22,960円
修繕積立金 7,140円
その他月額費 2,970円
月額合計金額 33,070円
間取り 2SLDK(洋8.0 洋5.0 S1.6 LDK23.0)
現況 空室
引き渡し 募集中
設備 眺望良好/バリアフリー/対面式キッチン/ガスコンロ/バス・トイレ別/追い炊き機能/浴室乾燥機/床暖房/室内洗濯機/クローゼット/シューズ・ボックス/ディスポーザー/食洗機/角部屋/LDK20帖以上
売出中 |
売買未入居ペット | 価格 | 階層 | 間取 | 面積 | 向 | お問い合せ |
| 17,000万円 | 32階 | 2LDK | 73.27㎡ | 東 | |||
| 未入居ペット お問い合せ お気に入り 詳細表示 | |||||||
このお部屋の詳細情報
管理費 20,320円
修繕積立金 6,320円
その他月額費 2,970円
月額合計金額 29,610円
間取り 2LDK(洋6.0 洋4.5 LDK20.5)
現況 空室
引き渡し 募集中
設備 眺望良好/バリアフリー/対面式キッチン/ガスコンロ/バス・トイレ別/追い炊き機能/浴室乾燥機/床暖房/室内洗濯機/クローゼット/ウォークインクローゼット/シューズインクローゼット/ディスポーザー/食洗機/LDK20帖以上
売出中 |
売買ペット | 価格 | 階層 | 間取 | 面積 | 向 | お問い合せ |
| 18,500万円 | 39階 | 3LDK | 70.32㎡ | 北 | |||
| ペット お問い合せ お気に入り 詳細表示 | |||||||
このお部屋の詳細情報
管理費 19,500円
修繕積立金 6,070円
その他月額費 2,970円
月額合計金額 28,540円
間取り 3LDK(洋6.5 洋4.5 洋4.0 LDK15.2)
現況 居住中
引き渡し 募集中
設備 眺望良好/バリアフリー/独立型キッチン/ガスコンロ/バス・トイレ別/追い炊き機能/浴室乾燥機/床暖房/室内洗濯機/クローゼット/シューズ・ボックス/ディスポーザー/食洗機
| 売買 |
| オーナーチェンジNEW |
売出中 |
オーナーチェンジ | 価格 | 階層 | 間取 | 面積 | 向 | お問い合せ |
| 5,950万円 利回り 3.42% | 3階 | 1LDK | 43.41㎡ | 北 | |||
| お問い合せ お気に入り 詳細表示 | |||||||
このお部屋の詳細情報
管理費 12,040円
修繕積立金 3,750円
その他月額費 2,970円
月額合計金額 18,760円
間取り 1LDK(洋5.0 LDK11.0)
現況 賃貸中
引き渡し 募集中
設備 バリアフリー/対面式キッチン/ガスコンロ/バス・トイレ別/追い炊き機能/浴室乾燥機/床暖房/室内洗濯機/クローゼット/シューズ・ボックス/ディスポーザー/食洗機
現行利回り 3.42%
| オーナーチェンジ |
売出中 |
オーナーチェンジ | 価格 | 階層 | 間取 | 面積 | 向 | お問い合せ |
| 10,980万円 利回り 3.69% | 13階 | 2LDK | 63.52㎡ | 北西 | |||
| お問い合せ お気に入り 詳細表示 | |||||||
このお部屋の詳細情報
管理費 17,620円
修繕積立金 5,480円
その他月額費 2,420円
月額合計金額 25,520円
間取り 2LDK(洋6.0 洋4.5 LDK12.6)
現況 賃貸中
引き渡し 募集中
設備 バリアフリー/独立型キッチン/ガスコンロ/バス・トイレ別/追い炊き機能/浴室乾燥機/床暖房/室内洗濯機/ウォークインクローゼット/シューズ・ボックス/2面以上バルコニー/ディスポーザー/食洗機/角部屋
現行利回り 3.69%
売出中 |
オーナーチェンジ | 価格 | 階層 | 間取 | 面積 | 向 | お問い合せ |
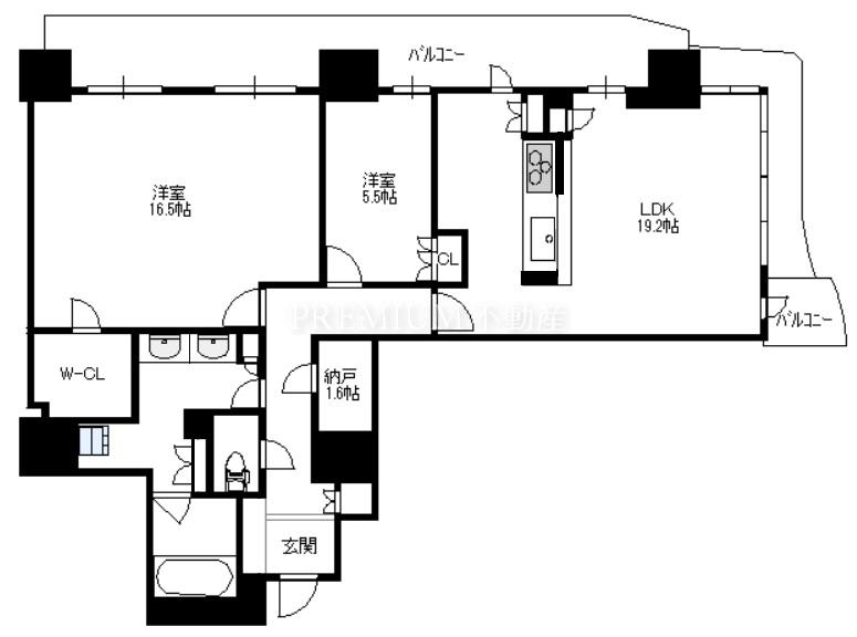
| 28,000万円 利回り 3.2% | 40階 | 2SLDK | 101.36㎡ | 北西 | |||
| お問い合せ お気に入り 詳細表示 | |||||||
このお部屋の詳細情報
管理費 28,110円
修繕積立金 8,750円
その他月額費 2,420円
月額合計金額 39,280円
間取り 2SLDK(洋16.5 洋5.5 S1.6 LDK19.2)
現況 空室
引き渡し 募集中
設備 眺望良好/バリアフリー/対面式キッチン/ガスコンロ/バス・トイレ別/追い炊き機能/浴室乾燥機/床暖房/室内洗濯機/クローゼット/ウォークインクローゼット/シューズ・ボックス/ディスポーザー/食洗機/角部屋
現行利回り 3.2%
参考売買相場価格
価格 5,950万円~55,000万円(平均価格15,325万円)
平米単価 137万円/㎡~369万円/㎡(平均単価205万円/㎡)
ローレルタワー堺筋本町の掲載中の物件情報を元にした参考情報です
空室・賃貸物件一覧
TODAY
本日更新
NEW
新着(7日以内)
現在、ローレルタワー堺筋本町の募集中空室がございません。
このお部屋の短縮URL:https://www.tower.ne.jp/rm/25377/




































