奥村組施工の2003年に竣工した地上29階建てタワーマンション
❤️7名の方がこの物件を気に入っています
目次
セントラルレジデンス天王寺シティタワーの物件写真
タワーマンションを「借りたい方・買いたい方」、「売却査定・賃料査定」など何でもお気軽にお問い合わせください。
セントラルレジデンス天王寺シティタワーの概要・物件情報
基本情報
- 所在地
- 📍大阪市天王寺区北河堀町 [地図表示]
- 交通
- 🚉大阪メトロ谷町線 天王寺駅まで徒歩3分
🚉大阪環状線 天王寺駅まで徒歩4分 - 築年月
- 🎂2003年1月
- 構造等
- 鉄筋コン/地上29階建地下1階
- 総戸数
- 154戸
- 管理方式
- 通勤(日勤)
- 用途地域
- 商業地域
- 建ぺい率
- 80%
- 建ぺい率
- 400%
- 土地権利
- 所有権
- 地勢
- 平坦
- 国土法届出
- 不要
セントラルレジデンス天王寺シティタワー
「セントラルレジデンス天王寺シティタワー」に住みたいお客様(購入・賃貸)、住替え等にて売却を検討や賃料条件から部屋付け家賃管理等ご検討の所有者(オーナー様)の方、大阪市内の中古タワーマンション専門のプレミアム不動産へお気軽にご相談ください。
大阪市内唯一の高台地として視線を集める、上町丘陵。
幾銭幾万の歴史浪漫が駆け抜けていったこの地は、まさに文化揺籃の母なる大地です。
ブルーをアクセントにしたタイル貼りの外観が目を引くシンボリックなデザインが特徴の29階建てタワーマンションです。
重厚な趣のエンランスや吹き抜けを設けた1階のロビーなど、迎賓の空間を創造。ゲストルームやライブラリー、キッズルームなどの共用施設も充実、スカイラウンジも設置されているので、タワーならではの眺望を楽しめ、暮らしに彩りを添えてくれます。
外出時にお届け物があっても安心の宅配ボックスを完備。防犯カメラや24時間セキュリティで安全面でも快適です。
阿倍野再開発により、注目を集めている天王寺に立地。最寄駅からは、7線5駅利用の嬉しいマルチアクセス。
大阪を南北に結ぶ地下鉄御堂筋線と「谷町線」で大阪市内の移動がスムーズ。
新大阪、奈良へも乗り換えなしと、どこへ行くにも便利です。
周辺には各種教育施設をはじめ、日々のショッピングや、子供から大人まで楽しめるグルメ、映画館、動物園なども身近にあり、暮らすほどに快適性を実感させてくれるでしょう。
◆共用施設◆
1階:コンシェルジュサービス
〇キッズルーム
〇カルチャールーム・茶室
〇ライブラリー
〇ラウンジ
〇ガーデンテラス
〇ゲストルーム
◆駐車場◆
月/27,000円〜30,000円
◆バイク置場◆
月/1,000円
◆自転車置場◆
月/200円
※管理組合に最新空車確認ならびに実際に駐車してご確認ください。
共用設備
- 主要
タワー型 オートロック エレベータ 宅配ボックス キッズルーム ゲストルーム スカイラウンジ コミュニティルーム コンシェルジュ
駐車場・駐輪場
この物件のメリット・デメリット
メリット
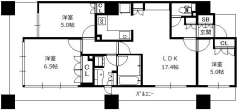
- 逆梁構法が採用され室内は柱型のないスッキリとした空間となっております
デメリット
- 実需が多いエリアにて投資向けでないところ
セントラルレジデンス天王寺シティタワーのよくある質問
タワーマンションを「借りたい方・買いたい方」、「売却査定・賃料査定」など何でもお気軽にお問い合わせください。
分譲・中古・売り物件一覧
TODAY
本日更新
NEW
新着(7日以内)
参考売買相場価格
価格 6,280万円~6,280万円(平均価格6,280万円)
平米単価 96万円/㎡~96万円/㎡(平均単価96万円/㎡)
セントラルレジデンス天王寺シティタワーの掲載中の物件情報を元にした参考情報です
お手軽簡単売却価格査定
プレミアム不動産のAI売却価格査定では約20秒程度の入力で瞬時にご指定のタワーマンションの売却価格相場を調べることが出来ます。登録や個人情報の入力も不要ですので個人情報やしつこい営業の心配もなく安心してお使い頂けます。
空室・賃貸物件一覧
TODAY
本日更新
NEW
新着(7日以内)
現在、セントラルレジデンス天王寺シティタワーの募集中空室がございません。
この建物の短縮URL:https://www.tower.ne.jp/bl/107/



