「シティタワー東梅田パークフロント」に住みたいお客様(購入・賃貸)、住替え等にて売却を検討や賃料条件から部屋家賃管理等ご検討の所有者(オーナー様)の方、大阪市内の中古タワーマンション専門のプレミアム不動産へお気軽にご相談ください。
梅田の中心に30階建てのタワーマンション「シティタワー東梅田パークフロント」が誕生。 梅田まで
徒歩圏内でありながら、緑豊かな扇町公園があり、都会と自然の両方を感じられます。
谷町線、堺筋線、JR大阪環状線が利用可能です。
「東梅田」駅徒歩10分、「扇町」駅徒歩4分、「南森町」駅徒歩7分。
間取り帯は1LDK〜4LDK、専有面積は47.95㎡〜103.49㎡で、シングルでもカップルでも、ファミリーにも快適な
各部屋は、壁一面に窓を設けました、ダイナミックパノラマウィンドウにより、タワーマンションの魅力でもある眺望の素晴らしさを演出します。キッチンはゆとりもあり、生ゴミディスポーザーやスライド式の食器洗浄
乾燥機も全邸完備。サポート
してくれるコンシェルジュによりホテルのようなサービスを受けられます。はスカイラウンジや
スカイアトリウム(2層吹き抜けの屋根のない空間)があり、優雅なひとときをお過ごしいただけます
。階には2つのゲストルームがあり、大切な人を優雅におもてなしできます(※有料)。また、各階にクリーンステーションがあり、
24時間365日ゴミ出し可能なのでゴミ出しのストレスもありません。
安全面では、建物構造に地震のエネルギーを吸収して揺れを軽減する「耐震構造」を採用しています
。て3段階のチェックで、不審者の侵入を防ぎますまた
、24時間有人管理で、訓練を受けたスタッフがタワーに住む居住者を見守ります周辺。
環境は、生活に必要です。なスーパーやコンビニ、公園はもちろん、梅田にある各大型商業施設も日常
◆共用◆
1階:コンシェルジュサービス・コーチエントランス・グルーミングルーム
2階:ゲストルーム・フィットネスジム 29階:スカイラウンジ・スカイパーティルーム・スカイ
アトリウム
◆
駐車場◆
月/26,000円〜45,000円
共用設備
- 主要
免震構造 タワー型 オートロック エレベータ 宅配ボックス オール電化 ゲストルーム ジム スカイラウンジ コンシェルジュ パーティールーム ペット用設備
駐車場・駐輪場
月額料金 26,000~45,000円
- 普通車
全長5,300mm
全幅:2,050mm
全高:1,550mm
重量:2,500kg
- ハイルーフ
全長:5,300mm
全幅:2,050mm
全高:2,100mm
重量:2,500kg
バイク
- ミニバイク 1,000円/月
- バイク 3,000円/月
この物件のメリット・デメリット
メリット
- ダイナミックパノラマウインドウ、アウトフレーム設計となっており、室内空間はとても広く開放的です
デメリット
- 停車より少し離れているため、利用される方は不便かもしれません
シティタワー東梅田パークフロントのよくある質問
- Q.シティタワー東梅田パークフロントの中古不動産・新築未入居(売買物件・賃貸物件)は現在何件ありますか?
- A.現在売り出し中の物件は27件、賃貸募集中は0件ございます。
- Q.シティタワー東梅田パークフロントシティタワー東梅田パークフロントの現在の販売価格の相場はいくらぐらいですか?
- A.現在募集中の住戸は、価格7,000万円~21,500万円(平均11,674万円)、平米単価127万円/㎡~238万円/㎡(平均単価171万円/㎡)です。
- Q.どの様な間取りがありますか?
- A.主にファミリー向けの間取り1LDK~3LDK(47.95㎡~114.42㎡)となっております
- Q.最寄り駅は?駅から近いですか?
- A.
大阪メトロ堺筋線 扇町駅まで徒歩4分 / 大阪メトロ谷町線 南森町駅まで徒歩7分
タワーマンションを「借りたい方・買いたい方」、「売却査定・賃料査定」など何でもお気軽にお問い合わせください。
分譲・中古・売り物件一覧
TODAY
本日更新
NEW
新着(7日以内)
売出中 |
売買ペット ※間取り反転タイプ200万円値下済 |
価格 |
階層 |
間取 |
面積 |
向 |
お問い合せ SELECT * FROM FAVORITE WHERE FAVORITE_COOKIE_ID= AND FAVORITE_RM_ID=29953 お気に入り 詳細表示 |
| 12,490万円 | 20階 |
3LDK |
68.81㎡ |
東 |
ペット
お問い合せ お気に入り 詳細表示
|
このお部屋の詳細情報
管理費 15,315円
修繕積立金 11,890円
その他月額費 0円
月額合計金額 27,205円
間取り 3LDK(洋6.0 洋5.0 洋5.0 LDK14.4)
現況 空室
引き渡し 募集中
設備 眺望良好/バリアフリー/対面式キッチン/IHクッキングヒーター/バス・トイレ別/追い炊き機能/浴室乾燥機/床暖房/室内洗濯機/クローゼット/ウォークインクローゼット/シューズ・ボックス/ディスポーザー/食洗機
※間取り反転タイプ
詳細ページ
売出中 |
売買ペット 1,000万円値下済 |
価格 |
階層 |
間取 |
面積 |
向 |
お問い合せ SELECT * FROM FAVORITE WHERE FAVORITE_COOKIE_ID= AND FAVORITE_RM_ID=29640 お気に入り 詳細表示 |
| 12,450万円 | 28階 |
2LDK |
68.81㎡ |
東 |
ペット
お問い合せ お気に入り 詳細表示
|
このお部屋の詳細情報
管理費 15,315円
修繕積立金 11,890円
その他月額費 0円
月額合計金額 27,205円
間取り 2LDK(洋6.0 洋5.0 LDK19.4)
現況 空室
引き渡し 募集中
設備 眺望良好/バリアフリー/対面式キッチン/IHクッキングヒーター/バス・トイレ別/追い炊き機能/浴室乾燥機/床暖房/室内洗濯機/クローゼット/ウォークインクローゼット/シューズ・ボックス/ディスポーザー/食洗機
詳細ページ
売出中 |
売買ペット |
価格 |
階層 |
間取 |
面積 |
向 |
お問い合せ SELECT * FROM FAVORITE WHERE FAVORITE_COOKIE_ID= AND FAVORITE_RM_ID=27842 お気に入り 詳細表示 |
| 16,280万円 | 15階 |
3LDK |
81.39㎡ |
北西 |
ペット
お問い合せ お気に入り 詳細表示
|
このお部屋の詳細情報
管理費 17,935円
修繕積立金 14,060円
その他月額費 0円
月額合計金額 31,995円
間取り 3LDK(洋7.0 洋6.0 洋5.0 LDK17.1)
現況 空室
引き渡し 募集中
設備 花火大会観賞/バリアフリー/対面式キッチン/IHクッキングヒーター/バス・トイレ別/追い炊き機能/浴室乾燥機/床暖房/室内洗濯機/クローゼット/ウォークインクローゼット/シューズインクローゼット/2面以上バルコニー/ディスポーザー/食洗機/角部屋
詳細ページ
売出中 |
売買ペット ※間取り反転タイプ |
価格 |
階層 |
間取 |
面積 |
向 |
お問い合せ SELECT * FROM FAVORITE WHERE FAVORITE_COOKIE_ID= AND FAVORITE_RM_ID=14731 お気に入り 詳細表示 |
| 12,780万円 | 22階 |
2LDK |
68.81㎡ |
西 |
ペット
お問い合せ お気に入り 詳細表示
|
このお部屋の詳細情報
管理費 15,315円
修繕積立金 11,890円
その他月額費 0円
月額合計金額 27,205円
間取り 2LDK(洋6.0 洋5.0 LDK19.4)
現況 空室
引き渡し 募集中
設備 眺望良好/バリアフリー/対面式キッチン/IHクッキングヒーター/バス・トイレ別/追い炊き機能/浴室乾燥機/床暖房/室内洗濯機/クローゼット/ウォークインクローゼット/シューズ・ボックス/ディスポーザー/食洗機
※間取り反転タイプ
詳細ページ
売出中 |
売買ペット |
価格 |
階層 |
間取 |
面積 |
向 |
お問い合せ SELECT * FROM FAVORITE WHERE FAVORITE_COOKIE_ID= AND FAVORITE_RM_ID=29884 お気に入り 詳細表示 |
| 9,980万円 | 6階 |
3LDK |
66.67㎡ |
南西 |
ペット
お問い合せ お気に入り 詳細表示
|
このお部屋の詳細情報
管理費 14,875円
修繕積立金 11,520円
その他月額費 0円
月額合計金額 26,395円
間取り 3LDK(洋6.0 洋5.0 洋4.0 LDK14.3)
現況 居住中
引き渡し 募集中
設備 バリアフリー/独立型キッチン/IHクッキングヒーター/バス・トイレ別/追い炊き機能/浴室乾燥機/室内洗濯機/クローゼット/シューズ・ボックス/2面以上バルコニー/角部屋
詳細ページ
売出中 |
売買ペット |
価格 |
階層 |
間取 |
面積 |
向 |
お問い合せ SELECT * FROM FAVORITE WHERE FAVORITE_COOKIE_ID= AND FAVORITE_RM_ID=29454 お気に入り 詳細表示 |
| 12,300万円 | 17階 |
3SLDK |
64.13㎡ |
西 |
ペット
お問い合せ お気に入り 詳細表示
|
このお部屋の詳細情報
管理費 14,775円
修繕積立金 11,440円
その他月額費 0円
月額合計金額 26,215円
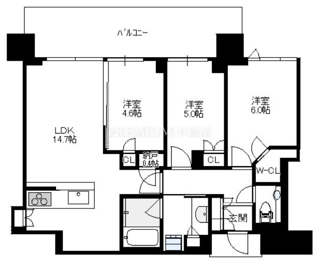
間取り 3SLDK(洋6.0 洋5.0 洋4.6 S0.4 LDK14.7)
現況 空室
引き渡し 募集中
設備 バリアフリー/対面式キッチン/IHクッキングヒーター/バス・トイレ別/追い炊き機能/浴室乾燥機/床暖房/室内洗濯機/クローゼット/ウォークインクローゼット/エアコン/シューズ・ボックス/ディスポーザー/食洗機
詳細ページ
売出中 |
売買ペット |
価格 |
階層 |
間取 |
面積 |
向 |
お問い合せ SELECT * FROM FAVORITE WHERE FAVORITE_COOKIE_ID= AND FAVORITE_RM_ID=29678 お気に入り 詳細表示 |
| 14,800万円 | 7階 |
3LDK |
81.17㎡ |
北西 |
ペット
お問い合せ お気に入り 詳細表示
|
このお部屋の詳細情報
管理費 17,895円
修繕積立金 13,920円
その他月額費 0円
月額合計金額 31,815円
間取り 3LDK(洋7.1 洋6.0 洋5.0 LDK17.1)
現況 居住中
引き渡し 募集中
設備 バリアフリー/対面式キッチン/IHクッキングヒーター/バス・トイレ別/追い炊き機能/浴室乾燥機/床暖房/室内洗濯機/クローゼット/ウォークインクローゼット/シューズインクローゼット/2面以上バルコニー/ディスポーザー/食洗機/角部屋
詳細ページ
売出中 |
オーナーチェンジ |
価格 |
階層 |
間取 |
面積 |
向 |
お問い合せ SELECT * FROM FAVORITE WHERE FAVORITE_COOKIE_ID= AND FAVORITE_RM_ID=28817 お気に入り 詳細表示 |
7,980万円 利回り 3.3% | 9階 |
1LDK |
47.95㎡ |
西 |
|
お問い合せ お気に入り 詳細表示
|
このお部屋の詳細情報
管理費 10,975円
修繕積立金 8,280円
その他月額費 0円
月額合計金額 19,255円
間取り 1LDK(洋6.5 LDK14.2)
現況 賃貸中
引き渡し 募集中
設備 バリアフリー/対面式キッチン/IHクッキングヒーター/バス・トイレ別/追い炊き機能/浴室乾燥機/床暖房/室内洗濯機/ウォークインクローゼット/シューズ・ボックス/ディスポーザー/食洗機
現行利回り 3.3%
詳細ページ
売出中 |
オーナーチェンジ |
価格 |
階層 |
間取 |
面積 |
向 |
お問い合せ SELECT * FROM FAVORITE WHERE FAVORITE_COOKIE_ID= AND FAVORITE_RM_ID=29509 お気に入り 詳細表示 |
12,800万円 利回り 2.81% | 4階 |
3LDK |
81.17㎡ |
北西 |
|
お問い合せ お気に入り 詳細表示
|
このお部屋の詳細情報
管理費 17,895円
修繕積立金 13,920円
その他月額費 0円
月額合計金額 31,815円
間取り 3LDK(洋7.1 洋6.0 洋5.0 LDK17.1)
現況 賃貸中
引き渡し 募集中
設備 バリアフリー/対面式キッチン/IHクッキングヒーター/バス・トイレ別/追い炊き機能/浴室乾燥機/床暖房/室内洗濯機/クローゼット/ウォークインクローゼット/シューズインクローゼット/2面以上バルコニー/ディスポーザー/食洗機/角部屋
現行利回り 2.81%
詳細ページ
売出中 |
オーナーチェンジ 500万円値下済 |
価格 |
階層 |
間取 |
面積 |
向 |
お問い合せ SELECT * FROM FAVORITE WHERE FAVORITE_COOKIE_ID= AND FAVORITE_RM_ID=7663 お気に入り 詳細表示 |
10,500万円 利回り 3% | 29階 |
2LDK |
68.87㎡ |
西 |
|
お問い合せ お気に入り 詳細表示
|
このお部屋の詳細情報
管理費 15,335円
修繕積立金 11,900円
その他月額費 0円
月額合計金額 27,235円
間取り 2LDK(洋6.7 洋5.0 LDK18.1)
現況 賃貸中
引き渡し 募集中
設備 眺望良好/バリアフリー/対面式キッチン/IHクッキングヒーター/バス・トイレ別/追い炊き機能/浴室乾燥機/床暖房/室内洗濯機/クローゼット/ウォークインクローゼット/シューズ・ボックス/ディスポーザー/食洗機
現行利回り 3%
詳細ページ

参考売買相場価格
価格 7,000万円~21,500万円(平均価格11,674万円)
平米単価 127万円/㎡~238万円/㎡(平均単価171万円/㎡)
シティタワー東梅田パークフロントの掲載中の物件情報を元にした参考情報です
お手軽簡単売却価格査定
プレミアム不動産のAI売却価格査定では約20秒程度の入力で瞬時にご指定のタワーマンションの売却価格相場を調べることが出来ます。登録や個人情報の入力も不要ですので個人情報やしつこい営業の心配もなく安心してお使い頂けます。
空室・賃貸物件一覧
TODAY
本日更新
NEW
新着(7日以内)

現在、シティタワー東梅田パークフロントの募集中空室がございません。
この建物の短縮URL:https://www.tower.ne.jp/bl/99/

0人閲覧中