竹中工務店施工の2021年7月竣工する地上51階建て総戸数871戸、超高層免震構造タワーマンション
❤️7名の方がこの物件を気に入っています
目次
グランドメゾン新梅田タワー THE CLUB RESIDENCEの物件写真
借りたい・買いたい
タワーマンションを「借りたい方・買いたい方」、「売却査定・賃料査定」など何でもお気軽にお問い合わせください。
グランドメゾン新梅田タワー THE CLUB RESIDENCEの概要・物件情報
基本情報
- 所在地
- 📍大阪市北区大淀南2丁目 [地図表示]
- 交通
- 🚉大阪環状線 福島駅まで徒歩8分
🚉大阪環状線 大阪駅まで徒歩14分 - 築年月
- 🎂2021年7月
- 構造等
- 鉄筋コン/地上51階建地下1階
- 総戸数
- 871戸
- 管理方式
- 常駐
- 用途地域
- 商業地域
- 建ぺい率
- 100%
- 建ぺい率
- 731%
- 土地権利
- 所有権
- 地勢
- 平坦
- 国土法届出
- 不要
グランドメゾン新梅田タワー THE CLUB RESIDENCEは著名人や芸能人の方にも安心のおすすめの物件です。
グランドメゾン新梅田タワー THE CLUB RESIDENCE
「グランドメゾン新梅田タワー THE CLUB RESIDENCE(ザ・クラブレジデンス)」に住みたいお客様(購入・賃貸)、住替え等にて売却を検討や賃料条件から部屋付け家賃管理等ご検討の所有者(オーナー様)の方、大阪市内の中古タワーマンション専門のプレミアム不動産へお気軽にご相談ください。
グランドメゾンシリーズとして、地上51階地下1階建、総戸数871戸の超高層タワーマンションが誕生します。
871戸全戸に家庭用燃料電池「エネファームtypeS」を設置し、省エネと省CO2による環境配慮を実現。
商業施設と保育施設を誘致するとともに、「ザ・シンフォニーホール」と
連携した「にぎわい・文化施設」の導入を予定。
また、広大な緑地広場も予定しており、JR大阪駅以西の新たなランドマークとしても期待されています。
各沿線の「大阪」駅が徒歩圏内、JR大阪環状線「福島」駅は徒歩8分の立地。
間取りは1LDK〜4LDK、専有面積は45.84㎡〜 199.87㎡と幅広いラインナップ。
◆共用施設◆
1階:グランドエントランスホール・グランドホワイエ
2階:ゲストルーム・ゴルフレンジ・コミュニティサロン・コミュニティルーム・コミュニティテラス
35階:スカイテラス・スカイラウンジ・パーティールーム・スタディルーム
◆駐車場◆
機械式 352台
月/30,000円~39,000円
◆バイク置場◆
176台(バイク置場18台、ミニバイク置場158台)
月/1,800円~2,000円
◆自転車置場◆
1,742台(平面式524台、スライドラック式335台、二段式883台)
月/100円~500円
※管理組合に最新空車確認ならびに実際に駐車してご確認ください。
共用設備
- 主要
免震構造 タワー型 オートロック エレベータ 宅配ボックス ゲストルーム スカイラウンジ コミュニティルーム コンシェルジュ パーティールーム
駐車場・駐輪場
この物件のメリット・デメリット
メリット
- 35階の野外空間「スカイテラス」や敷地内の公開空地「シーズンフォレスト(多目的広場)」が魅力のひとつです
デメリット
- 高層大規模タワーマンションにて、敷地内駐車場の契約確保が困難でしょう
グランドメゾン新梅田タワー THE CLUB RESIDENCEのよくある質問
借りたい・買いたい
タワーマンションを「借りたい方・買いたい方」、「売却査定・賃料査定」など何でもお気軽にお問い合わせください。
分譲・中古・売り物件一覧
TODAY
本日更新
NEW
新着(7日以内)
| 売買 |
売出中 |
売買ペット | 価格 | 階層 | 間取 | 面積 | 向 | お問い合せ |
| 18,900万円 | 6階 | 3LDK | 86.35㎡ | 南東 | |||
| ペット お問い合せ お気に入り 詳細表示 | |||||||
このお部屋の詳細情報
管理費 18,120円
修繕積立金 8,620円
その他月額費 1,760円
月額合計金額 28,500円
間取り 3LDK(洋6.6 洋5.7 洋4.5 LDK20.4)
現況 空室
引き渡し 募集中
設備 バリアフリー/独立型キッチン/ガスコンロ/バス・トイレ別/追い炊き機能/浴室乾燥機/床暖房/室内洗濯機/クローゼット/ウォークインクローゼット/シューズ・ボックス/2面以上バルコニー/ディスポーザー/食洗機/角部屋/LDK20帖以上
売出中 |
売買ペット | 価格 | 階層 | 間取 | 面積 | 向 | お問い合せ |
| 19,500万円 | 10階 | 3LDK | 86.35㎡ | 南東 | |||
| ペット お問い合せ お気に入り 詳細表示 | |||||||
このお部屋の詳細情報
管理費 18,120円
修繕積立金 8,620円
その他月額費 1,760円
月額合計金額 28,500円
間取り 3LDK(洋6.6 洋5.7 洋4.5 LDK20.4)
現況 空室
引き渡し 募集中
設備 バリアフリー/独立型キッチン/ガスコンロ/バス・トイレ別/追い炊き機能/浴室乾燥機/床暖房/室内洗濯機/クローゼット/ウォークインクローゼット/シューズ・ボックス/2面以上バルコニー/ディスポーザー/食洗機/角部屋/LDK20帖以上
売出中 |
売買ペット | 価格 | 階層 | 間取 | 面積 | 向 | お問い合せ |
| 48,000万円 | 37階 | 3LDK | 109.57㎡ | 北西 | |||
| ペット お問い合せ お気に入り 詳細表示 | |||||||
このお部屋の詳細情報
管理費 23,000円
修繕積立金 10,950円
その他月額費 1,760円
月額合計金額 35,710円
間取り 3LDK(洋9.1 洋6 洋5.1 LDK25.6)
現況 居住中
引き渡し 募集中
設備 眺望良好/バリアフリー/対面式キッチン/ガスコンロ/バス・トイレ別/追い炊き機能/浴室乾燥機/床暖房/室内洗濯機/クローゼット/ウォークインクローゼット/シューズインクローゼット/ディスポーザー/食洗機/角部屋/LDK20帖以上
売出中 |
売買ペット | 価格 | 階層 | 間取 | 面積 | 向 | お問い合せ |
| 8,580万円 | 4階 | 1LDK | 55.11㎡ | 西 | |||
| ペット お問い合せ お気に入り 詳細表示 | |||||||
このお部屋の詳細情報
管理費 11,560円
修繕積立金 5,500円
その他月額費 1,760円
月額合計金額 18,820円
間取り 1LDK(洋8.1 LDK14.7)
現況 空室
引き渡し 募集中
設備 バリアフリー/ガスコンロ/バス・トイレ別/追い炊き機能/浴室乾燥機/床暖房/室内洗濯機/ウォークインクローゼット/シューズ・ボックス/ディスポーザー/食洗機
売出中 |
売買ペット | 価格 | 階層 | 間取 | 面積 | 向 | お問い合せ |
| 15,000万円 | 21階 | 2LDK | 69.66㎡ | 東 | |||
| ペット お問い合せ お気に入り 詳細表示 | |||||||
このお部屋の詳細情報
管理費 14,620円
修繕積立金 6,960円
その他月額費 1,760円
月額合計金額 23,340円
間取り 2LDK(洋7.3 洋5.4 LDK18.0)
現況 空室
引き渡し 募集中
設備 眺望良好/バリアフリー/対面式キッチン/ガスコンロ/バス・トイレ別/追い炊き機能/浴室乾燥機/床暖房/室内洗濯機/クローゼット/ウォークインクローゼット/シューズインクローゼット/ディスポーザー/食洗機
売出中 |
売買ペット | 価格 | 階層 | 間取 | 面積 | 向 | お問い合せ |
| 8,580万円 | 10階 | 1LDK | 55.1㎡ | 東 | |||
| ペット お問い合せ お気に入り 詳細表示 | |||||||
このお部屋の詳細情報
管理費 11,560円
修繕積立金 5,500円
その他月額費 1,760円
月額合計金額 18,820円
間取り 1LDK(洋7.0 LDK15.9)
現況 空室
引き渡し 募集中
設備 バリアフリー/独立型キッチン/ガスコンロ/バス・トイレ別/追い炊き機能/浴室乾燥機/床暖房/室内洗濯機/ウォークインクローゼット/シューズインクローゼット/ディスポーザー/食洗機
| 売買 |
| 売買 |
| 売買 |
売出中 |
売買ペット | 価格 | 階層 | 間取 | 面積 | 向 | お問い合せ |
| 9,580万円 | 14階 | 1LDK | 55.28㎡ | 北 | |||
| ペット お問い合せ お気に入り 詳細表示 | |||||||
このお部屋の詳細情報
管理費 11,600円
修繕積立金 5,520円
その他月額費 1,760円
月額合計金額 18,880円
間取り 1LDK(洋6.5 LDK15.5)
現況 空室
引き渡し 募集中
設備 バリアフリー/対面式キッチン/ガスコンロ/バス・トイレ別/追い炊き機能/浴室乾燥機/床暖房/室内洗濯機/クローゼット/シューズ・ボックス/ディスポーザー/食洗機
売出中 |
売買ペット | 価格 | 階層 | 間取 | 面積 | 向 | お問い合せ |
| 11,400万円 | 6階 | 2LDK | 61.46㎡ | 北 | |||
| ペット お問い合せ お気に入り 詳細表示 | |||||||
このお部屋の詳細情報
管理費 12,900円
修繕積立金 6,130円
その他月額費 1,760円
月額合計金額 20,790円
間取り 2LDK(洋6.0 洋5.0 LDK15.1)
現況 空室
引き渡し 募集中
設備 バリアフリー/対面式キッチン/ガスコンロ/バス・トイレ別/追い炊き機能/浴室乾燥機/床暖房/室内洗濯機/クローゼット/シューズインクローゼット/ディスポーザー/食洗機
売出中 |
売買ペット | 価格 | 階層 | 間取 | 面積 | 向 | お問い合せ |
| 8,980万円 | 11階 | 1LDK | 47.01㎡ | 東 | |||
| ペット お問い合せ お気に入り 詳細表示 | |||||||
このお部屋の詳細情報
管理費 9,860円
修繕積立金 4,700円
その他月額費 1,760円
月額合計金額 16,320円
間取り 1LDK(洋5.1 LDK13.1)
現況 居住中
引き渡し 募集中
設備 バリアフリー/独立型キッチン/ガスコンロ/バス・トイレ別/追い炊き機能/浴室乾燥機/床暖房/室内洗濯機/クローゼット/シューズ・ボックス/ディスポーザー/食洗機
| 売買 |
売出中 |
売買ペット | 価格 | 階層 | 間取 | 面積 | 向 | お問い合せ |
| 18,900万円 | 34階 | 2LDK | 71.53㎡ | 南 | |||
| ペット お問い合せ お気に入り 詳細表示 | |||||||
このお部屋の詳細情報
管理費 15,010円
修繕積立金 7,150円
その他月額費 1,760円
月額合計金額 23,920円
間取り 2LDK(洋7.6 洋5.0 LDK17.4)
現況 空室
引き渡し 募集中
設備 眺望良好/バリアフリー/対面式キッチン/ガスコンロ/バス・トイレ別/追い炊き機能/浴室乾燥機/床暖房/室内洗濯機/クローゼット/ウォークインクローゼット/シューズ・ボックス/ディスポーザー/食洗機
売出中 |
売買ペット | 価格 | 階層 | 間取 | 面積 | 向 | お問い合せ |
| 31,800万円 | 31階 | 2LDK | 91.88㎡ | 南西 | |||
| ペット お問い合せ お気に入り 詳細表示 | |||||||
このお部屋の詳細情報
管理費 19,280円
修繕積立金 9,180円
その他月額費 1,760円
月額合計金額 30,220円
間取り 2LDK(洋8.0 洋6.5 LDK26.2)
現況 空室
引き渡し 募集中
設備 眺望良好/バリアフリー/対面式キッチン/ガスコンロ/バス・トイレ別/追い炊き機能/浴室乾燥機/床暖房/室内洗濯機/クローゼット/ウォークインクローゼット/シューズ・ボックス/2面以上バルコニー/ディスポーザー/食洗機/角部屋/LDK20帖以上
| 売買 |
売出中 |
売買ペット | 価格 | 階層 | 間取 | 面積 | 向 | お問い合せ |
| 17,820万円 | 43階 | 2LDK | 83.19㎡ | 南 | |||
| ペット お問い合せ お気に入り 詳細表示 | |||||||
このお部屋の詳細情報
管理費 17,460円
修繕積立金 8,310円
その他月額費 1,760円
月額合計金額 27,530円
間取り 2LDK(洋8.5 洋6.7 LDK20.5)
現況 居住中
引き渡し 募集中
設備 眺望良好/バリアフリー/対面式キッチン/ガスコンロ/バス・トイレ別/追い炊き機能/浴室乾燥機/床暖房/室内洗濯機/ウォークインクローゼット/シューズ・ボックス/ディスポーザー/食洗機/LDK20帖以上
| 売買 |
売出中 |
売買ペット | 価格 | 階層 | 間取 | 面積 | 向 | お問い合せ |
| 16,980万円 | 27階 | 3LDK | 74.16㎡ | 東 | |||
| ペット お問い合せ お気に入り 詳細表示 | |||||||
このお部屋の詳細情報
管理費 15,570円
修繕積立金 7,410円
その他月額費 1,760円
月額合計金額 24,740円
間取り 3LDK(洋7.1 洋5.2 洋4.6 LDK16.4)
現況 居住中
引き渡し 募集中
設備 眺望良好/バリアフリー/対面式キッチン/L字型キッチン/ガスコンロ/バス・トイレ別/追い炊き機能/浴室乾燥機/床暖房/室内洗濯機/クローゼット/ウォークインクローゼット/シューズインクローゼット/ディスポーザー/食洗機
売出中 |
売買未入居ペット | 価格 | 階層 | 間取 | 面積 | 向 | お問い合せ |
| 37,980万円 | 40階 | 3LDK | 103.73㎡ | 北東 | |||
| 未入居ペット お問い合せ お気に入り 詳細表示 | |||||||
このお部屋の詳細情報
管理費 21,770円
修繕積立金 10,360円
その他月額費 1,760円
月額合計金額 33,890円
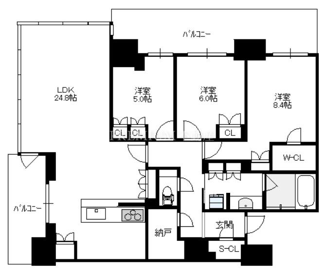
間取り 3LDK(洋8.4 洋6.0 洋5.0 LDK24.8)
現況 居住中
引き渡し 募集中
設備 花火大会観賞/眺望良好/バリアフリー/対面式キッチン/ガスコンロ/バス・トイレ別/追い炊き機能/浴室乾燥機/床暖房/室内洗濯機/クローゼット/ウォークインクローゼット/シューズインクローゼット/2面以上バルコニー/ディスポーザー/食洗機/角部屋/LDK20帖以上
| 売買 |
| 売買 |
売出中 |
売買ペット | 価格 | 階層 | 間取 | 面積 | 向 | お問い合せ |
| 8,900万円 | 11階 | 1LDK | 48.15㎡ | 東 | |||
| ペット お問い合せ お気に入り 詳細表示 | |||||||
このお部屋の詳細情報
管理費 10,100円
修繕積立金 4,810円
その他月額費 1,760円
月額合計金額 16,670円
間取り 1LDK(洋5.1 LDK13.7)
現況 居住中
引き渡し 募集中
設備 バリアフリー/対面式キッチン/ガスコンロ/バス・トイレ別/追い炊き機能/浴室乾燥機/床暖房/室内洗濯機/クローゼット/シューズインクローゼット/ディスポーザー/食洗機
売出中 |
売買ペット | 価格 | 階層 | 間取 | 面積 | 向 | お問い合せ |
| 9,380万円 | 4階 | 1LDK | 56.16㎡ | 西 | |||
| ペット お問い合せ お気に入り 詳細表示 | |||||||
このお部屋の詳細情報
管理費 20,000円
修繕積立金 5,610円
その他月額費 1,760円
月額合計金額 27,370円
間取り 1LDK(洋7.6 LDK16.1)
現況 空室
引き渡し 募集中
設備 バリアフリー/独立型キッチン/ガスコンロ/バス・トイレ別/追い炊き機能/浴室乾燥機/床暖房/室内洗濯機/クローゼット/シューズインクローゼット/ディスポーザー/食洗機
| 売買 |
売出中 |
売買ペット | 価格 | 階層 | 間取 | 面積 | 向 | お問い合せ |
| 9,980万円 | 18階 | 1LDK | 55.11㎡ | 西 | |||
| ペット お問い合せ お気に入り 詳細表示 | |||||||
このお部屋の詳細情報
管理費 11,540円
修繕積立金 5,500円
その他月額費 1,760円
月額合計金額 18,800円
間取り 1LDK(洋8.2 LDK14.7)
現況 空室
引き渡し 募集中
設備 バリアフリー/ガスコンロ/バス・トイレ別/追い炊き機能/浴室乾燥機/床暖房/室内洗濯機/ウォークインクローゼット/シューズ・ボックス/ディスポーザー/食洗機
| 売買 |
| 売買 |
売出中 |
売買ペット | 価格 | 階層 | 間取 | 面積 | 向 | お問い合せ |
| 12,980万円 | 12階 | 2LDK | 61.87㎡ | 北 | |||
| ペット お問い合せ お気に入り 詳細表示 | |||||||
このお部屋の詳細情報
管理費 12,980円
修繕積立金 6,170円
その他月額費 1,760円
月額合計金額 20,910円
間取り 2LDK(洋6.0 洋5.0 LDK15.3)
現況 居住中
引き渡し 募集中
設備 バリアフリー/独立型キッチン/ガスコンロ/バス・トイレ別/追い炊き機能/浴室乾燥機/床暖房/室内洗濯機/クローゼット/シューズインクローゼット/ディスポーザー/食洗機
| 売買 |
| 売買 |
| 売買 |
| 売買 |
売出中 |
オーナーチェンジ | 価格 | 階層 | 間取 | 面積 | 向 | お問い合せ |
| 39,900万円 利回り 2.7% | 51階 最上階 |
1LDK | 132.27㎡ | 東 | |||
| お問い合せ お気に入り 詳細表示 | |||||||
このお部屋の詳細情報
管理費 27,770円
修繕積立金 13,220円
その他月額費 1,760円
月額合計金額 42,750円
間取り 1LDK(洋12.0 LDK37.8)
現況 賃貸中
引き渡し 募集中
設備 眺望良好/バリアフリー/対面式キッチン/ガスコンロ/バス・トイレ別/追い炊き機能/浴室乾燥機/床暖房/室内洗濯機/クローゼット/ウォークインクローゼット/シューズ・ボックス/シューズインクローゼット/ディスポーザー/食洗機/角部屋/LDK20帖以上
現行利回り 2.7%
売出中 |
オーナーチェンジ | 価格 | 階層 | 間取 | 面積 | 向 | お問い合せ |
| 8,550万円 利回り 3.08% | 9階 | 1LDK | 55.28㎡ | 北 | |||
| お問い合せ お気に入り 詳細表示 | |||||||
このお部屋の詳細情報
管理費 11,600円
修繕積立金 5,520円
その他月額費 1,760円
月額合計金額 18,880円
間取り 1LDK(洋6.5 LDK15.6)
現況 賃貸中
引き渡し 募集中
設備 バリアフリー/対面式キッチン/ガスコンロ/バス・トイレ別/追い炊き機能/浴室乾燥機/床暖房/室内洗濯機/クローゼット/シューズ・ボックス/ディスポーザー/食洗機
現行利回り 3.08%
| オーナーチェンジ |
参考売買相場価格
価格 7,980万円~48,000万円(平均価格16,416万円)
平米単価 154万円/㎡~438万円/㎡(平均単価220万円/㎡)
グランドメゾン新梅田タワー THE CLUB RESIDENCEの掲載中の物件情報を元にした参考情報です
お手軽簡単売却価格査定
プレミアム不動産のAI売却価格査定では約20秒程度の入力で瞬時にご指定のタワーマンションの売却価格相場を調べることが出来ます。登録や個人情報の入力も不要ですので個人情報やしつこい営業の心配もなく安心してお使い頂けます。
空室・賃貸物件一覧
TODAY
本日更新
NEW
新着(7日以内)
現在、グランドメゾン新梅田タワー THE CLUB RESIDENCEの募集中空室がございません。
この建物の短縮URL:https://www.tower.ne.jp/bl/53/





















































